Организация обеспечения пожарной безопасности
А АВТОМАТИЧЕСКОЕ ПОЖАРОТУШЕНИЕ
1. Студии
1. Помещения телевизионных студий телецентров – площадью 300 кв. м и более.
2. Помещения радиовещательных студий радиодомов – площадью 300 кв. метров и более ( в отдельных случаях, определяемых заданием, с площадью 150 кв. м)
11. Цеха
1. Бутафорско-реквизиторский цех: бутафорское отделение, реквизиторское отделение, отделение лепки, вспомогательные помещения, отделение специального реквизита.
2. Живописно-декорационный цех: мастерская росписи тканей, титровая, колерная.
3. Столярный цех: склад текущих пиломатериалов, сушилка, станочное отделение, столярно-сборочная, мебельная, клееварка, мастерская макетчиков, пропиточная.
4. Фотодекоративный цех: печатно-монтажная, проявочная, отделение сверхувеличения, монтировочная.
5. Мебельно-реквизиторский цех.
6. Постановочно-отделочный цех.
7. Костюмерный цех с примерочной.
8. Гримерный цех: рабочая комната, пастижерская мастерская, мастерская пластического грима, мастерская гримировальных красок.
9. Цех (участок) обработки пленки телекинопроизводства: помещения реставрации основы.
111. Мастерские
1. Обойно-драпировочная.
2. Мастерская художников.
3. Обувная.
4. Головных уборов.
1Y.Хранилища фильмовых материалов и магнитных лент
1. Секция неэкспонированной кинопленки и магнитной ленты для звукозаписи и видеозаписи.
Помещения для:
хранения обращаемой кинопленки в холодильных шкафах;
хранение новой и бывшей в употреблении магнитной ленты для звукозаписи и видеозаписи на стеллажах;
разборки и сортировки неэкспонированных кинопленок и магнитной ленты.
2. Секция хранения лабораторных обращаемых фильмовых материалов.
Помещения для:
хранения обработанных первичных обращаемых киноматериалов:
разборки и сортировки материалов.
3. Секция хранения рабочих материалов монтажного цеха.
Помещения для:
хранения рабочих обращаемых фильмовых материалов;
хранения рабочих фоно- и видеоматериалов на магнитной ленте:
разборка и сортировка материалов.
4. Секция хранения кино- и видеоматериалов архивного фонда и киноматериалов обменного фонда:
хранилище киноматериалов архивного фонда;
хранилище киноматериалов обменного фонда;
хранилище фонограмм и видеофонограмм.
Помещения для:
приема и выдачи фондовых киноматериалов;
контроля принятых киноматериалов;
приемки и выдачи видеофонограмм;
очистки коробок с видеофонограммами от пыли;
контроля качества видеофонограмм;
информационно-поисковой службы.
Y. Базовые фонотеки радиодомов
Хранилище фондовых фонограмм.
Y1. Склады
1. Декорационные.
2. Мебельные
3. Бутафории.
4. Реквизита.
5. Костюмов.
6. Обуви и головных уборов.
7. Оружейные.
8. Драпировок и занавесей.
Помещения для размещения связных процессоров (серверные) оборудуются АУПТ площадью 24 м.кв. и более; АУПС площадью менее 24 м.кв.
Б АВТОМАТИЧЕСКАЯ ПОЖАРНАЯ СИГНАЛИЗАЦИЯ
1. Автоматической пожарной сигнализацией оборудуются все помещения телецентров, радиодомов и телекинопроизводства, кроме помещений душевых, уборных, умывальных, тепловых узлов, вентиляционных насосных и помещений, оборудуемых установками автоматического пожаротушения.
Противопожарное водоснабжение.
Сети противопожарного водопровода должны находиться в исправном состоянии и обеспечивать требуемый по нормам расход воды на нужды пожаротушения. Проверка их работоспособности должна осуществляться не реже двух раз в год (весной и осенью).
Пожарные краны внутреннего противопожарного водопровода должны быть укомплектованы рукавами и стволами. Пожарный рукав должен быть присоединен к крану и стволу. Необходимо не реже одного раза в 6 месяцев производить перемотку льняных рукавов на новую складку.
На дверце шкафа пожарного крана должны быть указаны буквенный индекс ПК, порядковый номер пожарного крана, номер телефона ближайшей пожарной части.
Первичные средства пожаротушения.
Помещения, оборудованные автоматическими стационарными установками пожаротушения обеспечиваются огнетушителями на 50% исходя из их расчетного количества.
Расстояние от возможного очага пожара до места размещения огнетушителя не должно превышать 20 метров.
Помещения, здания и сооружения необходимо обеспечивать первичными средствами пожаротушения в соответствии с приложением № 3 ППБ 01-03
Огнетушители, допущенные к введению в эксплуатацию должны иметь:
- учетные (инвентаризационные) номера по принятой на объекте системе нумерации;
- пломбы на устройствах ручного пуска;
- бирки и маркировочные надписи;
- красную сигнальную окраску.
Химические пенные огнетушители, а также другие огнетушители приводимые в действие путем их переворачивания запрещается вводить в эксплуатацию. Они должны быть исключены из инструкций и рекомендаций по пожарной безопасности и заменены на более эффективные огнетушители, а именно углекислотные либо порошковые.
ДЕЙСТВИЯ ПРИ ПОЖАРЕ
9.1. В соответствии с правилами пожарной безопасности каждый гражданин при обнаружении пожара обязан:
9.1.1. повернуть ручку ближайшего ручного пожарного извещателя, установленных в коридорах и холлах поэтажно;
9.1.2. немедленно сообщить по телефону - 01 - в пожарную охрану: «Пожар в здании предприятия ______________ по адресу _____________, номер телефона с которого передано сообщение __________, свою фамилию;
9.1.3. сообщить о пожаре директору предприятия;
9.1.4. оповестить персонал предприятия о пожаре;
9.1.5. принять по возможности меры по эвакуации людей , тушению пожара и сохранности материальных ценностей;
9.2. Директор предприятия, прибывший к месту пожара до прибытия подразделений пожарной охраны, обязан:
9.2.1. продублировать сообщение о пожаре в пожарную охрану;
9.2.2. сообщить о пожаре вышестоящему руководству;
9.2.3. в случае угрозы жизни людей немедленно организовать их спасение, используя для этого имеющиеся силы и средства; 9.2.4. отключить электроэнергию;
9.2.5. прекратить все работы в здании, кроме работ, связанных с мероприятиями по ликвидации пожара;
9.2.6. удалить за пределы опасной зоны всех работников, не участвующих в тушении пожара;
9.2.7. обеспечить соблюдение требований безопасности работниками, принимающими участие в тушении пожара;
9.2.8. одновременно с тушением пожара организовать эвакуацию и защиту материальных ценностей;
9.2.9. организовать встречу подразделений пожарной охраны и оказать помощь в выборе кратчайшего пути для подъезда к очагу пожара;
9.2.10. сообщить подразделениям пожарной охраны сведения, необходимые для обеспечения безопасности личного состава.
9.3. По каждому происшедшему пожару директор предприятия обязан выяснить все обстоятельства и причины, вследствие чего произошел пожар, осуществить необходимые организационно-технические мероприятия, направленные по недопущению пожаров в дальнейшем.
МЕСТА КУРЕНИЯ, ПРИМЕНЕНИЯ ОТКРЫТОГО ОГНЯ И ПРОВЕДЕНИЯ ОГНЕВЫХ РАБОТ
5.1. Приказом директора предприятия должны быть определены места для курения, которые обеспечиваются знаками пожарной безопасности (согласно НПБ 160-97), урнами, первичными средствами пожаротушения.
5.2. Применение открытого огня в помещениях предприятия ____________ запрещено.
5.3. Требования к проведению огневых работ.
5.3.1. Огневые и другие пожароопасные работы в помещениях предприятия и на прилегающей территории проводятся в соответствии с «Инструкцией о мерах пожарной безопасности при организации и проведении огневых работ», утвержденной постановлением главы города №944 от 10.07.98г., с оформлением «Наряда-допуска на выполнение работ повышенной опасности».
Лицо, ответственное за пожарную безопасность помещения (директор предприятия или лицо, назначенное приказом) несет ответственность:
- за подготовку рабочего места, в том числе оборудования, к проведению огневых работ и указанных в «Наряде-допуске» мер пожарной безопасности;
- за достаточность информации о пожарной опасности технологического процесса и материалов, находящихся в помещении в зоне проведения работ, разъясненной лицу, ответственному за проведение огневых работ при его инструктаже;
- за организацию своевременного отключения лучей автоматической пожарной сигнализации в зоне проведения огневых работ, на период их проведения, их немедленное включение в работу после окончания работ соответственно своевременно известив об отключении и включении пункт наблюдения;
- за усиление противопожарного надзора и осуществление дополнительных мер пожарной безопасности на период отключения пожарной сигнализации;
- за организацию необходимого противопожарного наблюдения за местом проведения огневых работ после их окончания, а также во время длительных перерывов в работе.
5.3.2. Организационные мероприятия, обеспечивающие безопасное проведение огневых работ:
«Наряд-допуск...» оформляется ответственным лицом за проведение огневых работ в двух экземплярах, регистрируется в специальном журнале и передается лицу, ответственному за пожарную безопасность (директору предприятия).
Ответственный за пожарную безопасность осматривает место проведения огневых работ, определяет меры по обеспечению пожарной безопасности на месте проведения работ, вносит свои предложения в «Наряд-допуск...» и подписывает его. «Наряд-допуск...» дается только на одну рабочую смену. Если огневые работы проводятся на одном и том же месте несколько дней (но не более 5-ти дней текущей недели) администрация на каждую последующую смену после повторного осмотра места указанных работ подтверждает ранее выданный «Наряд-допуск..», о чем делает в нем соответствующую запись.
5.3.3. Ответственное лицо за пожарную безопасность (директор предприятия) за два дня до начала проведения огневых работ обязано телефонограммой поставить в известность пункт наблюдения о характере работ с точным адресом помещения и номера «Луча», произвести запись в журнале отключений и включений установки пожарной сигнализации с указанием времени начала и окончания огневых работ 5.3.4. Места проведения временных огневых работ необходимо обеспечивать соответствующими первичными средствами пожаротушения (углекислотные огнетушители, вода, песок, асбестовое полотно и пр.), которые можно наиболее эффективно использовать при тушении оборудования, материалов и конструкций, находящихся в зоне проведения огневых работ.
5.3.5. При проведении сварочных, газорезательных и паяльных работ ЗАПРЕЩАЕТСЯ:
- приступать к работе при неисправной и не прошедшей проверку (испытания) аппаратуре;
- производить сварку, резку и пайку свежеокрашенных конструкций или изделий до полного высыхания;
- пользоваться при огневых работах одеждой и рукавицами со следами масел;
- допускать к работе работников, не имеющих квалификационных удостоверений и талона по технике пожарной безопасности;
- допускать соприкосновение электрических проводов с баллонами со сжатыми, сжиженными и растворенными газами;
- одновременное проведение огневых работ при устройстве гидроизоляции и пароизляции на кровле, монтаже панелей с горючими и трудногоючими утеплителями, наклейке полов и отделке помещений с применением горючих лаков, клеев, мастик и др.горючих материалов.
Нормативные ссылки
В настоящем пособии использованы ссылки на следующие нормативные документы:
1. Федеральный закон «О пожарной безопасности» от.21.12.1993 г. №69-ФЗ.
2. Правила пожарной безопасности в Российской Федерации, ППБ-01-93**. Введены в действие приказом МВД России от 14.12.1993 г. №536 с изменениями и дополнениями, введенными в действие приказами МВД России от 22.07.1995 г. №282, от 10.12.1997 г. № 814, от 20.10.1999 г. №817.
3. ГОСТ 12.1.033-81. Пожарная безопасность. Термины и определения.
4. НПБ 201-96. Пожарная охрана предприятий. Общие требования.
5. НПБ 160-97. Цвета сигнальные. Знаки пожарной безопасности. Виды, размеры, общие технические требования.
6. Закон города Москвы «О пожарной безопасности» от 18.12.1996 г. № 34.
7. Постановление Правительства Москвы от 10.08.1999 г. №722 «О ходе реализации постановлений Правительства Москвы, распоряжений Мэра и Премьера Правительства Москвы по вопросам усиления пожарной безопасности».
8. Правила пожарной безопасности для города Москвы, утвержденные постановлением Правительства Москвы от 06.10.1998 г. № 755 с учетом изменений и дополнений, введенных в действие постановлением Правительства Москвы от 26.09.2000 г. № 760.
9. Методические рекомендации о порядке обучения мерам пожарной безопасности на предприятиях г.Москвы, утвержденные распоряжением Первого заместителя Премьера Правительства Москвы от 14.05.1997 г. №508-РЗП.
10. ГОСТ 12.0.004-90. Организация обучения безопасности труда. Общие положения.
11. Положение о пожарно-технических комиссиях, утвержденное постановлением Правительства Москвы от 10.08.1999 г.№722.
12. Положение о добровольных пожарных дружинах (командах), утвержденное постановлением Правительства Москвы от 10.08.1999 г. № 722.
13. НПБ 110-99. Перечень зданий, сооружений, помещений и оборудования, подлежащих защите автоматическими установками пожаротушения и автоматической пожарной сигнализацией.
14. НПБ 104-95. Проектирование систем оповещения людей о пожаре в зданиях и сооружениях.
15. СниП 2.04.05-91*.
Отопление, вентиляция и кондиционирование.
16. ГОСТ 12.4.009-83. Пожарная техника для защиты объектов. Основные виды. Размещение и обслуживание.
17. СниП 11-89-80*. Генеральные планы промышленных предприятий.
18. НПБ 101-95. Нормы проектирование объектов пожарной охраны.
19. НПБ 166-97. Пожарная техника. Огнетушители. Требования к эксплуатации.
20. Кодекс РСФСР об административных правонарушениях.
21. Уголовный кодекс Российской Федерации.
22. Нормативные документы, указанные в таблицах 1, 13 настоящего пособия.
Литература:
1. Рекомендации по применении огнезащитных материалов и составов для металлических конструкций./ЦНИИСК им. В.А.Кучеренко. – М., 1998.
2. Пособие по определению пределов огнестойкости конструкций, пределов распространения огня по конструкциям и групп возгораемости материалов./ ЦНИИСК им. В.А.Кучеренко. – М., 1982.
3. Пожарная безопасность: Учебное пособие. А.Н.Баратов, В.А.Пчелинцев – М., изд-во АСВ, 1997.
4. С.В.Собурь. Пожарная безопасность предприятия (Курс пожарно-технического минимума): Справочник. – М., Спецтехника, 1998.
5. С.В.Собурь. Огнезащита строительных материалов и конструкций: Справочник, - М.,Спецтехника, 1999 г.
Приложение 1
к.п. 2.1.3.5.
Приказ
(примерный вариант)
«__» _______ 200_ г. №______
г._______________
«О порядке обеспечения
пожарной безопасности
на предприятии»
В целях обеспечения пожарной безопасности на территориях, в зданиях, сооружениях, цехах, мастерских, складах, производственных участках и административных помещениях предприятия, -
П Р И К А З Ы В А Ю:
1. Назначить _____________Ф.И.О., должность____________ ответственным за пожарную безопасность предприятия.
Примечание к п.1 Ответственным, как правило, назначается один из заместителей руководителя предприятия или главный инженер.
2. Ответственными за пожарную безопасность филиалов, производственных участков, цехов, складов, мастерских, студий, административных помещений (и т.п.) назначить руководителей этих подразделений, а именно:
2.1. Филиал №1 - ________________________________________
2.2. Механосборочный цех - _______________________________
2.3. Склад №1 - _________________________________________
2.4. Склад материальный - ________________________________
2.5. Склад готовой продукции - ____________________________
2.6. Оздоровительный комплекс - __________________________
2.7. Сварочная мастерская - ______________________________
2.8. Студия ТВ - _________________________________________
2.9. Студия службы «Интернет» - __________________________
2.10. Радиостудия - ______________________________________
2.11. Бухгалтерия - ______________________________________
2.12. Отдел кадров - _____________________________________
2.13. Делопроизводство - _________________________________
2.14. Приемная дирекции - ________________________________
Примечание к п.2 Перечисляются все объекты и конкретно указываются фамилии, имена, отчества и должности лиц, ответственных за пожарную безопасность.
3. Руководителям структурных подразделений, указанных в п.2 настоящего приказа, своими внутренними распоряжениями (письменными, устными) назначить лиц, ответственных за пожарную безопасность каждого помещения, занимаемого подразделением.
В каждом помещении на видном месте разместить таблички с указанием фамилии лица, ответственного за пожарную безопасность данного помещения.
4. Ответственным за пожарную безопасность электроустановок предприятия назначить - ____________________________.
5. Ответственным за пожарную безопасность систем вентиляции и отопления предприятия назначить __________________.
6. Ответственным за эксплуатацию установок автоматических систем противопожарной защиты (автоматических систем: пожарной сигнализации, пожаротушения, оповещения людей о пожаре, противодымной защиты) назначить - _____________________________
7. Ответственным за эксплуатацию пожарного водоснабжения назначить - ___________________.
8. Ответственным за содержание пожарной техники и первичных средств пожаротушения назначить _________________.
Примечания: к п.п. 4-8.
1. Указываются конкретно фамилии, имена, отчества ответственных лиц.
2. В зависимости от специфики предприятия перечисляются и другие виды инженерного оборудования.
9. Утвердить (варианты: ввести в действие, подтвердить к исполнению) прилагаемые «Обязанности лиц, ответственных за пожарную безопасность».
10. Установить следующий противопожарный режим:
10.1. На предприятии ЗАПРЕЩАЕТСЯ:
10.1.1. Разводить на территории костры, сжигать производственные отходы, мусор и т.п.
10.1.2. Загромождать пути эвакуации, аварийные выходы, подъезды и подступы к пожарной технике, оборудованию, инвентарю, первичным средствам пожаротушения и источникам пожарного водоснабжения.
10.1.3. Использовать пожарную технику, оборудование, инвентарь не по прямому назначению, т.е. для хозяйственных нужд.
10.1.4. Держать открытыми входы на чердаки и в подвалы.
10.1.5. Оставлять по окончанию рабочего дня неубранными от горючих материалов, отходов производства, мусора цехи, мастерские и другие производственные и служебные помещения.
10.1.6. Оставлять без присмотра электрооборудование, электроприборы и токоприемники, кроме установок, приборов и устройств, которые по условиям технологического процесса производства и своему предназначению должны быть включены постоянно.
10.1.7. Производить уборку помещений с применением ЛВЖ и ГЖ.
10.1.8. Отогревание замерзших водопроводных, канализационных и др. труб открытым огнем.
10.1.9. Пользоваться различными переносными электронагревательными приборами (электрокалориферы, электрокипятильники, электрочайники, электроутюги и т.п.) в местах, не согласованных с пожарной охраной предприятия.
10.1.10. Хранить ЛВЖ и ГЖ, а также другие пожароопасные материалы в местах, не согласованных с пожарной охраной предприятия.
10.1.11. Производить всякого рода перепланировку помещений и возведение строений без согласования с пожарной охраной предприятия.
10.2. Курение на территории, в зданиях и помещениях разрешается только в установленных местах, обозначенных знаком «Место курения» (3.4.26 НПБ 160-97 [5]), оборудованных негорючими ограждающими конструкциями, негорючими урнами с водой для окурков, первичными средствами пожаротушения.
Курение в других местах, в т.ч. в служебных кабинетах ЗАПРЕЩАЕТСЯ.
10.3. Временные огневые и другие пожароопасные работы с применением открытого огня (электрогазосварка, резка, пайка и т.п.) проводить только с оформлением в установленном порядке наряда- допуска на проведение работ повышенной опасности (прил. 21 к Пособию).
10.4. В каждом подразделении должны быть оборудованы и установлены на видном месте стенды «Пожарная безопасность», содержащие: Приказ по предприятию «О порядке обеспечения пожарной безопасности», Инструкции (общеобъектовые, цеховые) о мерах пожарной безопасности, распоряжение по подразделению о назначении лиц, ответственных за пожарную безопасность в помещениях подразделения, состав добровольной пожарной дружины (ДПД) и обязанности членов ДПД, план эвакуации людей в случае пожара и инструкция действий персонала подразделения при пожаре и эвакуации людей, плакаты и др. наглядная агитация по вопросам пожарной безопасности.
Примечание к п.10. В зависимости от специфики предприятия в приказ могут быть включены и другие мероприятия режимного характера.
11. Обучение мерам пожарной безопасности ИТР, рабочих и служащих осуществлять в порядке, установленном «Положением об обучении мерам пожарной безопасности», введенным в действие приказом по предприятию от «__» _______ 200_ г. № ___.
12. Работу пожарно-технической комиссии (ПТК) предприятия организовать в соответствии с «Положением о пожарно-технической комиссии», введенным в действие приказом по предприятию от «__» _______ 200_ г. № ___.
13. Организацию и деятельность добровольных пожарных дружин (ДПД) осуществлять в соответствии с «Положением о добровольных пожарных дружинах», введенным в действие приказом по предприятию от «__» _______ 200_ г. № ___.
14. Каждому работнику предприятия при обнаружении признаков пожара (запаха гари, дыма, пламени и т.п.) немедленно сообщить в пожарную охрану по тел. ___________, принять меры к оповещению людей, их эвакуации и тушению пожара имеющимися средствами пожаротушения с соблюдением мер безопасности.
15. Приказ объявить руководству предприятия, руководителям структурных подразделений, лицам, назначенным ответственными за пожарную безопасность и эксплуатацию пожарной техники, оборудования и средств пожаротушения под роспись, а остальному персоналу предприятия – в ходе проведения противопожарных инструктажей.
В каждом подразделении копию приказа разместить на стенде «Пожарная безопасность».
16. Контроль за выполнение приказа возложить на заместителя генерального директора __________________________________.
Генеральный директор ___________________ _____________________
Приложение 2.
к п. 2.1.3.5.
"УТВЕРЖДАЮ"
Руководитель предприятия
_______________________
"__" _______ 200_г.
Обязанности
лиц, ответственных за пожарную безопасность
(примерный вариант)
Лица предприятия, в установленном порядке назначенные ответственными за пожарную безопасность, -
ОБЯЗАНЫ:
1. Знать в объеме видов деятельности предприятия (подразделения) пожарную опасность помещений, зданий, сооружений, технологических установок и инженерного оборудования, технологического процесса производства и применяемых в производстве веществ и материалов.
2. Обеспечить выполнение на вверенных участках работы установленного противопожарного режима, требований государственных и отраслевых стандартов, норм и правил, а также инструкций о мерах пожарной безопасности, действующих на предприятии.
3. Разработать и утвердить у руководителя предприятия инструкцию о мерах пожарной безопасности на вверенном объекте (для каждого взрывопожароопасного и пожароопасного объекта).
4. Контролировать выполнение работниками предприятия (подразделения) требований, действующих на предприятии, инструкций о мерах пожарной безопасности.
К лицам, нарушающим (не выполняющим) требования инструкций, в установленном порядке принимать меры дисциплинарного воздействия.
5. Проводить работу по оснащению предприятия (подразделения) пожарной техникой и оборудованием, установками систем автоматической противопожарной защиты, первичными средствами пожаротушения.
Обеспечить их правильное содержание и применение, постоянную готовность к действию.
6. Следить за исправностью средств сигнализации, телефонной связи, систем отопления, вентиляции, электроустановок, газовых сетей и приборов, аппаратов и устройств, работающих под давлением (котлов, компрессорных установок, баллонов), заземляющих и зануляющих устройств технологического оборудования и производственного инвентаря, инструмента, содержания аварийных выходов и путей эвакуации, проездов и подступов к пожарному оборудованию, источников пожарного водоснабжения и принимать меры к устранению обнаруженных неисправностей.
7. Определить и обеспечить порядок противопожарного осмотра помещений перед их закрытием по окончанию работы.
8. Следить за тем, чтобы после окончания работы проводилась уборка рабочих мест и помещений от горючих отходов производства, полуфабрикатов, мусора и т.п., отключались электроприемники, за исключением дежурного освещения, источников электропитания автоматических установок систем противопожарной защиты, а также установок, которые по условиям технологического процесса производства должны работать круглосуточно.
9. Не допускать на вверенном участке проведения огнеопасных работ с применением открытого огня (электрогазосварочных и др.) без оформления в установленном порядке наряда-допуска на выполнение работ повышенной опасности.
10. Обеспечивать и проверять наличие плакатов, инструкций, знаков пожарной безопасности и табличек:
«Ответственный за пожарную безопасность тов. ___________________»
«О пожаре звонить по тел. _________________»
«Запрещается курить»,
«Место курения»,
«Запрещается пользоваться открытым огнем и курить»,
«Категория помещения по взрывопожарной и пожарной опасности _______________»,
«Класс помещения по ПУЭ ______________».
11. Организовать и проводить в установленном порядке обучение работников предприятия (подразделения) мерам пожарной безопасности.
Не допускать к исполнению служебных обязанностей работников предприятия (подразделения), не прошедших вводный и первичный на рабочем месте противопожарные инструктажи.
12. Проводить противопожарную пропаганду.
13. Содействовать созданию и деятельности на предприятии ( в подразделении) добровольных пожарных дружин и контролировать их работу.
14. Оказывать содействие в работе пожарно-технической комиссии предприятия.
15. Обеспечивать доступ должностным лицам государственной противопожарной службы, работникам пожарной охраны и членам пожарно-технической комиссии предприятия при осуществлении ими служебных обязанностей на территории, в здании, сооружении, помещения и иные объекты предприятия (подразделения).
16. Безусловно выполнять требования (предписания, предложения, акты, справки, рекомендации и т.п., как письменные, так и устные) должностных лиц государственной противопожарной службы, работников пожарной охраны и членов пожарно-технической комиссии предприятия в части, касающейся обеспечения пожарной безопасности.
17. В случае пожара на предприятии (в подразделении) в установленном порядке прибывать к месту пожара, принимать участие в его тушении и установлении причины пожара.
Заместитель генерального директора
_____________________ __________________________
«__» ________________200_ г.
Приложение 3.
к п. 2.1.4.2.
ТРЕБОВАНИЯ К ИНСТРУКЦИЯМ
О МЕРАХ ПОЖАРНОЙ БЕЗОПАСНОСТИ
Инструкции о мерах пожарной безопасности должны разрабатываться на основе правил пожарной безопасности, нормативно-технических, нормативных и других документов, содержащих требования пожарной безопасности, исходя из специфики пожарной опасности зданий, сооружений, технологических процессов, технологического и производственного оборудования.
В инструкциях о мерах пожарной безопасности необходимо отражать следующие вопросы:
порядок содержания территории, зданий и помещений, в том числе эвакуационных путей;
мероприятия по обеспечению пожарной безопасности при проведении технологических процессов, эксплуатации оборудования, производстве пожароопасных работ;
порядок и нормы хранения и транспортировки взрывопожароопасных веществ и пожароопасных веществ и материалов;
места курения, применения открытого огня и проведения огневых работ;
порядок сбора, хранения и удаления горючих веществ и материалов, содержания и хранения спецодежды;
предельные показания контрольно-измерительных приборов (манометры, термометры и др.), отклонения от которых могут вызвать пожар или взрыв;
обязанности и действия работников при пожаре, в том числе:
правила вызова пожарной охраны;
порядок аварийной остановки технологического оборудования;
порядок отключения вентиляции и электрооборудования;
правила применения средств пожаротушения и установок пожарной автоматики;
порядок эвакуации горючих веществ и материальных ценностей;
порядок осмотра и приведения в пожаровзрывобезопасное состояние всех помещений предприятия (подразделения).
СОГЛАСОВАНО УТВЕРЖДАЮ
__________________________ _____________________
(руководитель органа (руководитель предприятия)
__________________________________________ ____________________________
Государственной противопожарной службы)
«_____» __________________200__г. «_____» ______________200__г.
Инструкция
о мерах пожарной безопасности
на предприятиях ГТРК
(примерный вариант)
Настоящая Инструкция разработана в соответствии с Правилами пожарной безопасности в Российской Федерации (ППБ 01-03) и устанавливает общие противопожарные требования, обязательные для выполнения на объектах федерального государственного унитарного предприятия «Всероссийская Государственная Телевизионная и Радиовещательная Компания» (ВГТРК).
1. ОБЩИЕ ПОЛОЖЕНИЯ
1.1. Настоящая Инструкция является обязательной для всех служб и подразделений, входящих в структуру ВГТРК.
1.2. Ответственность за обеспечение пожарной безопасности в служебных помещениях, студиях, аппаратных, отдельных подразделениях, отделах, складах, мастерских и других производственных участках несут их руководители, назначенные приказом, или лица, исполняющие их обязанности.
1.3. Руководители служб и подразделений, входящих в структуру ВГТРК,
обязаны:
организовать изучение и обязательное выполнение требований настоящей Инструкции всеми инженерно-техническими и творческими работниками, служащими и рабочими;
обеспечить соблюдение на вверенных им участках работы установленного противопожарного режима;
следить за исправностью работы системы отопления и вентиляции, электроустановок, технологического оборудования и принимать немедленно меры к устранению обнаруженных неисправностей, могущих привести к пожару;
следить за тем, чтобы после окончания работы проводилась уборка рабочих мест и помещений, отключалась электросеть, за исключением дежурного освещения и электроустановок, которые по условиям технологического процесса производства должны работать круглосуточно;
знать пожароопасные и с повышенной опасностью участки на вверенном им объекте, какими средствами автоматического обнаружения и тушения пожаров оборудованы помещения, когда и каким способом производится проверка их исправности;
обеспечить занимаемые помещения необходимым числом знаков пожарной безопасности, предусмотренных НПБ 160-97 (Знаки безопасности. Цвета сигнальные), в том числе и табличками с указанием номера телефона пожарной охраны, а также противопожарными инструкциями. Инструкции о мерах пожарной безопасности на рабочих местах разрабатываются руководителями отделов, мастерских и производственных участков, согласовываются с местной пожарной охраной, утверждаются руководителем структурного подразделения. Инструкции изучаются с рабочими и служащими в системе производственного обучения и вывешиваются на видных местах;
обеспечить своевременное выполнение всех противопожарных мероприятий, предложенных Государственной противопожарной службой;
не допускать к работе лиц, не прошедших в установленном порядке первичный противопожарный инструктаж (проводится под роспись сотрудниками Государственной противопожарной службы), а также инструктаж о мерах пожарной безопасности непосредственно на рабочем месте.
1.4. Сотрудники ВГТРК обязаны
четко знать и строго выполнять все требования настоящей Инструкции и Инструкции о мерах пожарной безопасности на рабочем месте, а также требования противопожарных норм и правил. Не допускать действий, которые могут привести к пожару или загоранию.
1.5. Виновные в нарушении Правил пожарной безопасности, в зависимости от характера нарушений и последствий, несут дисциплинарную, административную или уголовную ответственность в установленном законом порядке.
2. ОСНОВНЫЕ ТРЕБОВАНИЯ ПОЖАРНОЙ БЕЗОПАСНОСТИ
2.1. Содержание территории
2.1.1. Ко всем зданиям должен быть обеспечен свободный доступ для проезда пожарной техники. Дороги, проезды, подъезды к зданиям и пожарным гидрантам, а также противопожарные разрывы между зданиями и сооружениями не должны использоваться для складирования материалов, оборудования и стоянки автотранспорта.
2.1.2. Территория объекта должна постоянно содержаться в чистоте, своевременно очищаться от горючих отходов, мусора, тары, сухой травы и листвы. Контейнеры для сбора мусора должны размещаться в безопасных местах и своевременно освобождаться. Запрещается оставлять на территории наполненные контейнеры на выходные и праздничные дни. На территории запрещается
разводить костры, пользоваться открытым огнем, курить (за исключением специально отведенных мест).
2.1.3. На территориях объектов ГТРК запрещается возводить сооружения, не имеющие отношения к производственной деятельности предприятия, а также иные постройки без учета требований противопожарных норм .
2.1.4. Расстановка автотранспортных средств на территории должна осуществляться согласно разработанной и утвержденной схеме, с нанесением разметки, с учетом соблюдения требуемых величин безопасных расстояний от зданий и между автотранспортом.
2.2. Содержание зданий, помещений
2.2.1. Все производственные, служебные, складские и вспомогательные здания и помещения должны постоянно содержаться в чистоте. Проходы, выходы, коридоры, тамбуры, лестницы, подступы к средствам пожаротушения и сигнализации не разрешается загромождать никакими предметами и оборудованием.
Все двери эвакуационных выходов должны свободно открываться в направлении выхода из здания. На случай возникновения пожара должна быть обеспечена возможность безопасной эвакуации людей, находящихся в здании.
С этой целью администрацией объектов должны быть разработаны и согласованы с органами ГПС планы эвакуации, а также проводиться регулярные тренировочные занятия по практической отработке эвакуации рабочих и служащих в безопасные зоны.
2.2.2. В лестничных клетках зданий запрещается устраивать рабочие, складские и иного назначения помещения, устраивать выходы из шахт грузовых подъемников, а также устанавливать оборудование, препятствующее передвижению людей. Под маршами лестничных клеток первого, цокольного и подвального этажей допускается размещать только узлы управления центрального отопления и водомерные узлы.
В подвальных помещениях и цокольных этажах зданий запрещается применение и хранение взрывчатых веществ, легковоспламеняющихся и горючих жидкостей, баллонов с газом под давлением, целлулоида, кинопленки, пластмасс, полимерных и других материалов, имеющих повышенную пожарную опасность.
В подвальных помещениях, выходы из которых не изолированы от общих лестничных клеток, запрещается размещать мастерские, кладовки и склады, осуществлять хранение, применение и обработку горючих материалов или изделий из них.
2.2.3. Отогревать замерзшие водопроводные, канализационные и другие трубы, а также оборудование открытым огнем категорически запрещается. Для этих целей следует использовать нагретый пар, песок или горячую воду.
2.2.4. Не разрешается
использовать чердачные помещения в производственных целях или для хранения материальных ценностей. Чердачные помещения должны быть постоянно закрыты на замок. Ключи от замков чердачных помещений должны храниться в определенном месте, доступном для получения их в любое время суток (у дежурного администратора).
2.2.5. Запрещается
производить перепланировку производственных и служебных помещений без разработки в установленном порядке проекта реконструкции.
При этом не должно
допускаться снижение пределов огнестойкости строительных конструкций и ухудшение условий эвакуации людей.
2.2.6. Системы противопожарной защиты, оповещения и управления эвакуацией людей при пожаре, а также системы дымоудаления во всех зданиях должны быть постоянно в исправном состоянии.
2.2.7. На производственных участках и в отделах, где применяются легковоспламеняющиеся и горючие жидкости (ЛВЖ и ГЖ), должна быть обеспечена централизованная транспортировка и раздача их на рабочие места. Для переноски ЛВЖ и ГЖ следует применять безопасную небьющуюся тару специальной конструкции.
2.2.8. Легковоспламеняющиеся жидкости необходимо хранить в небьющейся посуде с плотно притертыми пробками, а по окончании работ убирать в металлические ящики или сейфы. Этикетки с записанными нормами хранения следует закрепить на крышке ящика или сейфа.
2.2.9. Для помещений, где применяются легковоспламеняющиеся и горючие жидкости, должна быть разработана, согласована с Государственной противопожарной службой и вывешена Инструкция с указанием мест применения и хранения этих жидкостей, допускаемого количества их хранения на рабочем месте, которое не должно превышать сменной потребности.
2.2.10. Запрещается
устанавливать ящики с легковоспламеняющимися жидкостями у входов, выходов, на эвакуационных путях, около электроустановок и приборов отопления.
2.2.11. Использованные обтирочные материалы по мере накопления необходимо складывать в металлические ящики с плотно закрывающимися крышками и обозначенные соответствующими надписями. По окончании смены использованный обтирочный материал необходимо убирать из производственных помещений и отправлять с объекта в утилизацию.
2.2.12. В производственных, складских и административных зданиях ГТРК
запрещается:
курить в служебных кабинетах, в помещениях производственных участков, в коридорах и лестничных клетках (курение разрешается только в специально отведенных местах, оборудованных урнами с водой, выполненными из негорючих материалов, и обозначенных указательными знаками «Место для курения», по мере накопления урны должны регулярно освобождаться);
пользоваться электронагревательными приборами, не предусмотренными технологией производства (кипятильниками, чайниками, плитками, каминами и т.п.). В помещениях дежурного персонала допускается эксплуатация сертифицированных бытовых электронагревательных приборов, установленных на негорючие подставки, после оформления заявки-разрешения, согласованной с энергослужбой объекта. Определяется режим эксплуатации и назначается ответственное лицо;
устанавливать на производственное оборудование мебель, шкафы, сейфы и другие предметы;
убирать помещения с применением бензина, керосина и других легковоспламеняющихся и горючих жидкостей;
оставлять без присмотра включенные в электросеть оборудование и приборы, телевизоры, радиоприемники и оргтехнику.
2.2.13. Все помещения в зданиях должны иметь порядковые номера, а также надписи с указанием их принадлежности.
У входа в производственные и складские помещения, а также внутри помещений должны быть вывешены знаки безопасности, и таблички с надписями: "О пожаре звонить по телефону 01 или мест._____: а также таблички с указанием категории производства по взрывопожарной и пожарной опасности и класса помещения по Правилам устройства электроустановок (ПУЭ).
2.2.14. По окончании работы, перед закрытием все помещения должны подвергаться противопожарному осмотру ответственными лицами. Горючий мусор должен быть удален, все электроприборы – обесточены, за исключением электрооборудования, работающего по непрерывному режиму. Окна и форточки должны быть закрыты.
В пожароопасных помещениях по окончании рабочего дня, перед их закрытием, должны ежедневно производиться противопожарные осмотры. Все выявленные нарушения должны быть устранены на месте. Результаты осмотров заносятся в специальный журнал.
2.3. Электроустановки
2.3.1. Электрическая сеть и электрооборудование, используемые на объектах ВГТРК, должны отвечать требованиям действующих Правил устройства электроустановок (ПУЭ), Правил технической эксплуатации электроустановок потребителей и Правил техники безопасности при эксплуатации электроустановок потребителей (ПТЭ и ПТБ).
2.3.2. Ответственность за техническое состояние, исправность и соблюдение требований пожарной безопасности при эксплуатации электрических сетей и электрооборудования несет главный инженер и другие должностные лица, назначенные приказом по предприятию.
2.3.3. Эксплуатационный и противопожарный режим работы электрооборудования должен определяться рабочими инструкциями. В этих инструкциях должны быть предусмотрены меры пожарной безопасности, а также определен порядок действий обслуживающего персонала при возникновении пожара или аварии.
2.3.4. Лица, ответственные за состояние электроустановок
обязаны:
обеспечить организацию и своевременное проведение профилактических осмотров и планово-предупредительных ремонтов электрооборудования, аппаратуры и электросети, защитного заземления, а также своевременное выявление и устранение нарушений Правил технической эксплуатации электроустановок потребителей и Правил техники безопасности при эксплуатации электроустановок потребителей, которые могут привести к пожарам и загораниям;
систематически контролировать состояние аппаратов защиты от коротких замыканий, перегрузок, внутренних и атмосферных перенапряжений, а также других ненормальных режимов работы;
следить за исправностью специальных установок и средств, предназначенных для ликвидации загораний и пожаров в электроустановках и кабельных помещениях, а также надежностью заземления корпусов электрооборудования;
организовать совместно обучение и инструктаж дежурного персонала по вопросам пожарной безопасности при эксплуатации электроустановок;
участвовать в расследовании случаев пожаров и загораний от электроустановок, разрабатывать и осуществлять меры по их предупреждению.
2.3.5. Дежурный электрик (сменный электромонтер) обязан производить плановые профилактические осмотры электрооборудования, проверять наличие и исправность аппаратов защиты и принимать немедленные меры к устранению нарушений, которые могут привести к пожарам и загораниям. Результаты осмотров электроустановок, обнаруженные неисправности и принятые меры фиксируются в оперативном журнале.
2.3.6. Проверка изоляции кабелей, проводов, надежности соединений, защитного заземления, режима работы электродвигателей должна производиться электриками, как наружным осмотром, так и с помощью приборов. Замер сопротивления защитного заземления и изоляции проводов должен производиться в сроки, установленные ПТЭ и ПТБ.
2.3.7. Устройство и эксплуатация электросетей-времянок не допускаются. Исключением могут быть временные иллюминационные установки и электропроводки, питающие места производства строительных и временных ремонтно-монтажных работ.
2.3.8. В производственных и складских помещениях, в которых находятся бумага, ткань, кинопленка, декорации и другие горючие материалы, а также изделия в сгораемой упаковке, электрические светильники должны иметь закрытое или защищенное исполнение (со стеклянными колпаками).
2.3.9. При эксплуатации электроустановок
запрещается:
использовать радиотелевизионную аппаратуру, электродвигатели и другое электрооборудование, поверхностный нагрев которых при работе превышает температуру окружающего воздуха более чем на 40 град.С (если к этим установкам не предъявляется иных требований);
использовать кабели и провода с поврежденной изоляцией и изоляцией, потерявшей в процессе эксплуатации защитные электроизоляционные свойства;
пользоваться электронагревательными приборами, в том числе и электропаяльниками без огнестойких подставок, а также оставлять их длительное время включенными в сеть без присмотра;
оставлять под напряжением электрические провода и кабели с неизолированными концами;
пользоваться поврежденными розетками, ответвительными и соединительными коробками, рубильниками и другими неисправными электроустановочными изделиями;
применять для целей отопления помещений самодельные электронагревательные приборы или электрические лампы накаливания.
2.3.10. Неисправности в электросетях и электроаппаратуре, которые могут вызвать искрение, короткое замыкание, сверхдопустимый нагрев горючей изоляции кабелей и проводов, должны немедленно устраняться дежурным персоналом, неисправную электросеть следует отключать до приведения ее в пожаробезопасное состояние.
2.4. Отопление и вентиляция
2.4.1. Ответственность за техническое состояние, исправность и соблюдение требований пожарной безопасности при эксплуатации систем отопления и вентиляционных систем несет главный инженер и другие должностные лица, назначенные приказом по предприятию.
2.4.2. Эксплуатационный и противопожарный режим работы системы вентиляции должен определяться рабочими инструкциями. В этих инструкциях должны быть предусмотрены (применительно к условиям производства) меры пожарной безопасности, сроки очистки воздуховодов, фильтров, огнезадерживающих клапанов и другого оборудования, а также определен порядок действий обслуживающего персонала при возникновении пожара или аварии.
2.4.3. Дежурный персонал, осуществляющий надзор за вентиляционными установками и системами отопления, обязан проводить плановые профилактические осмотры отопительных систем, вентиляторов, воздуховодов, огнезадерживающих приспособлений, камер орошения, заземляющих устройств и принимать меры к устранению любых неисправностей или нарушений режима их работы, могущих послужить причиной возникновения или распространения пожара.
2.4.4. Вентиляционные камеры, циклоны, фильтры, воздуховоды должны
своевременно очищаться от горючих пылей и отходов производства. Проверка, профилактический осмотр и очистка вентиляционного оборудования должны производиться по графику, утвержденному руководителем службы. Результаты осмотров обязательно вносятся в специальный журнал.
2.4.5. Хранение в вентиляционных камерах какого-либо оборудования и материалов категорически запрещается. Вентиляционные камеры должны
быть постоянно закрыты на замок, на дверях выполняется надпись с указанием места хранения ключей и номера телефона. Вход посторонним лицам в них запрещен.
2.4.6. В процессе эксплуатации систем вентиляции необходимо
наблюдать за тем, чтобы в местах забора чистого воздуха было исключено
появление газов и паров, а также искр и открытого огня. Стоянка автотранспорта в этих местах не допускается.
2.4.7. В случае возникновения пожара вентиляционную систему необходимо немедленно выключить.
2.4.8. Места установки вентиляционного оборудования, требующего систематического ухода и обслуживания, должны быть постоянно освещены.
2.4.9. При эксплуатации вентиляционных установок
запрещается:
производить проверку эффективности их работы с помощью открытого огня;
без ведома и разрешения лица, ответственного за состояние вентиляционных установок, вносить какие-либо изменения, которые могут нарушить правильную работу вентиляционной системы (присоединять дополнительное оборудование, снимать или заменять отдельные элементы установок, электродвигатели, вентиляторы и пр.).
2.5. Автоматические телефонные станции (АТС)
2.5.1. Категорически запрещается курить, а также готовить и принимать пищу во всех технических помещениях АТС.
2.5.2. Рабочие места административного и технического персонала АТС не должны находиться в автоматном зале.
2.5.3. Запрещается чистка бензином оборудования и приборов в автоматном зале АТС.
2.5.4. Входные отверстия для прокладки кабеля должны быть герметизированы материалом с огнестойкостью не ниже стен и перекрытий.
2.5.5. Электролампы в автоматном зале и кроссе должны защищаться стеклянными колпаками.
3. ТРЕБОВАНИЯ ПОЖАРНОЙ БЕЗОПАСНОСТИ ДЛЯ ОСНОВНЫХ ПРОИЗВОДСТВЕННЫХ, ВСПОМОГАТЕЛЬНЫХ И СКЛАДСКИХ ЗДАНИЙ И ПОМЕЩЕНИЙ ПРЕДПРИЯТИЯ
3.1. Требования к технологическому оборудованию телевидения, кинопроизводства и радиовещания
3.1.1. С обслуживающим персоналом должны быть изучены характеристики пожарной опасности применяемых веществ и материалов. Применять в производственных процессах и хранить вещества и материалы с неизученными параметрами по пожарной и взрывной опасности, а также вещества и материалы, не имеющие сертификатов соответствия Российским стандартам, запрещается.
3.1.2. Запрещается выполнять производственные операции на технологическом оборудовании и станках с неисправностями, которые могут привести к загораниям и пожарам, а также при отключенных приборах, по которым контролируются режимы работы оборудования.
3.1.3. Все технологическое оборудование, находящееся в эксплуатации, должно
иметь технические паспорта. Работа технологического оборудования и его нагрузка должны соответствовать требованиям паспортных данных и технологического регламента.
3.1.4. Температура поверхности оборудования во время работы не должна превышать температуру окружающего воздуха более чем на 45 град.С (если к этим установкам не предъявляется иных требований).
3.1.8. Технологическое оборудование и станки должны проходить текущий и капитальный ремонт в соответствии с техническими условиями и в сроки, определяемые графиком, утвержденным главным инженером.
3.1.9. В пожароопасных зонах и на оборудовании, связанных с опасностью взрыва или воспламенения, необходимо устанавливать знаки безопасности по НПБ 160-97 (Знаки безопасности. Цвета сигнальные). Все работающие должны быть ознакомлены со значением таких знаков.
ПОМЕЩЕНИЯ АППАРАТНО-СТУДИЙНОГО КОМПЛЕКСА ТЕЛЕВИДЕНИЯ
3.2. Телевизионные студии
3.2.1. Каждый выход из студии должен иметь освещенную или светящуюся надпись "выход" или "запасный выход" - на фоне зеленого цвета.
3.2.2. Для обеспечения контроля за соблюдением противопожарного режима во время передач или репетиций необходимо назначить ответственных лиц по студии и аппаратным.
3.2.3. Курение в павильонах, применение открытого огня (факелы, свечи, канделябры и т.п.), дуговых прожекторов, а также производство выстрелов, фейерверков и огневых эффектов категорически запрещается. Использование при съемках огневых эффектов допускается в исключительных случаях, при наличии письменного разрешения пожарной охраны и в присутствии ее представителей, при этом имитация выстрелов и взрывов должна производиться при помощи специальных приборов, гарантирующих полную пожарную безопасность. Сцены, где по ходу действия актер должен курить, должны быть согласованы.
3.2.4. Все горючие декорации, драпировки, применяемые в телевизионных студиях, должны подвергаться обработке огнезащитным составом, о чем проставляется штамп организации или учреждения, выполнявшего эту работу, с указанием даты проведения пропитки.
3.2.5. Временные места хранения декорации в павильонах должны быть согласованы с Отделом противопожарной безопасности. Прочие декорации должны храниться на специальных складах (сейфах, кладовых). По окончании съемок декорации из студии должны быть убраны.
3.2.6. Нахождение около действующих электрощитов всякого рода посторонних предметов не допускается.
3.2.7. Подвесные и наклонные светильники, а также агрегаты нижнего света должны быть защищены металлическими или стеклотканевыми сетками, устанавливаемыми на открытую часть светильника.
3.2.8. Категорически запрещается загромождать чем-либо проходы, выходы и подступы к оборудованию, средствам пожаротушения, связи и электрическим щитам.
3.2.9. Сооружение и установка декораций должна производиться согласно разработанной и согласованной схемы размещения, так, чтобы не допускать загромождения проходов и выходов, подступов к средствам пожаротушения и электрооборудованию. Величина ширины свободного прохода между отдельными декорациями или декорацией и стеной павильона должна быть не менее 1,5 м.
3.2.10. Установка декораций в павильоне производится с отступлением от стен и распределительных электроустановок не менее чем на 1,5м, считая от нижней части откоса. Против ворот и от края их в каждую из сторон должен оставаться проход не менее 3 м.
3.2.11. Все операции по подключению осветительной аппаратуры и другого электрооборудования к электрораспределительным щиткам должны
производиться только лицами, допущенными к этой работе.
3.2.12. Все переносные провода и кабели, служащие для подключения осветительных приборов и другого оборудования, должны прокладываться с таким расчетом, чтобы исключить их повреждение. А также они не должны
препятствовать эвакуации.
3.2.13. Ежедневно до начала работы необходимо проверять состояние изоляции корпусов всех передвижных светильников, светильники с пониженной изоляцией корпуса должны немедленно заменяться.
3.2.14. В телестудиях необходимо выполнять следующие общие требования, контроль за соблюдением которых во время передачи, записей или трактовых репетиций возлагается на режиссера творческой бригады, а при отсутствии загрузки студии - на начальника смены соответствующего подразделения:
не допускать присутствия людей, не имеющих отношения к постановке;
не устанавливать какие-либо предохранительные и распределительные щитки открытого типа;
не применять в прожекторах в качестве фильтров целлофан и другие горючие материалы, а цветовые фильтры из негорючих материалов должны быть надежно закреплены в специальных металлических держателях;
не применять временную электропроводку;
не закрывать во время передачи на запор входные и выходные двери;
не оставлять по окончании работы под напряжением силовую и осветительную электросеть;
не загромождать проходы к дверям и подступы к средствам пожаротушения;
не производить какие-либо ремонтные работы без ведома администрации предприятия и Отдела обеспечения пожарной безопасности.
3.2.15. Эксплуатация всякого рода приборов сценического оформления телевизионных передач (моторов, вентиляторов, электросирен, электрозвонков с понижающими трасформаторами и т.п.) допускается только после осмотра и проверки их перед использованием электриком.
3.3. Блок видеозаписи
3.3.1. В помещении аппаратной видеозаписи допускается хранение видеоленты не более
10 кассет на каждый видеомагнитофон. Видеолента должна храниться в шкафу или на несгораемом стеллаже в заводской упаковке (пластмассовых кассетах).
3.3.2. Запрещается в помещениях аппаратных хранить одежду и запасное оборудование.
3.3.3. Необходимо 1 раз в квартал очищать от пыли все блоки видеомагнитофонов, продувая их воздухом, а также кабельные каналы и межпольное пространство.
3.3.4. Начальник участка видеозаписи перед началом профилактических работ с использованием легковоспламеняющихся жидкостей обязан провести с работниками цеха инструктаж и лично руководить работами.
3.3.5. Курить, применять электронагревательные приборы, включать и выключать электросеть и оборудование во время работы с легковоспламеняющимися жидкостями категорически запрещается.
3.3.6. Запрещается оставлять без наблюдения включенную в сеть радиоэлектронную аппаратуру, используемую для контроля и настройки видеомагнитофонов.
3.4. Передвижные технические средства телевидения и радиовещания
3.4.1. Передвижные технические средства телевидения и радиовещания (ПТС, ПВС, автозвукопередвижки, передвижные электростанции ПЭС) укомплектовываются
не менее чем двумя углекислотными огнетушителями, один из которых устанавливается в кабине водителя, а второй - в салоне с оборудованием.
3.4.2. При установке передвижных технических средств возле объектов, из которых ведется телепередача, видеозапись, радиопередача,
необходимо:
устанавливать передвижные технические средства так, чтобы в случае возникновения пожара можно было без дополнительного маневрирования вывести их из опасной зоны;
положение ПТС надежно зафиксировать ручным тормозом и установить под колеса упоры ("башмаки"). Зажигание при этом должно быть выключено;
обеспечить надежное подключение силовой сети к распределительному щитку ПТС, исключающее нагревание контактов и искрение.
Подключение передвижных устройств к сети электропитания должно осуществляться только электриком предприятия, в ведении которого находится распределительное устройство.
После подключения силового питания к ПТС запрещается производить дозаправку их топливом и маслом.
3.4.3. Перед выездом техническое состояние ПТС должно быть проверено должностным лицом, ответственным за техническое состояние автотранспорта предприятия или организации, о чем делается отметка в путевом листе.
3.4.4. Категорически запрещается
выезд передвижных технических средств при:
наличии течи бензина, масла, антифриза через неплотности соединений в системах питания и газораспределения;
искрообразовании в проводах и зажимах, повреждении изоляции проводов электрооборудования.
3.4.5. Для предотвращения возникновения пожара при работе на выезде
запрещается:
допускать скопление на двигателе и его картере грязи, смешанной с топливом и маслом;
оставлять в кабине водителя и салоне загрязненные маслом и бензином обтирочные материалы (тряпки, концы, ветошь);
заливать в карбюратор бензин для запуска двигателя;
курить в салоне и в непосредственной близости от приборов питания двигателя;
перевозить в салоне легковоспламеняющиеся жидкости и другие горючие материалы;
пользоваться открытым огнем при определении и устранении неисправности в оборудовании.
3.5. Склады легковоспламеняющихся (ЛВЖ) и горючих жидкостей (ГЖ)
3.5.1. На территории склада ЛВЖ и ГЖ
категорически запрещается:
въезжать автомобилям, тракторам и другому механизированному транспорту, не оборудованному специальными искрогасителями, а также средствами тушения пожара;
курить, а также применять открытый огонь для освещения и отогревания замерзших или застывших нефтепродуктов, частей запорной арматуры, трубопроводов и т.п. Отогревать их следует только паром, горячей водой или нагретым песком.
3.5.2. Инструмент, применяемый во время операций слива и налива, должен быть изготовлен из металла, не дающего искр при ударах.
3.5.3. Для местного освещения во время сливо-наливных операций необходимо применять аккумуляторные фонари во взрывобезопасном исполнении.
4. ТРАНСПОРТНОЕ УПРАВЛЕНИЕ
4.1. Автомобили в гараже, в подземной автостоянке, а также на специальных площадках, на внутренних и прилегающим к зданиям территориях должны
расставляться в соответствии с требованиями, предусмотренными нормами для предприятий по обслуживанию автомобилей.
4.2. В гараже и в подземной стоянке хранение и эвакуация автомобилей при пожаре должна осуществляться по разработанному и утвержденному специальному плану расстановки автомобилей с описанием очередности и порядка эвакуации. Ключи от замков зажигания припаркованных автомобилей должны
быть промаркированы и хранятся у дежурного механика на специальном стенде.
4.3. Места расстановки автомобилей должны быть обеспечены буксирными тросами или штангами из расчета 1 трос (штанга) на 10 автомобилей.
4.4. В гараже, в подземной не разрешается производить кузнечные, термические, сварочные, малярные, деревоотделочные работы.
Эти работы должны производиться в соответствующих мастерских, размещенных в безопасных помещениях. Промывку деталей с использованием легковоспламеняющихся жидкостей производить запрещается. Для этих целей необходимо использовать синтетические моющие средства или пожаробезопасные растворы и препараты.
4.5. В помещениях, предназначенных для стоянки и ремонта автомобилей, а также на стоянках автомобилей под навесами и открытых площадках
запрещается:
устанавливать автомобили в количествах, превышающих норму, нарушать способ их расстановки, уменьшать расстояние между автомобилями, а также между автомобилями и элементами зданий;
держать автомобили с открытой горловиной бензобаков, а также при наличии течи горючего;
хранить горючее (бензин, дизельное топливо, баллоны с газом), за исключением топлива в баках и газа в баллонах, смонтированных на автомобилях;
оставлять на местах стоянки груженые автомобили;
хранить тару из-под легковоспламеняющихся и горючих жидкостей;
загромождать выездные ворота и проезды.
4.6. В помещениях для ремонта автомобилей и в подсобных помещениях не допускается производить капитальный ремонт автомобилей с баками, наполненными горючим (а у газовых автомобилей - при заполнении газом баллонов), и картерами, заполненными маслом.
4.7. В помещениях для хранения автомобилей
не допускается:
подогревать двигатели открытым огнем (костры, факелы, паяльные лампы), а также пользоваться открытыми источниками огня для освещения во время техосмотра, проведения ремонтных и других работ;
оставлять в автомобиле промасленные обтирочные концы и спецодежду по окончании работ;
оставлять автомобиль с включенным зажиганием;
поручать техническое обслуживание и управление автомобилем людям, не имеющим соответствующей квалификации.
5. ТРЕБОВАНИЯ ПОЖАРНОЙ БЕЗОПАСНОСТИ К СТРОИТЕЛЬНЫМ, РЕМОНТНО-МОНТАЖНЫМ И ОГНЕВЫМ РАБОТАМ
5.1. Ответственность за обеспечение мер пожарной безопасности при монтаже и ремонте производственного оборудования, проведения электросварочных и других огневых работ возлагается на руководителей структурных подразделений, производственных участков, начальников служб, в помещениях или на территории которых осуществляются указанные работы.
5.2. Руководители и инженерно-технические работники обязаны
выполнять сами и следить за строгим соблюдением подчиненным персоналом требований Правил пожарной безопасности.
5.3. Запрещается монтаж и ремонт производственного оборудования, без принятия мер, исключающих возможность возникновения пожара, а проведение огневых работ и других работ повышенной опасности – без оформления Наряда-допуска
и выполнения предложенных противопожарных мероприятий.
5.4. Должностное лицо, ответственное за пожарную безопасность здания, участка или помещения, обязано обеспечить тщательную проверку места проведения огневых или других пожароопасных временных работ в течение 3-5 ч после их окончания.
5.5. Во время проведения работ по наклейке покрытий полов и отделке помещений с применением горючих клеев и мастик запрещается присутствие людей в помещении, не связанных непосредственно с ремонтно-строительными работами. Запрещается также одновременное проведение в одном помещении электрогазосварки и отделочных работ с использованием мастик, красок, клеев и других горючих материалов.
5.6. После окончания ремонтно-монтажных работ запрещается оставлять в помещениях баллоны с кислородом и горючими газами. Такие баллоны надо направлять на место их постоянного хранения. По окончании работ электросварочное оборудование должно быть отключено и убрано.
6. ПРОТИВОПОЖАРНОЕ ВОДОСНАБЖЕНИЕ, ПОЖАРНАЯ ТЕХНИКА И СРЕДСТВА СВЯЗИ
6.1. Временное отключение участков водопроводной сети с установленными на них пожарными кранами, а также уменьшение напора в сети ниже потребного допускается
только с извещением об этом Государственной противопожарной службы и после выполнения компенсирующих мероприятий на период отключения.
6.2. За внутренней противопожарной водопроводной сетью, спринклерными и насосными установками должно осуществляться постоянное техническое наблюдение, обеспечивающее их исправное состояние и постоянную готовность к использованию в случае пожара или загорания.
6.3. В случае проведения ремонтных работ или отключения участков водопроводной сети, выхода из строя насосных станций, неисправности спринклерных установок необходимо немедленно уведомлять пожарную охрану.
Совместно с ГПС разработать и реализовать компенсирующие мероприятия, принять все необходимые меры по скорейшему устранению неисправностей.
6.4. Подъезды и подходы к пожарным гидрантам должны быть постоянно свободными. У места расположения пожарного гидранта должен
быть установлен световой или флуоресцентный указатель с нанесенными буквенным индексом ПГ, цифровыми значениями расстояния в метрах от указателя до гидранта и внутреннего диаметра трубопровода в миллиметрах.
6.5. Крышки люков колодцев пожарных подземных гидрантов должны
быть очищены от грязи, льда и снега, а стояк освобожден от воды. В зимнее время пожарные гидранты должны утепляться во избежание замерзания.
6.6. Пожарные гидранты, пожарные колонки и краны не реже чем через каждые шесть месяцев должны проверяться на водоотдачу путем пуска воды с регистрацией результатов проверки в специальном журнале. Исправность пожарных насосов проверяется ежемесячно.
6.7. В помещениях объектовых дежурных сантехников должны быть вывешены общие схемы противопожарного водоснабжения, схема спринклерной установки, а также инструкции по их эксплуатации. На каждой задвижке и пожарных насосах-повысителях должны быть указатели их назначения.
6.8. Пожарные краны внутреннего противопожарного водопровода необходимо оборудовать рукавами, стволами и рычагами-усилителями, заключить в шкафы, которые пломбируются. Пожарные рукава должны быть сухими, хорошо скатанными в двойную скатку или уложены «в гармошку» и присоединены к кранам и стволам.
На дверце шкафа пожарного крана должны быть указаны буквенный индекс ПК, порядковый номер пожарного крана, номер телефона ближайшей пожарной части.
6.9. Производственные, административные, складские и вспомогательные здания и помещения должны быть обеспечены необходимым количеством средств тушения пожаров, а также средствами сигнализации и связи для немедленного вызова пожарной помощи в случае возникновения пожара.
6.10. Ответственность за содержание и своевременный ремонт пожарной техники и оборудования, средств связи и пожаротушения несет главный инженер и должностные лица, назначенные приказом.
Огнетушители и средства вызова пожарной помощи, находящиеся в производственных помещениях и участках, мастерских и складах, передаются под ответственность (сохранность) начальников участков и других должностных лиц.
6.11. Использование пожарной техники для хозяйственных, производственных и прочих нужд, не связанных с обучением пожарных формирований и пожаротушением, категорически запрещается.
6.12. Для указания местонахождения вида пожарной техники и огнетушащего средства должны применяться указательные знаки по НПБ 160-97 (Знаки безопасности. Цвета сигнальные.), которые размещаются на видных местах на высоте 2-2,5м как внутри, так и вне помещений. При размещении огнетушителей в шкафах пожарных кранов на их дверцах выполняются соответствующие обозначения.
6.13. Для размещения первичных средств пожаротушения в производственных частях зданий и на территории объектов, должны устанавливаться специальные пожарные щиты или стенды, укомплектованные пожарным инвентарем.
6.14. Повседневный контроль за содержанием и постоянной готовностью к действию огнетушителей и других средств тушения пожара, находящихся на охраняемых объектах ГТРК осуществляет ответственный за пожарную безопасность объекта. При выявлении неисправностей, а также загромождения подступов к средствам пожаротушения, администрация обязана принять незамедлительные меры по устранению выявленных нарушений.
6.15. Пожарный инвентарь и первичные средства пожаротушения, находящиеся в производственных, складских, служебных и специальных зданиях, заносятся в инвентаризационные ведомости и передаются под ответственность руководителей структурных подразделений, администраторов зданий и других ответственных лиц.
6.16. Порядок размещения, обслуживания и применения огнетушителей должен поддерживаться в соответствии с указаниями инструкций предприятий-изготовителей, действующих нормативно-технических документов, а также следующими требованиями:
запрещается устанавливать огнетушители на путях эвакуации людей из защищаемых помещений, кроме случаев размещения их в нишах;
огнетушители должны размещаться на высоте не более 1,5м от уровня пола до нижнего торца огнетушителя и на расстоянии не менее 1,2м от края двери при ее открывании;
конструкция и внешнее оформление тумбы или шкафа для размещения огнетушителей должны быть такими, чтобы можно было визуально определить тип хранящегося в них огнетушителя.
7. ПОРЯДОК СОВМЕСТНЫХ ДЕЙСТВИЙ АДМИНИСТРАЦИИ И ПОЖАРНОЙ ОХРАНЫ ПРИ ЛИКВИДАЦИИ ПОЖАРОВ
7.1. При возникновении пожара действия администрации объекта и Государственной противопожарной службы в первую очередь должны быть направлены на обеспечение безопасности и своевременной эвакуации людей.
7.2. Каждый рабочий или служащий, обнаруживший пожар или загорание,
обязан:
1. Немедленно сообщить об этом в городскую пожарную охрану по телефону 01 или в объектовую пожарную охрану по телефону: _________________________________
При сообщении необходимо указать точный адрес пожара (улица, дом, корпус, этажность здания), название объекта, наименование или номер помещения, место его нахождения (этаж, крыло), также необходимо передать сведения о характере случившегося (открытый огонь, задымление, взрыв и т.п.), сведения о наличии людей в опасной зоне. После чего сообщить свою фамилию и номер телефона;
2. Организовать эвакуацию людей и материальных ценностей в безопасную зону;
3. По возможности, до прибытия пожарной помощи приступить к тушению пожара имеющимися средствами пожаротушения (огнетушитель, внутренний пожарный кран, стационарная установка пожаротушения и т.п.), строго соблюдая при этом требования техники безопасности;
4. Принять меры по вызову к месту пожара начальника структурного подразделения, руководителя производственного участка или другого должностного лица.
5. Организовать встречу пожарных подразделений и далее действовать по указанию руководителя тушения.
7.3. Руководитель структурного подразделения, прибывший к месту пожара,
обязан:
перепроверить, и лично убедиться вызвана ли пожарная помощь;
поставить в известность о пожаре руководство ГТРК;
возглавить руководство тушением пожара до прибытия пожарной помощи;
выделить для встречи пожарных подразделений лицо, хорошо знающее расположение подъездных путей и водоисточников;
проверить включение в работу автоматической (стационарной) системы пожаротушения;
удалить из здания (помещения) за пределы опасной зоны всех рабочих и служащих, не занятых ликвидацией пожара;
в случае угрозы для жизни людей немедленно организовать их спасение, используя для этого все имеющиеся силы и средства;
при необходимости вызвать спасательную, медицинскую и другие службы;
прекратить все работы, не связанные с мероприятиями по ликвидации пожара;
организовать при необходимости отключение электроэнергии, остановку систем вентиляции, приведение в действие системы дымоудаления и осуществление других мероприятий, способствующих предотвращению распространения пожара;
обеспечить защиту людей, принимающих участие в тушении пожара, от возможных обрушений конструкций, поражений электрическим током, отравлений, ожогов;
одновременно с тушением пожара производить охлаждение конструктивных элементов зданий и технологических аппаратов, которым угрожает опасность от воздействия высоких температур.
7.4. По прибытии подразделений пожарной охраны представитель предприятия, руководивший тушением пожара, обязан сообщить старшему начальнику подразделений пожарной охраны все необходимые сведения об очаге пожара, мерах, предпринятых по его ликвидации, а также сведения о наличии в помещении людей, занятых ликвидацией пожара.
7.5. По каждому происшедшему на объекте пожару или загоранию администрация обязана выяснить все обстоятельства, способствовавшие возникновению и развитию пожара (загорания), а также разработать и осуществить необходимые профилактические меры.
7.6. Виновные в возникновении загорания или пожара привлекаются к дисциплинарной, административной или судебной ответственности.
Инструкция разработана __________________________________
Приложение 5

|
СОГЛАСОВАНО |
Утверждаю |
|
|
_________________________ |
_________________________ |
|
|
(руководитель органа, |
(руководитель предприятия) |
|
|
_________________________ |
_________________________ |
|
|
Государственной противопожарной службы) |
||
|
«__» ___________200__ г |
«__» ___________200__ г |
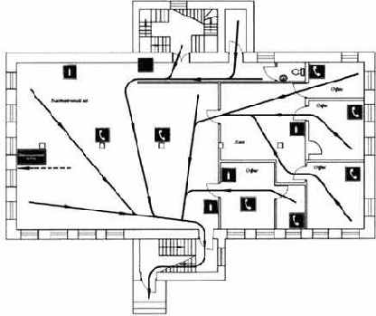
эвакуации людей на случай пожара с 1 этажа
(примерный вариант)
Общие положения
1. Ответственность за своевременную и правильную эвакуацию людей, документов, оборудования в случае пожара возлагается персонально на руководителя.
2. Эвакуация людей производится немедленно при возникновении пожара, задымления или получения извещения о пожаре по радио.
3. Эвакуацию людей надлежит производить не только из непосредственно горящего помещения, но и из помещений, которым угрожает опасность распространения огня и дыма.
4. В случае пожара или задымления сотрудники обязаны немедленно сообщить об этом в пожарную охрану по городскому телефону 01 и руководителю объекта, оповестить всех работников о пришествии в установленном порядке и приступить к тушению пожара имеющимися средствами (см. план этажа).
5. Для обеспечения эвакуации в ночное время, а также на случай аварии осветительной электросети, используют электрофонари.
РАСПРЕДЕЛЕНИЕ ОБЯЗАННОСТЕЙ
МЕЖДУ СОТРУДНИКАМИ НА СЛУЧАЙ ПОЖАРА
|
№ п/п |
Распределение обязанностей |
Порядок исполнения |
Ответственные лица за исполнение |
|
1 |
Сообщение о пожаре |
По городскому телефону 01 |
Сотрудник, первым заметивший пожар |
|
2 |
Эвакуация людей из здания |
Сотрудники эвакуируются согласно плану |
Руководитель подразделения |
|
3 |
Эвакуация имущества (производится после эвакуации людей) |
При явной угрозе уничтожения |
Руководитель подразделения или его заместитель, силами сотрудников |
|
4 |
Тушение пожара обслуживающим персоналом до прибытия пожарной команды |
Производится сотрудниками и членами ДПД первичными средствами пожаротушения (пожкран, огнетушитель) немедленно после вызова пожарной охраны. |
Генеральный директор |

Условные обозначения:




|


Приложение 6
к п.2.2.7.
Приказ
«__» _______ 200_ г. №______
г._______________
(примерный вариант)
«О введении в действие
документов по организации
обучения мерам пожарной
безопасности»
В целях обеспечения пожарной безопасности предприятия и совершенствования системы обучения ИТР, рабочих и служащих предприятия мерам пожарной безопасности, -
ПРИКАЗЫВАЮ:
1. Ввести в действие с «__» _______ 200_ г. прилагаемые документы по организации обучения мерам пожарной безопасности:
1.1. Положение об обучении мерам пожарной безопасности на предприятии (Приложение 1).
1.2. Программа пожарно-технического минимума для руководителей и главных специалистов предприятия (Приложение 2).
1.3. Программа пожарно-технического минимума для руководителей подразделений, лиц, ответственных за пожарную безопасность подразделений, ИТР и специалистов (Приложение 3).
1.4. Программа пожарно-технического минимума для рабочих и служащих взрывопожароопасных цехов (Приложение 4).
1.5. Программа пожарно-технического минимума для газоэлектросварщиков (Приложение 5).
1.6. Программа пожарно-технического минимума для работников, выполняющих пожароопасные работы (Приложение 6).
1.7. Программа пожарно-технического минимума для сотрудников, осуществляющих круглосуточную охрану предприятия (Приложение 7).
1.8. Программа вводного противопожарного инструктажа работников предприятия (Приложение 8).
2. Заместителям генерального директора, руководителям подразделений, лицам, ответственным за пожарную безопасность:
2.1.Обучение работников вверенных подразделений организовать и проводить по соответствующим программам в порядке, установленном Положением об обучении мерам пожарной безопасности на предприятии.
2.2. Допуск работников к выполнению служебных обязанностей осуществлять только после прохождения ими вводного и первичного на рабочем месте противопожарных инструктажей.
3. Контроль за выполнением приказа возложить на заместителя генерального директора ______________________.
Генеральный директор
___________________ ___________________
Приложение 7
к п.2.2.7.
|
СОГЛАСОВАНО |
Утверждаю |
|
|
_________________________ |
_________________________ |
|
|
(руководитель органа, |
(руководитель предприятия) |
|
|
_________________________ |
_________________________ |
|
|
Государственной противопожарной службы) |
||
|
«__» ___________200__ г |
«__» ___________200__ г |
об обучении мерам пожарной безопасности
(примерный вариант)
1. Общие положения
1.1. Положение об обучении мерам пожарной безопасности (далее – Положение) устанавливает виды и порядок проведения специального обучения работников предприятия, в том числе подрядных организаций, выполняющих работы на предприятии.
1.2. Руководители предприятия, главные специалисты, руководители структурных подразделений, ИТР и специалисты, лица, назначенные ответственными за пожарную безопасность, а также выполняющие работу с повышенной пожарной опасностью, до начала самостоятельного выполнения работ (вступления в должность), должны пройти обучение в системе пожарно-технического минимума в соответствии с разделом 2 Положения.
1.3. Ответственный за пожарную безопасность предприятия и руководители подразделений обязаны организовать непрерывное обучение мерам пожарной безопасности работников предприятия при приеме на работу и на рабочем месте (противопожарные инструктажи) в соответствии с разделом 3 Положения.
1.4. Организация своевременного и качественного проведения специального обучения, инструктажей и проверок знания обучаемыми вопросов пожарной безопасности на предприятии возлагается на ответственного за пожарную безопасность предприятия, а в структурных подразделениях (цех, участок, лаборатория, мастерская и т.п.) – на руководителей соответствующих подразделений.
1.5. Допуск к работе лиц, не прошедших обучения мерам пожарной безопасности или не сдавших зачет (экзамен), запрещается.
2. Порядок обучения в системе пожарно-технического минимума
2.1. Пожарно-технический минимум проводится с целью доведения до сведения руководителей и главных специалистов предприятий, лиц, ответственных за пожарную безопасность подразделений предприятий, а также занятых выполнением работ повышенной пожарной опасности (электрики, сварщики, работники складского хозяйства, строительных и других профессий, к которым предъявляются дополнительные требования по безопасности труда), и проверки знания ими основных положений действующих нормативных технических документов в области пожарной безопасности.
2.2. Устанавливается следующий порядок обучения в системе пожарно-технического минимума:
2.2.1. Руководители и главные специалисты (технологи, механики, энергетики и т.д.) предприятий проходят обучение с отрывом от производства в специализированных учебных комбинатах (далее - учебный комбинат), имеющих лицензию Государственной противопожарной службы (далее - ГПС) на право обучения мерам пожарной безопасности.
Перечисленные лица проходят обучение один раз в три года.
2.2.2. Непосредственно на предприятиях проходят обучение руководители подразделений, лица, ответственные за обеспечение пожарной безопасности в подразделениях предприятия, инженерно-технические работники взрывопожароопасных участков (цехов), лица, выполняющие работы, связанные с повышенной пожарной опасностью.
Обучение проводится один раз в год в системе пожарно-технического минимума, лицом (службой), назначенным (назначенной) приказом руководителя предприятия или учебным комбинатом.
2.3. Обучение в системе пожарно-технического минимума проводится по программам, согласованным с территориальным (местным, объектовым) органом управления Государственной противопожарной службы или его подразделением.
В результате обучения руководители и главные специалисты предприятий и лица, ответственные за пожарную безопасность подразделений предприятий, должны знать:
- основные законодательные и иные нормативные технические документы по пожарной безопасности;
- основные задачи, решаемые пожарной профилактикой на предприятии,
- основные права и обязанности предприятия, как одного из элементов системы обеспечения пожарной безопасности;
- организационные основы обеспечения пожарной безопасности на предприятии: анализ пожарной безопасности предприятия, разработка приказов, инструкций и положений, устанавливающих должный противопожарный режим на объекте, обучение работающих принятым на предприятии мерам пожарной безопасности;
- мероприятия, направленные на предотвращение пожара на предприятии;
- порядок обеспечения противопожарной защиты предприятия;
- порядок расследования, оформления и учета случаев пожаров, пострадавших и погибших на пожарах, определения материального ущерба от пожаров на предприятии;
- порядок организации добровольных противопожарных формирований на предприятии, обеспечение их деятельности; права, обязанности и льготы, предоставляемые добровольным пожарным.
2.4. По окончании курса пожарно-технического минимума обучаемые сдают зачеты (экзамены) в объеме изученной программы комиссии учебного комбината, или созданной на предприятии приказом (распоряжением) руководителя, в составе не менее трех человек.
В состав созданной на предприятии комиссии могут включаться представители учебных комбинатов и сотрудники Государственной противопожарной службы.
2.5. Контрольные вопросы для проведения зачетов (экзаменов) разрабатываются учебными комбинатами или предприятиями с учетом специфики производства и в соответствии с выполняемыми функциями обучаемых.
2.6. При проведении зачетов (экзаменов) с использованием компьютерных средств обучения, программы проверки должны обеспечивать возможность использования их в режиме обучения и предварительного ознакомления с контрольными вопросами.
2.7. Результаты зачетов (экзаменов) регистрируются в журнале производственного обучения и оформляются в виде протокола заседания комиссии, который подписывается членами комиссии.
2.8. Лицам, прошедшим обучение и сдавшим зачет (экзамен) по курсу пожарно-технического минимума, вручается удостоверение за подписью председателя комиссии, заверенное печатью предприятия, выдавшего удостоверение, и указывается дата последующей переаттестации.
2.9. Лица, не сдавшие зачет (экзамен) из-за неудовлетворительной подготовки, обязаны в течение месяца пройти повторную проверку. Неудовлетворительные результаты повторной проверки являются основанием для запрещения выполнения работниками своих функциональных обязанностей (выполнения работ) и прекращения действия трудового договора (контракта).
2.10. Работники, которые проходят обучение в системе пожарно-технического минимума, могут быть освобождены от вводного и первичного противопожарных инструктажей.
3. Противопожарные инструктажи
3.1. По характеру и времени проведения противопожарные инструктажи подразделяют на вводный, первичный на рабочем месте, повторный, внеплановый и целевой, и проводятся в соответствии с требованиями ГОСТ 12.0.004 [10].
3.2. Инструктажи проводятся по принятым на предприятии правилам пожарной безопасности, изложенным в инструкциях, и других нормативных документах по вопросам пожарной безопасности в специально оборудованном для этих целей помещении.
3.3. Вводный инструктаж проводится прошедшим обучение в системе пожарно-технического минимума лицом, ответственным за пожарную безопасность предприятия.
Вариант. В зависимости от организационно-штатной структуры предприятия вводный инструктаж могут проводить квалифицированные специалисты службы пожарной безопасности (охраны труда и техники безопасности), ведомственной пожарной охраны.
3.4. Первичный противопожарный инструктаж на рабочем месте проводится до начала производственной деятельности. Инструктаж проводят со всеми работающими ответственные за пожарную безопасность подразделений предприятия, прошедшие обучение в системе пожарно-технического минимума.
Программа для проведения инструктажа утверждается руководителем соответствующего структурного подразделения (начальником цеха, отдела и т.п.) или руководителем предприятия (его заместителем).
Программу согласовывают с отделом (бюро, инженером) пожарной безопасности (начальником ДПД) и профсоюзным комитетом подразделения предприятия.
Примерный перечень основных вопросов первичного противопожарного инструктажа на рабочем месте:
- краткая характеристика пожарной опасности агрегатов, оборудования веществ и материалов, обращающихся в производстве. Возможные причины возникновения пожара и меры по их предупреждению;
- правила (инструкции) пожарной безопасности, установленные для работника данного помещения, участка или сооружения. Требования к содержанию путей эвакуации. Виды и функции существующих систем противопожарной защиты (пожарной сигнализации и автоматического пожаротушения);
- обязанности при возникновении пожара. Средства связи и место нахождения ближайшего телефона. Порядок вызова пожарной охраны, оповещения людей, проведения эвакуации. Способы применения имеющихся на участке средств пожаротушения и сигнализации, места их расположения.
Инструктаж проводят с каждым работником или учащимися индивидуально с практическим показом безопасных приемов и методов труда. Первичный инструктаж возможен с группой лиц, обслуживающих однотипное оборудование и в пределах общего рабочего места.
Все рабочие, в том числе выпускники профтехучилищ, учебно-производственных (курсовых) комбинатов, после первичного противопожарного инструктажа на рабочем месте должны в течение первых 2-4 смен (в зависимости от характера работы, квалификации работника) пройти стажировку под руководством лиц, назначенных приказом (распоряжением, решением) по цеху (участку, кооперативу и т.п.).
От стажировки на рабочем месте могут освобождаться работники, имеющие стаж работы по специальности не менее 3 лет, переходящие из одного цеха в другой, если характер их работы и тип оборудования, на котором они работали ранее, не меняются.
Рабочие допускаются к самостоятельной работе после стажировки, проверки теоретических знаний и приобретенных навыков безопасных способов работы.
3.5. Повторный противопожарный инструктаж проходят все рабочие, независимо от квалификации, образования, стажа, характера выполняемой работы не реже одного раза в полугодие.
Предприятиями, организациями по согласованию с профсоюзными комитетами и соответствующими местными органами государственного надзора для некоторых категорий работников может быть установлен более продолжительный (до 1 года) срок проведения повторного противопожарного инструктажа.
Инструктаж проводят индивидуально или с группой работников, обслуживающих однотипное оборудование и в пределах общего рабочего места по программе первичного противопожарного инструктажа на рабочем месте в полном объеме.
3.6. Внеплановый противопожарный инструктаж проводят:
- при введении в действие новых или переработанных стандартов, правил, инструкций по пожарной безопасности, а также изменений к ним;
- при изменении технологического процесса, замене или модернизации оборудования, приспособлений и инструмента, исходного сырья, материалов и других факторов, влияющих на пожарную безопасность,
- при нарушении работающими и учащимися требований пожарной безопасности, которые могут привести или привели к травме, аварии, взрыву или пожару;
- по требованию надзорных органов;
- при перерывах в работе - для работ, к которым предъявляют дополнительные (повышенные) требования безопасности труда более чем на 30 календарных дней, а для остальных работ - 60 дней.
Внеплановый противопожарный инструктаж проводят индивидуально или с группой работников одной профессии. Объем и содержание инструктажа определяют в каждом конкретном случае в зависимости от причин и обстоятельств, вызвавших необходимость его проведения.
3.7. Целевой противопожарный инструктаж проводят при выполнении разовых работ, не связанных с прямыми обязанностями по специальности; ликвидации последствий аварий, стихийных бедствий и катастроф; производстве работ, на которые оформляется наряд-допуск, разрешение и другие документы; проведении экскурсии на предприятии, организации массовых мероприятий с учащимися.
3.8. Первичный противопожарный инструктаж на рабочем месте, повторный, внеплановый и целевой проводит непосредственный руководитель работ (ответственный за пожарную безопасность подразделения предприятия, начальник ДПД).
3.9. Противопожарные инструктажи на рабочем месте завершаются проверкой знаний устным опросом или с помощью технических средств обучения, а также проверкой приобретенных навыков безопасных способов работы и действий при пожаре, применения первичных средств пожаротушения. Знания проверяет работник, проводивший инструктаж.
Лица, показавшие неудовлетворительные знания, к самостоятельной работе или практическим занятиям не допускаются и обязаны вновь пройти инструктаж.
3.10. О проведении первичного противопожарного инструктажа на рабочем месте, повторного, внепланового, стажировки и допуске к работе лицо, проводившее инструктаж, делает запись в журнале регистрации инструктажа на рабочем месте и (или) в личной карточке (по ГОСТ 12.0.004) с обязательной подписью инструктируемого и инструктирующего. При регистрации внепланового инструктажа указывают причину его проведения.
3.11. Целевой инструктаж с работниками, проводящими работы по наряду-допуску, разрешению и т.п. фиксируется в наряде-допуске или другой документации, разрешающей производство работ.
Приложение 8
к п.2.2.7.
|
СОГЛАСОВАНО |
Утверждаю |
|
|
_________________________ |
_________________________ |
|
|
(руководитель органа, |
(руководитель предприятия) |
|
|
_________________________ |
_________________________ |
|
|
Государственной противопожарной службы) |
||
|
«__» ___________200__ г |
«__» ___________200__ г |
Программа
пожарно-технического минимума
для руководителей и главных специалистов предприятия
(примерный вариант)
Учебный план
1. Количество учебных дней – 5.
2. Продолжительность учебного дня – 8 часов.
3. Количество учебных часов – 40.
|
№№ п/п |
Учебные предметы |
Количество часов |
||
|
Всего |
Теорет. |
Практ. |
||
|
1. |
Пожарно-профилактическая подготовка |
25 |
25 |
- |
|
2. |
Тактико-техническая подготовка |
11 |
9 |
2 |
|
3. |
Экзамен |
4 |
- |
4 |
|
4. |
Итого |
40 |
34 |
6 |
|
№№ п/п |
Учебные предметы |
Количество часов |
||
|
Всего |
Теорет. |
Практ. |
||
|
I. Пожарно-профилактическая подготовка. |
||||
|
1. |
Введение. Пожарная профилактика и ее задачи. |
1 |
1 |
|
|
2. |
Основные нормативные документы в обл.пож.безопасности. |
1 |
1 |
|
|
3. |
Организационные основы обеспечения пожарной безопасности. |
2 |
2 |
|
|
4. |
Краткие сведения о физико-химической сущности процесса горения. Условия возникновения и развития пожара. |
2 |
2 |
|
|
5. |
Классификация строительных материалов по группам горючести. Огнестойкость зданий и сооружений |
1 |
1 |
|
|
6. |
Классификация зданий и помещений по категориям взрывопожарной и пожарной опасности. |
2 |
2 |
|
|
7. |
Противопожарный режим на объекте. |
2 |
2 |
|
|
8. |
Требования пожарной безопасности к путям эвакуации |
1 |
1 |
|
|
9. |
Требования пожарной безопасности к системам отопления и вентиляции. |
1 |
1 |
|
|
10. |
Пожарная опасность электроустановок. |
1 |
1 |
|
|
11. |
Молниезащита. Статическое электричество. |
1 |
1 |
|
|
12. |
Меры пожарной безопасности при проведении пожароопасных работ. |
2 |
2 |
|
|
13. |
Способы защиты строительных конструкций и материалов. |
1 |
1 |
|
|
14. |
Меры пожарной безопасности при производстве строительно-монтажных и реставрационных работ. |
1 |
1 |
|
|
15. |
Меры пожарной безопасности при хранении веществ и материалов. |
1 |
1 |
|
|
16. |
Меры пожарной безопасности при хранении, применении и транспортировке ЛВЖ, ГГ, ГЖ. |
2 |
2 |
|
|
17. |
Административно-правовая деятельность Государственной противопожарной службы. |
2 |
2 |
|
|
II. Тактико-техническая подготовка |
||||
|
1. |
Общие сведения о средствах противопожарной защиты и тушения пожаров. |
2 |
2 |
|
|
2. |
Наружное и внутреннее противопожарное водоснабжение. |
2 |
2 |
|
|
3. |
Установки автоматических систем пожаротушения и сигнализации. |
2 |
2 |
|
|
4. |
Установки противодымной защиты. |
1 |
1 |
|
|
5. |
Действия ИТР, рабочих и служащих при пожарах. |
2 |
2 |
|
|
6. |
Практическое занятие |
2 |
2 |
|
|
III. Прием экзаменов |
||||
|
1 |
Проверка знаний пожарно-технического минимума. |
4 |
4 |
Приложение 9
к п. 2.2.7
|
СОГЛАСОВАНО |
Утверждаю |
|
|
_________________________ |
_________________________ |
|
|
(руководитель органа, |
(руководитель предприятия) |
|
|
_________________________ |
_________________________ |
|
|
Государственной противопожарной службы) |
||
|
«__» ___________200__ г |
«__» ___________200__ г |
пожарно-технического минимума
для руководителей подразделений, лиц,
ответственных за пожарную безопасность подразделений,
ИТР и специалистов предприятия
(примерный вариант)
Учебный план
1. Количество учебных дней – 3.
2. Продолжительность учебного дня – 8 часов.
3. Количество учебных часов – 24.
|
№№ п/п |
Учебные предметы |
Количество часов |
||
|
Всего |
Теорет. |
Практ. |
||
|
1. |
Пожарно-профилактическая подготовка. |
14 |
14 |
|
|
2. |
Тактико-техническая подготовка. |
8 |
8 |
|
|
3. |
Экзамен |
2 |
- |
2 |
|
4. |
Итого |
24 |
22 |
2 |
|
№№ п/п |
Предметы обчения. Наименования тем. |
Количество часов |
||
|
Всего |
Теорет. |
Практ. |
||
|
I. Пожарно-профилактическая подготовка |
||||
|
1 |
Введение. Пожарная профилактика и ее задачи. Основные нормативные документы в обл.пож.безопасности. |
1 |
1 |
|
|
2 |
Организационные основы обеспечения пожарной безопасности. |
1 |
1 |
|
|
3 |
Краткие сведения о физико-химической сущности процесса горения. Условия возникновения и развития пожара. |
1 |
1 |
|
|
4 |
Классификация строительных материалов по группам горючести. Огнестойкость зданий и сооружений |
1 |
1 |
|
|
5 |
Классификация зданий и помещений по категориям взрывопожарной и пожарной опасности. |
1 |
1 |
|
|
6 |
Противопожарный режим на объекте. |
1 |
1 |
|
|
7 |
Требования пожарной безопасности к путям эвакуации |
1 |
1 |
|
|
8 |
Требования пожарной безопасности к системам отопления и вентиляции. |
|||
|
9 |
Пожарная опасность электроустановок. Молниезащита. Статическое электричество. |
1 |
1 |
|
|
10 |
Меры пожарной безопасности при проведении пожароопасных работ. |
2 |
2 |
|
|
11 |
Способы защиты строительных конструкций и материалов. |
1 |
1 |
|
|
12 |
Меры пожарной безопасности при производстве строительно-монтажных и реставрационных работ. |
1 |
1 |
|
|
13 |
Меры пожарной безопасности при хранении, применении и транспортировке веществ и материалов, ЛВЖ, ГЖ, ГГ. |
1 |
1 |
|
|
14 |
Административно-правовая деятельность Государственной противопожарной службы. |
1 |
1 |
|
|
II. Тактико-техническая подготовка |
||||
|
1. |
Общие сведения о средствах противопожарной защиты и тушения пожаров. |
2 |
2 |
|
|
2. |
Наружное и внутреннее противопожарное водоснабжение. |
1 |
1 |
|
|
3. |
Установки автоматических систем пожаротушения и сигнализации. |
2 |
2 |
|
|
4. |
Установки противодымной защиты. |
1 |
1 |
|
|
5. |
Действия ИТР, рабочих и служащих при пожарах. |
1 |
1 |
|
|
III. Прием экзаменов |
||||
|
1 |
Проверка знаний пожарно-технического минимума. |
2 |
2 |
Приложение 10
к п. 2.2.7
|
СОГЛАСОВАНО |
Утверждаю |
|
|
_________________________ |
_________________________ |
|
|
(руководитель органа, |
(руководитель предприятия) |
|
|
_________________________ |
_________________________ |
|
|
Государственной противопожарной службы) |
||
|
«__» ___________200__ г |
«__» ___________200__ г |
пожарно-технического минимума
для рабочих и служащих
взрывопожароопасных цехов предприятия
(примерный вариант)
Учебный план
1. Общее время – 15 часов.
2. Время обучения – 13 часов.
3. Зачет – 2 часа.
Тематический план.
|
№ п/п |
Наименование тем |
Время (час.) |
|
1. |
Тема №1. Основные нормативные документы, регламентирующие требования пожарной безопасности. |
1 |
|
2. |
Тема №2. Пожарная опасность подразделения, технологического процесса, основные причины пожаров. |
1 |
|
3. |
Тема №3. Требования пожарной безопасности к территориям. |
2 |
|
4. |
Тема №4. Требования пожарной безопасности в цехе и на рабочем месте. |
2 |
|
5. |
Тема №5. Требования пожарной безопасности к путям эвакуации. |
1 |
|
6. |
Тема №6. Требования пожарной безопасности к электроустановкам. |
1 |
|
7. |
Тема №7. Требования пожарной безопасности к системам отопления и вентиляции. |
1 |
|
8. |
Тема №8. Вызов пожарной охраны. |
1 |
|
9. |
Тема №9. Противопожарное оборудование и инвентарь, порядок использования их при пожаре. |
2 |
|
10. |
Тема №10. Действия при пожаре. |
1 |
|
11. |
Зачет. |
2 |
к п. 2.2.7
|
СОГЛАСОВАНО |
Утверждаю |
|
|
_________________________ |
_________________________ |
|
|
(руководитель органа, |
(руководитель предприятия) |
|
|
_________________________ |
_________________________ |
|
|
Государственной противопожарной службы) |
||
|
«__» ___________200__ г |
«__» ___________200__ г |
Программа
пожарно-технического минимума
для газоэлектросварщиков предприятия
(примерный вариант)
Учебный план
1. Общее время – 15 часов.
2. Время обучения – 13 часов.
3. Зачет – 2 часа.
Тематический план.
|
№ п/п |
Наименование тем |
Время (час.) |
|
1. |
Тема №1. Основные нормативные документы, регламентирующие требования пожарной безопасности при проведении пожароопасных работ. |
1 |
|
2. |
Тема №2. Виды и порядок проведения пожароопасных работ. Пожарная опасность. |
1 |
|
3. |
Тема №3. Причины возникновения пожаров, меры предупреждения. |
1 |
|
4. |
Тема №4. Особенности пожарной опасности при ведении огневых работ во взрывопожароопасных подразделениях и на установках. |
1 |
|
5. |
Тема №5. Газосварочные работы. |
2 |
|
6. |
Тема №6. Электросварочные работы. |
2 |
|
7. |
Тема №7. Основные требования к газоэлектросварщикам |
1 |
|
8. |
Тема №8. Постоянные и временные посты. Порядок оформления разрешения и наряд-допуска. |
1 |
|
9. |
Тема №9. Вызов пожарной охраны. |
1 |
|
10. |
Тема №10. Противопожарное оборудование и инвентарь, порядок использования их при пожаре. |
1 |
|
11. |
Тема №11. Действия при пожаре. |
1 |
|
12. |
Зачет. |
2 |
к п. 2.2.7
|
СОГЛАСОВАНО |
Утверждаю |
|
|
_________________________ |
_________________________ |
|
|
(руководитель органа, |
(руководитель предприятия) |
|
|
_________________________ |
_________________________ |
|
|
Государственной противопожарной службы) |
||
|
«__» ___________200__ г |
«__» ___________200__ г |
Программа
пожарно-технического минимума
для работников, выполняющих пожароопасные работы
(примерный вариант)
Учебный план
1. Общее время – 15 часов.
2. Время обучения – 13 часов.
3. Зачет – 2 часа.
Тематический план.
|
№ п/п |
Наименование тем |
Время (час.) |
|
1. |
Тема №1. Основные нормативные документы, регламентирующие проведение пожароопасных работ. |
1 |
|
2. |
Тема №2. Виды и порядок проведения пожароопасных работ. Причины возникновения пожаров, меры их предупреждения. |
1 |
|
3. |
Тема №3. Требования пожарной безопасности при производстве окрасочных работ. |
1 |
|
4. |
Тема №4. Требования пожарной безопасности при работе с клеями, битумами, полимерами и другими горючими материалами. |
1 |
|
5. |
Тема №5. Требования пожарной безопасности при проведении огневых работ. |
1 |
|
6. |
Тема №6. Требования пожарной безопасности при производстве резальных работ. |
1 |
|
7. |
Тема №7. Требования пожарной безопасности при проведении паяльных работ. |
1 |
|
8. |
Тема №8. Требования пожарной безопасности при выполнении работ с использованием воздухонагревательных установок и установок инфракрасного излучения. |
1 |
|
9. |
Тема №9. Общие сведения о средствах противопожарной защиты и тушении пожаров. |
2 |
|
10. |
Тема №10. Наружное и внутреннее противопожарное водоснабжение. |
1 |
|
11. |
Тема №11. Вызов пожарной охраны. |
1 |
|
12. |
Тема №10. Действия при пожаре. |
1 |
|
13. |
Зачет. |
2 |
к п. 2.2.7
|
СОГЛАСОВАНО |
Утверждаю |
|
|
_________________________ |
_________________________ |
|
|
(руководитель органа, |
(руководитель предприятия) |
|
|
_________________________ |
_________________________ |
|
|
Государственной противопожарной службы) |
||
|
«__» ___________200__ г |
«__» ___________200__ г |
Программа
пожарно-технического минимума
для сотрудников, осуществляющих
круглосуточную охрану предприятия
(примерная)
Учебный план
1. Общее время – 7 часов.
2. Время обучения – 6 часов.
3. Зачет – 1 час.
Тематический план.
|
№ п/п |
Наименование тем |
Время (час.) |
|
1. |
Тема №1. Основные нормативные документы, регламентирующие требования пожарной безопасности |
1 |
|
2. |
Тема №2. Требования пожарной безопасности к помещениям |
1 |
|
3. |
Тема №3. Внутренний противопожарный водопровод. Установки автоматической пожарной сигнализации и пожаротушения. |
1 |
|
4. |
Тема №4. Противопожарное оборудование и инвентарь. Первичные средства пожаротушения. |
1 |
|
5. |
Тема №5. Вызов пожарной охраны. |
1 |
|
6. |
Тема №6. Действия сотрудников при пожаре. |
1 |
|
7. |
Зачет. |
1 |
к п. 2.2.7
|
СОГЛАСОВАНО |
Утверждаю |
|
|
_________________________ |
_________________________ |
|
|
(руководитель органа, |
(руководитель предприятия) |
|
|
_________________________ |
_________________________ |
|
|
Государственной противопожарной службы) |
||
|
«__» ___________200__ г |
«__» ___________200__ г |
вводного противопожарного инструктажа
работников предприятия
(примерный вариант)
Учебный план
1. Общее время – 4 часа.
2. Время обучения – 3,5 часа.
3. Резерв – 0,5 часа.
Тематический план.
|
№№ п/п |
Учебные предметы.. Наименования тем. |
Примечание |
|
I. Пожарно-профилактическая подготовка |
||
|
1 |
Введение. Пожарная профилактика и ее задачи. |
|
|
2 |
Основные нормативные документы в обл.пож.безопасности |
|
|
3 |
Основные функции обеспечения пожарной безопасности. |
|
|
4 |
Классификация строительных материалов по группам горючести. Предел огнестойкости и распространения огня. |
|
|
5. |
Взрывопожароопасность веществ, материалов и технологических процессов. |
|
|
6 |
Способы защиты строительных конструкций и материалов. |
|
|
7 |
Требования пожарной безопасности к территориям, заданиям, сооружениям. |
|
|
8 |
Требования пожарной безопасности к помещениям. |
|
|
9 |
Требования пожарной безопасности к путям эвакуации |
|
|
10 |
Требования пожарной безопасности к электроустановкам |
|
|
11 |
Молниезащита. Статическое электричество. |
|
|
12 |
Требования пожарной безопасности к технологическому оборудованию |
|
|
13 |
Требования пожарной безопасности к объектам лакокраски, ЛВЖ, ГЖ. |
|
|
14 |
Требования пожарной безопасности при хранении, применении и транспортировке ЛВЖ, ГЖ, ГГ. |
|
|
15 |
Требования пожарной безопасности при хранении веществ и материалов. |
|
|
16 |
Требования пожарной безопасности к системам вентиляции. |
|
|
17 |
Требования пожарной безопасности к системам отопления |
|
|
18 |
Требования пожарной безопасности при производстве строительно-монтажных и реставрационных работ. |
|
|
19 |
Требования пожарной безопасности при производстве пожароопасных работ. |
|
|
II. Тактико-техническая подготовка |
||
|
1 |
Первичные средства пожаротушения |
|
|
2 |
Противопожарное оборудование.. |
|
|
3 |
Современная пожарная техника. |
|
|
4 |
Наружное противопожарное водоснабжение. |
|
|
5 |
Внутренний противопожарный водопровод. |
|
|
6 |
Установки автоматической пожарной сигнализации |
|
|
7 |
Установки автоматических систем пожаротушения. |
|
|
8 |
Установки противодымной защиты. |
|
|
9 |
Вызов пожарной охраны |
|
|
10 |
Действия ИТР, рабочих и служащих при пожарах. |
|
|
III. Резерв |
||
|
1 |
Учебное время, используемое для ответов на вопросы работников предприятия. |
Приложение 15
к п. 2.2.7
Приказ
(примерный вариант)
«__» _______ 200_ г. №______
г._______________
«О создании комиссии
по проверке знаний
пожарной безопасности»
В целях обеспечения пожарной безопасности и в соответствии с Положением об обучении мерам пожарной безопасности на предприятии, -
ПРИКАЗЫВАЮ:
1. Создать на предприятии комиссию по проверке знаний пожарной безопасности в составе:
Председатель комиссии _____________(Ф.И.О.)___________, главный инженер предприятия.
Заместитель председателя комиссии - _____________(Ф.И.О., должность)___________.
Секретарь комиссии - _____________(Ф.И.О., должность)___________.
Члены комиссии:
_____________(Ф.И.О., должность)___________,
_____________(Ф.И.О., должность)___________,
_____________(Ф.И.О., должность представителя учебного комбината)___________.
2. Комиссии в своей работе руководствоваться Положением об обучении мерам пожарной безопасности на предприятии, утвержденными программами обучения и иными действующими на предприятии нормативными документами в области пожарной безопасности.
3. Приказ объявить руководству предприятия, членам комиссии, руководителям структурных подразделений и лицам, ответственным за пожарную безопасность подразделений.
Копию приказа разместить на стендах «Пожарная безопасность».
4. Контроль за выполнением приказа возложить на заместителя генерального директора _________________________.
Генеральный директор _____________________ _______________________
Приложение 16
к п. 2.2.7
Форма протокола
заседания комиссии по проверке знаний пожарной
безопасности предприятия ____________________
(прил.1 [10])
Протокол №____
заседания комиссии по проверке знаний по пожарной безопасности
«___» _______ 200_ г.
Комиссия в составе:
Председателя _____________(должность, Ф.И.О.)___________.
и членов комиссии _____________(должности, Ф.И.О.)___________
_________________________________________________________
_________________________________________________________
На основании приказа № ___ от «___» _______ 200_ г.
приняла экзамен ________________( вид обучения или проверки знаний)____________________
и установила:
|
Фамилия, имя, отчество |
Должность, профессия |
Цех, участок |
Отметка о проверке знаний (сдал, не сдал) |
№ удостоверения |
Примечание |
Члены комиссии ________(подпись)____________ (Фамилия, инициалы)
________(подпись)____________ (Фамилия, инициалы)
________(подпись)____________ (Фамилия, инициалы)
Приложение 17
к п. 2.2.7
наименование предприятия ____________________
Журнал №
производственного обучения
(прил.11 [9])
___________________________________________________________________________
(наименование курса)
___________________________________________________________________________
(категория обучаемых лиц)
Начало обучения _____________________________________________________________
Конец обучения ______________________________________________________________
Руководитель обучения ____________________________________________
(подпись)
Учет посещаемости и успеваемости
|
№ п/п |
Дата Ф.И.О. |
||||||||||||||||
|
1 |
2 |
3 |
4 |
5 |
6 |
7 |
8 |
9 |
10 |
11 |
12 |
13 |
14 |
15 |
16 |
17 |
18 |
|
Дата занятия |
Краткое содержание проработанного материала |
Количество часов |
Ф.И.О. преподавателя |
Подпись преподавателя |
|
1 |
2 |
3 |
4 |
5 |
к п. 2.2.7
форма Журнала
регистрации вводного инструктажа
(прил.4 [10])
Обложка
____________________________________
предприятие, организация, учебное заведение
ЖУРНАЛ
регистрации вводного инструктажа
Начат __________________ 200_ г.
Окончен __________________200_ г.
последующие страницы
|
Дата |
Фамилия, имя, отчество инструктируемого |
Год рождения |
Профессия, должность инструктируемого |
Наименование производственного подразделения, в которое направляется инструктируемый |
Фамилия, инициалы, должность инструктирующего |
Подпись |
|
|
инструктирующего |
инструктируемого |
||||||
|
1 |
2 |
3 |
4 |
5 |
6 |
7 |
8 |
Приложение 19
к п. 2.2.7
форма Журнала
регистрации инструктажа на рабочем месте
(прил.6 [10])
Обложка
____________________________________
предприятие, организация, учебное заведение
ЖУРНАЛ
регистрации инструктажа на рабочем месте
____________________________________
цех, участок, бригада, служба, лаборатория
Начат __________________ 200_ г.
Окончен __________________200_ г.
последующие страницы
|
Дата |
Фамилия, имя, отчество инструктируемого |
Год рождения |
Профессия, должность инструктируемого |
Вид инструктажа ( первичный на рабочем месте, повторный, внеплановый) |
Причина проведения внепланового инструктажа |
Фамилия, инициалы, должность инструктирующего |
Подпись |
Стажировка на рабочем месте |
|||
|
инструктирующего |
инструктируемого |
Количество смен (с…по…) |
Стажировку прошел (подпись рабочего) |
Знания проверил, допуск к работе произвел (подпись, дата) |
|||||||
|
1 |
2 |
3 |
4 |
5 |
6 |
7 |
8 |
9 |
10 |
11 |
12 |
к п. 2.2.7
форма личной карточки
прохождения обучения
(прил.2 [10])
__________________________________________________
предприятие, организация, учебное заведение
личная карточка
прохождения обучения
1. Фамилия, имя, отчество ______________________________________________________
2. Год рождения ______________________________________________________________
3. Профессия, специальность ___________________________________________________
4. Цех _____________________ участок (отделение) ________________________________
5. Отдел (лаборатория) _____________________ Табельный № _______________________
6. Дата поступления в цех (участок) _______________________________________________
7. Вводный инструктаж провел ___________________________________________________
фамилия, инициалы, должность __________________________________________________
______________________________________________________________________________
подпись, дата
____________________________
подпись инструктируемого, дата
8. Отметки о прохождении инструктажа:
|
Дата инструктажа |
Цех (участок) |
Профессия, должность инструктируемого |
Вид инструктажа ( первичный на рабочем месте, повторный, внеплановый) |
Причина проведения внепланового инструктажа |
Фамилия, инициалы, должность инструктирующего |
Подпись |
Стажировка на рабочем месте |
|||
|
инструктирующего |
инструктируемого |
Количество смен (с…по…) |
Стажировку прошел (подпись рабочего) |
Знания проверил, допуск к работе произвел (подпись, дата) |
||||||
|
1 |
2 |
3 |
4 |
5 |
6 |
7 |
8 |
9 |
10 |
11 |
9. Сведения о прохождении обучения охране труда
|
Прошел обучение по специальности |
Количество часов |
№ протокола экзаменационной комиссии, дата |
Председатель комиссии (подпись) |
|
1 |
2 |
3 |
4 |
|
Дата |
В объеме каких инструкций или разделов правил безопасности труда |
№ протокола экзаменационной комиссии |
Подпись |
|
|
Проверяемого |
Председателя комиссии |
|||
|
1 |
2 |
3 |
4 |
5 |
к п.2.2.7.
и к п.10.3 прил. 1
|
Объединение |
УТВЕРЖДАЮ1 |
|
|
________________ (должность, Ф.И.О.) |
||
|
Предприятие |
||
|
________________ (подпись) |
||
|
Цех |
||
|
«__» _______ 200_ г. |
Если это требует нормативный документ, регламентирующий безопасное проведение работ
Наряд-допуск
(прил. 4 [2])
на выполнение работ повышенной опасности
1. Выдан (кому) ____________ (должность руководителя работ, ответственного за проведение работ, Ф.И.О., дата).
2. На выполнение работ _____________ (указывается характер и содержание работы, опасные и вредные производственные факторы).
3. Место проведения работ _____________ (отделение, участок, установка, аппарат, выработка, помещение).
4. Состав бригады исполнителей, в том числе дублеры, наблюдающие (при большом числе членов бригады ее состав и требуемые сведения приводятся в прилагаемом списке с отметкой об этом в настоящем пункте).
|
№ п/п |
Ф.И.О. |
Выполняемая функция |
Квалификация (разряд, группа по электрбезопасности) |
С условиями работы ознакомлен, инструктаж получил |
|
|
Подпись |
Дата |
||||
|
1 |
Производитель работ (ответственный, старший исполнитель, бригадир) |
||||
|
2 |
|||||
|
3 |
Начало _______ время ________ дата.
Окончание _______ время ________ дата.
6. Меры по обеспечению безопасности ________ (указываются организационные и технические меры безопасности, осуществляемые при подготовке объекта к проведению работ повышенной опасности, при их проведении, средства коллективной и индивидуальной защиты, режим работы).
7. Требуемые приложения (наименование схем, эскизов, анализов, ППР и т.п.).
8. Особые условия __________________________.
в т.ч. присутствие лиц надзора при проведении работ ______________
9. Наряд выдал _________________ (должность, Ф.И.О., подпись выдавшего наряд, дата).
10. Согласовано:
со службами (техники безопасности, пожарной охраны,
ГСС (ВГСЧ), механической, энергетической
и др., при необходимости) _______________________________________
(название службы, Ф.И.О. ответственного, подпись, дата)
с взаимосвязанными цехами, участками,
владельцем ЛЭП и др. ________________________________________
(цех, участок, Ф.И.О. ответственного, подпись, дата)
11. Объект к проведению работ подготовлен:
Ответственный за подготовку объекта ________________________________________
(должность, Ф.И.О., подпись, дата, время)
Руководитель работ ________________________________________
(должность, Ф.И.О., подпись, дата, время)
12. К выполнению работ допускаю: ________________ (должность, Ф.И.О., подпись, дата, время).
13. Отметка о ежедневном допуске к работе, окончании этапа работы
|
Меры безопасности по п.6 выполнены |
|||||
|
Начало работы |
Окончание |
||||
|
Дата |
Время (ч., мин.) |
Подпись допускающего к работе |
Подпись руководителя работ |
Время (ч., мин.) |
Подпись руководителя работ |
14. Наряд-допуск продлен до ______ (дата, время, подпись выдавшего наряд, Ф.И.О., должность).
15. Продление наряда-допуска согласовано (в соответствии с п.10) ______________ (название службы, цеха, участка, др., должность ответственного, Ф.И.О., подпись, дата).
16. К выполнению работ на период продления допускаю ________ (должность допускающего, Ф.И.О., подпись, дата, время).
17. Изменение состава бригады исполнителей
|
Введен в состав бригады |
Выведен из состав бригады |
|||||||
|
Ф.И.О. |
С условиями работы ознакомлен, проинструктирован (подпись) |
Квалификация, разряд, группа |
Выполняемая функция |
Дата, время |
Ф.И.О. |
Дата, время |
Выполняемая функция |
Руководитель работ (подпись) |
___________________ (начальник смены (старший по смене) по месту проведения работ, Ф.И.О., подпись, дата, время).
Приложение 22
к п.2.2.7.
|
________________________________________ (наименование предприятия) Удостоверение № ______ (прил.13 [9]) Выдано _________________________________ ________________________________________ (Ф.И.О.) Должность ______________________________ Место работы ____________________________ ________________________________________ Проведена проверка знаний пожарно-технического минимума в объеме должностных (производственных) обязанностей. Протокол № __ от «__» ______________ 200_ г. Действительно до __________________ 200_ г. Председатель комиссии ________________________________ М.П. |
Проведена проверка знаний пожарно-технического минимума в объеме должностных (производственных) обязанностей. Протокол № __ от «__» ______________ 200_ г. Действительно до __________________ 200_ г. Председатель комиссии ________________________________ М.П. Проведена проверка знаний пожарно-технического минимума в объеме должностных (производственных) обязанностей. Протокол № __ от «__» ______________ 200_ г. Действительно до __________________ 200_ г. Председатель комиссии ________________________________ М.П. |
Приложение 23
к п.2.2.7.
перечень
вопросов, включаемых в экзаменационные билеты
для проверки знаний
(примерный вариант)
1. Дать определения терминам, пожарная безопасность, пожарная профилактика, система предотвращения пожара, система противопожарной защиты, правила пожарной безопасности, противопожарное состояние объекта, противопожарный режим пожарный надзор.
2. Проведением каких мероприятий достигается предотвращение пожара на предприятии.
3. Проведением каких мероприятий достигается противопожарная защита предприятия.
4. Основные законодательные документы в области охраны труда и пожарной безопасности.
5. Перечислите известные Вам государственные стандарты в области пожарной безопасности.
6. Назначение и порядок применения строительных норм и правил.
7. Нормы пожарной безопасности. Их назначение и применение. 8. Ведомственные нормативные документы. Их назначение и применение. 9. Правила пожарной безопасности в РФ (ППБ 01-93). Общие требования обеспечения пожарной безопасности.
10. Перечислите основные организационные мероприятия по обеспечению пожарной безопасности.
11. Порядок организации противопожарных инструктажей. Их виды и периодичность проведения.
12. Порядок организации и проведения пожарно-технических минимумов.
13. Порядок организация деятельности добровольных противопожарных формирований (ДПД, ПТК).
14. Порядок разработки инструкций о мерах пожарной безопасности 15 Ответственность за обеспечение пожарной безопасности
16. Дать определения терминам: пожар, горение, пламенное горение, тление, возгорание, возгораемость, самовозгорание, воспламенение, самовоспламенение, сажа, дым.
17. Перечислить этапы пожара и дать их характеристику.
18. Способы обеспечения предотвращения образования горючей среды.
19. Мероприятия по предотвращению образования и горючей среде источников зажигания.
20. Какими мероприятиями достигается ограничение массы и объема горючих веществ, а также наиболее безопасный способ их размещения.
21. какими мероприятиями достигается ограничение распространения пожара за пределы очага.
22. Какими мероприятиями обеспечивается безопасная эвакуация людей.
23. Средства коллективной и индивидуальной защиты. 24. Требования к системе противодымной защиты.
25. Требования к обеспечению своевременного оповещения людей и (или) сигнализации о пожаре в его начальной стадии техническими или организационными средствами.
26. Требования, предъявляемые к пожарной технике.
27. Дать определения горючести, горения, опасных факторов пожара.
28. Порядок подразделения веществ и материалов в зависимости от их агрегатного состояния дать определения.
29. Показатели, характеризующие взрывопожароопасные свойства веществ и материалов.
30. Дать определения группам горючести веществ и материалов
31. Дать определения пределу огнестойкости строительных конструкций и пределу распространения огня по ним.
32. Что понимается под огнестойкостью зданий и сооружений
33. Степени огнестойкости зданий и сооружений, их характеристики.
34. Дать определения терминам: пожарный отсек, противопожарная преграда противопожарная дверь (ворота, окно, люк), противопожарный клапан, противопожарный занавес, дымозащитная дверь, огнезащитная обработка, огнезащитный подвесной потолок.
35. Перечислить конструктивные решения, которыми достигается ограничение распространения пожара за пределы очага.
36. Привести примеры общих и местных противопожарных преград.
37. Назвать типы противопожарных стен и их пределы огнестойкости.
38. Назвать типы противопожарных перегородок и их пределы огнестойкости.
39. Назвать типы противопожарных перекрытий и их пределы огнестойкости.
40. Назвать типы противопожарных дверей и окон и их пределы огнестойкости.
41. Назвать типы противопожарных ворот, люков и лазов и их пределы огнестойкости.
42. Из каких конструкций состоит тамбур-шлюз и их пределы огнестойкости.
43. Элементы противопожарной зоны 1-го типа и их пределы огнестойкости.
44. Нормативные требования к устройству противопожарных стен.
45. Нормативные требования к устройству противопожарных перегородок.
46. Нормативные требования к устройству противопожарных дверей и их конструктивные особенности.
47. Нормативные требования к устройству тамбур-шлюзов.
48. Нормативные требования к устройству противопожарных зон.
49. Нормативные требования к устройству противопожарных окон и фонарей.
50. В чем заключается пожарная опасность деревянных строительных конструкций.
51. Перечислить способы огнезащиты деревянных строительных конструкций 52 Нормативные требования по огнезащите деревянных строительных конструкций.
53. В чем заключается пожарная опасность металлических строительных конструкций.
54. Перечислить способы огнезащиты металлических строительных конструкций
55. Требования, предъявляемые к организациям, осуществляющим огнезащитные работы.
56. Порядок осуществления контроля за соблюдением требований нормативных документов на средства защиты.
57. С какой целью производится категорирование помещений и зданий по взрывопожарной опасности
58. Категории помещений по взрывопожарной и пожарной опасности. Дать определения.
59. Категории зданий по ввзрывопожарной и пожарной опасности. Дать определения.
60. Категории наружных установок по пожарной опасности. Дать определения
61 Дать определение терминам "путь эвакуации" и "эвакуационный выход"
62 Перечислить в каких случаях пути являются эвакуационными.
63. Основные геометрические параметры путей эвакуации.
64. Противопожарные требования к путям эвакуации.
65. Дать определение термину "противопожарный режим".
66. Противопожарный режим на территории объекта.
67. Противопожарный режим в зданиях, сооружениях и помещениях.
68. Противопожарный режим в чердачных и подвальных помещениях.
69. Общие требования к системам отопления и вентиляции.
70. Требования норм строительного проектирования к системам отопления.
71. Требования норм строительного проектирования к системам вентиляции
72. Требования норм строительного проектирования к системам местной вентиляции.
73. Требования норм строительного проектирования к аварийной вентиляции.
74. Требования норм строительного проектирования к противодымной вентиляции.
75. Требования норм строительного проектирования к системам кондиционирования.
76. Электроснабжение систем вентиляции.
77. Режимные требования пожарной безопасности к системам отопления и вентиляции.
78. Противопожарные требования к другим видам инженерного оборудования.
79. Причины возникновения пожаров от электрического тока.
80. Меры по предупреждению пожаров от электрической энергии.
81. Перечислить классы взрывоопасных зон по ПУЭ и дать их краткую характеристику.
82. Перечислить классы пожароопасных зон по ПУЭ и дать их краткую характеристику.
83. Причины возникновения пожаров от молнии.
84. Меры по предупреждению пожаров от молнии.
85. Перечислить показатели электростатической искроопасности объекта.
86. На какие классы по электростатической опасности подразделяются объекты и их краткая характеристика.
87. Условия обеспечения электростатической искробезопасности.
88. Противопожарные мероприятия при проведении окрасочных работ.
89. Противопожарные мероприятия при работе с клеями и мастиками.
90. Противопожарные мероприятия при проведении огневых работ.
91. Противопожарные мероприятия при проведении газосварочных работ.
92. Противопожарные мероприятия при проведении электросварочных работ.
93. Противопожарные мероприятия при проведении резки и пайки металлов.
94. Порядок организации строительства и производства работ: выбор строительной площадки, разработка задания на проектирование; разработка и согласование стройгенплана; разработка проектов организации строительства и производства работ.
95. Противопожарные требования к территории строящегося (реставрируемого) здания.
96. Требования пожарной безопасности к строительным лесам и другим путям эвакуации работающих.
97. Порядок проведения работ, связанных с монтажом конструкций с горючими утеплителями.
98. Противопожарные мероприятия при эксплуатации горелок инфракрасного излучения и теплопроизводящих установок.
99.
Общие требования пожарной безопасности к объектам хранения.
100. Порядок совместного хранения веществ и материалов.
101. Противопожарные мероприятия при хранении ЛВЖ-ГЖ в таре.
102. Противопожарные мероприятия при хранении горючих газов.
103. Требования строительных норм и правил к размещению газобаллонных установок,
104. Основы законодательства об организации пожарной охраны.
105. Организация деятельности добровольных пожарный формирований.
106. Права и ответственность предприятий за обеспечение пожарной безопасности.
107. Организация работы по профилактике пожаров на предприятии.
108. Сущность нормативно-технической работы ГПН.
109. Административная практика ГПН.
110. Размеры применяемых государственными инспекторами штрафных санкций
111. Протокол и постановление об административном правонарушении.
112. Порядок рассмотрения административного дела.
113. В каких случаях возможна приостановка работы предприятия. Виды приостановки и формы документов на приостановку.
114. Сущность проверок и дознания по делам о пожарах.
115. Вопросы, подлежащие установлению по факту пожара.
116. Документы, оформляемые по результатам проверок и дознания по делам о пожарах.
117. Сущность официального статистического учета пожаров.
118. Учет пострадавших при пожаре и материального ущерба от пожара.
119. Ответственность за учет пожаров.
120. Общие сведения о средствах противопожарной защиты и тушения пожара.
121. Требования к содержанию установок пожарной сигнализации и пожаротушения.
122. Требования к содержанию систем противодымной защиты, оповещения людей о пожаре и управления эвакуацией, средствам связи.
123. Требования к содержанию средств противопожарного водоснабжения
124. Порядок содержания первичных средств пожаротушения.
125. Порядок действий работников при пожаре.
126. Перечислить имеющиеся на предприятии первичные средства пожаротушения.
127. Порядок приведения в действие первичных средств пожаротушения, имеющихся на объекте.
128. Организация эвакуации людей из здания.
129. Порядок вызова подразделений пожарной охраны. Действия после прибытия пожарных подразделений.
Приложение 24
к п.2.3.4.
ПРИКАЗ
(примерный вариант)
«__» _______ 200_ г. №______
г._______________
«О создании пожарно-
технической комиссии
предприятия»
В целях обеспечения пожарной безопасности предприятия и в соответствии с положением о пожарно-технической комиссии на предприятии, -
ПРИКАЗЫВАЮ:
1. Создать пожарно-техническую комиссию предприятия в составе:
Председатель комиссии - _______________Ф.И.О., главный инженер предприятия ___________
Заместитель председателя комиссии - ___________Ф.И.О., главный технолог предприятия
___
Секретарь комиссии - _______________Ф.И.О., инженер пожарной профилактики службы охраны труда и техники безопасности ______________________________________________________
Члены комиссии:
- _______________Ф.И.О., главный энергетик _____________________;
- _______________Ф.И.О., главный механик _______________________;
- _______________Ф.И.О., начальник службы вентиляции ___________;
- _______________Ф.И.О., должность ____________________________;
- _______________и т.д. _______________________________________.
2. Комиссии в своей работе руководствоваться Положением о Пожарно-технической комиссии предприятия и иными действующими на предприятии нормативными документами в области пожарной безопасности.
3. Приказ объявить руководству предприятия, членам комиссии, руководителями структурных подразделений и лицам, ответственным за пожарную безопасность подразделений.
Копию приказа разместить на стендах «Пожарная безопасность».
4. Контроль за выполнением приказа возложить на заместителя генерального директора
_______________________________________________________.
Генеральный директор ___________________ ______________________
Приложение 25
к п.2.3.6.
ПРИКАЗ
(примерный вариант)
«__» _______ 200_ г. №______
г._______________
«О введении в действие
положения о пожарно-
технической комиссии
предприятия»
В целях обеспечения пожарной безопасности предприятия и совершенствования работы пожарно-технической комиссии предприятия, -
ПРИКАЗЫВАЮ:
1. Ввести в действие с «__» _______ 200_ г. прилагаемое положение о пожарно-технической комиссии (ПТК) предприятия.
2. Заместителям генерального директора, руководителям структурных подразделений обеспечить выполнение требований положения в пределах своих служебных обязанностей.
3. Контроль за выполнением приказа возложить на заместителя генерального директора
_______________________________________________________.
Генеральный директор ___________________ ______________________
Приложение 26
к п.2.3.6.
|
«Согласовано» |
«Утверждаю» |
|
|
руководитель органа |
Руководитель предприятия |
|
|
Государственной противопожарной службы |
||
|
«__» _______ 200_ г. |
«__» _______ 200_ г. |
Положение
о пожарно-технической комиссии предприятия
(примерный вариант)
1. Общие положения
1.1. Пожарно-техническая комиссия предприятия (далее - ПТК) создается в соответствии с правилами пожарной безопасности в Российской Федерации (п.1.1.6 ППБ-01-93) с целью привлечения инженерно-технических работников (ИТР) и специалистов предприятия к активному участию в работе по предупреждению пожаров и противопожарной защите предприятия.
1.2. ПТК создаются приказом руководителя предприятия из лиц, ответственных за пожарную безопасность предприятия (подразделений предприятия), с правами и обязанностями, регламентирующими порядок ее работы.
1.3. В состав ПТК включают ИТР, деятельность которых связана с организацией и проведением технологических процессов, эксплуатацией и обслуживанием электроустановок, систем водоснабжения, связи, производственной автоматики, автоматической противопожарной защиты и т.п., а также руководителей ведомственной или добровольной пожарной охраны и специалистов по пожарной безопасности службы охраны труда, представителей профсоюзов.
1.4. На должность председателя ПТК, как правило, назначается главный инженер предприятия, а на должность секретаря — специалист по пожарной безопасности службы охраны труда предприятия. 1.5.
ПТК в своей деятельности руководствуется установленными законодательством требованиями пожарной безопасности предписаниями государственного пожарного надзора, а также настоящим положением.
Она должна поддерживать постоянную связь с профсоюзными организациями и службой охраны труда предприятия, а также соответствующими органами управления или подразделениями Государственной противопожарной службы.
2. Основные задачи ПТК
2.1. Содействие администрации предприятия в проведении пожарно-профилактической работы и осуществлении контроля за соблюдением требований стандартов, норм, правил, инструкций и других нормативных актов по вопросам пожарной безопасности, а также в выполнении предписаний и постановлений государственного пожарного надзора.
2.2. Выявление нарушений в технологических процессах производства, в работе агрегатов, установок, лабораторий, мастерских, на складах, базах и т. п., которые могут привести к возникновению пожара, взрыва или аварии, и разработка мероприятий, направленных на устранение этих нарушений.
2.3. Организация рационализаторской и изобретательской работы по вопросам пожарной безопасности.
2.4 Проведение массово-разъяснительной работы среди рабочих, служащих и ИТР предприятия по вопросам соблюдения требований, противопожарных норм и правил.
3. Функции ПТК
3.1. Выявление взрывопожароопасных производственных факторов на рабочих местах.
3.2. Проведение анализа взрывопожароопасности технологических процессов производства предприятия.
3.3. Оказание помощи подразделениям предприятия в исследовании взрывопожарной опасности технологических процессов производства аттестации рабочих мест и производственного оборудования на соответствие пожарной безопасности.
3.4. Информирование работников от лица работодателя о взрывопожарной опасности технологических процессов производства, о возможных причинах пожаров и взрывов, а также о способах их предотвращения.
3.5 Участие в проверке фактов пожаров на предприятии. Выявление причин и подготовка обоснованных заключений по предотвращению подобных случаев в будущем.
3.6. Проведение совместно с представителями соответствующих подразделений предприятия пожарно-технических обследований зданий, сооружений, оборудования, машин и механизмов на соответствие их требованиям пожарной безопасности (не реже 4 paз в год).
3.7. Разработка совместно с руководителями подразделений и другими службами предприятия мероприятий по профилактике пожаров на предприятии, а также оказание организационной помощи по выполнению запланированных мероприятий.
3.8. Согласование разрабатываемой на предприятии проектной документации в части соблюдения в ней требований пожарной безопасности.
3.9. Участие в работе комиссий по приемке в эксплуатацию законченных строительством или реконструированных производственных объектов, а также в работе комиссий по приемке из ремонта установок, агрегатов, станков и другого оборудования в части соблюдения требований пожарной безопасности.
3.10. Оказание помощи руководителям подразделений предприятия в составлении списков профессий и должностей, в соответствии с которыми работники должны проходить обязательное противопожарное обучение (пожарно-технические минимумы, инструктажи).
3.11. Составление (при участии руководителей подразделений и соответствующих служб предприятия) видов работ, на которые должны быть разработаны инструкции о мерах пожарной безопасности.
3.12. Оказание методической помощи руководителям подразделений предприятия при разработке и пересмотре инструкций о мерах пожарной безопасности для зданий, сооружений, технологических процессов, отдельных видов взрывопожароопасных работ.
3.13. Разработка программы и проведение вводного инструктажа по пожарной безопасности со всеми вновь принимаемыми на работу, командированными, учащимися и студентами, прибывшими на производственное обучение или практику, а также с работниками подрядных организаций, выполняющими различные работы на предприятии.
3.14. Согласование проектов документов: инструкций о мерах пожарной безопасности (общеобъектовой, для подразделений предприятия, технологических процессов и отдельных видов работ); перечней профессий и должностей работников, освобожденных от первичного инструктажа на рабочем месте; программ первичного инструктажа на рабочем месте; программ обучения в системе пожарно-технического минимума.
3.15. Методическая помощь по организации инструктажа или пожарно-технического минимума, а также проверки знаний по вопросам пожарной безопасности работников предприятия.
3.16. Участие в работе комиссий по проверке знаний по пожарной безопасности у работников предприятия.
3.17. Организация обеспечения подразделений предприятия правилами, нормами, плакатами и другими наглядными пособиями по пожарной безопасности, а также оказание им методической помощи в оборудовании стендов "Пожарная безопасность".
3.18. Составление отчетности по пожарной безопасности по установленным на предприятии формам и в соответствующие сроки.
3.19. Осуществление контроля за:
3.19.1. Соблюдением требований законодательных и иных нормативных правовых актов по пожарной безопасности.
3.19.2. Правильным содержанием и сохранностью первичных средств пожаротушения автоматических систем обнаружения и тушения пожара.
3.19.3. Соблюдением "Инструкции о порядке государственного статистического учета пожаров и последствий от них в Российской Федерации" (прил. 1 к приказу МВД России от 30.06.1994 г. № 332).
3.19.4. Наличием в подразделениях инструкций о мерах пожарной безопасности для работников согласно перечню профессий и видов работ, на которые должны быть разработаны инструкции по охране труда, своевременным их пересмотром.
3.19.5. Своевременным проведением соответствующими службами необходимых испытаний и технических освидетельствований оборудования, машин и механизмов.
3.19.6. Эффективностью работы автоматических систем обнаружения и тушения пожара, противодымной защиты, наружного и внутреннего противопожарного водопровода, систем оповещения о пожаре.
3.19.7. Состоянием противопожарных предохранительных приспособлений и защитных устройств.
3.19.8. Своевременным и качественным проведением противопожарного обучения, проверки знаний и всех видов противопожарных инструктажей.
3.19.9. Правильным расходованием в подразделениях предприятия средств, выделенных на выполнение мероприятий пожарной безопасности.
3.20. Подготовка и внесение предложений о разработке и внедрении более совершенных конструкций оградительной техники, предохранительных и блокировочных устройств и других средств защиты от опасных факторов пожара.
3.21. Доведение до сведения работников предприятия о вводимых в действие новых законодательных и иных нормативных правовых актов по пожарной безопасности.
3.22. Организация хранения документации (актов по проверке противопожарного состояния предприятия, актов по проверке фактов пожаров, планов работы и протоколов комиссии, материалов аттестации и сертификации рабочих мест по пожарной безопасности и др.).
3.23. Руководство работой кабинета по пожарной безопасности, организация противопожарной пропаганды и агитации на предприятии. Проведение общественных смотров противопожарного состояния цехов, складов предприятия и боеготовности ДПД, а также проверка выполнения противопожарных мероприятий, предложенных предписаниями государственного пожарного надзора.
4. Организация работы пожарно-технической комиссии.
Стимулирование работы ее членов
4.1. ПТК осуществляют свою работу на основании планов, которые разрабатываются на квартал или полугодие и утверждаются председателем комиссии предприятия. Решения комиссии оформляются протоколами и вводятся в действие приказами руководителя предприятия.
4.2. Все противопожарные мероприятия, намеченные ПТК к выполнению, оформляются актами, утверждаются руководителем предприятия и подлежат выполнению в установленные сроки (приложения 1 и 2 к Положению).
4.3. Повседневный контроль за выполнением противопожарных мероприятий, предложенных комиссией, в подразделениях предприятия возлагается непосредственно на начальника пожарной охраны (ДПД) предприятия или лицо, назначенное ответственным за пожарную безопасность подразделения предприятия.
4.4. ПТК не имеет права отменять или изменять мероприятия, предусмотренные предписаниями государственного пожарного надзора.
В тех случаях, когда по мнению комиссии имеется необходимость изменения или отмены этих мероприятий, комиссия представляет свои предложения руководителю предприятия, который согласовывает этот вопрос с соответствующими органами управления или подразделениями Государственной противопожарной службы.
4.5. Комиссия не менее одного раза в год должна отчитываться о своей работе на общих собраниях (конференциях) трудового коллектива. Этот отчет может проводиться совместно с комиссией по вопросам охраны труда.
4.6. В случае привлечения к противопожарным обследованиям и проверкам, проведению обучения или другим противопожарным мероприятиям члены ПТК могут освобождаться от основной работы с сохранением за ними среднемесячного заработка. Это должно быть отражено в коллективном договоре.
4.7. За добросовестное выполнение возложенных обязанностей, непосредственный вклад в улучшение противопожарного состояния предприятия членам ПТК могут предоставляться материальные и моральные поощрения, применяемые на предприятии.
5. Права членов ПТК
5.1. В любое время суток беспрепятственно осматривать производственные, служебные и бытовые помещения предприятия, знакомиться с документами no пожарной безопасности.
5.2. Проверять противопожарный режим в подразделениях предприятия и предъявлять должностным лицам и ответственным за пожарную безопасность обязательные для исполнения акты об устранении выявленные нарушений тpeбoваний пожарной безопасности.
53. Запрещать эксплуатацию машин, оборудования и производство работ в цехах на участках, рабочих местах при выявлении нарушений инструкций о мерах пожарной безопасности, которые могут привести к пожару, с уведомлением об этом руководителей подразделения и предприятия.
5.4. Привлекать по согласованию с руководителем предприятия и руководителями подразделений соответствующих специалистов к проверке состояния пожарной безопасности.
5.5. Запрашивать и получать от руководителей подразделений материалы по вопросам пожарной безопасности, требовать письменные объяснения от лиц. допустивших нарушения противопожарного режима.
5.6. Требовать от руководителей подразделений отстранения от работы лиц, не прошедших в установленном порядке инструктаж по пожарной безопасности, обучение и проверку знаний в системе пожарно-технического минимума или грубо нарушающих правила, нормы и инструкции о мерах пожарной безопасности.
5.7. Представлять руководителю предприятия, руководителям подразделений предприятия предложения о поощрении отдельных работников за активную работу по созданию пожаробезопасных условий труда, а также о привлечении к ответственности виновных в нарушении требований пожарной безопасности.
5.8. Представительствовать по поручению руководства предприятия в государственных и общественных организациях при обсуждении вопросов пожарной безопасности.
Приложение 1. Форма акта проверки противопожарного состояния объекта (цеха, участка).
Приложение 2. Форма акта пожарно-технической комиссии по проверке причины пожара
Приложение 1
к Положению о ПTK
"УТВЕРЖДАЮ"
Руководитель предприятия
_______________________
"__" _______ 200_г.
АКТ
проверки противопожарного состояния
объекта (цеха, участка)
Пожарно-техническая комиссия ____________________________________________ в составе:
(наименование предприятия)
Председатель комиссии:___________________________________________________________
(должность, фамилия, инициалы)
Члены комиссии: _________________________________________________________________
(должность, фамилия, инициалы)
в период с ______________ по ____________ 200__ г.
провела противопожарное обследование _____________________________________________
(предприятие или структурные подразделения, которые проверялись)
________________________________________________________________________________
Комиссия выявила:
нарушения требований правил пожарной безопасности (Общеобъектовой/ цеховой/ инструкции о мерах пожарной безопасности), подлежащие устранению:
|
№ п/п |
Мероприятия, предлагаемые для устранения нарушений противопожарных требований |
Намечаемые сроки устранения нарушений и ответственный исполнитель |
Отметка об устранении нарушений |
|
1 |
2 |
3 |
4 |
Подписи членов ПТК: __________________________________
___________________________________
___________________________________
___________________________________
«__»_______ 200_ г.
Контрольные проверки устранения нарушений противопожарных требований
|
Дата |
Номера невыполненных противопожарных мероприятий |
Проверяющий |
Ознакомлен |
||
|
должность |
подпись |
должность |
подпись |
||
|
1 |
2 |
3 |
4 |
5 |
6 |
|
Дата |
Должность, фамилия, имя, отечество привлекаемого к дисциплинарной ответственности |
№ приказа (распоряжения) по предприятию |
|
1 |
2 |
3 |
к Положению о ПTK
"УТВЕРЖДАЮ"
Руководитель предприятия
_______________________
"__" _______ 200_г.
АКТ
пожарно-технической комиссии по проверке причины пожара
___________________________________
(наименование проверяемого объекта)
Комиссия в составе:
Председатель ПТК - ___________________________________________________________
(должность, Ф.И.О.)
Члены ПТК - __________________________________________________________________
(должность, Ф.И.О.)
составили настоящий Акт по результатам проверки причины пожара,
происшедшего «__»_______200_ г. в ______________________________________________
по адресу: ____________________________________________________________________
Проверкой установлено: пожар произошел _________________________________________
______________________________________________________________________________
( Дается полная характеристика объекта пожара: этажность, материал стен, перекрытий,
______________________________________________________________________________
наличие чердака и подвала; электро-, водо- и теплоснабжение, телефонная сеть, лифт и пр.
______________________________________________________________________________
Расположение очага пожара, наличие в месте наибольших огневых повреждений электроприборов,
______________________________________________________________________________
приборов отопления и наличие протечек. Заключения специалистов по возможным источникам зажигания.
______________________________________________________________________________
Пути распространения огня и характерные огневые повреждения конструкций, оборудования, мебели, вещей.
______________________________________________________________________________
Количество уничтоженных (поврежденных) огнем комнат, площадей, оборудования.
______________________________________________________________________________
Предполагаемый ущерб – прямой и косвенный)
Комиссия считает, что наиболее вероятной причиной пожара стало:
______________________________________________________________________________
(внесение открытого источника зажигания, аварийная работа электропроводки и т.п.)
Виновным в возникновении пожара является ________________________________________
______________________________________________________________________________,
нарушивший требования ППБ 01-93 (Инструкции о мерах пожарной безопасности,
принятой на предприятии) ________________________________________________________
______________________________________________________________________________
(Указать конкретные пункты нарушений)
______________________________________________________________________________
______________________________________________________________________________
В целях предупреждения подобных случаев пожаров Комиссия предлагает:
______________________________________________________________________________
______________________________________________________________________________
______________________________________________________________________________
______________________________________________________________________________
______________________________________________________________________________
Председатель ПТК _____________________________________________________________
(подпись)
Члены ПТК: ___________________________________________________________________
(подпись)
Приложение 27
к п.2.4.4.
Приказ
(примерный вариант)
«__» _______ 200_ г. №______
г._______________
«О создании добровольной
пожарной дружины (ДПД)
предприятия (цеха)»
В целях обеспечения пожарной безопасности, а также в соответствии с Положением о ДПД предприятия и на основании поданных заявлений, -
ПРИКАЗЫВАЮ:
1. Создать ДПД предприятия (цеха) в количестве пяти человек.
2. Зачислить в состав ДПД предприятия (цеха):
- Иванова Ивана Ивановича, заместителя начальника электромеханического цеха;
- Петрова Петра Петровича, бригадира электромонтажников;
- Васильева Василия Васильевича, электромонтажника;
-
-
Основание: заявления г.г. Иванова И.И., Петрова П.П., Васильева В.В….
3. Начальником ДПД предприятия (цеха) НАЗНАЧИТЬ Иванова Ивана Ивановича, заместителя начальника электромеханического цеха.
4. Начальнику ДПД Иванову И.И. работу и деятельность ДПД организовать и проводить в соответствии с Положением о ДПД предприятия, введенным в действие приказом от «__»_______200_г. №______.
5. Приказ объявить руководству предприятия, руководителям структурных подразделений и лицам, ответственным за пожарную безопасность в подразделениях, а также членам ДПД под роспись.
Копию приказа разместить на стендах «Пожарная безопасность».
6. Контроль за выполнением приказа и деятельностью ДПД возложить на заместителя генерального директора ___________________________.
Генеральный директор ________________________ ___________________________
Приложение 28
к п.2.4.6.
Приказ
(примерный вариант)
«__» _______ 200_ г. №______
г._______________
«О введении в действие
Положения о добровольных
пожарных дружинах
(командах) предприятия»
В целях обеспечения пожарной безопасности и совершенствования деятельности добровольных противопожарных формирований предприятия, -
ПРИКАЗЫВАЮ:
1. Ввести в действие с «__» _______ 200_г. прилагаемое Положение о добровольных пожарных дружинах (командах) предприятия.
2. Заместителю генерального директора ______________________________, руководителям структурных подразделений, лицам, ответственным за пожарную безопасность в подразделениях:
2.1. Работу по созданию и практической деятельности добровольных пожарных дружин (ДПД) организовать и проводить в соответствии с введенным в действие настоящим приказом Положением.
2.2. Организовать в установленном порядке материально-техническое обеспечение ДПД.
3. Приказ объявить руководству предприятия, руководителям структурных подразделений и лицам, ответственным за пожарную безопасность в подразделениях под роспись.
Копию приказа разместить на стендах «Пожарная безопасность».
4. Контроль за выполнением приказа возложить на заместителя генерального директора _____________________________.
Генеральный директор ____________________ ____________________
Приложение 29
к п.2.4.6.
|
«Согласовано» |
«Утверждаю» |
|
|
руководитель органа |
Руководитель предприятия |
|
|
Государственной противопожарной службы |
||
|
«__» _______ 200_ г. |
«__» _______ 200_ г. |
о добровольных пожарных дружинах (командах) предприятия
(примерный вариант)
1. Общие положения
1.1. Добровольные пожарные дружины (далее - ДПД) создаются на предприятии на основании правил пожарной безопасности в Российской Федерации ППБ-01-93 (п.1.1.6 [2]).
1.2. ДПД могут быть общеобъектовыми и(или) цеховыми.
1.3. ДПД создаются на предприятии (в подразделении) с числом работающих от 30 человек и более.
1.4. Обязанности по созданию и организации деятельности ДПД на предприятии в целом возлагаются на руководителя предприятия, а по созданию и организации деятельности цеховых ДПД – на руководителей структурных подразделений.
1.5. ДПД создаются в целях обеспечения соблюдения требований действующих на предприятии правил, норм, инструкций пожарной безопасности, приказов и распоряжений руководителя предприятия (структурного подразделения), проведения мероприятий по предупреждению и тушению пожаров.
1.6. Добровольные пожарный команды (далее - ДПК) организуются из членов ДПД при наличии на предприятии мобильной пожарной техники (пожарные автомобили, пожарные мотопомпы) для обеспечения круглосуточного дежурства нештатных боевых пожарных расчетов.
1.7. При работе предприятия (подразделения) в несколько смен создаются отделения ДПД (нештатные боевые пожарные расчеты) по числу работающих смен.
1.8. В своей деятельности ДПД руководствуются законодательными и иными нормативными актами Российской Федерации, соответствующих субъектов Российской Федерации, нормативными и иными актами государственной противопожарной службы, ведомственными документами, приказами, распоряжениями и инструкциями по предприятию, регламентирующими пожарную безопасность предприятия, а также настоящим Положением.
1.9. Контроль за деятельностью ДПД осуществляется руководством предприятия (структурного подразделения), членами пожарно-технических комиссий, лицами, ответственными за пожарную безопасность предприятия (подразделений), а также должностными лицами органов (подразделений) Государственной противопожарной службы.
2. Основные задачи ДПД (ДПК)
2.1. Основными задачами ДПД являются организация предупреждения пожаров и их тушение, включающие в себя:
2.1.1. Контроль за соблюдением работающими и другими гражданами установленного на предприятии (на территории, в зданиях и сооружениях, при проведении технологических процессов) противопожарного режима.
2.1.2. Разъяснение работающим основных положений общеобъектовой (цеховой) инструкции о мерах пожарной безопасности.
2.1.3. Надзор за исправным состоянием средств противопожарной защиты и готовностью их к действию.
2.1.4. Дежурство в праздничные и выходные дни в противопожарных нарядах по предприятию (цеху).
2.1.5. Участие в проверке фактов пожаров, установлении их причин и последствий, а также в разработке противопожарных мероприятий.
2.1.6. Контроль за проведением временных взрывопожароопасных работ в подразделениях предприятий (сварка, окраска, применение открытого огня и т. п.).
2.1.7. Вызов подразделений пожарной охраны в случае возникновения пожара, принятие необходимых мер по спасанию людей, имущества и ликвидации пожара имеющимися на предприятии (цехе) первичными средствами пожаротушения.
2.2. Основной задачей добровольных пожарных команд (ДПК) является организация тушения пожаров и включает в себя:
2.2.1. Осуществление круглосуточного дежурства на мобильной пожарной технике.
2.2.3. Проведение технического обслуживания пожарной техники и оборудования, содержание их в постоянной боевой готовности.
2.2.4. Первоочередные боевые действия по тушению пожаров до прибытия подразделений пожарной охраны.
2.2.5. Выполнение боевых действий на пожаре по указанию прибывшего на пожар старшего оперативного должностного лица пожарной охраны (руководителя тушения пожара).
3. Порядок создания и организации работы ДПД
3.1. ДПД организуются на добровольных началах из числа рабочих ИТР и служащих предприятия (подразделения) в возрасте не моложе 17 лет (по аналогии со статьей 7 Федерального закона «О пожарной безопасности» [1]).
3.2. Все вступающие в ДПД должны подать на имя руководителя предприятия письменное заявление.
Руководитель предприятия обязан организовать проведение предварительного медицинского осмотра подавших заявление на предмет отсутствия у них противопоказаний для работы в пожарной охране (медицинская справка по форме 286).
3.3. ДПД организуются таким образом, чтобы в каждом подразделении (в каждой работающей смене) с числом работающих от 30 человек и более были отделения дружины.
Зачисление в ДПД и последующие изменения состава дружин (команд) объявляются приказом по предприятию.
3.4. Каждый член ДПД должен быть пригоден к выполнению возложенных на него задач, а также должен иметь необходимые знания и навыки для осуществления обязанностей согласно табелю боевого расчета (приложение 1).
3.5. Члены ДПД допускаются к выполнению возлагаемых на них обязанностей после прохождения первоначального обучения по программе и в порядке принятыми территориальными (местными, объектовыми) органами управления (подразделениями) государственной противопожарной службы.
3.6. Последующее обучение членов ДПД осуществляется начальником ДПД (ДПК) предприятия (подразделения) по программе последующей подготовки членов ДПД (приложение 2).
Учебные занятия с членами ДПД проводятся по расписаниям, утвержденным руководителем предприятия (подразделения), в свободное от работы время (не более 4 часов в месяц).
В ходе последующей подготовки члены ДПД должны изучить документы. регламентирующие организацию работы по предупреждению пожаров и их тушению, эксплуатации пожарной техники, а также пожарную опасность обслуживаемых объектов предприятия и правила по охране труда.
3.7. Последующая подготовка членов ДПД должна планироваться таким образом, чтобы все члены дружины (команды) не менее одного раза в квартал практически отрабатывали действия по тушению условных пожаров на предприятии с использованием имеющейся в их распоряжении пожарной техники и первичных средств пожаротушения.
При подготовке членов ДПД к работе в задымленных при пожаре помещениях тренировка должна осуществляться с использованием средств защиты органов дыхания (изолирующих противогазов или противогазов на сжатом воздухе).
3.8. Начальники дружин и их заместители (начальники отделений) назначаются, как правило, из числа административно-технического персонала предприятия или его подразделений и подчиняются руководителю предприятия.
3.9. ДПК организуется из членов ДПД и может иметь в своем составе штатных работников. К штатным работникам могут относиться: начальник команды, начальник боевого расчета, шофер (моторист).
Штатные работники ДПК обязаны иметь соответствующую квалификацию.
3.10. Начальник ДПК предприятия должен иметь:
высшее или среднее специальное образование пожарно-технического профиля;
высшее или среднее специальное образование и стаж работы в пожарной охране на должностях начальствующего состава не менее пяти лет.
4. Обязанности начальника и членов ДПД (ДПК)
4.1. Начальник ДПД (ДПК) обязан:
4.1.1. Осуществлять контроль за соблюдением противопожарного режима на объекте, а также за готовностью к действию первичных средств пожаротушения, систем пожарной автоматики, водоснабжения, имеющихся на предприятии, и не допускать использования этих средств не по прямому назначению.
4.1.2. Вести разъяснительную работу среди рабочих и служащих о мерах пожарной безопасности.
4.1.3. Проводить занятия с личным составом дружин (команд) и проверять боеготовность подразделений ДПД (ДПК).
4.1.4. Руководить тушением пожаров на предприятии до прибытия подразделений Государственной противопожарной службы.
4.1.5. Информировать руководителя предприятия о нарушениях противопожарного режима.
4.2. Начальник отделения ДПД обязан:
4.2.1. Осуществлять контроль за соблюдением противопожарного режима на объекте и готовностью к действию первичных средств пожаротушения.
4.2.2. Перед началом работы проверять присутствие членов отделения ДПД.
4.2.3. Проверить знание членами ДПД своих обязанностей.
4.2.4. По окончании работы проверять противопожарное состояние, принимать меры к устранению выявленных недочетов.
4.2.5. Обеспечить явку на занятия членов ДПД отделения.
4.2.6. В случае возникновения пожара руководить его тушением до прибытия подразделений Государственной противопожарной службы или начальника ДПД (ДПК).
4.3. Начальник боевого расчета ДПК обязан:
4.3.1. Знать порядок управления боевыми действиями на пожаре и применения имеющейся пожарной техники и оборудования, места размещения пожарных водоисточников (водоемов, гидрантов, внутреннего противопожарного водопровода и пр.).
4.3.2. При заступлении на дежурство (на работу) принять имеющуюся пожарную технику и оборудование, средства связи и защиты органов дыхания; следить за их исправностью. Докладывать начальнику) ДПД или руководителю предприятия о выявленных недостатках.
4.3 3. Проверять знание членами ДПК своих обязанностей согласно табелю обязанностей боевого расчета.
4.3.4. При получении сообщения о пожаре выехать на тушение и действовать согласно табелю боевого расчета.
4.4. Члены дружин (команд) обязаны:
4.4.1. Знать, соблюдать и требовать от других соблюдения противопожарного режима на предприятии,
4.4.2. Знать свои обязанности по табелю боевого расчета и в случае возникновения пожара принимать активное участие в его тушении.
4.4.3. Следить за готовностью к действию систем противопожарной защиты, пожарной техники и первичных средств пожаротушения, имеющихся на предприятии, и о всех обнаруженных недостатках докладывать начальнику отделения ДПД (боевого расчета ДПК), а при возможности самому устранять эти недостатки.
4.4.4. Выполнять возложенные на членов ДПД обязанности, распоряжения начальника дружины (команды), повышать свои пожарно-технические знания и навыки тушения пожаров, посещать учебные занятия, предусмотренные расписанием.
5. Стимулирование деятельности ДПД
5.1. Членам ДПД предоставляется преимущественное право при приеме на работу в ГПС или ведомственную пожарную охрану.
5.2. Все расходы по содержанию ДПД осуществляются за счет предприятия.
5.3. Оплата труда членов ДПД за время их участия в ликвидации пожара или последствий аварии, проведении пожарно-профилактических мероприятий, а также учебной подготовки и дежурств производится из расчета среднемесячного заработка по месту работы.
5.4. Членам ДПД, принимающим активное участие в обеспечении пожарной безопасности на предприятии и тушении пожаров, предоставляются дополнительный отпуск с сохранением заработной платы продолжительностью до 6 рабочих дней в год, а также денежные премии и ценные подарки.
5.5. Страхование членов ДПД осуществляется за счет предприятия.
За семьей погибшего (умершего) члена ДПД сохраняется право на льготы, которыми он пользовался по месту работы.
6. Исключение из членов ДПД
6.1. Основаниями прекращения членства в ДПД являются;
6.1.1. Систематическое невыполнение или уклонение от выполнения членом ДПД обязанностей, предусмотренных настоящим Положением
6.1.2. Невыход на дежурство в соответствии с утвержденным графиком дежурств без разрешения соответствующего должностного лица, или самовольное оставление дежурства.
6.1.3. Нарушение дисциплины или совершение проступков, несовместимых с пребыванием в дружине (команде).
6.1.4. Собственное желание.
6.1.5. Ликвидация ДПД на предприятии (в подразделении).
6.1.6. Перевод члена ДПД на работу на другое предприятие (подразделение).
6.1.7. Увольнение члена ДПД с предприятия (подразделения).
6.2. Решение об исключении из членов ДПД принимает руководитель предприятия, (подразделения).
6.3. Исключение из членов ДПД оформляется приказом по предприятию.
Приложение 1
к Положению о ДПД (ДПК)
Типовой табель обязанностей
отделения ДПД из 5-ти и 3-х человек
(примерный вариант)
Отделение ДПД из 5-и человек
Начальник ДПД: Ф.И.О. _____________________________________________________
Осуществляет контроль за соблюдением противопожарного режима и исправностью средств пожаротушения. Проводит инструктаж рабочих и служащих по вопросам пожарной безопасности. Проводит занятия с личным составом ДПД. Информирует руководство предприятия о нарушениях противопожарного режима.
При пожаре руководит членами ДПД, осуществляет эвакуацию рабочих и служащих до прибытия подразделений пожарной охраны.
Дружинник № 1: Ф.И.О. ________________________
Проверяет исправность средств извещения о пожаре. Следит за тем, чтобы пути эвакуации не были загромождены. Во время отсутствия начальника ДПД исполняет его обязанности.
При пожаре сообщает в пожарную часть по телефону 0-1 и оповещает руководство предприятия и вахту на проходной встречают подразделения пожарной охраны и указывает место пожара.
В отсутствие начальника ДПД исполняет его обязанности.
Дружинник № 2: Ф.И.О. ___________________________________
Следит за состоянием первичных средств пожаротушения. При пожаре принимает участие в эвакуации рабочих и служащих, работает с огнетушителем или другими средствами пожаротушения. В отсутствие начальника ДПД исполняет обязанности дружинника №1.
Дружинник № 3: Ф.И.О. ________________________
Дружинник № 4: Ф.И.О. _______________________
На отведенных им участках следят за соблюдением противопожарного режима. Через начальника ДПД принимают меры по устранению выявленных нарушений.
При пожаре обеспечивают эвакуацию людей из помещений. Ликвидируют пожар имеющимися средствами пожаротушения.
Отделение ДПД из 3-х человек
Начальник ДПД: Ф.И.О. ______________________
Осуществляет контроль за соблюдением противопожарного режима и исправностью средств пожаротушения. Проводит инструктаж рабочих и служащих по вопросам пожарной безопасности. Проводит занятия с личным составом ДПД. Информирует руководство предприятия о нарушениях противопожарного режима.
При пожаре руководит членами ДПД, осуществляет эвакуацию рабочих и служащих до прибытия подразделений пожарной охраны.
Дружинник № 1: Ф.И.О.. ________________________
Проверяет исправность средств извещения о пожаре. Следит за тем, чтобы пути эвакуации не были загромождены. Во время отсутствия начальника ДПД исполняет его обязанности.
При пожаре сообщает в пожарную часть по телефону 0-1 и оповещает руководство предприятия и вахту на проходной. Встречает подразделения пожарной охраны и указывает место пожара.
В отсутствие начальника ДПД исполняет его обязанности.
Дружинник № 2: Ф.И.О. ________________________
Следит за состоянием первичных средств пожаротушения и соблюдением противопожарного режима работающими.
При пожаре принимает участие в эвакуации рабочих и служащих, работает с огнетушителем или другими средствами пожаротушения.
В отсутствие начальника ДПД исполняет обязанности дружинника №1.
Приложение 2
к Положению о ДПД (ДПК)
Типовая программа
последующей подготовки членов ДПД
(примерный вариант)
Тема 1. Организация службы добровольных пожарных дружин и команд (2 ч).
Тема 2. Возможные причины возникновения пожаров и меры их предупреждения. Противопожарный режим на территории предприятия, в зданиях и помещениях (8-12 ч).
Тема 3. Средства пожаротушения, связи и оповещения о пожаре (6ч).
Тема 4. Обязанности членов ДПД (ДПК) по табелю боевого расчета (4 ч).
Тема 5. Основные правила тушения пожаров (6-8 ч).
Тема 6. Правила охраны труда в пожарной охране (4 ч).
Тема 7. Оказание первой медицинкой помощи (2 ч).
Приложение 30
к п.2.6.5.
Рекомендуемые образцы документов по техническому обслуживанию огнетушителей.
Эксплуатационный паспорт на огнетушитель
1. Номер, присвоенный огнетушителю
2. Дата введения огнетушителя в эксплуатацию
3. Место установки огнетушителя
4. Тип и марка огнетушителя
5. Завод-изготовитель огнетушителя
6. Заводской номер
7. Дата изготовления огнетушителя
8. Марка (концентрация) заряженного ОТВ
|
Дата и вид проведенного технического обслуживания |
Результаты технического обслуживания огнетушителя |
Должность, фамилия, инициалы и подпись ответственного лица |
||||
|
Внешний вид и состояние узлов огнетушителя |
Полная масса огнетушителя |
Давление (при наличии индикатора давления)* или масса газового баллона** |
Состояние ходовой части передвижного огнетушителя |
Принятые меры по устранению отмеченных недостатков |
||
* Давление в корпусе закачного огнетушителя или в газовом баллоне (если он расположен снаружи и оснащен манометром или индикатором давления).
** Масса баллона со сжиженным газом для вытеснения ОТВ из огнетушителя. Если баллончик расположен внутри корп) огнетушителя, то его масса определяется раз в год (для порошковых огнетушителей - выборочно) и сравнивается со значение указанным в паспорте огнетушителя.
Журнал технического обслуживания огнетушителей
|
№ и марка огнетушителя |
Техническое обслуживание (вид и дата) |
Замечания о техническом состоянии |
Принятые меры |
Должность фамилия, инициалы подпись ответственного |
||||
|
Проверка узлов огнетушителя |
Проверка качества ОТВ |
Проверка индикатора давления |
Перезарядка огнетушителя |
Испытание узлов огнетушителя |
||||
Журнал проведения испытаний и перезарядки огнетушителей
|
№и марка огнетушителя |
Дата проведения испытания и перезарядки; организация, проводившая техобслуживание |
Результаты осмотра и испытания на прочность |
Срок следующего планового испытания |
Дата проведения перезарядки огнетушителя |
Марка (концентрация) заряженного ОТВ |
Результат осмотра после перезарядки |
Дата следующей плановой перезарядки |
Должность фамилия, инициалы подпись ответственного лица |
по правилам пожарной безопасности в здании
аппаратно-студийного комплекса ТРК
1. Все сотрудники должны знать порядок своих действий в случае возгорания (или пожара).
2. Категорически запрещается курение в здании, кроме курительного помещения, пользование бытовыми электронагревательными приборами, проведение огневых (сварочных) работ.
3. Все сотрудники (по службам и отделам) должны знать порядок действий по отключению электрооборудования и аппаратуры в случае пожара и порядок эвакуации ценностей.
4. Средства пожаротушения (огнетушители) следует располагать в легкодоступном месте. Проходы к средствам пожаротушения держать свободными.
5. Запрещается тушение водой электроустановок, находящихся под напряжением.
6. Обращать особое внимание на недопустимость захламления мест ненужными бумагами, лишними кассетами и т.п. Ненужные кассеты и документы хранить в отведенном месте.
7. Запрещается производить прокладку электрических коммуникаций самостоятельно, без согласования (или участия) техслубжы.
8. Периодически проводить плановое техническое обслуживание, профилактический осмотр электрооборудования и эл.сетей.
9. Запрещается оставлять без присмотра работающее и неотключенное оборудование — компьютеры, телемониторы, и.п.
10. Запрещается использование неисправным электрооборудованием, переносками, лампами, делать скрутки эл.проводов.
Порядок действий в случае возникновения пожара
(возгорания)
1. Каждый работник, обнаруживший пожар или его, признаки (задымленностъ, запах горения или тления материалов, появление повышенной температуры) обязан:
а) принять меры по обнаружению источника пожара (или возгорания);
б) принять меры по тушению (локализации) возгорания подручными средствами и своими силами;
в) при крупном возгорании (пожаре) немедленно сообщить на вахту или напрямую в пожарную охрану по тел: "01".
г) прекратить все работы, не связанные с мероприятием по ликвидации пожара;
д) организовать отключение эл.энергии, всех приборов, агрегатов, аппаратов, остановку систем вентиляции и кондиционирования;
е) в случае угрозы жизни людей немедленно организовать их спасение (или эвакуацию);
ж) организовать встречу подразделений пож.охраны, и сообщить начальнику пожаротушения все необходимые сведения о пожаре.
Утверждаю
Главный инженер
______________________
«__» ___________ 200_ г.
ПРОГРАММА
вводного инструктажа и инструктажа на рабочем месте
для работников телерадиокомпании _________________
I. Законодательство по охране труда:
- рабочее время и время отдыха;
- охрана труда женщина и молодежи;
- общие сведения о предприятии;
- порядок расследования и оформления производственного травматизма и профессиональных заболеваний
- правила внутреннего трудового распорядка
II. Техника безопасности:
- основные опасные производственные факторы и причины несчастных случаев на производстве, в т.ч. на транспорте;
- основные методы и технические средства предупреждения несчастных случаев, требования к производственному и производственным процессам в ССБТ (предохранительные, оградительные, сигнализирующие устройства, цвета и знаки безопасности), организации рабочего места;
- эл.безопасность (действие на организм человека и виды поражения им; условия, повышающие опасность поражения эл.током; основные мероприятия по предупреждению электротравм).
III. Производственная санитария
- основные санитарно-гигиенические факторы производственной среды (общие понятия о вредных производственных факторах, предельно допустимые их значения; требования и нормы по видам опасных и вредных производственных факторов в ССБТ).
IV. Средства индивидуальной защиты работающих:
- спецодежда;
- спецобувь;
- средства защиты рук;
- средства защиты головы, глаз и лица;
- средства защиты органов дыхания;
- средства защиты от шума, вибрации;
- предохранительные приспособления.
V. Пожарная безопасность:
- основные причины пожаров и взрывов;
- общие меры по обеспечению пожарной безопасности;
- первичные средства тушения пожаров и правила пользования ими;
- огнегасительные вещества;
- действия обслуживающего персонала при возникновении пожара.
VI. Первая помощь пострадавшим при получении:
- эл.травмы;
- механической травмы;
- термических ожогов;
- кислотно-щелочных ожогов;
- отравлений;
- травмы глаз.
Перечень основных вопросов при инструктаже на рабочем месте
1. Основные сведения о технологическом процессе и оборудовании на данном производственном участке; основные опасные и вредные производственные факторы.
2. Безопасная организация и содержание рабочего места.
3. Устройство оборудования (станка, машины, прибора и т.д.), опасная зона оборудования, предохранительные приспособления и ограждения, системы блокировки и сигнализации.
4. Порядок подготовки к работе (проверка исправности оборудования, инструментов, приборов, приспособлений, блокировок, заземления и др. средств защиты).
5. Безопасные приемы и методы работы, действия при возникновении опасной ситуации, аварии.
6. Средства индивидуальной защиты на данном рабочем месте и правила пользования ими.
7. Схема безопасного передвижения работающих на территории цеха, п/п.
8. Внутрицеховые транспортные и грузоподъемные средства и механизмы, требования безопасности при погрузо-разгрузочных работах и транспортировке грузов.
9. Меры предупреждения пожаров, обязанность при их возникновении, способы применения имеющихся в цехе, п/п (участке) средств пожаротушения и сигнализации, места их расположения.
Согласно приказа по предприятию, после вводного инструктажа, до назначения на самостоятельную работу, каждый вновь принятый работник проходит обучение непосредственно на рабочем месте. Одновременно работник изучает правила охраны труда.
Для обучения работников безопасным приемам работы распоряжением начальника цеха (п/п) вновь принятый работник закрепляется за опытным работником цеха.
После обучения принимается экзамен по ОТ и осуществляется допуск к самостоятельной работе.
|
СОГЛАСОВАНО: |
УТВЕРЖДАЮ: |
|
|
Главный инженер Пожарного подразделения СКЖД |
Главный инженер телерадиокомпании |
|
|
______________________ |
_____________________ |
|
|
«__» __________ 200_ г. |
«__» __________ 200_ г. |
Правила противопожарной безопасности
в производственных помещениях ТРК
__________________________
Лица, ответственные за противопожарную безопасность по подразделениям ТРК назначаются приказом руководителя.
Они обязаны:
- знать и строго выполнять правила противопожарной безопасности и осуществлять контроль за их выполнением сотрудниками ТРК;
- обеспечивать исправное состояние и постоянную готовность к действию имеющихся средств связи и пожаротушения;
- не допускать к работе лиц , не прошедших инструктаж по противпожарной безопасности;
- при возникновении пожара принять меры для тушения пожара до прибытия пожарной части;
- обучать сотрудников приемам и методам тушения пожара, порядку вызова пожарной охраны;
- по окончании рабочего дня осматривать закрываемые помещения и устранять замеченные нарушения.
Запрещается:
- загромождать пути эвакуации и подступы к средствам тушения пожара и связи;
- пользоваться средствами тушения пожара не по их прямому назначению;
- разводить огонь в местах, не предназначенных специально для этих целей без разрешения пожарной охраны;
- допускать производство огневых работ без письменного разрешения руководителя подразделения и согласования с пожарной охраной;
- оставлять неубранными от мусора рабочие места. Мусор и отходы после смены подлежат выносу в специально отведенное для этого место;
- оставлять без присмотра работающее оборудование.
Обтирочный промасленный материал хранить только в металлической, закрывающейся крышкой таре.
В случае возникновения пожара необходимо:
- вызвать пожарную охрану по телефону 9-01;
- выключить электрооборудование и вентиляцию;
- до прибытия пожарного подразделений эвакуировать людей, оборудование, материалы, организовать тушение пожара первичными средствами;
- встретить пожарную команду, доложить обстановку, указать подъезды, расположение гидрантов, пожарных кранов, оказывать помощь при тушении пожара.
Ответственный за противопожарную безопасность _________________
|
СОГЛАСОВАНО |
Утверждаю |
|
|
______________________ |
____________________ |
о мерах пожарной безопасности
в помещениях кабельной телекомпании
Вводится в действие
с «__» ______ 200_ г.
Приказ №__________
от «__» ______ 200_ г.
ОБЩИЕ ПОЛОЖЕНИЯ
1.1. В настоящей инструкции изложены основные требования пожарной безопасности обязательные для исполнения всеми сотрудниками предприятия и работниками сторонних организаций, производящими какие-либо работы в помещениях здания _______________________.
Нарушение (невыполнение, ненадлежащее выполнение или уклонение от выполнения) требований пожарной безопасности, влечет уголовную, административную, дисциплинарную, материальную и иную ответственность в соответствии с действующим законодательством Российской Федерации.
1.2. Наряду с настоящей инструкцией, при обеспечении пожарной безопасности, следует руководствоваться стандартами, строительными нормами и правилами, «Правилами пожарной безопасности в Российской Федерации» и другими утвержденными в установленном порядке нормативными документами, регламентирующими требования пожарной безопасности.
1.3. Персональную ответственность за обеспечение пожарной безопасности в помещениях предприятия несет директор ______________, своим приказом (распоряжением) он назначает ответственных за пожарную безопасность отдельных участков и помещений предприятия.
Директор предприятия обязан обеспечить:
1.3.1. изучение и соблюдение требований настоящей инструкции всеми работниками предприятия;
1.3.2. своевременное выполнение требований пожарной безопасности, предписаний, постановлений и иных законных требований инспекторов по пожарному надзору;
1.3.3. проведение противопожарных инструктажей с сотрудниками предприятия (вводного, на рабочем месте, внепланового и повторного);
1.3.4. содержание в исправном состоянии и постоянной готовности к применению средств противопожарной защиты и системы оповещения, проведение, в установленные графиками сроки, им технического обслуживания и планово-предупредительного ремонта;
1,3.5. оснащение помещений наглядной агитацией по пожарной безопасности;
1.3.6. соблюдение требований пожарной безопасности сотрудниками предприятия.
1.4. Лицо, ответственное за пожарную безопасность производственного или складского помещения обязано:
1.4.1. обеспечить выполнение требований пожарной безопасности в помещении и на прилегающей территории;
1.4.2. знать пожарную опасность технологического процесса, оборудования, материалов, обращающихся в производстве;
1.4.3. следить за тем, чтобы из помещений предприятия и с прилегающей территории регулярно вывозилась тара и сгораемые отходы;
1.4.4. организовать противопожарную подготовку работников предприятия;
1.4.5. не допускать к работе лиц, не прошедших противопожарный инструктаж;
1.4.6. оказывать содействие сотрудникам Государственной противопожарной службы в расследовании причин и условий возможных пожаров в помещениях предприятия;
1.4.7. следить за исправностью установки пожарной сигнализации, системы отопления, электроустановок, средств пожаротушения и принимать меры к устранению обнаруженных неисправностей, а также соблюдением сроков их технического обслуживания и при несоблюдении сроков технического обслуживания принимать исчерпывающие меры к проведению регламентных работ в, установленные соответствующей документацией, сроки;
1.4.8. знать правила использования имеющихся средств пожаротушения и обеспечивать их постоянную готовность к действию;
1.4.9. разрабатывать противопожарные мероприятия;
1.4.10. проводить противопожарную пропаганду;
1.4.11. выполнять предписания, постановления и иные законные требования должностных лиц пожарной охраны и уполномоченных на то лиц;
1.4.12. обеспечивать доступ должностным лицам пожарной охраны, при осуществлении ими служебных обязанностей, в помещения предприятия;
1.4.13. предоставлять по требованию должностных лиц Государственной противопожарной службы сведения и документы о состоянии пожарной безопасности предприятия, выполнении противопожарных мероприятий, а также о происшедших в помещениях пожарах и их последствиях;
1.4.14. содействовать деятельности добровольных пожарных подразделений;
1.4.15. определить порядок обесточивания электрооборудования в случае пожара и при прекращении работы предприятия;
1.4.16.определить порядок осмотра складских помещений перед закрытием;
1.4.17. принимать незамедлительные меры к устранению выявленных нарушений требований пожарной безопасности;
1.4.18. по окончанию рабочего дня проверить: отключение электроустановок; установка автоматической пожарной сигнализации в рабочем режиме; выходы и проходы должны быть свободны; на батареях центрального отопления не должно быть посторонних предметов и материалов; отсутствие признаков пожара (например - запах гари); сделать отметку о результатах проверки противопожарного состояния складских помещений в «Журнале осмотра складских помещений перед закрытием» (место хранения журнала определить в помещении охраны.
Общие требования к сигнализации
11.3 В помещении пожарного поста или другом помещении с персоналом, ведущим круглосуточное дежурство, должна быть предусмотрена:
а) световая и звуковая сигнализация:
о возникновении пожара ( с расшифровкой по направлениям или помещениям в случае применения адресных систем пожарной сигнализации):
о срабатывании установки ( с расшифровкой по направлениям или помещениям):
б) световая сигнализация;
о наличии напряжения на основном и резервном вводах электроснабжения;
об отключении звуковой сигнализации о пожаре (при отсутствии автоматического восстановления сигнализации);
об отключении звуковой сигнализации о неисправности (при отсутствии автоматического восстановления сигнализации);
11.4 Звуковой сигнал о пожаре должен отличаться тональностью или характером звука от сигнала о неисправности и срабатывании установки.
ОБУЧЕНИЕ МЕРАМ ПОЖАРНОЙ БЕЗОПАСНОСТИ
2.1. Обучение мерам пожарной безопасности проводится в форме противопожарных инструктажей, занятий по практическому применению первичных средств пожаротушения и занятий по пожарно-техническому минимуму.
2.2. Обучению подлежат все сотрудники предприятия, работающие и принимаемые на работу.
2.3. В целях укрепления противопожарных знаний на предприятии оборудуются стенды по пожарной безопасности.
2.4. Инструктажи проводятся в форме вводного противопожарного (далее - п.п.) инструктажа, первичного противопожарного инструктажа на рабочем месте, внепланового противопожарного инструктажа.
О прохождении Инструктажей инженером по технике безопасности предприятия делается запись в «Журнале по технике безопасности» с обязательной росписью инструктируемого и инструктирующего (лица, на которого возложены эти обязанности).
2.4.1. Вводный п.п. инструктаж проводится непосредственно при поступлении граждан на работу. Обучение организуется директором предприятия при наличии лицензии на данный вид деятельности или с привлечением специализированного предприятия, имеющего лицензию на данный вид деятельности.
2.4.2. Первичный противопожарный инструктаж проводится непосредственно на рабочем месте до начала производственной деятельности со всеми вновь принятыми на предприятие; с работниками, выполняющими новые для них работу, командированными, временными работниками; со строителями, выполняющими строительно-монтажные работы на территории действующего предприятия со студентами и учащимися, прибывшими на производственную практику.
2.4.3. Внеплановый п.п. инструктаж проводится:
- при введении в действие новых стандартов, правил, инструкций, а также изменений к ним;
- при замене или модернизации оборудования и других факторов, влияющих на изменение пожарной опасности данного участка производства;
- в случае нарушения сотрудником требований пожарной безопасности. Инструктаж проводится руководителем работ.
Внеплановый инструктаж проводится в объеме первичного инструктажа на рабочем месте с отдельными работниками или группой работников.
Повторный п.п. инструктаж проводится не реже одного раза в квартал совместно с инструктажем по технике безопасности, если иные сроки не будут установлены новыми нормативными документами. Порядок и время проведения повторного п.п. инструктажа, перечень работников, которые должны пройти инструктаж, место проведения инструктажа объявляется приказом (распоряжением) директора предприятия.
2.5. Учет лиц, прошедших инструктаж и перечень изученных тем, производится в учебном журнале.
Ежегодно с работниками предприятия во втором квартале (май месяц) проводятся занятия по практическому применению первичных средств пожаротушения с оформлением протоколов.
2.6. Один раз в три года ответственные за пожарную безопасность должны проходить обучение по программе пожарно-технического минимума. При смене ответственных за пожарную безопасность с ними проводится полный курс противопожарной подготовки. Обучение организуется директором предприятия при наличии лицензии на данный вид деятельности, или с привлечением специализированного предприятия, имеющего лицензию на данный вид деятельности.
2.7. Наглядная агитация стендов по пожарной безопасности должна отражать меры пожарной безопасности соответствующие технологическому процессу производства, а также в быту.
Определение категорий В- Впомещений
| Категория помещения | Удельная пожарная нагрузка g на участке, МДж м.кв. | Способ размещения | |||
| В1 | Более 2200 | Не нормируется | |||
| В2 | 1401-2200 | См. п.25 | |||
| В3 | 181-1400 | Тоже | |||
| В4 | 1-180 | На любом участке пола помещения площадью 10 м.кв. Способ размещения участков пожарной нагрузки определяется согласно п.25 |
Выписка из (НПБ 88 –2001*)
Определение необходимого количества
первичных средств пожаротушения
1. При определении видов и количества средств пожаротушения следует учитывать физико-химические и пожароопасные свойства горючих веществ, их отношение к огнетушащим веществам, а также площадь производственных помещений, открытых площадок и установок.
2. Асбестовые полотна, грубошерстные ткани и войлок размером не менее 1х1 м предназначены для тушения небольших очагов пожаров при воспламенении веществ, горение которых не может происходить без доступа воздуха. В местах применения и хранения ЛВЖ и ГЖ размеры полотен могут быть увеличены (2х1,5; 2х2м)
3. Бочки для хранения воды должны иметь объем не менее 0,2 куб.м и комплектоваться ведрами. Ящики для песка должны иметь объем не менее 0,5; 1,0 и 3 куб.м и комплектоваться совковой лопатой.
4. Емкости для песка, входящие в конструкцию пожарного стенда, должны быть вместимость не мене 0,1 куб.м. конструкция ящика должна обеспечивать удобство извлечения песка и исключать попадание осадков.
5. Комплектование технологического оборудования огнетушителями осуществляется согласно требованиям технических условий (паспортов) на это оборудование или соответствующим правилам пожарной безопасности.
6. Комплектование импортного оборудования огнетушителями производится согласно условиям договора на его поставку.
7. Выбор типа и расчет необходимого количества огнетушителей рекомендуется производить на основе данных, изложенных в ППБ01-03 табл. 1 и 2 в зависимости от их огнетушащей способности, предельной площади, класса пожара горючих веществ и материалов в защищаемом помещении или на объекте.
класс А – пожары твердых веществ, в основном органического происхождения, горение которых сопровождается тлением (древесина, текстиль, бумага);
класс В - пожары горючих жидкостей или плавящихся твердых веществ;
класс С –
пожары газов;
класс Д –
пожары металлов и их сплавов;
класс Е –
пожары, связанные с горением электроустановок.
Выбор типа огнетушителей (передвижной или ручной) обусловлен размерами возможных очагов пожара.
При их значительных размерах рекомендуется использовать передвижные огнетушители.
8. Выбирая огнетушитель с соответствующим температурным пределом использования, необходимо учитывать климатические условия эксплуатации зданий и сооружений.
9. Если возможны комбинированные очаги пожара, то предпочтение при выборе огнетушителя отдается более универсальному по области применения.
10.Для предельной площади помещений разных категорий (максимальной площади, защищаемым одним или группой огнетушителей) необходимо предусматривать число огнетушителей одного из типов, указанных в ППБ 01-03 табл. 1 и 2 перед знаком «++» и «+».
11. В общественных зданиях и сооружениях на каждом этаже должны размещаться не менее двух ручных огнетушителей.
12. Помещения категории Д могут не оснащаться огнетушителями, если их площадь не превышает 100 кв.м.
13. При наличии нескольких небольших помещений одной категории пожарной опасности количество необходимых огнетушителей определяется согласно ППБ 01-03 п.108 и таб. 1 и 2 с учетом суммарной площади этих помещений.
14. Огнетушители, отправленные с предприятия на перезарядку, должны заменяться соответствующим количеством заряженных огнетушителей.
15. При защите помещений ЭВМ, телефонных станций, музеев, архивов и т.д. следует учитывать специфику взаимодействия огнетушащих веществ с защищаемыми оборудованием, материалами и т.п. данные помещения рекомендуется оборудовать хладоновыми и углекислотными огнетушителями с учетом предельно допустимой концентрации огнетушащего вещества.
16. Помещения, оборудованные автоматическими стационарными установками пожаротушения, обеспечиваются огнетушителями на 50% исходя из их расчетного количества.
17. Расстояние от возможного очага пожара до места размещения огнетушителя не должно превышать 20 м для общественных зданий и сооружений; 30 м для помещений категории А, Б и В; 40м для помещений категории Г; 70 м для помещений категории Д.
18. На объекте должно быть определено лицо, ответственное за приобретение, ремонт, сохранность и готовность к действию первичных средств пожаротушения.
Учет проверки наличия и состояния первичных средств пожаротушения следует вести в специальном журнале произвольной формы.
19. Каждый огнетушитель, установленный на объекте, должен иметь порядковый номер, нанесенный на корпус белой краской. На него заводят паспорт по установленной форме.
20. Огнетушители должны всегда содержаться в исправном состоянии, периодически осматриваться, проверяться и своевременно перезаряжаться.
21. В зимнее время (при температуре ниже 0* С) огнетушители необходимо хранить в отапливаемых помещениях.
22. Размещение первичных средств пожаротушения в коридорах, проходах не должно препятствовать безопасной эвакуации людей. Их следует располагать на видных местах вблизи от выхода из помещений на высоте не более 1,5м.
23. Асбестовое полотно, войлок (кошму) рекомендуется хранить в металлических футлярах с крышками, периодически (не реже одного раза в 3 месяца) просушивать и очищать от пыли.
24. Использование первичных средств пожаротушения для хозяйственных нужд, не связанных с тушением пожара, не допускается.
Таблица №1
Нормы оснащения помещений ручными огнетушителями
|
Категория Предель- Класс Пенные и Порошковые Хладоно- Углекислот- Помещения ная пожа водные огнетушители вые ные огнету- защища- ра огнетуши- вместимостью огнтуши- шители емая тели вмес- л/массой тели вместимос- площадь тимостью огнетуша- вмести- тью л/мас- м.кв. 10л шего мостью сой огнету- вещества,кг 2(3)л шащего 2/2 5/4 10/9 вещества,кг 2/2 5/8 3/5 |
||||||||||||||||||||||||||||||||||||||||||||||||||||||||||||||||||||||||||||||||||||||||||||||||||||||||||||||||||||||||||||||||||||||||||||||||||||||||||||||||||||||||||||||||||||||||||||||||||||||||||||||||||||||||||||||||||||||||||||||||||||||||||||||||||||||||||||||||||||||||||||||||||||||||||||||||||||||||||||||||||||||||||||||||||||||||||||||||||||||||||||||||||||||||||||||||||||||||||||||||||||||||||||||
Организация работы по обеспечению пожарной безопасности предприятия2.1. Документальное оформление организационной работы по обеспечению пожарной безопасности предприятия.. 2.1.1. Организационная работа по обеспечению пожарной безопасности с целью придания ей юридической формы должна быть надлежащим образом документально оформлена. К основным организационно-распорядительным документам, регламентирующим порядок обеспечения пожарной безопасности, относятся: приказ (распоряжение) руководителя предприятия об обеспечении пожарной безопасности на предприятии, в его структурных подразделениях, филиалах и т.п.; инструкции о мерах пожарной безопасности – общеобъектовые, для филиалов, а также для взрывопожароопасных и пожароопасных участков (мастерских, цехов, складов и т.п.); планы эвакуации при пожаре; планы пожаротушения объектов; другие документы, наименование и содержание которых приводятся в соответствующих разделах настоящего пособия. 2.1.2. Указанные документы в зависимости от организационно-штатной структуры предприятия, как правило, разрабатываются одним из руководителей предприятия либо службой (подразделением, штатным работником) пожарной безопасности, службой (подразделением, штатным работником) охраны труда и техники безопасности, а также руководителями структурных подразделений (филиалов) в пределах их компетенции. При отсутствии на предприятии квалифицированных специалистов к разработке указанных документов можно привлекать специализированные организации, имеющие лицензию на данный вид деятельности. 2.1.3. Приказ по обеспечению пожарной безопасности. 2.1.3.1. На каждом предприятии в целях обеспечения пожарной безопасности и повышения персональной ответственности должностных лиц и работников руководитель предприятия обязан издать приказ «О порядке обеспечения пожарной безопасности». 2.1.3.2. Приказ должен содержать все необходимые указания в этой области:
2.1.3.3. Должностные лица и лица, назначенные ответственными за обеспечение пожарной безопасности, эксплуатацию установок автоматических систем противопожарной защиты, пожарного водоснабжения должны быть ознакомлены с приказом под роспись, а остальным работникам приказ объявляется в установленном на предприятии порядке. 2.1.3.4. Приказ также может доводиться до персонала предприятия при проведении противопожарных инструктажей с отметкой в журналах противопожарного инструктажа. В целях обеспечения информированности, наглядности и доступности приказ размещается на стендах «Пожарная безопасность». 2.1.3.5. Примерные варианты приказа и обязанности лиц, ответственных за пожарную безопасность приведены в приложениях 1, 2. 2.1.4. Инструкции о мерах пожарной безопасности. 2.1.4.1. В соответствии с Правилами пожарной безопасности в Российской Федерации (п.1.1.3 [2]) на каждом предприятии должны быть разработаны инструкции о мерах пожарной безопасности – общеобъектовые, для филиалов, а также для взрывопожароопасных и пожароопасных участков (мастерских, цехов, складов и т.п.) с учетом специфических особенностей предприятия. 2.1.4.2. Инструкции разрабатываются в соответствии с требованиями, изложенными в приложении 3, утверждаются руководителем предприятия и вводятся в действие в порядке, установленном на предприятии. 2.1.6.2. Планы пожаротушения разрабатываются, как правило, на взрывопожароопасные, пожароопасные объекты (цеха, склады, установки и т.п.), объекты с массовым пребыванием людей и другие объекты, представляющие опасность быстрого развития пожара, имеющие специфические особенности технологического процесса производства, являющиеся сложными для проведения работ по тушению пожара и спасанию людей в силу своих конструктивных и других особенностей. 2.1.6.3. В планах пожаротушения в основном должны быть отражены: 2.1.6.4. Планы пожаротушения разрабатываются совместно с территориальными (объектовыми) подразделениями Государственной противопожарной службы. 2.1.6.5. Совместно с подразделениями Государственной противопожарной службы также составляются: список объектов предприятия, на которые необходимо разрабатывать планы пожаротушения, графики разработки, корректировки и практической отработки планов с привлечением сил и средств. 2.1.6.6. По одному экземпляру каждого разработанного плана пожаротушения объекта должны иметь: 2.1.6.7. На режимных предприятиях разработка, хранение и применение планов пожаротушения осуществляется с учетом установленных правил режима. 2.2. Обучение мерам пожарной безопасности. 2.2.1. Необходимость обучения работников предприятия мерам пожарной безопасности установлена Федеральным законом «О пожарной безопасности» (ст.ст.3, 37 [1]) и правилами пожарной безопасности в Российской Федерации (п. 1.1.4.[2]). Организация обучения мерам пожарной безопасности может также регулироваться законодательными и иными нормативными актами субъектов Российской Федерации. Например: в г.Москве вопросы обучения мерам пожарной безопасности регламентированы: - законом г.Москвы о пожарной безопасности (ст.14.[6]); - правилами пожарной безопасности для г.Москвы (п. 1.1.6., 1.2.3, прил.1 [8]); - методическими рекомендациями о порядке обучения мерам пожарной безопасности на предприятиях г.Москвы [9]. 2.2.2. Организация обучения работников предприятия мерам пожарной безопасности возлагается на руководителя предприятия (п.1.1.8 [2]). 2.2.3. Обучение работников предприятия мерам пожарной безопасности осуществляется в соответствии с разрабатываемыми Положением и программами обучения в виде: - пожарно-технических минимумов; - противопожарных инструктажей. 2.2.4. Пожарно-технический минимум – основной вид обучения. Курсы пожарно-технического минимума проходят руководители и главные специалисты предприятия, руководители, ИТР и специалисты подразделений, лица, ответственные за пожарную безопасность подразделений, работники взрывоопожароопасных цехов, лица, выполняющие пожароопасные работы и лица, осуществляющие круглосуточную охрану предприятий. 2.2.4.1. Сведения о проведении занятий и результаты экзаменов (зачетов) отражаются в журнале производственного обучения и оформляются протоколом заседания комиссии по проверке знаний пожарной безопасности. 2.2.4.2. Лицам, прошедшим обучение и сдавшим экзамен (зачет) по курсу пожарно-технического минимума выдается удостоверение с указанием даты последующей переаттестации за подписью председателя комиссии, заверенное печатью предприятия, выдавшего удостоверение. 2.2.4.3. Комиссия по проверке знаний пожарной безопасности назначается приказом руководителя предприятия из лиц, аттестованных по пожарной безопасности и имеющих удостоверение о проверке знаний пожарно-технического минимума, в составе не менее трех человек. В состав комиссии могут включаться представители Государственной противопожарной службы и специализированных комбинатов (организаций), имеющих лицензию Государственной противопожарной службы на право обучения мерам пожарной безопасности. 2.2.5. Противопожарные инструктажи – вид обучения, при котором противопожарный инструктаж (вводный, первичный на рабочем месте, повторный, внеплановый, целевой) проходят все работающие на предприятии, в том числе, учащиеся и студенты при прохождении производственной практики или обучения, лица, командированные на предприятие, работники подрядных организаций, выполняющие работы на предприятии. 2.2.5.1. Результаты противопожарных инструктажей отражаются в журналах регистрации инструктажей, и (или) личной карточке прохождения обучения и (или) наряде-допуске на проведение работ повышенной опасности. 2.2.6. Положение об обучении мерам пожарной безопасности и программы обучения утверждаются руководителем предприятия и вводятся в действие в порядке, установленном на предприятии. Рекомендуется согласовывать их с территориальными (местными, объектовыми) органами управления Государственной противопожарной службы или их подразделениями и вводить в действие приказом по предприятию. 2.2.7. Примерные варианты приказов, положения и программ обучения, формы журналов, протокола, личной карточки, удостоверения наряда-допуска, перечень вопросов, включаемых в экзаменационные билеты для проверки знаний, приведены в приложениях 6-23. 2.3. Пожарно-технические комиссии предприятий. 2.3.1. Пожарно-технические комиссии (далее – ПТК) предприятий создаются на основании требований правил пожарной безопасности в Российской Федерации (п. 1.1.6. [2]). 2.3.2. Создание ПТК на предприятиях может также регламентироваться законодательными и иными нормативными актами субъектов Российской Федерации. Например: 1) В г.Москве вопросы создания и деятельности ПТК регламентированы: - законом г.Москвы о пожарной безопасности (ст.7 [6]); - положением о ПТК [11], утвержденным постановлением Правительства Москвы от 10.08.1999 г. № 722 (п.3.4., прил. 4 [7]). 2) Согласно указанным нормативным актам ПТК создаются на предприятиях, в учреждениях и организациях г.Москвы, независимо от их организационно-правовых форм и форм собственности с числом работающих 10 и более человек. 2.3.3. ПТК создаются с целью привлечения инженерно-технических работников (ИТР) и специалистов предприятия к активному участию в работе по предупреждению и борьбе с пожарами. 2.3.4. ПТК создаются приказом руководителя предприятия. Председателем ПТК, как правило, назначается главный инженер предприятия, секретарем – специалист по пожарной безопасности службы охраны труда. В состав ПТК входят ИТР, деятельность которых связана с эксплуатацией и обслуживанием технологических установок, электроустановок, систем вентиляции, отопления, водоснабжения, связи, производственной автоматики, автоматической противопожарной защиты и т.п., специалисты-технологи, руководители пожарной охраны предприятия, службы охраны труда и техники безопасности, представители профсоюза. Примерный вариант приказа приведен в приложении 24. 2.3.5. Организация и порядок работы ПТК устанавливаются Положением о пожарно-технической комиссии предприятия. 2.3.6. Положение о ПТК утверждается руководителем предприятия, согласовывается с территориальными (местными, объектовыми) органами управления Государственной противопожарной службы и вводится в действие приказом по предприятию. Примерные варианты приказа и положения приведены в приложениях 25, 26. 2.4. Добровольные пожарные дружины предприятия. 2.4.1. Добровольные пожарные дружины (далее - ДПД) предприятий создаются на основании требований правил пожарной безопасности в Российской Федерации (п.1.1.6. [2]). 2.4.2. Создание ДПД на предприятиях может также регламентироваться законодательными и иными актами субъектов Российской Федерации. Например: Согласно закону города Москвы о пожарной безопасности (ст.7[6]) и постановлению Правительства Москвы от 10.08.99 г. №722 (п.3.3. [7]) ДПД создаются на предприятиях, в учреждениях и организациях г.Москвы независимо от их организационно-правовых форм и форм собственности с числом работающих не менее 50 человек. 2.4.3. ДПД создаются с целью привлечения работников предприятия к работе по предупреждению и борьбе с пожарами, обеспечения соблюдения на предприятии требований действующих норм и правил пожарной безопасности, приказов и распоряжений руководителя предприятия. 2.4.4. ДПД создаются на добровольных началах из числа работников предприятия, подавших на имя руководителя предприятия письменное заявление о приеме в члены ДПД. Зачисление в ДПД и последующие изменения состава дружины оформляются приказом руководителя предприятия. Примерный вариант приказа приведен в приложении 27. 2.4.5. Организация и порядок деятельности ДПД устанавливаются Положением о добровольных пожарных дружинах предприятия. 2.4.6. Положение о ДПД утверждается руководителем предприятия, согласовывается с территориальными (местными, объектовыми) органами управления Государственной противопожарной службы и вводится в действие приказом по предприятию. Примерные варианты приказа и положения приведены в приложениях 28 и 29. Примечание к подразделам 2.2, 2.3, 2.4: Приведенные примерные варианты Программ обучения, Положений об обучении, о ПТК, о ДПД разработаны на примере аналогичных Программ и Положений, действующих в Москве и утвержденных соответствующими нормативными актами Правительства Москвы ([6-9], [11, 12]). 2.5. Автоматические системы противопожарной защиты предприятия. 2.5.1. Обязанность предприятий по разработке и осуществлению мер обеспечения пожарной безопасности (ст.37 [1]) предполагает внедрение автоматических систем противопожарной защиты, как наиболее эффективных средств обеспечения пожарной безопасности. 2.5.2. К автоматическим системам противопожарной защиты относятся: 2.5.2.1. Автоматические установки пожаротушения (водяного, пенного, газового, порошкового, аэрозольного). 2.5.2.2. Автоматические установки пожарной сигнализации. 2.5.2.3. Автоматические системы оповещения людей о пожаре и управления эвакуацией. 2.5.2.4. Автоматические системы противодымной защиты. 2.5.3. Необходимость оснащения объектов автоматическими системами противопожарной защиты регламентируется: 2.5.3.1. Автоматическими установками пожаротушения и автоматическими установками пожарной сигнализации – НПБ 110-99 [13]. 2.5.3.2. Автоматическими системами оповещения людей о пожаре и управления эвакуацией – НПБ 104-95 [14]. 2.5.3.3. Автоматическими системами противодымной защиты СНиП 2.04.05 – 91*[14]. 2.5.4. На предприятии для качественной эксплуатации автоматических систем противопожарной защиты приказом руководителя должен быть назначен следующий персонал: а) лицо, ответственное за эксплуатацию каждой конкретной системы (установки); б) обслуживающий персонал для производства, технического обслуживания и ремонта систем (установок), прошедший специальное обучение и имеющий соответствующее удостоверение (допуск); в) оперативный (дежурный) персонал для круглосуточного контроля за работоспособным состоянием систем (установок). 2.5.5. Общий порядок содержания и эксплуатации автоматических систем противопожарной защиты установлены ППБ-0193** (разд. 1.8.[2]) и включает следующие требования: 2.5.5.1. Регламентные работы по техническому обслуживанию и планово-предупредительному ремонту (ТО и ППР) автоматических установок пожарной сигнализации пожаротушения, систем противодымной защиты, оповещения людей о пожаре и управления эвакуацией должны осуществляться в соответствии с годовым планом-графиком, составляемым с учетом технической документации заводов-изготовителей и сроками проведения ремонтных работ. ТО и ППР должны выполняться специально обученным обслуживающим персоналом или специализированной организацией, имеющей лицензию, по договору. В период выполнения работ по ТО или ремонту, связанных с отключением установки (отдельных линий, извещателей), руководитель предприятия обязан принять необходимые меры по защите от пожаров зданий, сооружений, помещений, технологического оборудования. 2.5.5.2. В помещении диспетчерского пункта (пожарного поста) должна быть вывешена инструкция о порядке действий оперативного (дежурного) персонала при получении сигналов о пожаре и неисправности установок (систем) пожарной автоматики. Диспетчерский пункт (пожарный пост) должен быть обеспечен телефонной связью и исправными электрическими фонарями (не менее 3 шт.). 2.5.5.3. Установки пожарной автоматики должны находиться в исправном состоянии и постоянной готовности, соответствовать проектной документации. Перевод установок с автоматического пуска на ручной не допускается, за исключением случаев, оговоренных в нормах и правилах. 2.5.5.4. Баллоны и емкости установок пожаротушения, масса огнетушащего вещества и давление в которых ниже расчетных значений на 10 процентов и более, подлежат дозарядке или перезарядке. 2.5.5.5. Оросители спринклерных (дренчерных) установок в местах, где имеется опасность механического повреждения, должны быть защищены надежными ограждениями, не влияющими на распространение тепла и не изменяющими карту орошения. Устанавливать взамен вскрывшихся и неисправных оросителей пробки и заглушки не разрешается. 2.5.5.6. Станция пожаротушения должна быть обеспечена схемой обвязки и инструкцией по управлению установкой при пожаре. У каждого узла управления должна быть вывешена табличка с указанием защищаемых помещений, типа и количества оросителей в секции установки. Задвижки и краны должны быть пронумерованы в соответствии со схемой обвязки. 2.5.5.7. Системы оповещения о пожаре должны обеспечивать в соответствии с планами эвакуации передачу сигналов оповещения одновременно по всему зданию (сооружению) или выборочно в отдельные его части (этажи, секции и т.п.). 2.5.5.8. В зданиях, где не требуются технические средства оповещения людей о пожаре, руководитель объекта должен определить порядок оповещения людей о пожаре и назначить ответственных за это лиц. 2.5.5.9. Оповещатели (громкоговорители) должны быть без регулятора громкости и подключены к сети без разъемных устройств. При обеспечении надежности для передачи текстов оповещения и управления эвакуацией допускается использовать внутренние радиотрансляционные сети и другие сети вещания, имеющиеся на объекте. 2.5.6. Подробные требования норм и правил (ввиду их значительного объема в настоящем пособии не приводятся) проектирования, монтажа и эксплуатации автоматических систем противопожарной защиты, образцы приемо-сдаточной и технической документации содержатся в нормативных документах, указанных в табл.1. Таблица 1
2.8. Ответственность за нарушение требований пожарной безопасности. 2.8.1. Ответственность за нарушение требований пожарной безопасности в соответствии с действующим законодательством несут: Ответственность за нарушение требований пожарной безопасности для квартир (комнат) в домах государственного, муниципального и ведомственного жилищного фонда возлагается на ответственных квартиросъемщиков или арендаторов, если иное не предусмотрено соответствующим договором. Лица, указанные в части первой настоящего раздела, иные граждане за нарушение требований пожарной безопасности, а также за иные правонарушения в области пожарной безопасности могут быть привлечены к дисциплинарной (материальной - реализуемой на предприятии правами руководителя), административной или уголовной ответственности в соответствии с действующим законодательством (ст.38 [1]). 2.8.2. Административная ответственность. Административная ответственность может реализовываться как правами надзорных органов, так и в судебном порядке. Нарушение или невыполнение правил пожарной безопасности на предприятиях, в учреждениях, государственных, кооперативных и иных организациях, общественных местах, складских помещениях, в общежитиях и жилых домах, противопожарных требований предусмотренных строительными нормами и правилами при проектировании, строительстве зданий и сооружений, государственными стандартами, а также правил использования и содержания противопожарного инвентаря, оборудования, автоматических средств обнаружения и тушения пожаров, либо невыполнения постановления государственного пожарного надзора о приостановлении работы предприятия, производственного участка, агрегата или о запрещении эксплуатации здания, сооружения, помещения - влечет предупреждение или наложение штрафа на граждан в размере одной второй минимального размера оплаты труда, при этом размер налагаемого штрафа не может быть ниже 1/10 минимального размера оплаты труда и предупреждения или наложения штрафа на должностных лиц - равным одному минимальному размеру оплаты труда, при этом размер налагаемого штрафа не может быть ниже 1/3 минимального размера оплаты руда (ст.169 [20]). 2.8.3. Уголовная ответственность. Уголовная ответственность наступает по решению суда, За преступления в области пожарной безопасности предусмотрены следующие статьи (УК РФ [21]). Статья 167. Умышленное уничтожение или повреждение имущества. 1. Умышленное уничтожение имущества или повреждение чужого имущества, если эти деяния повлекли причинение значительного материального ущерба, -наказываются штрафом в размере от 50 до 100 минимальных размеров оплаты труда или в размере заработной платы или иного дохода осужденного за период до одного месяца, либо обязательными работами на срок от ста до ста восьмидесяти часов, либо лишением свободы на срок до двух лет. 2. Те же деяния, совершенные путем поджога, взрыва или иным общеопасным способом, либо повлекшие по неосторожности смерть человека или иные тяжкие последствия, - наказываются лишением свободы на срок до 5 лет. Комментарий. 1. По ч. 2 ст. 167 уголовной ответственности полежит лицо, совершившее деяние путем поджога, взрыва или иным опасным для здоровья и жизни людей способом, либо повлекшие по неосторожности смерть человека или иные тяжкие последствия. 2. Субъектом по ч. 2 ст. 167 является виновное лицо с 14 лет. Статья 168. Уничтожение или повреждение имущества по неосторожности. 1. Уничтожение или повреждение чужого имущества в крупном размере, совершенное по неосторожности, наказывается штрафом в размере до 200 минимальных размеров оплаты труда или в размере заработной платы или иного дохода осужденного за период до двух месяцев, либо исправительными работами на срок до одного года, либо ограничением свободы на срок до двух лет. 2. Те же деяния, совершенные путем неосторожного обращения с огнем или иными источниками повышенной опасности либо повлекшие тяжкие последствия, наказываются штрафом в размере от 200 до 500 минимальных размеров оплаты труда или в размере заработной платы или иного дохода осужденного за период от двух до пяти месяцев, либо ограничением свободы на срок до трех лет, либо лишением свободы на срок до двух лет. Комментарий. 1. По ч. 2 ст. 168 уголовной ответственности подлежит лицо за деяния, совершенные путем неосторожного обращения с огнем или иным источником повышенной опасности, либо повлекшие тяжкие последствия (например, пожары лесных массивов, повреждение газопроводов и др.) 2. Субъект - виновное лицо с 16 лет. Статья 219. Нарушение правил пожарной безопасности. 1. Нарушение правил пожарной безопасности, совершенное лицом, на котором лежала обязанность по их соблюдению, если это повлекло по неосторожности причинение тяжкого или средней тяжести вреда здоровью человека, - наказывается штрафом в размере от 100 до 200 минимальных размеров оплаты труда или в размере заработной платы или иного дохода осужденного за период от одного до двух месяцев, либо ограничением свободы на срок до трех лет, либо лишение свободы на срок до трех лет с лишением права занимать определенные должности или заниматься определенной деятельностью на срок до трех лет или без такового. 2. То же деяние, повлекшее по неосторожности смерть человека или иные тяжкие последствия, - наказываются ограничением свободы на срок до пяти лет или лишением свободы на срок до десяти лет с лишением права занимать определенные должности или заниматься определенной деятельностью на срок до трех лет или без такового. Комментарий. 1. Объективная сторона преступления выражается как в действии, так и в бездействии нарушающих правила пожарной безопасности. 2. Преступление может быть совершено по неосторожности, как по легкомыслию, так и по небрежности. 3. Субъектом преступления могут быть квартиросъемщики, домовладельцы, вменяемые лица, достигшие 16 летнего возраста. 4. Под тяжкими последствиями понимается уничтожение или повреждение пожаром материальных ценностей, приостановление производства и т.п., если материальный ущерб превышает в пятьсот раз минимальный размер оплаты труда. 2.8.4. Административная ответственность предприятий. Предприятия за нарушение требований пожарной безопасности, а также за иные правонарушения в области пожарной безопасности по постановлению должностных лиц Государственной противопожарной службы уплачивают в порядка устанавливаемом Правительством Российской Федерации, штраф в размере до двух процентов соответствующих месячных фондов оплаты труда, а иные субъекты предпринимательской деятельности - в размере от 50 до 100 минимальных размеров оплаты труда. Основания и порядок привлечения предприятий к административной ответственности за правонарушения в области пожарной безопасности устанавливаются законодательством Российской Федерации. Изготовители (исполнители, продавцы) за уклонение от исполнения или несвоевременное исполнение предписаний должностных лиц Государственной противопожарной службы по обеспечению пожарной безопасности товаров (работ, услуг) несут административную ответственность в соответствии с законодательством Российской Федерации о защите прав потребителей (ст. 39 [1]). Переченьзданий и помещений объектов телевидения, радиовещания и телекинопроизводства, подлежащих оборудованию автоматическими средствами пожаротушения и автоматической пожарной сигнализацией ПОРЯДОК ОСМОТРА И ПРИВЕДЕНИЯ10.1. Осмотр помещений телемастерской, оздоровительного комплекса, главной студии ТВ, буфета, радиостудии складских помещений участка ППР и приведение их в пожаробезопасное состояние возлагается на ответственных за пожарную безопасность, указанных помещений, назначенных приказом директора предприятия. 10.2. При осмотре проверяется: 10.2.1. сгораемый мусор, упаковочные материалы удалены из помещений в специальный контейнер; 10.2.2. электросеть отключена; 10.2.3. установка автоматической пожарной сигнализации в рабочем режиме; 10.2.4. эвакуационные выходы и проходы не загромождены; 10.2.5. на батареях центрального отопления отсутствуют посторонние предметы; 10.2.6. средства пожаротушения в наличии, в рабочем исправном состоянии; 10.2.7. окна и двери в закрытом состоянии; 10.2.8. отсутствуют признаки пожара (например - запах гари). 10.3. Результаты осмотра ответственные лица за противопожарное состояние записывают в специальный журнал (произвольной формы, по согласованию с работниками пожарной охраны). Журнал сдается на вахту. Инструкция разработана ____________________ КЛАССИФИКАЦИЯ ВЗРЫВООПАСНЫХ ЗОН Документ ПУЭ VII-3-40 - VII-3-46
КЛАССИФИКАЦИЯ ПОЖАРООПАСНЫХ ЗОН Документ ПУЭ VII-4-3 - VII-4-6.
КАТЕГОРИЯ ПОМЕЩЕНИЙ ПО ВЗРЫВОПОЖАРНОЙ И ПОЖАРНОЙ ОПАСНОСТИ НПБ 105-03 п.4 таб. 1
Размещение пожарных извещателей12.16 В каждом защищаемом помещении следует устанавливать не менее двух пожарных извещателей. 12.17 В защищаемом помещении допускается устанавливать один пожарный извещатель, если одновременно выполняются следующие условия: а) площадь помещения не больше площади, защищаемой пожарным извещателем, указанной в технической документации на него, и не больше средней площади; б) обеспечивается автоматический контроль работоспособности пожарного извещателя, подтверждающий выполнение им своих функций с выдачей извещения о неисправности на приемно-контрольный прибор; в) обеспечивается идентификация неисправного извещателя приемно-контрольным прибором; г) по сигналу с пожарного извещателя не формируется сигнал на запуск аппаратуры управления, производящей включение автоматических установок пожаротушения или дымоудаления или систем оповещения о пожаре 5-го типа по НПБ 104 СОДЕРЖАНИЕ ЭЛЕКТРОУСТАНОВОК6.1. Электроустановки должны эксплуатироваться в соответствии с требованиям предприятий изготовителей, «Правил устройства электроустановок» и «Правил эксплуатации электроустановок потребителей». Обслуживание и техническая эксплуатация электроустановок обеспечивается в соответствии с требованиями "Правил эксплуатации электроустановок потребителей". Не реже одного раза в три года должен проводиться замер сопротивления изоляции токоведущих частей осветительного оборудования, результаты замера оформляются соответствующим актом (протоколом). 6.2. Электроустановки и бытовые электроприборы в помещениях, в которых по окончанию рабочего времени отсутствует дежурный персонал, должны быть обесточены. Под напряжением должны оставаться автоматическая пожарная сигнализация и другие электроустановки и электротехнические изделия, если это обусловлено их функциональным назначением и предусмотрено требованиями инструкции по эксплуатации. Устройство и эксплуатация временных электрических сетей - не допускается. Электрические светильники, в складских помещениях, должны иметь закрытое или защищенное исполнение (со стеклянными рассеивателями), исключающее возможность выпадения колб ламп или их раскаленных осколков на сгораемые материалы. 6.3. Хранение материалов допускается не ближе 0,5 метров от электрических светильников и не менее 0,2 метра от электросетей. 6.4. При эксплуатации электроустановок ЗАПРЕЩАЕТСЯ; 6.4.1. использовать приемники электрической энергии в условиях, несоответствующих требованиям инструкций предприятий-изготовителей или имеющие неисправности или повреждения, которые в соответствии с инструкцией по эксплуатации могут привести к пожару, а также эксплуатировать электропровода и кабели с поврежденной или потерявшей свои свойства электрической изоляцией; 6.4.2. пользоваться поврежденными розетками, вилками и другими электроустановочными изделиями; 6,4.3. обертывать электролампы и светильники бумагой, тканью и другими горючими материалами, а также эксплуатировать их со снятыми колпаками (рассеивателями) предусмотренными конструкцией светильника; 6.4.4. пользоваться электроутюгами, электроплитками, электрочайниками и другими электронагревательными приборами, не имеющими устройств тепловой защиты, без подставок из негорючих теплоизоляционных материалов, исключающих опасность возникновения пожара; 6,4.5. оставлять без присмотра включенными в электросеть электронагревательные приборы, телевизоры, радиоприемники и т. п.; 6.4.6. применять нестандартные (самодельные) электронагревательные приборы, использовать самодельные аппараты защиты от перегрузки и короткого замыкания; 6.4.7. размещать (складировать) у электрощитов, электродвигателей и пусковой аппаратуры горючие вещества и материалы, СОДЕРЖАНИЕ СРЕДСТВ ПРОТИВОПОЖАРНОЙ ЗАЩИТЫ7.1. Регламентные работы по техническому обслуживанию и планово-предупредительному ремонту установки пожарной сигнализации и средств пожаротушения должны осуществляться в соответствии с годовым планом-графиком, специализированной организацией имеющей лицензию на данный вид деятельности, по договору (за исключением проверки веса заряда углекислотных огнетушителей, проверка организуется и проводится лицом ответственным за их содержание). 7.2. Установка пожарной сигнализации и средства пожаротушения должны находиться в исправном рабочем состоянии. 7.3. Отключение установки пожарной сигнализации, за исключением случаев ее ремонта и обслуживания, ремонта защищаемых помещений, оговоренных в соответствующей документации, в том числе и в рабочее время НЕ ДОПУСКАЕТСЯ (установка должна находиться в работоспособном состоянии круглосуточно). Использование пожарной техники не по назначению - ЗАПРЕЩАЕТСЯ. 7.4. Установка пожарной сигнализации, введенная в эксплуатацию, должна отвечать требованиям проектной документации. К введению в эксплуатацию допускается установка, на которую имеется инструкция по эксплуатации. 7.5. Работники предприятия, работающие в защищаемом установкой пожарной сигнализации помещении, должны проходить инструктаж по правилам ее устройства, работы и технического содержания. 7.6. Для качественной эксплуатации установки пожарной сигнализации директором предприятия определяется лицо ответственное за ее эксплуатацию, и определяются его обязанности. 7.7. Огнетушители углекислотные предназначены для тушения пожаров различных веществ, горение которых не может происходить без доступа воздуха, электроустановок под напряжением до 1000В, а также в помещениях, содержащих дорогостоящую оргтехнику. Отличительная особенность - щадящее воздействие на объекты тушения. 7.8. Меры безопасности: 7.8.1. не допускать ударов по баллону, запорному устройству, раструбу; 7.8.2. не допускать попадания на огнетушитель прямых солнечных лучей, а также 7.8.3. хранения вблизи нагревательных приборов; 7.8.4. при приведении в действие не направлять раструб в сторону людей; 7.8.5. при подаче заряда не касаться раструба голой рукой. 7.9. Для приведения в действие углекислотного огнетушителя необходимо: 7.9.1. поднести огнетушитель к очагу пожара; 7.9.2. установить раструб под углом 90 градусов к корпусу огнетушителя и направить его на очаг загорания; 7.9.3. открыть запорное устройство на горловине огнетушителя (после чего к раструбу голой рукой не прикасаться); 7.9.4. исключить попадание углекислотного снега на кожные покровы. 7.10. Огнетушители должны всегда содержаться в исправном состоянии, периодически осматриваться, проверяться и своевременно перезаряжаться. Пригодность углекислотного огнетушителя определяют взвешиванием не реже одного раза в год. Масса заряда и всего огнетушителя должны отвечать паспортным данным, при потере 5 и более % веса заряда, огнетушитель необходимо перезарядить (масса заряда OV-5 = 3,5кг). Сроки повторного взвешивания также указываются на этикетке, помещенной на корпусе огнетушителя. Гидравлическое испытание корпуса огнетушителя производится не реже одного раза в 5 лет. 7.11. Огнетушители должны быть промаркированы путем нанесения порядкового номера белой фаской на корпус огнетушителя. Лицом ответственным за их содержание ведется учет огнетушителей и их технического обслуживания в специальном журнале. Форма журнала произвольная по согласованию с обслуживающей пожарной частью. 7.12. Огнетушители должны размещаться в легкодоступных и заметных местах, где исключено попадание на них прямых солнечных лучей и непосредственное воздействие отопительных и нагревательных приборов. 7.13. Помещения предприятия должны быть обеспечены огнетушителями в соответствии с расчетом («Правила пожарной безопасности в РФ - 01-93» Приложение №3). 7.14. Противопожарный водопровод должен обеспечивать требуемый по нормам расход воды на нужды пожаротушения. Проверка его работоспособности должна осуществляться не реже двух раз в год с оформлением акта.При проверке проверяется также техническое состояние (пригодность к эксплуатации) запорной арматуры, ствола, рукава, соединительных полугаек и прокладок в них. По окончанию проверки рукав должен быть перекатан на другой шов (складку). 7.15. Пожарные краны внутреннего противопожарного водопровода должны быть укомплектованы рукавами, стволами и рычагами усилителями. Пожарный рукав должен быть подсоединен к крану и стволу. На дверцах пожарных шкафов должна быть выполнена маркировка с указанием номера пожарного крана и номера телефона вызова пожарной охраны. 7.16. Система оповещения о пожаре должна обеспечивать передачу сигналов оповещения одновременно по всем помещениям предприятия. Порядок использования системы оповещения должен быть определен в инструкции по ее эксплуатации и в планах эвакуации с указанием лиц, которые имеют право приводить систему в действие. СОДЕРЖАНИЕ ТЕРРИТОРИИ3.1. Территория предприятия, в пределах противопожарных разрывов между зданиями и сооружениями должны своевременно очищаться от горючих отходов, мусора, тары, опавших листьев, сухой травы, Горючие отходы, мусор и т.п. следует собирать на специально выделенной площадке в контейнеры, а затем вывозиться. Противопожарные разрывы между зданиями и сооружениями не разрешается использовать под складирование материалов, оборудования и тары, для стоянки транспорта и строительства (установки) зданий и сооружений, за исключением случаев по согласованию с Отделом государственной противопожарной службы № 5. 3.2. Дороги, проезды, подъезды к зданию предприятия, наружной пожарной лестнице и водоисточникам, используемым для целей пожаротушения, должны быть всегда свободными для проезда пожарной техники, содержаться в исправном состоянии, а зимой быть очищенными от снега и льда. З.З. О закрытии дорог для их ремонта, или по другим причинам, препятствующим проезду пожарных машин, необходимо немедленно сообщать в ПЧ-4. 3.4. Разведение костров, сжигание отходов и тары не разрешается в пределах, установленных нормами проектирования противопожарных разрывов, но не ближе 50м до здания предприятия. З.5. Территория предприятия должна иметь наружное освещение в темное время суток для быстрого нахождения мест размещения пожарного инвентаря, а также подъездов к входам в здание. Места размещения средств пожарной безопасности и специально оборудованные места для курения должны быть обозначены знаками пожарной безопасности, которые должны соответствовать требованиям нормативных документов по пожарной безопасности. СОДЕРЖАНИЕ ЗДАНИЙ И ПОМЕЩЕНИЙ4.1. Для всех производственных и складских помещений предприятия должна быть определена категория по пожарной опасности, класс зоны по « Правилам устройства электроустановок», которые надлежит обозначить на дверях при входе в помещения. 4.2. Применение в процессе производства материалов и веществ с неисследованными показателями их пожаровзрывоопасности или не имеющими сертификатов, а также их хранение совместно с другими материалами и веществами не допускается. 4.3. Противопожарные системы и установки (автоматическая пожарная сигнализация, внутренний противопожарный водопровод, противопожарные двери, система оповещения) помещений предприятия должны постоянно находиться в исправном состоянии. 4.4. Устройства для самозакрывания дверей должны находиться в исправном состоянии. Не допускается устанавливать какие-либо приспособления, препятствующие нормальному закрыванию противопожарных или противодымных дверей. 4.5. Не разрешается проводить работы на оборудовании с неисправностями, могущими привести к пожару. 4.6. В местах пресечения противопожарных стен, перекрытий и ограждающих конструкций инженерными технологическими коммуникациями, образовавшиеся отверстия и зазоры должны быть заделаны строительным раствором или другими негорючими материалами, обеспечивающими требуемый предел огнестойкости и дымогазонепроницаемости. 4.7. При перепланировке помещений, изменении их функционального назначения или установки нового технологического оборудования должны соблюдаться противопожарные требования действующих норм строительного и технологического проектирования. 4.8. В помещениях предприятия ЗАПРЕЩАЕТСЯ: 4.8.1. использовать чердаки, технические этажи, венткамеры для организации производственных участков, мастерских, а также хранения продукции, мебели, оборудования и других предметов; 4.8.2. снимать предусмотренные проектом двери эвакуационных выходов из поэтажных коридоров и лестничных клеток, препятствующих распространению опасных факторов пожара на путях эвакуации; 4.8.3. производить перепланировку объемно-планировочных решений эвакуационных путей и выходов, в результате которой ограничивается доступ к огнетушителям, пожарным кранам и другим средствам пожарной безопасности или уменьшается зона действия автоматической пожарной сигнализации; 4.8.4. устанавливать глухие решетки на окнах; 4.8.5. проводить уборку помещений и стирку одежды с применением бензина, керосина и других ЛВЖ и ГЖ; 4.8.6. устраивать в лестничных клетках и поэтажных коридорах кладовые, а также хранить под лестничными маршами и на лестничных площадках вещи, мебель и другие горючие материалы. 4.8.7. загромождать чем-либо подходы, в том числе и временно, к средствам пожаротушения( пожарным кранам, огнетушителям) и ручным пожарным извещателям; 4.8.8. курение, кроме специально оборудованных мест и определенных приказом директора предприятия (место для курения обеспечивается специальным знаком). 4.9. В складских помещениях участка ППР материалы должны быть уложены на стеллажах. При бесстеллажном хранении, в складских помещениях, материалы должны быть уложены в штабели. Ширина проходов должна быть не менее 0,8 метра. Расстояние от хранимых товаров до приборов освещения должно быть не менее 0,5 метра, до пожарных извещателей не менее 0,5 метра, до электропроводов не менее 0,2 метра, до приборов отопления не менее 1 метра, центральный проход должен быть равен ширине дверей, но не менее 1м. 4.9.1. Складирование материалов в складских помещениях должно осуществляться в соответствии с разрабатываемыми план-схемами. 4.9.2. Электрооборудование складов по окончанию рабочего дня должно быть обесточено. Аппараты (ЩС, ЩО и т.д.), предназначенные для отключения электроснабжения склада, должны располагаться вне складского помещения на стене из негорючего материала и заключены в металлические коробки с приспособлениями для закрывания на замок и опломбирования. Дежурное освещение в помещениях складов, а также эксплуатация бытовых электронагревательных приборов и установка электрических розеток не допускается. 4.1. требования пожарной безопасности к помещениям оздоровительного комплекса: 4.10.1. комплекс сауны должен иметь обособленный эвакуационный выход; 4.10.2. парильное помещение должно быть оборудовано печью заводского изготовления с автоматической защитой и отключением до полного остывания через 8 часов непрерывной работы; 4.10.3. в парильном отделении должен быть перфорированный сухотруб, присоединенный к системе внутреннего водопровода; 4.10.4. для отделки допускается применение только лиственных пород древесины; 4.10.5. парильное отделение должно быть обеспечено естественной приточно-вытяжной вентиляцией кратностью 1*. 4.10.6. ответственное лицо за противопожарное состояние оздоровительного комплекса обязано систематически контролировать состояние обшивки парильного отделения, через 4 года эксплуатации обшивка парильного отделения должна полностью меняться; 4.10.7. Температура воздуха в парильном помещении не должна превышать 100 градусов. 4.11. В помещениях студии ТВ, радиостудии, службы «Интернет» не реже одного раза в квартал необходимо производить уборку от пыли аппаратуры, кабельных каналов и межпольного пространства. 4.12. Требования к путям эвакуации. 4.12.1. Двери на путях эвакуации должны открываться свободно и по направлению выхода из здания. Запоры на дверях эвакуационных выходов должны обеспечивать людям, находящимся внутри здания, возможность свободного их открывания изнутри без ключа. Допускается, по согласованию с ОГПС № 5, закрывать эвакуационные выходы на внутренний механический замок. В этом случае на каждом этаже здания назначается ответственный дежурный из числа обслуживающего персонала, у которого постоянно имеется при себе комплект ключей от всех замков на дверях эвакуационных выходов. Другой комплект ключей должен храниться в помещении дежурного персонала, Каждый ключ на обоих комплектах должен иметь надпись о его принадлежности соответствующему замку. 4.12.2. При эксплуатации эвакуационных путей и выходов ЗАПРЕЩАЕТСЯ: - загромождать эвакуационные пути и выходы различными материалами, оборудованием, мусором, а также забивать двери эвакуационных выходов; - устраивать на путях эвакуации пороги ( за исключением порогов в дверных проемах),а также другие устройства), препятствующие свободной эвакуации людей; - применять горючие материалы для отделки, облицовки и окраски стен и потолков, а также ступеней и лестничных площадок на путях эвакуации; - фиксировать самозакрывающиеся двери лестничных клеток в открытом положении, а также снимать их. к оснащению объектов огнетушители, знакомЗнаком «++» обозначены рекомендуемые к оснащению объектов огнетушители, знаком «+» – огнетушители, применение которых допускается при отсутствии рекомендуемых и при соответствующем обосновании, знаком «-» - огнетушители, которые не допускаются для оснащения данных объектов. Приложение 3 Регламенты работ по техническому обслуживанию систем пожаротушения, пожарной и охранно-пожарной сигнализации. Типовой регламент № 1 технического обслуживания систем водяного (пенного) пожаротушения
Примечания: 1. Первый вариант - приведены сроки технического обслуживания для объектов с массовым пребыванием людей. 2. По строке 7. Проверка работоспособности системы с пуском огнетушащего вещества в защищаемые помещения производится не реже одного раза в 3 года. На газокомпрессорных, нефтеперекачивающих и насосных станциях по перекачке ЛВЖ, ГЖ, а также в резервуарных парках нефти и нефтепродуктов испытания с пуском огнетушащего вещества производятся не реже одного раза в год. Типовой регламент № 2 технического обслуживания систем газового пожаротушения
Примечание: 1. Первый вариант - сроки технического обслуживания для объектов с массовым пребыванием людей. 2. По строке 7. Проверка работоспособности системы с пуском огнегасящего вещества в защищаемые помещения производится не реже одного раза в 3 года. 3. Дозарядка и перезарядка баллонов огнегасящим веществом производится заводами, имеющими зарядные станции, по договорам. При их отсутствии дозарядка и перезарядка организовывается Заказчиком. Типовой регламент №3 технического обслуживания систем пожарной сигнализации, систем пожарно-охранной сигнализации
Примечание: 1 вариант - указаны сроки технического обслуживания для объектов с массовым пребыванием людей. Типовой регламент № 4 технического обслуживания систем противодымной защиты зданий и сооружений
ВСН 25-09.67-85 ПРОИЗВОДСТВЕННАЯ ДОКУМЕНТАЦИЯ, ОФОРМЛЯЕМАЯ ПРИ МОНТАЖЕ АУП.
ДОКУМЕНТАЦИЯ, ОФОРМЛЯЕМАЯ ПРИ ПРИЕМКЕ В ЭКСПЛУАТАЦИЮ.
* Полное название документов, обозначенных символом [], приводится под соответствующим номером в разделе 3. Нормативные сылки. ** Объект — территория, предприятие, здание, сооружение, помещение, наружная установка, склад, транспортное средство, открытая площадка, технологический процесс, оборудование, изделие. Требования к аппаратуре управления11.5 Кроме общих требований аппаратура управления установок водяного и пенного пожаротушения должна обеспечивать: а) автоматический пуск рабочих насосов (пожарных и насосов-дозаторов); б) автоматический пуск резервных насосов (пожарного и насоса-дозатора) в случае отказа пуска или невыхода рабочих насосов на режим в течение установленного времени; в)автоматическое включение электроприводов запорной арматуры; г) автоматический пуск и отключение дренажного насоса; д) местный, а при необходимости дистанционный пуск и отключение насосов (за исключением спринклерных систем); е) автоматическое и местное управление устройствами компенсации утечки огнетушащего вещества и сжатого воздуха из трубопроводов и гидропневматических емкостей; ж) автоматический контроль; электрических цепей запорных устройств с электроприводом на обрыв: электрических цепей приборов, регистрирующих срабатывание узлов управления, формирующих команду на автоматическое включение пожарных насосов и насосов-дозаторов на обрыв и короткое замыкание; з) автоматический контроль аварийного уровня в резервуаре, в дренажном приямке, в емкости с пенообразователем при раздельном хранении; и) автоматический контроль давления в гидропневмобаке; к) временную задержку на запуск установки пожаротушения (при необходимости); 11.7 В помещении насосной станции следует размещать следующие устройства: местного пуска и остановки насосов (допускается осуществлять пуск и остановку пожарных насосов из помещения дежурного поста); местного пуска и остановки компрессора. Требования к сигнализации11.9 В помещении пожарного поста или другом помещении с персоналом, ведущим круглосуточное дежурство, кроме общих требований, должна быть предусмотрена: а) световая и звуковая сигнализация: о пуске насосов; о начале работы установки с указанием направлений, по которым подается огнетушащее вещество; о неисправности установки, исчезновении напряжения на основном и резервном вводах электроснабжения установки, об отсутствии полного открытия задвижек запорных устройств электроприводом в режиме подачи команды на их открытие, неисправности цепей электроуправления запорных устройств, о снижении ниже допустимого уровня воды и давления воздуха (звуковой сигнал общий). об аварийном уровне в пожарном резервуаре, емкости с пенообразователем, дренажном приямке (общий сигнал); б) световая сигнализация: о положении задвижек с электроприводом (открыты, закрыты). 11.10 В помещении насосной станции следует предусматривать световую сигнализацию: а) о наличии напряжения на основном и резервном вводах электроснабжения; б) об отключении автоматического пуска пожарных насосов, насосов-дозаторов, дренажного насоса; в) о неисправности электрических цепей приборов, регистрирующих срабатывание узлов управления и выдающих команду на включение установки и запорных устройств ( с расшифровкой по направлениям); г) о неисправности электрических цепей управления задвижками запорных устройств с электроприводом (с расшифровкой по направлениям); д) об отсутствии полного открытия задвижек запорных устройств с электроприводом в режиме подачи команды на их открытие (с расшифровкой по направлениям); е) об аварийном уровне в пожарном резервуаре, емкости с пенообразователем, в дренажном приямке (общий сигнал). Если электрозадвижки установлены не в помещении насосной станции, то сигналы, указанные в абзацах г) и д) настоящего пункта, выдаются по месту установки электрозадвижек. ТРЕБОВАНИЯ ПОЖАРНОЙ БЕЗОПАСНОСТИ К СИСТЕМАМ ВЕНТИЛЯЦИИ8.1. На предприятии должны быть разработаны рабочие инструкции по эксплуатации вентиляционных систем и технические паспорта на каждую вентиляционную систему. 8.2. Плановые осмотры и проверки соответствия вентиляционных систем требованиям ГОСТ 12.4.024.-75 «Системы вентиляционные. Общие требования» должны проводиться в соответствии с графиком ТО и ППР. 8.3. Помещения для размещения вентиляционного оборудования (в техэтаже, на кровле здания) должны быть закрыты на замок. 8 4. На дверях венткамер вывешивается табличка« Посторонним вход запрещен», 8.5. В помещениях венткамер запрещается хранение каких-либо материалов, оборудования,, инструментов и т.п., а также использование их не по назначению. 8.6. Обслуживание вентсистем должен осуществлять специально подготовленный персонал. 8.7. Ключи от помещений венткамер должны находиться у ответственного лица, назначенного приказом директора предприятия. 8.8.Техническое обслуживание и текущий ремонт вентиляционных систем должен выполняться одновременно с плановым ремонтом технологического оборудования, обслуживаемого этими системами. 8.9. Ремонт и чистка вентиляционных систем должны осуществляться способами, исключающими возможность возникновения взрыва и пожара. 8.10. Чистка вентиляционных систем должна производиться в сроки, установленные инструкциями по эксплуатации. Отметка о чистке заносится в « Журнал ремонта и эксплуатации вентиляционных систем, |