Инженерная графика
1 ВВЕДЕНИЕ
Инженерная графика – трудоемкий предмет. Поэтому необходимо так организовать свою работу, чтобы при наименьшей затрате времени выполнить задание строго по учебному графику. Хорошо продуманные подготовительные операции в значительной мере предопределяют успех изучения курса.
Для освоения данного курса и организации самостоятельной работы при дистанционной технологии изучения дисциплины в качестве справочного материала студенту предлагается две методические разработки:
* «ИНЖЕНЕРНАЯ ГРАФИКА. Учебное пособие» – содержит теоретический материал данного курса. Внимательное изучение данного учебного пособия подготовит студента к выполнению графических работ, предусмотренных учебной программой.
* «ИНЖЕНЕРНАЯ ГРАФИКА. Методические указания» – содержит задания на выполнение контрольно-графических работ, рекомендации по их выполнению и примеры выполнения работ.
2 СОДЕРЖАНИЕ ЛЕКЦИОННОГО КУРСА
2.1 Основы начертательной геометрии
Общие сведения о способах проецирования. Проецирование точки, прямой. Прямые частного положения. Взаимное положение точки и прямой. Взаимное положение двух прямых. Проецирование плоских углов. Плоскость. Точка и прямая в плоскости. Взаимное положение плоскостей. Многогранники. Сечение многогранников проецирующей плоскостью. Пирамида с вырезом. Тела вращения. Сечение тел вращения проецирующей плоскостью. Тела вращения с вырезом.
2.2 Основные правила выполнения чертежей
Форматы. Масштабы. Типы линий. Шрифты чертежные. Изображения (простые и сложные разрезы, сечения, выносные элементы). Графическое обозначение материалов. Нанесение размеров. Аксонометрические проекции.
2.3 Резьбы
Общие сведения о резьбах. Основные параметры и элементы резьбы. Изображение и обозначение резьб. Назначение резьб. Резьбовые соединения. Расчет винтового соединения.
2.4 Чтение и деталирование сборочных чертежей
Содержание и объем работы. Пример чтения сборочного чертежа. Основные требования к рабочему чертежу. Порядок выполнения и оформления чертежей.
Примеры выполнения чертежей. Заполнение основной надписи. Основные положения по выбору и нанесению размеров. Выбор баз. Способы простановки размеров. Определение размеров детали по ее изображению. Пример выполнения рабочих чертежей деталей по конкретному сборочному чертежу.
3 СПИСОК РЕКОМЕНДУЕМОЙ ЛИТЕРАТУРЫ
1. Козлова Л.А. Инженерная и компьютерная графика. Часть 1: Учебное пособие. - Томск: ТМЦ ДО, 2004.
2. Государственные стандарты ЕСКД по состоянию на 01.03.97.
3. Гордон В.О, Семенцов-Огиевский М.А. Курс начертательной геометрии: Учеб. пособие / Под ред. Ю.Б. Иванова. – 23-Enter изд., перераб. – М.: Наука. Гл. ред. физ. мат. лит., 1988. – 272 с., ил.
4. Левицкий В.С. Машиностроительное черчение и автоматизация выполнения чертежей. - М.: Высшая школа, 2000. – 422 с., ил.
5. Фролов С.А., Воинов А.В., Феоктистов Е.Д. Машиностроительное черчение. - М., 1981. – 360 с., ил.
6. Попова Г.Н., Алексеев С.Ю. Машиностроительное черчение. Справочник. - Л.: Машиностроение, 1986. – 447 с., ил.
7. Чекмарев А.А. Инженерная графика. - М.: Высшая школа. 2000. – 365 с., ил.
8. Новичихина Л.И. Техническое черчение: Справочное пособие. - Мн.: Высшая школа, 1987. – 224 с., ил.
9. Козлова Л.А. Чтение и деталирование сборочного чертежа. Методические указания для студентов первого курса всех специальностей. – Томск: Томский университет автоматизированных систем управления и радиоэлектроники, 2001.
10. Никитина Н.В., Шибаева И.П. Проекционное черчение: Методические указания по дисциплине «Инженерная графика» для студентов 1 курса всех специальностей, части 1,2.– Томск: Томский институт автоматизированных систем управления и радиоэлектроники, 1990. – 31 с.
4 КОНТРОЛЬНО-графическая работа
Для изучения курса «Инженерная графика» студент выполняет контрольно-графическую работу, состоящую из трех разделов:
1. Проекционное черчение.
2. Резьбовое соединение (соединение винтом).
3. Деталирование.
5 РЕКОМЕНДАЦИИ ПО ВЫПОЛНЕНИЮ КОНТРОЛЬНО-ГРАФИЧЕСКОЙ РАБОТЫ
Теоретический материал, необходимый для выполнения контрольно-графических работ по данному курсу, и краткое содержание стандартов (ГОСТ) изложены в учебном пособии «Инженерная графика».
Цель данных методических указаний – оказать помощь в выполнении каждого раздела контрольно-графической работы, для которых даны индивидуальные задания. Здесь же приводятся примеры выполнения по предлагаемым разделам. Работы предлагается выполнять карандашом на соответствующих форматах. При проверке таких работ легко можно указать ошибки выполнения и дать необходимые указания для их исправления.
5.1 Проекционное черчение
Задачей данного раздела является:
* Научить студентов выполнять изображения детали на чертеже (виды, разрезы, сечения). Оформлять их по всем требованиям ГОСТ 2.104-68*, ГОСТ 2.305-68*, ГОСТ 2.307-68*, ГОСТ 2.317-69* Единой системы конструкторской документации (ЕСКД).
* Привить навыки пространственного представления детали по данным ее изображениям.
При выполнении данного раздела потребуются знания, полученные при изучении стандартов ЕСКД («Инженерная графика. Методическое пособие») по выбору типов линий, шрифта, по нанесению размеров, выбору необходимых простых разрезов.
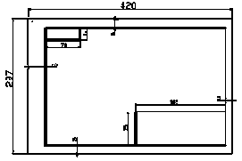
Каждому студенту предлагается индивидуальное задание (приложение 18 методического указания) в соответствии с его вариантом. Задание предлагается в виде задачи, содержащей два вида детали.
Задача выполняется на формате А3, оформленном в соответствии с ГОСТ 2.301-68* (Форматы).
В данном разделе необходимо:
1) по двум заданным видам построить третье изображение (в учебных целях предлагается выполнить вид слева);
2) выполнить необходимые простые полезные разрезы;
3) нанести размеры согласно ГОСТ 2.307-68*;
4) выполнить аксонометрическую проекцию данной детали (прямоугольную изометрию или прямоугольную диметрию) с ¼ выреза.
Прямоугольная диметрия выполняется в том случае, когда у предложенной детали в основании внутреннего отверстия или на внешнем контуре имеется квадрат, углы которого совпадают с осями. Во всех остальных случаях выполняется прямоугольная аксонометрия;
5) выполнить и заполнить основную надпись согласно ГОСТ 2.104-68* и ориентируясь на пример выполнения в приложении 2 и 3.
При выполнении задания необходимо соблюсти определенную последовательность:
1) выбор масштаба. Предлагается выполнить данную задачу по имеющимся размерам на задании в масштабе 1:1;
2) компоновка чертежа. Изображения выполняются на достаточном расстоянии друг от друга для удобства простановки размеров и чтения чертежа;
3) выбор полезных разрезов. В данной задаче необходимо выполнить ряд простых разрезов в зависимости от предложенной задачи. Соответствующие разрезы (для уменьшения количества работы в соответствии с ГОСТ 2.305-68*) выполняются на месте соответствующих видов. Обратите внимание, что при расположении секущей плоскости в плоскости симметрии детали разрезы не обозначаются. При наличии оси симметрии изображений выполняется совмещение половины вида с половиной соответствующего разреза. Разделом этих изображений служит осевая линия. Исключение составляет наличие ребра, совпадающего с осью симметрии внутри или на внешней поверхности детали. В этом случае необходимо увеличить долю разреза в первом случае и долю вида во втором. Разделом вида и разреза в этом случае будет служить тонкая волнистая линия;
4) при построении стараться не выполнять линий невидимого контура, а в готовой работе не допускается наличие линий невидимого контура;
5) при выполнении аксонометрического изображения сохранить ось построенного изображения и оси выполненных эллипсов. Обратить внимание на направление штриховки на соответствующих плоскостях выреза в аксонометрии.
Примеры выполнения задания даны в приложении 2 и 3.
5.2 Разъемное соединение
Задание на работу «Разъемное соединение» берется студентом из таблицы заданий (приложение 4) по индивидуальному варианту.
Номер варианта выбирается по общим правилам.
Примеры выполнения данной работы для винтов с различными типами головок даны в приложении 5, 6, 7, 8. Справочные данные для расчета и вычерчивания винтового соединения даны в приложении 9 – 13.
Работа выполняется на формате А4. Необходимо выполнить два изображения предлагаемого по Вашему варианту винтового соединения.
Порядок расчета винтового соединения дан в предлагаемом учебном пособии.
При выполнении данной части работы для винтов небольшого диаметра, винтовое соединение вычерчивать в масштабе 2:1.
5.3 Деталирование
Задание по данному разделу студент получает индивидуально согласно своего варианта из приложения 17 в качестве чертежа общего вида.
По данному чертежу студент должен выполнить рабочие чертежи трех обозначенных деталей, номера позиций которых и указаны на листе задания. Так же необходимо ответить на поставленные вопросы (в любом виде на отдельном листе).
Каждый рабочий чертеж выполняется на отдельном формате. Расположение изображений той или иной детали на выбранном формате не всегда соответствует его расположению на предложенном сборочном чертеже. Для каждой детали главное изображение может быть выбрано по различным соображениям. Предлагается выбрать за главное то, которое несет наибольшую информацию о данной детали. Размер формата и масштаб выполнения каждой детали выбираются индивидуально. При этом учитывается число изображений, выбранное для каждой конкретной детали, и масштаб его выполнения. К данному разделу предъявляются все требования правильного выполнения и оформления рабочих чертежей.
При выполнении работы по заданному курсу допускается не проставлять знаки шероховатости поверхностей (знаки на контурах изображений деталей и знак в верхнем правом углу формата).
5.4 Обозначение основного конструкторского документа
Обозначение, данное на предложенном сборочном чертеже общего вида, не учитываем. При присвоении обозначения каждой конкретной детали находимо найти ее классификационную характеристику по ее названию в приложении 16 методических указаний.
При заполнении основной надписи следует обратить внимание на следующее:
в графе 1 (приложение 1) записывается название детали, которое берут из спецификации предлагаемого задания (шрифт №7);
в графе 2 записывают обозначение чертежа из выписки классификатора наиболее часто встречающихся деталей данных в приложении16 (шрифт №7);
в графе 3 записывают название и марку материала, которые выбирают из спецификации предлагаемого задания. ГОСТ на материал выбирают из любого справочного пособия или из приложения 15 (шрифт №5);
в графе 4 – «У» (учебный чертеж) (шрифт №5):
в графе 6 – масштаб чертежа (шрифт №5):
в графе 7 – порядковый номер листа (на заданиях, состоящих из одного листа, графу не заполняют):
в графе 8 – общее количество листов задания (графу заполняют только на первом листе):
в графе 9 – ТУСУР, название проверяющей кафедры, факультет, номер группы (шрифтом № 3,5);
в графе 10 – фамилию студента;
в графе 11 – фамилию преподавателя;
в графе 12 – подпись студента;
в графе 13 – дату выполнения чертежа.
Все остальные графы в учебных чертежах не заполняются.
Пример выполнения данного задания приводится в приложении 14 методических указаний. 5.4. Обозначение основного конструкторского документа
Обратите внимание на заполнение основной надписи (в предыдущем задании в учебных целях она заполнена несколько иначе).
В верхней графе основной надписи записывается обозначение основного конструкторского документа:
ХХХХ. ХХХХХХ. ХХХ
Классификатор изделий и конструкторских документов – классификатор ЕСКД представляет собой систематизированный свод наименований классификационных группировок объектов классификации – изделий основного и вспомогательного производства всех отраслей народного хозяйства, общетехнических документов и их кодов; является основной частью Единой системы классификации и кодирования технико-экономической информации (ЕСКК ТЭИ).
В классификатор ЕСКД включены классификационные характеристики изделий: деталей, сборочных единиц, комплектов, комплексов (ГОСТ 2.101-68* ЕСКД), на которых разработаны и разрабатывается конструкторская документация по ЕСКД, в том числе стандартных изделий, а также общетехнических документов (нормы, правила, требования и т.д.) на изделия, входящие в классификатор ЕСКД.
Обозначение изделий и конструкторских документов устанавливается по ГОСТ 2.201-80 ЕСКД «Обозначение изделий и конструкторских документов». Обозначение основного конструкторского документа (чертежа детали или спецификации) включает:
1 – код организации разработчика (четыре знака);
2 – код классификационной характеристики (шесть знаков);
3 – код порядкового регистрационного номера три знака.
На учебных чертежах код организации разработчика записывается по аббревиатуре названия факультета, на котором обучается студент и номера курса студента (например ФЭТ!).
Так, например, для обозначения корпуса в верхней графе основной надписи будет записано:
ФЭТ1. 731000. 000
Классификационная характеристика является основной частью обозначения изделия и его конструкторского документа. Код классификационной характеристики присваивается по классификатору ЕСКД (краткая выписка из классификатора наиболее часто встречающихся названий деталей приведена в приложении 4 методического пособия), в шесть знаков которого входит обозначение класса, подкласса, подгруппы и вида изделия.
ВНИМАНИЕ!
Вместе с выполненными работами и ответами на вопросы (по первому и второму разделам – проекционное черчение и деталирование) необходимо указать номера вариантов индивидуальных заданий. Они необходимы для проверки работ.
![]() |
![]() |






ПРИЛОЖЕНИЕ 4
ИНДИВИДУАЛЬНЫЕ ЗАДАНИЯ
«Соединение винтом»
|
№ вариант |
Диаметр винта d |
Обозначение стандарта на винты ГОСТ |
Толщина соединяемой детали d |
|
1 |
16 |
1491-80 |
20 |
|
2 |
16 |
17473-80 |
22 |
|
3 |
18 |
17474-80 |
20 |
|
4 |
18 |
1491-80 |
22 |
|
5 |
20 |
17474-80 |
22 |
|
6 |
12 |
17474-80 |
18 |
|
7 |
10 |
174-75-80 |
16 |
|
8 |
14 |
17474-80 |
22 |
|
9 |
14 |
1491-80 |
19 |
|
10 |
6 |
17473-80 |
12 |
|
11 |
6 |
17473-80 |
10 |
|
12 |
20 |
1491-80 |
26 |
|
13 |
8 |
17474-80 |
10 |
|
14 |
10 |
17473-80 |
18 |
|
15 |
20 |
17475-80 |
24 |
|
16 |
8 |
1491-80 |
14 |
|
17 |
12 |
1491-80 |
16 |
|
18 |
14 |
17475-80 |
16 |
|
19 |
14 |
17473-80 |
20 |
|
20 |
12 |
17474-80 |
18 |
|
21 |
16 |
17474-80 |
24 |
|
22 |
18 |
17475-80 |
24 |
|
23 |
12 |
17475-80 |
14 |
|
24 |
20 |
17473-80 |
26 |
|
25 |
10 |
1491-80 |
14 |
|
26 |
10 |
17474-80 |
20 |
|
27 |
8 |
17473-80 |
12 |
|
28 |
8 |
17475-80 |
16 |
|
29 |
6 |
17474-80 |
8 |
|
30 |
6 |
17475-80 |
10 |
П р и м е ч а н и е.
Длина l для крепежных винтов выбирается из ряда, мм: 2; (2,5); 3: 3,5; 4; 5; 6; (7); 8; 9; 10; 11; 12; (13); 14; 16; (18); 20; (22); 25; (28); 30; (32); 35; (38); 40; (42); 45; (48); 55; 60; 65; 70; 75; 80; (85); 90; (95); 100; 110; 120.
ПРИЛОЖЕНИЕ 5

ПРИЛОЖЕНИЕ 6
![]() |

ПРИЛОЖЕНИЕ 7
ПРИЛОЖЕНИЕ 8
![]() |
ПРИЛОЖЕНИЕ 9
Крепежные винты с цилиндрической головкой классов точности А и В
по ГОСТ 1491-80* (СТ СЭВ 2653-80)
![]() |
|||||||
|
Номинальный диаметр резьбы d |
Шаг резьбы |
Длина резьбы b |
D |
k |
l |
||
|
крупный |
мелкий |
удли- ненная |
норма-льная |
||||
|
1 |
0,25 |
- |
- |
8 |
2,0 |
0,7 |
2-10 |
|
1,2 |
0,25 |
- |
- |
9 |
2,3 |
0,8 |
2-12 |
|
1,4 |
0,3 |
- |
- |
9 |
2,6 |
0,9 |
2-12 |
|
1,6 |
0,35 |
- |
- |
9 |
3,0 |
1,0 |
2-16 |
|
2 |
0,4 |
- |
16 |
10 |
3,8 |
1,3 |
2,5-20 |
|
2,5 |
0,45 |
- |
18 |
11 |
4,5 |
1,6 |
3-25 |
|
3 |
0,5 |
- |
19 |
12 |
5,5 |
2,0 |
3-30 |
|
3,5 |
0,6 |
- |
20 |
13 |
6,0 |
2,4 |
4-35 |
|
4 |
0,7 |
- |
22 |
16 |
7,0 |
2,6 |
4-40 |
|
5 |
0,8 |
- |
25 |
18 |
8,5 |
3,3 |
6-50 |
|
6 |
1 |
- |
28 |
22 |
10 |
3,9 |
7-60 |
|
8 |
1,25 |
1,0 |
34 |
24 |
13 |
5 |
12-80 |
|
10 |
1,5 |
1,25 |
40 |
26 |
16 |
6 |
18-100 |
|
12 |
1,75 |
1,25 |
46 |
30 |
18 |
7 |
18-100 |
|
14 |
2 |
1,5 |
52 |
21 |
21 |
8 |
22-100 |
|
16 |
2 |
1,5 |
58 |
24 |
24 |
9 |
28-100 |
|
18 |
2,5 |
1,5 |
64 |
27 |
27 |
10 |
35-110 |
|
20 |
2,5 |
1,5 |
70 |
30 |
30 |
11 |
40-120 |
|
П р и м е ч а н и е. Длина l в указанных пределах выбирается из ряда, приведенного в примечании приложения 2. П р и м ер ы у с л о в н о г о о б о з н а ч е н и я: винт класса точности А с диаметром резьбы d = 8 мм, с крупным шагом, с полем допуска резьбы 6g, длиной l = 50 мм, класса точности 4.8, без покрытия: Винт А. М8 – 6g x 50.48 ГОСТ 1491-80*. |
ПРИЛОЖЕНИЕ 10
Крепежные винты с полукруглой головкой по ГОСТ 17473-80*
![]() |
|||||||
Нормальный диаметр резьбы d |
Шаг резьбы |
Длина резьбы b |
D |
k |
R |
l |
|
круп-ный |
мел- кий |
||||||
1 |
0,25 |
- |
8 |
2,0 |
0,7 |
1,1 |
2-5 |
1.2 |
0,25 |
- |
9 |
2,3 |
0,8 |
1,3 |
2-7 |
1.4 |
0,3 |
- |
9 |
2,6 |
0,95 |
1,4 |
2-11 |
1.6 |
0,3 |
- |
9 |
3,0 |
1,1 |
1,6 |
2-14 |
2 |
0,4 |
- |
10 |
3,8 |
1,4 |
2,0 |
2,5-18 |
2.5 |
0,45 |
- |
11 |
4,5 |
1,7 |
2,4 |
3-25 |
3 |
0,5 |
- |
12 |
5,5 |
2,1 |
2,9 |
3-30 |
3.5 |
0,6 |
- |
13 |
6,0 |
2,4 |
3,1 |
4-35 |
4 |
0,7 |
- |
14 |
7,0 |
2,8 |
3,6 |
4-42 |
5 |
0,8 |
- |
16 |
8,5 |
3,5 |
4,4 |
6-50 |
6 |
1,0 |
- |
18 |
10 |
4,2 |
5,1 |
7-55 |
8 |
1,25 |
1,0 |
22 |
13 |
5,6 |
6,6 |
12-70 |
10 |
1,5 |
1,25 |
26 |
16 |
7,0 |
8,1 |
18-70 |
12 |
1,75 |
1,25 |
30 |
18 |
8,0 |
9,1 |
22-80 |
14 |
2 |
1,5 |
34 |
21 |
9,5 |
10,6 |
25-90 |
16 |
2 |
1,5 |
38 |
24 |
11 |
12,1 |
30-95 |
18 |
2,5 |
1,5 |
42 |
27 |
12 |
13,6 |
35-110 |
20 |
2,5 |
1,5 |
46 |
30 |
14 |
15,1 |
40-120 |
П р и м е ч а н и е. Длина l в указанных пределах выбирается из ряда, приведенного в примечании приложения 2. П р и м е р у с л о в н о г о о б о з н а ч е н и я: винт класса точности А, исполнения 1, с диаметром резьбы d = 8 мм, с крупным шагом, с полем допуска резьбы 6g, длиной l = 50мм, класса прочности 4.8, без покрытия: Винт А. М 8 – 6 g x 50.48 ГОСТ 17473-80*. |
Крепежные винты с полупотайной головкой по ГОСТ 17474-80*
(СТ СЭВ 2655-80)
![]() |
||||||||
Номинальный диаметр резьбы d |
Шаг резьбы |
Длина резьбы b |
D |
k |
f |
R |
l |
|
крупный |
мелкий |
|||||||
1 |
0,25 |
- |
8 |
1,9 |
0,60 |
0,25 |
2,5 |
2-10 |
1,2 |
0,25 |
9 |
2,3 |
0,72 |
0,3 |
2,6 |
2-12 |
|
1,4 |
0,3 |
- |
9 |
2,6 |
0,84 |
0,35 |
2,9 |
3-12 |
1,6 |
0,35 |
- |
9 |
3,0 |
0,96 |
0,4 |
3,4 |
3-16 |
2 |
0,4 |
- |
10 |
3,8 |
1,20 |
0,5 |
4,2 |
3-20 |
2,5 |
0,45 |
- |
11 |
4,7 |
1,50 |
0,6 |
5,4 |
3,5-25 |
3 |
0,5 |
- |
12 |
5,6 |
1,65 |
0,75 |
6,0 |
3,5-30 |
3,5 |
0,6 |
- |
13 |
6,5 |
1,93 |
0,9 |
6,8 |
5-35 |
4 |
0,7 |
- |
14 |
7,4 |
2,2 |
1,0 |
8,0 |
5-40 |
5 |
0,8 |
- |
16 |
9,2 |
2,5 |
1,25 |
9,4 |
6-100 |
6 |
1,0 |
- |
18 |
11 |
3 |
1,5 |
12 |
8-100 |
8 |
1,25 |
1 |
22 |
14,5 |
4 |
2 |
15 |
10-100 |
10 |
1,5 |
1,25 |
26 |
18 |
5 |
2,5 |
19 |
12-100 |
12 |
1,75 |
1,25 |
30 |
21,5 |
6 |
3 |
22,5 |
16-100 |
14 |
2 |
1,5 |
34 |
25 |
7 |
3,5 |
26 |
25-100 |
16 |
2 |
1,5 |
38 |
28,5 |
8 |
4 |
30 |
30-100 |
18 |
2,5 |
1,5 |
42 |
32,5 |
9 |
4,5 |
34 |
35-100 |
20 |
2,5 |
1,5 |
46 |
36 |
10 |
5 |
38 |
40-100 |
П р и м е ч а н и е. Длина l в указанных пределах выбирается из ряда, приведенного в примечании приложения 2. П р и м е р у с л о в н о г о о б о з н а ч е н и я : винт класса точности А, исполнения 1, с диаметром резьбы d = 8мм, с крупным шагом резьбы, с полем допуска 6g длиной 55мм, класса точности 4.8, без покрытия: Винт А. М8-6gx50.48ГОСТ 17474-80* |
ПРИЛОЖЕНИЕ 12
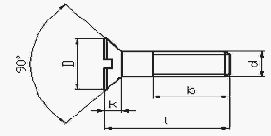
Крепежные винты с потайной головкой по ГОСТ 17475-80*
(СТ СЭВ 2652-80)
![]() |
||||||
|
Номинальный диаметр резьбы d |
Шаг резьбы |
Длина резьбы |
d |
k |
l |
|
|
крупный |
мелкий |
|||||
|
1 |
0,25 |
- |
8 |
1,9 |
0,60 |
2-10 |
|
1,2 |
0,25 |
- |
9 |
2,3 |
0,72 |
2-12 |
|
1,4 |
0,3 |
- |
9 |
2,6 |
0,84 |
3-12 |
|
1,6 |
0,35 |
- |
9 |
3,0 |
0,96 |
3-16 |
|
2 |
0,4 |
- |
10 |
3,8 |
1,20 |
3-20 |
|
2,5 |
0,45 |
- |
11 |
4,7 |
1,50 |
3,5-25 |
|
3 |
0,5 |
- |
12 |
5,6 |
1,65 |
3,5-30 |
|
3,5 |
0,6 |
- |
13 |
6,5 |
1,93 |
5-35 |
|
4 |
0,7 |
- |
14 |
7,4 |
2,2 |
5-40 |
|
5 |
0,8 |
- |
16 |
9,2 |
2,5 |
6-50 |
|
6 |
1 |
- |
18 |
11 |
3 |
7-60 |
|
8 |
1,25 |
1 |
22 |
14,5 |
4 |
8-80 |
|
10 |
1,5 |
1,25 |
26 |
18 |
5 |
11-100 |
|
12 |
1,75 |
1,25 |
30 |
21,5 |
6 |
16-100 |
|
14 |
2 |
1,5 |
34 |
25 |
7 |
30-100 |
|
16 |
2 |
1,5 |
38 |
28,5 |
8 |
32-100 |
|
18 |
2,5 |
1,5 |
42 |
32,5 |
9 |
35-110 |
|
20 |
2,5 |
1,5 |
46 |
36 |
10 |
40-120 |
|
П р и м е ч а н и е. Длина l в указанных пределах выбирается из ряда, приведенного в примечании приложения 2. П р и м е р у с л о в н о г о о б о з н а ч е н и я: винт класса точности В, исполнения1, с диаметром резьбы d = 8мм, с крупным шагом резьбы, длиной l = 50мм: Винт В1 М8x50 ГОСТ 17475-80* |
Размеры прямых шлицев для крепежных винтов
по ГОСТ 24669-81 (СТ СЭВ 1016-7810.
![]() |
|
Номиналь- ный диаметр резьбы d |
Нормаль- ная ширина шлица b |
Глубина шлица h в зависимости от формы винта |
|||
|
Цлиндричес- кая |
Потай- ная |
Полупо- тайная |
Полу- круглая |
||
|
1 |
0,25 |
0,30-0,44 |
0,20-0,30 |
0,40-0,55 |
0,25-0,55 |
|
1,2 |
0,3 |
0,35-0,49 |
0,24-0,35 |
0,48-0,64 |
0,25-0,55 |
|
1,4 |
0,3 |
0,40-0,60 |
0,28-0,45 |
0,56-0,74 |
0,35-0,65 |
|
1,6 |
0,4 |
0,45-0,65 |
0,32-0,50 |
0,64-0,80 |
0,45-0,75 |
|
2 |
0,5 |
0,60-0,85 |
0,40-0,60 |
0,80-1,00 |
0,75-1,05 |
|
2,5 |
0,6 |
0,70-1,00 |
0,50-0,73 |
1,00-1,20 |
0,90-1,30 |
|
3 |
0,8 |
0,90-1,30 |
0,60-0,85 |
1,20-1,45 |
1,00-1,40 |
|
3,5 |
0,8 |
1,00-1,40 |
0,70-1,00 |
1,40-1,70 |
1,30-1,70 |
|
4 |
1 |
1,20-1,60 |
0,80-1,10 |
1,60-1,90 |
1,60-2,00 |
|
5 |
1,2 |
1,50-2,00 |
1,00-1,35 |
2,00-2,30 |
2,10-2,50 |
|
6 |
1,6 |
1,80-2,30 |
1,20-1,60 |
2,40-2,80 |
2,30-2,70 |
|
8 |
2 |
2,30-2,80 |
1,60-2,10 |
3,20-3,70 |
3,26-3,74 |
|
10 |
2,5 |
2,70-3,20 |
2,00-2,60 |
4,00-4,50 |
3,76-4,24 |
|
12 |
3 |
3,20-3,80 |
2,40-3,00 |
4,80-5,40 |
3,96-4,44 |
|
14 |
3 |
3,60-4,20 |
2,80-3,50 |
5,60-6,30 |
4,26-4,74 |
|
16 |
4 |
4,00-4,60 |
3,20-4,00 |
6,40-7,20 |
4,76-5,24 |
|
18 |
4 |
4,50-5,10 |
3,60-4,50 |
7,20-8,00 |
5,26-5,74 |
|
20 |
5 |
5,00-5,60 |
4,00-5,00 |
8,10-9,00 |
5,76-6,24 |
ПРИЛОЖЕНИЕ 14

ПРИЛОЖЕНИЕ 15
В современной промышленности применяются материалы металлические и неметаллические. От правильного выбора материалов для составных частей изделия зависят его качество, надежность, длительность работоспособности, стоимость.
В данном приложении приведены краткие сведения о материалах в объеме, необходимом для понимания их условных обозначений, приводимых на чертежах.
Стали подразделяют на углеродистые и легированные.
Сталь углеродистую обыкновенного качества изготовляют по ГОСТ 380-94 семи марок, от 0 до 6-й (чем выше число, тем сталь тверже, но более хрупкая).
Примеры обозначений:
Ст3 ГОСТ 380-94 – обозначение, когда не требуется указания качественной характеристики стали (в частности на учебных чертежах).
Во всех приведенных примерах слово «сталь» не пишут, т.е. не пишут «Сталь Ст.3...» и т.д.
Марка стали |
Применение в изделиях |
Ст.0, Ст. 1, Ст. 2 |
Неответственные малонагруженные детали – кожухи, прокладки, трубы |
Ст. 3, Ст. 4 |
Заклепки, гайки, шайбы |
Ст. 5, Ст. 6 |
Более ответственные детали – валы, оси, шпонки, зубчатые колеса |
Примеры обозначения:
Сталь 45 ГОСТ 1050-88* (слово «Сталь» пишут обязательно).
Марка стали |
Применение в изделиях |
0.5, 10 |
Штампованные и гнутые детали |
15, 20, 25, 30 |
Болты, гайки, шпильки, муфты, поршни, оси, валы и т.д. |
60Г, 65Г |
Детали, требующие повышенной упругости материала |
предназначенные для литья, обозначают АЛ1, АЛ2 и т.д.; для ковки - АК1, АК2 и т.д.; обрабатываемые давлением – Д1, Д2 и т.д. (дюралюминий)
Примеры обозначений:
АЛ9 ГОСТ 1583-93, АК8 ГОСТ 4784-74*, ДК16 ГОСТ 4784-74*
Марка сплава |
Применение в изделиях |
АЛ1, АЛ2,...АЛ8 |
Для отливки тонких сложной формы деталей |
АК4, АК, АД1, Д12 |
Кованные и штампованные детали разных форм |
Бронзы подразделяются на оловянные и безоловянные.
Примеры обозначения:
БрОЦСН 3-7-5-1 ГОСТ 613-79, Бр03Ц12С5 ГОСТ 613-79
Марка бронзы |
Применение в изделиях |
БрА9Мц2Л, БрА9ЖЗЛ, БрА10Мц2Л БрА10ЖЗМц2, БрА10Ж4Н4Л |
Ленты, полосы, прутки, фасонное литье, втулки и вкладыши подшипников, трубы и т.д. |
Бр03Ц12С5, Бр05Ц5С5, Бр03Ц7С5Н1,Бр04Ц7С5 |
Мелкие подшипники, сальники, втулки, гайки ходовых винтов, гнезда клапанов и т.д. |
Пример обозначения:
ЛС59-1 ГОСТ 15529 – 70*
Марки латуни |
Применение в изделиях |
ЛС, ЛК2, ЛСД, ЛКС, ЛС1, ЛМцС, ЛМцЖ, ЛК, ЛА, ЛК1, ЛАЖМц |
Радиаторные трубки, конденсационные трубки, полосы, листы, ленты, трубы, проволока, прутки |
Примеры обозначения:
Пресс-материал АГ-4 ГОСТ 20437-89E.
Текстолит ПТК-20-сорт 1 ГОСТ 5-78*Е.
Фторопласт 4 П ГОСТ 1000-80*Е.
Наименование и мака материала |
ГОСТ или технические условия |
Применение в изделиях |
Винипласт: ВН, ВП, ВНЭ |
ГОСТ 9639-71 |
Трубки корпуса кранов и вентелей |
Гетинакс: ОН, ОНТ, ТНТ |
ГОСТ 2718-74*E |
Втулки подшипников, маховички, кнопки, трубки, крышки |
Монолит: М3, М7, М10 |
ГОСТ 5689-73 |
Втулки, маховики, кнопки,крышки |
Древесно-слоистый пластик ПТ, ПТК, ПТК-1 |
ГОСТ 5-72 |
Конструктивный и антифрикционный материал |
Полиэтилен: 20306, 21006 |
ГОСТ 16338-77 |
Клапаны, золотники |
Стекловолокнит: АТ-4-В, АТ-1-С |
ОМТУ 431-57 |
Фланцы, крышки, вкладыши подшипников, втулки |
Полистерол: Д, Т. |
ГОСТ 20282-74 |
Маховички, крышки, кнопки, втулки |
Тестолит: ПТК, ПТ, ПТМ-1 |
ГОСТ 5-72 |
Шкивы, крогштейны, вилки, втулки, кольца, бесшумные шестерни |
Фенопласт: К-2-2, К-17-2, К-18-2 |
ГОСТ 5689-73 |
Клапаны, наконечники, рукоятки, маховички |
Фторопласт: С, П, О, |
ГОСТ 10007-80Enter |
Прокладки |
Управление: Предприятие - Качество - Производство
- Управление качеством
- Категории управления качеством
- Управление предприятием
- Стратегии управления предприятием
- Анализ в управлении предприятием
- Виды управления предприятием
- Основы управления предприятием
- Групповое управление предприятием
- Экономика управления предприятием
- Управление производством
- Финансы при управленим производством
- Производство металла
- Производство пластмассы
- Производство электричества
- Производство графических изделий
- Производство чертежей
- Софт для управление производством
- ProjectStudio помощь в управление








