Строительная механика. Применение программы SCAD
ПредисловиеНеобходимость в использовании в учебном процессе
проектно - вычислительных комплексов для ПЭВМ
В настоящее время при проектировании строительных конструкций в проектных организациях значительная часть расчетов выполняется на персональных компьютерах (ПК) с помощью специальных проектно-вычислительных комплексов (ПВК), в которых отражаются и используются самые современные достижения по расчету и проектированию сооружений.
Подготовка инженеров строительных специальностей должна учитывать это обстоятельство и включать в себя и обучение методам компьютерного проектирования сооружений с использованием тех ПВК, которые доступны для внедрения в учебный процесс в настоящее время.
Необходимо учитывать и то, что многие студенты имеют компьютеры дома и часто хорошо информированы о возможностях современных программ и даже имеют возможность использовать их для выполнения заданий и курсовых работ и проектов.
Причина выбора ПВК SCAD для использования в учебном процессе
преподавания дисциплины «Строительная механика» на инженерно-строительном факультете СПбГПУ
Применяемые в инженерной практике проектирования строительных конструкций ПВК отличаются друг от друга методическими и сервисными разработками, но все они включают в себя статические и динамические расчеты конструкций и отдельных их частей, выполняемые методами строительной механики. Алгоритмы численных расчетов в этих программах в основном строятся на методе конечных элементов (МКЭ), реализуемом в форме метода перемещений.
Не ставя задачу качественного сопоставления между собой различных ПВК, отметим, что в настоящее время (2002/2003 учебный год) наиболее доступным для применения в учебном процессе на инженерно-строительном факультете СПбГПУ при решении задач строительной механики оказался ПВК Structure construction automatic design (SCAD), разрабатываемый на Украине в г. Киев группой специалистов (SCAD Group).
Вычислительный комплекс состоит из нескольких программ. Его основой является программа SCAD.
Программа SCAD проста для использования в учебном процессе, как при изучении строительной механики, так и при дальнейшем продолжении обучения, связанном с расчетом металлических и железобетонных конструкций.
Кафедра строительной механики и теории упругости успешно использует программу SCAD в своем учебном классе ПЭВМ для выполнения студентами самостоятельных вычислительных работ в дисциплинах: «Строительная механика стержневых систем (статика)»; «Теория упругости»; «Динамика сооружений».
Необходимость в написании данного учебного пособия
и методика его построения
Дисциплина «Строительная механика стержневых систем (статика)» для всех специальностей ИСФ СПбГПУ, на которых она изучается, методически традиционно разделяется на два раздела:
1. «Расчет статически определимых стержневых систем»
2. «Расчет статически неопределимых стержневых систем»
Первому разделу отводится один семестр изучения строительной механики, в течение которого учащиеся самостоятельно выполняют следующие расчетные работы:
Работа 1. Построение эпюр M и Q в многопролетной шарнирной балке
Работа 2. Построение эпюр усилий M, Q, N в раме
Работа 3. Построение эпюр усилий в трехшарнирной арке
Работа 4. Определение усилий в стержнях фермы
Работа 5. Определение перемещений сечений рамы
Для лучшего понимания «игры сил» в заданных стержневых системах расчеты выполняются вручную с использованием соответствующих рациональных приемов применения уравнений равновесия.
Опыт автора в преподавании строительной механики в последние годы показал, что целесообразно решение этих же задач выполнить не только вручную, но и на ПК с использованием программы SCAD.
При этом достигаются две положительные цели. Во-первых, студент получает возможность самому проверить результаты своих ручных расчетов, что повышает его самостоятельность. Во-вторых, он постепенно (на примере решения простых задач) осваивает программный комплекс SCAD, который в дальнейшем будет необходим ему для решения более сложных задач строительной механики в разделе «Статически неопределимые стержневые системы» и в других дисциплинах.
Эти вопросы отражены в учебных пособиях, написанных преподавателями кафедры [2¸5].
Во второй части дисциплины после изучения метода сил и метода перемещений расчета стержневых систем в их классической постановке, предусмотрено изучение МКЭ. Тогда же предусмотрено изучение методов расчета строительных конструкций и их элементов с учетом податливости дискретных опор и непрерывного опирания стержней по их длине на упругое основание.
Использованию программы SCAD для решения этих вопросов будет посвящена вторая часть учебного пособия,
При изложении МКЭ в части 2 предполагается, что учащийся уже изучил классические методы расчета стержневых систем: метод сил и метод перемещений в их каноническом и матричном виде. Эти методы отражены в учебных пособиях [6, 7]. Кроме них к части 2 рекомендуются монография [8] и учебные пособия [9¸11]. Конечно, в учебном пособии использованы справочные материалы, имеющиеся непосредственно в программе SCAD и в книге разработчиков программы SCAD [1], прилагающейся к программному комплексу в электронном виде.
Далее предполагается подготовить учебные пособия для дисциплин «Теория упругости» и «Динамика сооружений».
1. ОБЩИЕ ВОПРОСЫ ПРИМЕНЕНИЯ ПРОГРАММЫ SCAD
ДЛЯ РАСЧЕТА ПЛОСКИХ СТЕРЖНЕВЫХ СИСТЕМ
ОТ СТАТИЧЕСКОЙ НАГРУЗКИ
1.1. Отдельные этапы выполнения расчетных заданий
с помощью программы SCAD
Процедура выполнения заданий по строительной механике стержневых систем с помощью программы SCAD в учебном пособии условно разделена на следующие этапы.
Этап 1. Запуск программы SCAD и подготовка к созданию расчетной схемы
1.1.Запуск программы SCAD.
1.2.Создание нового проекта для выполнения расчета заданной стержневой системы и его наименование.
1.3. Задание имени файла в директории SDATA, в котором будет сохраняться вся информация по введенным исходным данным. Выход на схему «Дерево проекта» для начала работы.
1.4. Открытие окна «Расчетная схема» для формирования расчетной схемы МКЭ рассматриваемой стержневой системы.
Этап 2. Создание расчетной схемы стержневой системы для МКЭ
2.1. Графическое представление расчетной схемы в общей системе координат для всей стержневой системы с нумерацией узлов и элементов и местных систем координат для каждого элемента отдельно.
2.2. Назначение типа элементов.
2.3. Назначение жесткости элементов.
2.4 Назначение опорных связей.
2.5 Назначение шарниров в узлах элементов.
2.6. Печать или сохранение расчетной схемы
Этап 3. Загружение расчетной схемы МКЭ
3.1. Задание узловой нагрузки.
3.2. Задание нагрузки на элемент.
3.3. Сохранение загружения.
3.4. Печать или сохранение расчетной схемы с созданным загружением.
Этап 4. Выполнение линейного расчета и представление его результатов
4.1. Выполнение линейного расчета, в котором реализуется алгоритм решения задачи МКЭ по определению перемещений узлов (в общей для стержневой конструкции системе координат) и усилий в намеченных для расчета сечениях элементов (в местной системе координат).
4.2. Представление полученных результатов расчета стержневой системы в виде эпюр усилий в ее элементах и картины перемещений узлов. Их сохранение и печать.
4.3. Представление полученных результатов расчета стержневой системы в виде таблицы с усилиями в намеченных сечениях элементов и таблицы перемещений узлов расчетной схемы. Их сохранение и печать.
В первом разделе учебного пособия рассматриваются некоторые общие вопросы выполнения данной последовательности расчета только на этапах 1÷3.
Конкретные действия на этих этапах приведены в разделе 2, где рассматриваются примеры выполнения расчетных работ для статически определимых стержневых систем. Там же рассмотрены действия расчетчика на этапе 4 применения программы SCAD.
Вопросы определения перемещений в статически определимых стержневых системах с помощью программы SCAD рассмотрены в пособии только разделе 3. Это сделано на примере плоской рамы в виде замкнутого контура.
Нумерация, использованная внутри подразделов, выполнена в соответствии с указанной выше нумерацией этапов и делением их на подэтапы.
1.2. Инструкция по работе с программой SCAD на этапе 1
Этап 1.Запуск программы SCAD и подготовка к
созданию расчетной схемы
1.1. Запуск программы SCAD
С помощью мыши курсор в виде стрелки подводится на рабочем столе монитора к ярлыку программы SCAD и дважды быстро нажимается левая кнопка мыши.
На экране появится окно, информирующее о загрузке программы с указанием на операционную систему, в которой она работает. Окно имеет меню из трех разделов – Проект, Опции, Справка и инструментальную панель из 5 кнопок:

1.2. Создание нового проекта для выполнения расчета заданной стержневой системы и его наименование
Для создания нового проекта курсор устанавливается на одноименной кнопке «Создать новый проект» инструментальной панели и нажимается левая кнопка мыши. На экран выводится диалоговое окно Новый проект.
Вид этого окна в разных версиях SCAD различается. В представленном варианте окна выполним требуемые действия.
1.2.1.Ввод наименования проекта.
Сделаем, например, ввод для работы 4 (см. предисловие). Введем: работа 4.

1.2.2. Ввод названий: организации, выполняющей расчет, и объекта.
В окне «Организация» учащемуся можно ничего не записывать, или написать номер группы. В нашем примере записано: СПбГПУ. В окне «Объект» введем: ферма1.
1.2.3.Установка единиц измерения
Открывается окно «Единицы измерения» и в соответствии с выбранной расчетчиком системой (СИ или технической, например, МТС) назначаются единицы измерения основных величин.
1.2.4.Выбор типа схемы.
При расчете плоской фермы используется конечный элемент в виде стержня шарнирно соединенного по концам с узлами фермы. Поэтому для фермы выбрано: 1.Плоская шарнирно-стержневая система.
При расчете плоских балок и рам используется конечный элемент типа 2. В этом случае в окне надо выбрать: 2. Плоская рама.
Пояснения по указанным типам стержневых элементов приведены далее в подразделе 1.4.
1.2.5.Сохранение нового проекта.
Для сохранения введенных данных о новом проекте курсор подводится к кнопке ОК в рассматриваемом диалоговом окне и нажимается левая кнопка мыши.
При этом на экран будет выведено окно Создание нового проекта SCAD.
1.3 Задание имени файла в директории SDATA. Выход на схему
«Дерево проекта» для начала работы.
В учебном классе кафедры СМ и ТУ в открывшемся окне SDATA будут папки с номерами групп. Надо выбрать папку с номером своей группы и открыть ее (открываем папку 30151). В папке этой группы и задается имя файла.
Примечание к пункту 1.3. Для того чтобы студенты не выбирали произвольно вымышленных названий своих проектов, в компьютерном классе кафедры СМ и ТУ принят вид имени файла, состоящий из двух частей, соединенных тире (без пробела).
Часть 1, состоящая из четырехзначного цифрового шифра ABCD выданного студенту на все время изучения дисциплины «Строительная механика стержневых систем (статика)» для выбора расчетных схем


стержневых систем из сборника задач [2].
Часть 2, состоящая из первой буквы наименования рассчитываемой системы и следующего за ней (без пробела) порядкового номера рассматриваемого типа схемы (в приведенном выше примере вводится: ф1).
Пусть студенту группы 3015/1 выдан шифр ABCD = 0102. Тогда для задания имени файла он должен последовательно открыть в папке SDATA папку «30151» и в ней задать имя файла: 0102-ф1 (см. приведенное окно).
Команда «Сохранить» открывает окно со схемой, которая называется Дерево проекта:

Созданный файл будет храниться в указанной папке, а затем имя файла будет присвоено всем служебным файлам и порождаемым в процессе работы комплекса файлам с результатами. Эти рабочие файлы будут храниться в рабочей папке SWORK.
Примечание к этапу 1. При необходимости повторной работы с созданным проектом после запуска программы SCAD (см. подраздел 1.1 этапа 1) на инструментальной панели из 5 кнопок надо нажать кнопку

Открытие этого файла приведет к открытию схемы Дерево проекта. Далее выполняем описываемые ниже действия.
1.4. Открытие окна Расчетная схема
Дерево проекта включает четыре раздела первого уровня: Исходные данные, Расчет, Результаты и Конструирование.
В первую очередь необходимо войти в раздел Исходные данные и открыть название раздела второго уровня Расчетная схема.
Для начала работы по созданию расчетной схемы, курсор подводится к пиктограмме

В результате откроется рабочее окно по созданию расчетной схемы, в котором имеется шесть функциональных разделов (их названия отмечены внизу информационной панели). Каждому разделу соответствует своя инструментальная панель с рабочими кнопками. Сначала окно откроется с активной инструментальной панелью раздела Управление.
Одновременно в окне появятся две подвижные инструментальные панели: Фильтры отображения и Визуализации. Можно изменить размеры сторон этих панелей и сделать их удобными для размещения в поле окна вместе с расчетной схемой.
Панели видны только в том случае, если на инструментальной панели раздела Управление соответственно нажаты кнопки


Прежде чем перейти к Этапу 2 (см. подраздел 1.1) рассмотрим предварительные сведения:
о типах плоских конечных элементов, которые используются для построения расчетных схем плоских стержневых систем;
об общей и местной системах осей координат;
о нумерации концевых узлов конечных элементов в местной системе координат и общей нумерации узлов и элементов в расчетной схеме. стержневых систем.
1.3.Типы конечных элементов, используемых в программе SCAD
при расчете плоских стержневых систем
Все применяемые в настоящее время для расчета сооружений и конструкций программные комплексы построены на использовании метода конечных элементов.
В этом методе расчетная схема сооружения или конструкции представляется как совокупность некоторых типовых конечных элементов, соединенных между собой и с основанием в узлах [1, 6¸9].
Для расчета линейно-деформируемых плоских стержневых систем в программе SCAD используются прямолинейные стержневые конечные элементы двух типов [1].
Тип 1 «Стержень плоской фермы» (Рис.1.1). В пределах элемента этого типа отсутствует любая нагрузка (нагрузка на ферму приводится к ее узлам). Поэтому из условия равновесия элемента усилия, действующие по его концам, равны друг другу:.
На рис. 1.2 приведена расчетная схема плоской фермы, состоящая из 25 таких конечных элементов, соединенных между собой в 14 узлах. Ферма соединена с жестким основанием тремя жесткими связями (двумя в узле 1 и одной в узле 7).

Рис.1.1
![]() |
![]() |
Тип 2 «Стержень плоской рамы» (Рис.1.3). В отличие от элемента фермы в поперечных сечениях элемента типа 2 и по его концам (1 и 2) возникают не только продольные усилия N, но и изгибающие моменты M и поперечные силы Q. Эти усилия действуют в плоскости XOZ, в которой находится плоская рама (о системах координат см. следующий подраздел).
В рассчитываемой плоской раме в пределах элемента типа 2 могут действовать любые сосредоточенные и распределенные нагрузки, находящиеся в той же плоскости.
На рис. 1.3 элемент типа 2 показан в общем случае, когда он в расчетной схеме присоединяется к жесткому узлу тремя жесткими связями, в которых и возникают указанные усилия.
Возможно присоединение этого элемента к узлам и меньшим числом связей, обеспечивающим его присоединение к стержневой системе. Тогда и число ненулевых усилий по его концам будет соответствующим. Например, если в узле 1 имеется шарнирное соединение с узлом совокупности элементов, то усилие M1 будет нулевым (в шарнире изгибающий момент равен нулю).

|
|
|
Если шарнирное соединение будет в обоих узлах, то усилия M1 и M2 будут нулевыми. Такой элемент типа 2 при отсутствии на нем поперечной к его оси нагрузки фактически будет работать, как элемент типа 1 и в этом случае может быть им заменен.
1.4. Общая и местная системы осей координат
для конечных элементов
Вся стержневая система относится к общей системе осей координат. Она используется при назначении нагрузки на расчетную схему и в этой системе определяются перемещения узлов расчетной схемы.
В SCAD используется правая система осей координат XYZ (рис.1.4). Плоская стержневая система находится в плоскости XOZ.
![]() |
В МКЭ каждый элемент относится не только к общей системе координат, но и к своей собственной (местной) системе координат [1,6¸9].
В местной системе координат выдаются результаты расчета по определению усилий M, Q, N в узлах элементов и в его сечениях.
В программе SCAD начало местной системы координат элемента совпадает с одним из его узлов. Такому узлу в местной системе координат назначается номер 1.
Ось X1 местной системы
координат стержневого элемента совпадает с его осью и имеет положительное направление от узла 1 к узлу 2 элемента (см. рис.1.1 и рис. 1.3).
Местная система координат (так же как и общая система для всей стержневой системы) является правой. Это определяет направление осей Y1 и Z1 по отношению к оси X1.
Для горизонтального стержневого элемента принято направлять ось X1 вправо (см. рис.1.1,а и рис.1.3,а), т.е. левый узел элемента (начало местной системы координат) имеет номер 1, а правый - номер 2.
Для вертикального стержневого элемента принято направлять ось X1 вверх (рис.1.1,б и рис.1.3,б). В этом случае в местной системе координат нижний узел отмечается номером 1, а верхний - номером 2.
Обратим внимание на то, что для вертикального элемента, отнесенного к правой общей системе осей координат, при направлении оси X1 (параллельно оси Z на рис.1.4), ось Y1 будет направлена параллельно оси Y на рис.1.4, но в обратном направлении, а ось Z1 будет параллельна оси X на рис.1.4 и направлена в ту же сторону (см. рис.1.1,б и рис.1.3,б), Разъяснение этого вопроса для пользователя программы SCAD приведено в подразделе 4.2.1 раздела 4 «Библиотека конечных элементов» справки к программе SCAD.
В программе SCAD информация о том, где находится начало общей системы координат и как направлены ее оси, выясняется нажатием кнопки


В программе SCAD в разделе Назначения предусмотрена возможность смены направления оси X1 местной системы координат. Это делается следующим образом.
1. На инструментальной панели этого раздела нажимается кнопка «Перевернуть местную ось стержня».

2. На построенной расчетной схеме с помощью курсора и левой клавиши мыши отмечается элемент (его ось на экране становится красной), в котором изменяется направление оси, и нажимается кнопка ОК на инструментальной панели раздела. После этого цвет элемента восстанавливается, а ось X1 оказывается повернутой в обратном направлении по сравнению с первоначальным направлением. При этом изменят направления и оси Y1 и Z1.
На рис. 1.5 показано изменение направления осей местной системы координат для элемента типа 2 (см. рис.1.3) при изменении на них направления оси X1 на обратное по сравнению с принятым на рис. 1.3.
Обратим внимание на то, что вместе с изменением местной системы координат изменяются и положительные направления усилий M и Q в узлах элементов.
|
![]() |
||||||
![]() |
|||||||
![]() |
|||||||
|



|

|
|
![]() |
|||||||||||
![]() |
|||||||||||
|
|||||||||||
![]() |
|||||||||||
![]() |
|||||||||||
|
|||||||||||
На рис.1.6,а показано направление осей местной системы координат при различном положении элемента типа 2 в расчетной схеме МКЭ. При этом предполагается, что узел с номером 1 в местной системе координат остается на месте, а конец элемента с номером 2 вместе с осью X1 местной системы координат поворачивается в плоскости XOZ на любой угол по отношению к положительному направлению оси X.
3.1.Задание узловой нагрузки
Прежде всего, отметим, что узловая нагрузка задается в общей системе осей координат.
Для плоской стержневой системы, расчетная схема которой находится в плоскости XOZ, узловая нагрузка представляется сосредоточенными силами в направлении осей X и Z и моментом, действующим вокруг оси Y (Рис.1.10, а).
На рис.1.10,а показаны положительные направления этих узловых усилий.
3.2. Задание нагрузки на элемент
Нагрузка на сам элемент может задаваться как в общей (рис.1.10, б), так и в местной (рис.1.10, в) системах осей координат. При этом надо быть внимательным, так как одна и та же нагрузка будет относиться к разным осям координат.

В качестве примера на рис.1.10,б, в изображен один и тот же вертикальный элемент.
Но на рис.1.10,б нагрузка отнесена к общей системе координат. Поэтому горизонтальная составляющая Px
соотносятся с осью X общей системы координат, а вертикальная Pz – с осью Z. Момент действует относительно оси Y. Все указанные составляющие положительны.
На рис.1.10,в нагрузка отнесена к осям местной системы координат: горизонтальная составляющая Pz1
является проекцией на ось Z1; вертикальная - на ось X1; момент задается действующим вокруг оси Y1.
Как видим, чтобы момент был положительным, в местной системе координат он должен иметь противоположное направление по сравнению с его заданием в общей системе координат (см. рис.1.10,б).
Аналогичное правило знаков используется и при распределенной вдоль стержня нагрузке (равномерно распределенная на элементе 3 нагрузка (рис.1.11) положительна).
При задании сосредоточенной нагрузки на элемент указывается не только ее значение и знак, но и расстояние а1 от узла 1 до точки приложения сосредоточенной нагрузки.
В локальном окне задания нагрузки на стержневой элемент предусмотрено задание линейно изменяющейся распределенной нагрузки на любом участке стержня.
3.2.1.Учет вида нагрузки при дроблении плоской стержневой системы
на элементы типа 2
В результате расчета стержневой системы в таблице усилий по умолчанию выдаются усилия (в местной системе координат) в трех сечениях каждого элемента: в начале (сечение 1), в середине (сечение 2) и в конце (сечение 3).
Если сосредоточенная нагрузка была приложена именно в среднем сечении элемента, то этой информации, выданной в таблице, будет достаточно для построения эпюр усилий на элементе.
Если же сосредоточенная нагрузка приложена не в середине элемента, то все равно усилия будут выданы только для среднего сечения. В месте приложения сосредоточенной нагрузки, если там не был назначен узел, усилия не будут внесены в таблицу.
Аналогичная ситуация получается при задании на элементе равномерно распределенной нагрузки. Если она действует на всей длине элемента, то выданных по умолчанию ординат изгибающих моментов в начале, в середине и в конце элемента будет достаточно для достаточно точного изображения эпюры моментов на элементе. Если же равномерно распределенная нагрузка приложена только на какой-то части стержневого элемента типа 2, то указанных трех ординат будет недостаточно.
В программе SCAD предусмотрена возможность получения усилий в любых сечениях элемента. Для этого можно воспользоваться различными способами.

В окне Расчетная схема выбрать раздел Назначения
и в меню выбрать кнопку





Если положение нагрузки таково, что деление на равные участки не дает желаемого результата, то целесообразно разделить элемент на более мелкие равные или неравные элементы, выбрав в разделе Узлы и элементы подраздел



При нажатии последней кнопки откроется одноименное окно. Предположим, что в какой-то стержневой системе имелся не загруженный элемент типа 2 (на рис.1.11,а он имеет номер 1 и узлы 1 и 2).

Эпюра M на нем будет прямолинейной и для ее построения достаточно иметь две ординаты по концам элемента. Поэтому на подобных элементах стержневой системы можно с помощью только что рассмотренного первого способа назначить только два сечения по концам элемента (в узлах 1 и 2 местной системы координат).

Допустим, что в результате пересмотра нагрузки на стержневую систему рассматриваемый элемент оказывается загруженным поперечной сосредоточенной силой, приложенной на расстоянии 1 м от начала элемента (рис.1.11,б). Кроме того, к нему приложена равномерно распределенная нагрузка, расстояния до начала и конца которой от узла 1 также заданы (см. рис.1.11, б).
Для того, чтобы в результирующей таблице усилий получить усилия в месте приложения сосредоточенной силы и в сечениях в начале и конце участка с равномерно распределенной нагрузкой, сначала в окне «Разбивка стержня» выбираем функцию «На заданном расстоянии».
Введем значение расстояния сосредоточенной силы от узла 1 (1 м). Нажимаем в окне кнопку ОК и с помощью курсора и левой клавиши мыши выделяем стержень, на котором вводим дополнительный узел. После нажатия кнопки ОК на инструментальной панели (см. ее приведенное выше изображение) на стержне появляется изображение узла и его номер 3 (для этого на панели фильтры отображения должны быть нажаты кнопки


должна быть нажата кнопка

Аналогично введем узел 4 на расстоянии 2 м от узла 3 (появится узел 4 и элементов станет три) и узел 5 на расстоянии 2 м от узла 4 (появится узел 5 и элементов станет 4, см. рис. 1.10,в).
Обратим внимание на то, что во вновь полученных элементах направление осей местной системы координат и номера узлов 1 и 2 останутся без изменения (см. рис.1.3, а).
5. ОпределениЕ перемещений
В СТАТИЧЕСКИ ОПРЕДЕЛИМОЙ РАМЕ
5.1. Введение
Как уже отмечалось в предисловии к этому учебному пособию, программа SCAD построена на основе метода конечных элементов в форме метода перемещений. Идея этого метода, его основные формулы и алгоритм расчета стержневых систем этим методом будут рассмотрены во второй части учебного пособия «Расчет статически неопределимых систем».
При решении задач первой части «Расчет статически определимых стержневых систем» с помощью программы SCAD учащийся знакомится только с процедурой расчета по этой программе, этапы которой приведены в подразделе 1.2.
До сих пор процедура расчета по программе SCAD применялась для решения задач по определению только усилий в статически определимых стержневых системах. В этом случае жесткость стержневых элементов на изгиб EI=EIY (для плоских элементов типа 2) и продольная жесткость EF для элементов типа 1 и 2 в программе SCAD могли быть заданы в виде произвольных значений, в том числе и равными единице (см. подраздел 1.8).
Если одновременно с задачей определения усилий в статически определимой системе поставить задачу определения реальных перемещений сечений ее стержней, то в этом случае жесткость стержней должна приниматься реальной, т. е. должен быть взят реальный модуль упругости материала стержней E и реальные значения моментов инерции IY и площадей F стержней. Возможно также в этом случае задание относительных жесткостей стержней на изгиб, как это сделано в заданиях по строительной механике в сборнике задач [2]. Этот прием использован в приведенном ниже примере.
В задачах, поставленных в сборнике заданий [2] предполагается определение перемещений в рамах только с учетом изгибных деформаций стержней (без учета влияния на перемещения продольных деформаций стержней). Программа SCAD позволяет решать задачу, как с учетом продольных деформаций стержней, так и исключить их влияние путем специальной процедуры «Объединение перемещений». Это будет продемонстрировано в приведенном ниже примере.
При постановке задачи по определению перемещений в статически определимых системах необходимо обратить внимание на то, что в МКЭ, а значит и в программе SCAD, перемещения определяются только в узлах элементов. В шарнирных узлах фермы, состоящей из элементов типа 1, определяются компоненты линейных перемещений X и Z в общей системе координат. Для балок и рам, состоящих из элементов типа 2, в жестких узлах кроме указанных линейных составляющих перемещений определяются еще углы поворота UY жестких узлов относительно оси Y.
Чтобы получить численные данные о перемещениях сечений в промежуточных сечениях стержня (в балке или в раме) на нем надо наметить несколько узлов, т.е.
разбить стержень на большее число элементов, чем это требовалось при решении задачи по построению эпюр усилий. Иными словами, для получения перемещений в каком-то сечении стержня в этом сечении надо назначить узел. Так будет сделано в рассмотренной ниже задаче.
5.2. Постановка задачи
Рассмотрим статически определимую раму, изображенную на рис. 3.1. Она была рассмотрена в учебном пособии [3], где демонстрировалось решение по определению сразу трех перемещений в этой раме с помощью формулы Максвелла-Мора в матричном виде. Жесткости стержней на изгиб выражены через некоторую эталонную жесткость EI. Жесткость стержней на продольные деформации не рассматривалась, т.е. влияние продольных деформаций на искомые перемещения не учитывалось.


Искомые перемещения были представлены в виде вектора
![]() |
(5.1) |



Решение задачи по определению указанных перемещений выполнено для двух загружений рамы: загружение 1 в виде равномерно распределенной нагрузки интенсивностью q (кН/м); загружение 2 в виде горизонтальной сосредоточенной силы P= 8q (кН).
Результат решения для двух загружений представлен в [3] в виде матрицы
![]() |
(5.2) |
5.3. Инструкция по выполнению задания с помощью программы SCAD
для варианта 1 разбиения рамы на конечные элементы
Поскольку процедура расчета рамы была рассмотрена в предыдущем примере, в инструкции в основном обратим внимание только на те операции, которые еще не встречались при использовании программы SCAD.
Этап 1. Создание проекта для рамы, разбитой на минимальное
число элементов типа 2 (Вариант 1)
Процедура запуска программы SCAD и процедура выхода в окно Новый проект
остаются таким же, как и во всех предыдущих примерах.

1.2.1. Ввод наименования проекта
Вводим номер работы: работа 6.
1.2.2. Ввод названий: организации, выполняющей расчет, и объекта
Вводим оответственно: СПб ГПУ; рама 2
1.2.3. Установка единиц измерения
В соответствии с выбранной системой (СИ или технической, например, МТС) назначаются единицы измерения основных величин.
1.2.4. Выбор типа схемы
В окне «Тип схемы» при расчете плоской рамы выбирается: 2 - Плоская рама.
1.2.5. Сохранение нового проекта
Процедура сохранения проекта остается такой же, как она была продемонстрирована в предыдущих примерах.
1.3. Задание имени файла
При расчете рамы 2 файлу присваиваем имя : 0102- р2, где 0102 – цифровой шифр, выданный студенту на все время изучения дисциплины «Строительная механика стержневых систем (статика)» для выбора расчетных схем стержневых систем из [2]; р – первая буква наименования рассчитываемой системы; 2 – порядковый номер рамы в программе SCAD у конкретного расчетчика;

Команда «Сохранить» открывает окно со схемой, которая называется Дерево проекта.
1.4. Открытие окна «Расчетная схема»
Процедура выполнения этого пункта была рассмотрена в инструкции раздела 1 и в предыдущих примерах.
Этап 2. Создание расчетной схемы МКЭ
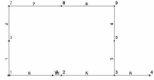
2.1.1. Первый способ построения расчетной схемы рамы
Входим в раздел Схема. Нажимаем первую кнопку панели – «Генерация прототипа рамы». Появится окно Выбор конфигурации рамы (см. аналогичный пункт инструкции в предыдущем примере для рамы 1).
В соответствии с заданной на рис.5.1 расчетной схемой рамы для создания расчетной схемы МКЭ используем конфигурацию рамы, отмеченной точкой в круглом светлом окошке. Нажимаем кнопку ОК. На экране появится окно Задание параметров регулярной рамы.

Этим окном можно воспользоваться для построения расчетной схемы заданной рамы для МКЭ.
Сначала построим схему вспомогательной рамы с тремя указанными в окне пролетами и этажами.
В поле окна «Связи» уберем галочку из окошка «Автоматическая установка связей» и сразу нажмем кнопку ОК (не назначая типа КЭ и жесткостей колонн и ригелей).
В рабочем окне раздела Схема появится расчетная схема вспомогательной рамы (рис.5.2).


Используя эту вспомогательную схему, мы можем построить расчетную схему заданной рамы с минимальным числом элементов (рис.5.3) .
Все стержни кроме правой стойки представим как один элемент типа 2. Правую стойку разобъем на два элемента с узлом в точке C. Это необходимо сделать в связи с поставленной задачей определения изменения расстояния между точками B и C.
|
|


Обратим внимание на то, что во вспомогательной раме начало общей системы координат было в узле 1 (это можно проверить с помощью панели Фильтры отображения). Там начало координат и осталось после удаления ненужных элементов и узлов. Можно перенести начало координат в любую другую точку на плоскости в том числе и в новый узел 1. Для этого надо воспользоваться в разделе Узлы и элементы на инструментальной панели «Узлы» кнопкой



При построении расчетной схемы рамы мы еще не назначали типа стержней и жесткости стержней. Для назначения этих параметров надо выйти в раздел Назначения.
Процедура назначения типа сразу всем элементам стержневой системы уже была рассмотрена нп примере фермы. Поэтому этот вопрос не рассматриваем.
Процедуру назначения жесткости элементам типа 2 рассмотрим в постановке, когда приближенно учитывается продольная жесткость (см.
примечание в пункте 2.3.2 подраздела 1.6). В этом случае задается относительная жесткость стержней.
В рассматриваемой раме будет пять относительных жесткостей на изгиб и соответствующих им 5 относительных продольных жесткостей. Они получаются следующего вида:
1) Стержни 1 и 2 левой стойки, соединенные шарниром:
ki,изг=1;

2) Правая стойка: ki,изг = 1;

3) Верхние горизонтальные стержни, соединенные шарниром:
ki,изг = 1.5;

4) Нижние горизонтальные стержни, соединенные шарниром: ki,изг =3;

5) Нижний стержень–консоль с опорой: ki,изг
=3;

Величиной, к которой относятся жесткости, является некоторая эталонная жесткость EI.
Процедура задания жесткостей уже рассматривалась. Поэтому описание ее опускаем.
Далее назначаем два указанных выше варианта загружения рамы, выполняем линейный расчет и переходим к графическому анализу результатов расчета.
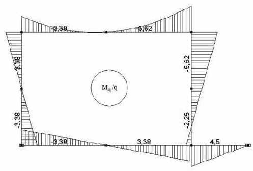
Хотя программа SCAD выдает сразу все усилия в намеченных сечениях, мы, как и в учебном пособии [3], приведем только эпюры Mq
и Mp соответственно для загружений 1 и 2. Они получатся на экране в виде, показанном на рис.5.5 и рис.5.6, и совпадают с соответствующими эпюрами, полученными в учебном пособии [3].
|

|

Выполним теперь графический анализ перемещений сечений рамы. С этой целью в разделах рабочего окна по графическому анализу открываем раздел Даформации и для первого загружения на инструментальной панели нажмем кнопку



Для получения значений перемещений узлов необходимо указать какие перемещения нас интересуют, и нажать кнопку

С учетом этого замечания на рис.5.8 и рис.5.9 соответственно показаны величины перемещений узлов рамы в горизонтальном направлении и углы поворота узлов.




Два из трех искомых перемещений в первом загружении (см. постановку задачи в пункте 5.2) получим по рис.5.8 (размерность перемещений из мм переведем в м):
Горизонтальное перемещение узла A
в заданной на рис.5.1 раме (в расчетной схеме на рис.5.8 этот узел обозначен как узел 9) u9 = uA = -1.78×(q/EI).
Взаимное сближение точек B и C (см. рис.5.1)


Взаимный угол поворота сечений стержней, подходящих к шарниру D, с использованием программы SCAD получим с помощью следующего анализа.
Углы поворота в программе SCAD выдаются только для намеченных жестких узлов элементов. Поэтому в результате расчета по программе SCAD по выбранной расчетной схеме в узле 2 (узел D в заданной раме, см. рис.5.1) выдан только угол поворота жесткого узла элемента 6:

Угол поворота сечения элемента 5, подходящего к шарниру D слева в программе SCAD не выдается. Как видно из рис. 5.7, он может быть приближенно принят равным углу поворота жесткого узла 1 элемента 5, если считать, что этот элемент жесткий.
В результате получим:

Аналогично можно получить искомые перемещения и для второго загружения рамы. Картина деформаций рамы и значения перемещений узлов при втором загружении приведены на рис.5.10¸5.12.


В результате при разбиении рамы на минимальное число стержневых элементов, принятое в варианте 1 (см. рис. 5.4) получим следующую матрицу искомых перемещений

Сопоставление с сооветствующими перемещениями, полученными в [3] с помощью формулы Максвелла-Мора ( при учете только изгибных деформаций стержней) показывает, что линейные перемещения определяются достаточно точно при намеченном минимальном числе элементов.
Наличие значительной погрешности наблюдается при определении взаимного угла поворота





элемента 5 и угла поворота жесткого узла 2), поскольку угол поворота сечения, подходящего к шарниру в программе SCAD не вычисляется и определен приближенно.
Для более точного решения поставленной задачи определения угла


Назначим на элементе 5 жесткий узел, разделяющий его на два элемента, на достаточно близком расстоянии от шарнира. Выполним расчет рамы при назначении жесткого узла сначала на расстоянии 0.5 м от шарнира, а затем приблизим его до 0.25 м и, наконец, установим его на расстоянии 0.05 м от шарнира. Критерием возможности такого приближения является возможность выполнения линейного расчета МКЭ.
Расчетную схему рамы с дополнительным разбиением элемента 5 на два элемента по указанной методике назовем вариантом 2.
5.4. Инструкция по выполнению задания с помощью программы SCAD для варианта 2 разбиения рамы на конечные элементы
Этап 2. Создание расчетной схемы МКЭ для варианта 2 разбивки рамы
Для формирования расчетной схемы рамы во втором варианте разбивки ее на конечные элементы используем уже имеющуюся расчетную схему рамы, представленную на рис.5.4.
В разделе Узлы и элементы на инструментальной панели «Элементы» нажмем кнопку


Элемент 5 разобъем на два элемента, используя поле окна «На заданном расстоянии». Для первого уточняющего расчета примем длину элемента, примыкающего к шарниру, равной 0.5 м.
Тогда расстояние от узла 1 до вводимого узла будет равным 2.5 м.
Затем нажимаем в окне кнопку ОК и выделяем на расчетной схеме элемент 5.
Нажимаем на инструментальной панели кнопку ОК. При нажатых соответствующих кнопках на панели Фильтры отображения на схеме появится изображение дополнительного узла и его номер (10), а также номера новых элементов (9 и 10). После этого применяем операцию

Примечания. 1) После разбиения указанным приемом старого элемента 5 на новые на нем исчезает шарнир. Его надо установить заново, как это сделано на рис.3.13 (удалить связь UY по втором узле нового элемента 10).
2) Если бы на элементе 5 была нагрузка, то ее необходимо было бы переустановить. В нашем случае нагрузки на элементе 5 нет.
После этих операций выполняем линейный расчет и проводим анализ результатов.
|

Как было показано в варианте 1 для определения искомых перемещений можно ограничиться только графическим анализом результатов.
На рис.5.14 показана картина деформаций расчетной схемы, а на рис.5.15 и 5.16 приведены значения соответственно горизонтальных перемещений узлов и их углы поворота для варианта 2 разбиения рамы на конечные элементы при загружении 1 равномерно распределенной нагрузкой.
|

|



Аналогично для второго загружения горизонтальной сосредоточенной силой P = 8q получаем рис.5.17¸5.19.
![]() |

|

|

В результате расчета рамы при втором варианте ее разбиения на конечные элементы получим матрицу искомых перемещений (5.2) в виде:

Линейные перемещения не изменились. А угол «раскрытия шарнира» при обоих загружениях стал ближе к аналогичному углу, полученному в учебном пособии [3] с помощью формулы Максвелла-Мора (см. матрицу 5.2).
Дальнейшее приближение узла 10 к узлу 2 на 0.25 м и затем еще на 0.2 м можно сделать воспользовавшись кнопкой

Поскольку расчет рамы при новых положениях узла 10 ничем не отличается от предыдущего расчета, покажем только как изменяется искомый «Угол раскрытия шарнира» при вариантах загружения 1 и 2 при указанных изменениях положения узла 10.
Последняя строка матрицы Dp , будет иметь вид (только числа, как в предыдущей матрице):
при длине элемента 10 равной 0.25 м : (6.39 48.42);
при длине элемента 10 равной 0.05 м: (6.38 48.38).
Как видим, результат по определению линейных перемещений не меняется, а результат по углу поворота практически совпал с результатом, полученным в [3]по формуле Максвелла-Мора.
Для достижения полного соответствия с постановкой задачи в [3], где при определении перемещений продольные деформации стержней не учитывались, воспользуемся возможностью программы SCAD исключать влияние продольных деформаций.
5.5. Использование операции «Объединение перемещений в узлах»
для исключения влияния продольных деформаций стержней
при определении перемещений
Для исключения продольных деформаций стержневых элементов откроем раздел Назначения и на инструментальной панели нажмем кнопку


Отметим направление X, для объединения горизонтальных перемещений на нижних стержнях. Назовем имя новой группы «низ» и нажмем ОК.
На схеме рамы (рассмотрим только вариант 2 с положением узла 10 на расстоянии 0.05 м от узла 2) выделим узлы, лежащие на нижних горизонтальных стержнях и нажмем кнопку ОК на инструментальной панели раздела Назначения.
Точно также объединим горизонтальные перемещения верхних горизонтальных стержней (назовем группу «верх»). Затем отдельно для каждой стойки объединим вертикальные перемещения Z (группы «левая» и «правая»).
Объединение продольных перемещений стержня эквивалентно тому, что стержень становится не деформируемым в продольном направлении. Этим самым влияние продольных деформаций на искомые перемещения исключается. При таком подходе нет необходимости задавать реальные продольные жесткости EF стержней, что упрощает подготовку исходных данных для расчета без учета продольных деформаций стержней.
После этого надо выполнить линейный расчет и провести графический анализ результатов.
Для рассматриваемого варианта 2 картина деформаций рамы при рассматриваемых двух загружениях будет иметь такой же вид, как он был показан на рис.5.6 и 5.9. Поэтому на рис.5.18, 5.19 и рис.5.20, 5.21 приведены только численные результаты горизонтальных перемещений и углов поворота соответственно для загружений 1 и 2 при сделанных объединениях перемещений.
|
|
|

|
|

|
|
![]() |

Матрица искомых перемещений (5.2) будет в этом случае иметь вид:

Как видим, влияние продольных деформаций стержней на искомые перемещения незначительно. Результаты хорошо совпадают с результатами, полученными в [3].
Примечание. Взаимный угол поворота сечений, подходящих к шарниру справа и слева можно получить и при разбиении на минимальное число элементов двумя расчетами: при постановке в расчетной схеме рамы шарнира в узле 2 элемента 5 (получим



СПИСОК ЛИТЕРАТУРЫ
|
1 |
Справочное пособие разработчиков проектно вычислительного комплекса SCAD |
|
2 |
Учебные задания по строительной механике. Л., Изд-во ЛПИ.1981. |
|
3 |
Розин Л.А., Константинов И.А., Смелов В.А. Расчет статически определимых стержневых систем. Л.: Изд-во ЛГУ.1984. |
|
4 |
Колосова Г.С. Механика деформируемого тела. Расчет статически определимых балок и рам. Учебное пособие.СПб., Изд. СПбГТУ. 1996. |
|
5 |
Колосова Г.С., Смелов В.А., Смирнов М.С.Строительная механика.Часть 1. Электронный учебник.Электронная версия-Институт инноватики, СПбГТУ. 2001. |
|
6 |
Розин Л.А., Константинов И.А., Смелов В.А. Расчет статически неопределимых стержневых систем. Л.: Изд-во ЛГУ.1988. |
|
7 |
Колосова.Г.С., Смирнов М.С.Строительная механика. Часть 2.Электронный учебник. Электронная версия-институт инноватики, СПбГТУ, 2002. |
|
8 |
Розин Л.А. Стержневые системы как системы конечных элементов. Л.: Изд-во ЛГУ.1988. |
|
9 |
Смелов В.А. Метод перемещений в строительной механике. Учебное пособие. Л.: Изд-во ЛПИ,1976. |
|
10 |
Смелов В.А. Расчет балок и балочных плит на упругом основании. Учебное пособие. Л.: Изд-во ЛПИ.1973. |
|
11 |
Колосова Г.С. Решение одномерных задач строительной механики численными методами. Учебное пособие. СПб.: Изд-во СПб ГТУ. 1993. |
2. Определение усилий в стержнях фермы
2.1. Постановка задачи и анализ расчетной схемы фермы
Рассмотрим ферму, расчетная схема которой изображена на рис.2.1.
Требуется определить на ПК с помощью программы SCAD. продольные усилия во всех стержнях фермы (в том числе и опорных) от указанных на рис. 2.1 двух вариантов ее загружения.

Прежде чем приступить к расчету по программе SCAD, необходимо проверить является ферма статически определимой или статически неопределимой. С этой целью выполняются две операции:
1) Подсчитывается степень статической неопределимости [2]:
![]() |
(2.1) |


Необходимым, но недостаточным, условием статической определимости фермы является результат

2) Проверяется геометрическая неизменяемость фермы.
В нашем примере получаем:
1)

Структурный анализ фермы показывает, что она является жестким диском, прикрепленным к жесткому основанию тремя стержнями, не пересекающимися в одной точке и не параллельными. Таким образом, ферма геометрически неизменяема.
Эти два результата позволяют сделать вывод, что заданная ферма является статически определимой системой.
2.2. Инструкция по использованию программы SCAD
В инструкции не повторяется описание тех операций, которые были рассмотрены в первом разделе. Поэтому при выполнении Этапа 1 «Запуск программы SCAD и подготовка к созданию расчетной схемы» (см. подраздел 1.1) необходимо руководствоваться инструкцией, приведенной в подразделе 1.2. Продолжим конкретное выполнение этой инструкции с этапа 2.
Этап 2. Создание расчетной схемы фермы для МКЭ
2.1. Графическое представление расчетной схемы фермы в общей системе координат
Расчетную схему заданной фермы можно построить с использованием имеющихся в программе SCAD типовых схем. Для этого после открытия окна для создания расчетной схемы фермы необходимо войти в раздел Схема. С этой целью курсор устанавливается на закладке Схема
и нажимается левая кнопка мыши. Появится инструментальная панель, соответствующая разделу Схема.


Нажимается вторая кнопка панели «Генерация прототипа фермы». Появится окно Конфигурация поясов фермы

В соответствии с заданной на рис.2.1 расчетной схемой фермы выбирается конфигурация «Двускатная ферма» и нажимается кнопка ОК. На экране появится окно с несколькими вариантами решетки двускатных ферм. Выбирается вариант решетки, соответствующий заданной на рис.2.1 ферме, вводятся соответствующие геометрические параметры фермы, и нажимается кнопка ОК. В результате в окне появится созданная расчетная схема фермы для МКЭ.

Обратим внимание на то, что из рассматриваемого окна удалена не нужная пока для дальнейших расчетов фермы панель визуализации, а панели фильтров отображения придана удобная форма, не закрывающая расчетную схему.
Нажатые на этой панели кнопки позволили отобразить узлы, опоры и номера узлов и элементов. Можно отобразить также общую систему координат и местные системы координат всех элементов.
Однако одновременно нажимать много кнопок на панели не рекомендуется, так как некоторые информации будут накладываться друг на друга.
2.2.Назначение типа элементов
В окне Создание нового проекта был выбран тип 1 схемы (см. пункт 1.2 в инструкции, приведенной в подразделе 1.2 раздела 1). В этом случае при нажатии кнопки



Подведем курсор к схеме фермы и нажмем правую клавишу мыши. Появится окно Выбор узлов и элементов

Нажимаем кнопку «Инвертировать выбор элементов». На цветном дисплее все линии, изображающие стержни фермы станут красными (на черном экране красные стержни станут невидимыми) и подтверждаем операцию выделения нажатием в этом же окне кнопки ОК. При этом само окно исчезнет.
Теперь нажимаем на инструментальной панели раздела Назначения
кнопку

Заключительной операцией выбора типа элемента является нажатие на инструментальной панели раздела Назначения кнопки ОК с зеленой галочкой



2.3. Назначение жесткости элементов
В задании к расчету поставлена задача определения только усилий в стержнях фермы. В результате анализа было установлено, что ферма статически определима. Поэтому в соответствии с указанием, данном в подразделе 2.3.1 раздела 1, требуемые жесткости стержней фермы в ПВК SCAD могут быть заданы в виде произвольных значений, например равными единице.
Для назначения жесткостей стержневых конечных элементов типа 1 в инструментальной панели раздела Назначения
нажимаем кнопку


Откроется первая страница «Жесткость стержней» трехстраничного диалогового окна Жесткость стержневых элементов.
Поскольку предполагается задание единичной жесткости, выбираем в первом диалоговом окне способ задания «Численное описание» (подведем курсор к круглому окошечку и щелчком левой кнопки мыши поставим в окне точку).
Затем нажатием кнопки «Численное описание» в верхнем меню перейдем на вторую страницу диалогового окна Жесткость стержневых элементов.
На второй странице с помощью курсора и левой клавиши мыши отмечаем тип элемента (тип 1) и вводим единичное значение продольной жесткости. На этой же странице нажатием кнопки ОК подтверждается назначение жесткости.
Окончательное подтверждение, что эта жесткость назначена всем выделенным красным цветом стержням фермы, является нажатие на инструментальной панели раздела Назначения кнопки ОК с зеленой галочкой

2.4. Назначение опорных связей
Этот вопрос был рассмотрен в пункте 2.4 подраздела
1.7, поэтому здесь на нем не останавливаемся.
2.5. Назначение шарниров в узлах элементов
Поскольку при формировании расчетной схемы фермы для МКЭ использовались конечные элементы типа 1 (см. рис.1.1), то все узлы в расчетной схеме МКЭ будут шарнирными. Поэтому использовать процедуру ввода шарниров в узлы, описанную в пункте 2.5. подраздела 1.7, при расчете фермы не требуется.
2.6. Сохранение созданной расчетной схемы и ее печать
Способы печати созданной на экране расчетной схемы рассмотрены в пункте 2.6 подраздела 1.7. В данном примере использован второй способ. Сформированная расчетная схема фермы приведена на рис.2.2 после создания загружения 1.
Этап 3. Загружение расчетной схемы фермы
3.1. Создание загружений узлов фермы
Управление функциями задания нагрузок выполняется в разделе Загружения инструментальной панели.

В этом диалоговом окне продемонстрирован вариант задания в узле направленной вниз вертикальной нагрузки, равной 1 кН. Нагрузка имеет положительный знак, т.к. она имеет направление обратное по отношению к положительному направлению оси Z.
Подтверждением выбранной нагрузки является нажатие кнопки ОК в этом окне. При этом окно исчезает и появится расчетная схема фермы.
Для приложения выбранной сосредоточенной силы к узлам расчетной схемы фермы, на которые она действует в соответствии с заданием (см. рис. 2.1), последовательно подводим курсор каждому узлу и нажимаем левую клавишу мыши. При этом квадратики, отмечающие выделенные узлы, станут красного цвета.
Окончанием процедуры загружения выделенных узлов будет нажатие кнопки ОК с зеленой галочкой

Так как в соответствии с заданием на расчетную схему фермы действуют только узловые нагрузки (см. рис.2.1), то для их ввода с помощью курсора и левой клавиши мыши нажимаем кнопку «Узловые нагрузки» инструментальной панели раздела Загружения. В результате этого откроется диалоговое окно «Ввод узловых нагрузок».

В этом диалоговом окне продемонстрирован вариант задания в узле направленной вниз вертикальной нагрузки, равной 1 кН. Нагрузка имеет положительный знак, т.к. она имеет направление обратное по отношению к положительному направлению оси Z. Подтверждением выбранной нагрузки является нажатие кнопки ОК в этом окне. При этом окно исчезает и появится расчетная схема фермы.
Для приложения выбранной сосредоточенной силы к узлам расчетной схемы фермы, на которые она действует в соответствии с заданием (см. рис. 2.1), последовательно подводим курсор каждому узлу и нажимаем левую клавишу мыши. При этом квадратики, отмечающие выделенные узлы, станут красного цвета. Окончанием процедуры загружения выделенных узлов будет нажатие кнопки ОК с зеленой галочкой

В результате загружаемые узлы потеряют красный цвет их выделения и, если будет нажата кнопка

Аналогично загружаются другие узлы фермы (каждый - своей нагрузкой), если силы на узлы действуют одновременно. Так как вариантов загружений может быть несколько, то их нумеруют. Номера присваиваются при сохранении конкретного загружения.
3.2. Сохранение созданного загружения
Для сохранения какого-то созданного загружения необходимо нажать кнопку


Появляется окно с сообщением о присвоении загружению
номера. При согласии с присвоенным номером в окне сообщения нажимается кнопка ОК. При несогласии в диалоговом окне «Сохранить загружение» присваивается номер, задаваемым расчетчиком.
Аналогично производится второе загружение фермы и запоминается под номером 2.
3.3.Сохранение расчетной схемы с созданным загружением
и ее печать
Для сохранения вида расчетной схемы с загружением и ее печати можно использовать способы, описанные в пункте 2.6
подраздела 1.7.
На рис.2.2 приведена схема фермы с загружением 1, вставленная в этот текст с помощью второго способа.
Этап 4. Выполнение линейного расчета и анализ результатов
4.1. Линейный расчет
Теперь, когда все необходимые параметры фермы и нагрузки заданны, нужно войти в раздел Управление и нажать кнопку

|

В дереве проекта, в группе функций Расчет выбираем Линейный.
Нажатие кнопки

Если режим расчета не доступен на дереве проекта будет значек

и проверить ввод исходных данных.
В этом диалоговом окне можно менять некоторые параметры расчёта. В нашей задаче нет необходимости что-либо менять. Нажимаем кнопку “Выполнить расчёт”.

Возникает информативное окно о прохождении этапов расчета в виде протокола. По окончании расчета будет сообщение «Задание выполнено». После этого надо нажать кнопку «Выход», что приведет к появлению окна с деревом проекта, в котором становятся доступным раздел Результаты.
4.2. Представление полученных результатов в виде эпюр усилий в стержнях фермы. Их сохранение и печать
Установим курсор в позицию «Графический анализ» раздела Результаты
дерева проекта и нажмем левую кнопку мыши. Появится окно для вывода различных результатов.

В появившемся окне для получения эпюры N продольных сил в стержнях фермы войдем в раздел «Эпюры усилий». В трех светлых рабочих окнах надо выбрать (слева направо): обозначение усилия, для которого предполагается построить эпюру (для фермы это будет N); номер загружения (ему будет соответствовать название, если оно было задано); масштабный коэффициент для ординат эпюры.
Для выбранного загружения нажмем кнопку

Если на панели Фильтры отображения нажать кнопку

Аналогично можно получить и эпюру N от второго загружения фермы. Для этого необходимо во втором окне стрелкой выбрать вариант второго загружения (в окне будет L2 (левая половина верхнего пояса).
Загружение 1

Загружение 2

Рис.2.3
Способы печати полученных эпюр усилий аналогичны описанным в пункте 2.6. подраздела 1.7. На рис.2.3 приведены эпюры N при загружениях 1 и 2, вставленные в данный текст с помощью рассмотренного в разделе 2.6 второго способа.
4.3. Таблица усилий в стержнях фермы
В разделе Результаты дерева проекта есть подраздел Печать таблиц. Если войти в этот подраздел, то откроется окно «Оформление результатов расчета». Для печати таблицы продольных усилий в стержнях фермы отметим точкой соответствующее окно «Усилия и напряжения» и нажмем кнопку «Параметры вывода». Откроется дополнительное окно «Состав выходных таблиц».
Последовательно заходим в разделы этого окна и выполняем ряд операций:
единицы измерения сил: в кН. При печати результатов рекомендуется убедиться в том, что и полученные усилия в стержнях получатся в этих же единицах. При необходимости можно изменить размерность. Завершается работа с окном «Состав выходных таблиц» нажатием кнопки ОК.
После этого последовательно нажимаем кнопки «Формирование документа» и «Просмотр результатов».
Появляется окно с таблицей продольных усилий N. Эта таблица может быть распечатана сразу, или скопирована в отчет (в документ с расширением doc). Возможно получение этой таблицы в любое другое время, так как результаты расчета в программе SCAD сохраняются в папке рабочих файлов SWORK (в нашем примере под номером ф1-0102.P06.
Эта таблица продемонстрирована в данном пособии в виде табл.1.
Примечания.
1.Если исполнитель работы привел результат определения усилий в виде эпюр N (см. рис 2.3), то таблицу с усилиями в отчете можно не приводить.
2. Расчет фермы был выполнен при Р1 = 1 и P2 = 1 (см. рис.2.1). Так как рассматриваемая ферма предполагалась линейно–деформируемой (по допущениям, принятым при изучении строительной механики стержневых систем [3]), то при конкретно заданных значениях P1 и P2 все полученные в результате расчетов усилия должны быть умножены: в первом загружении на P1; во втором загружении на P2.
Таблица 1
Единицы измеpения усилий: кН
------------------------------------------------------------------------
| У С И Л И Я /НАПРЯЖЕНИЯ/ В ЭЛЕМЕНТАХ |
------------------------------------------------------------------------
| 001_ 1-1 1-2 1-3 2-1 2-2 2-3 3-1 3-2 3-3 |
| 1 1 1 2 2 2 3 3 3 |
| 2 2 2 3 3 3 4 4 4 |
------------------------------------------------------------------------
| 1 - загружение1 |
| N 2.001 2.001 2.001 2.669 2.669 2.669 2.574 2.574 2.574 |
| 2 - загружение 2 |
| N 1.4 1.4 1.4 1.668 1.668 1.668 1.287 1.287 1.287 |
------------------------------------------------------------------------
| 001_ 4-1 4-2 4-3 5-1 5-2 5-3 6-1 6-2 6-3 |
| 4 4 4 5 5 5 6 6 6 |
| 5 5 5 6 6 6 7 7 7 |
------------------------------------------------------------------------
| 1 - загружение1 |
| N 2.574 2.574 2.574 2.669 2.669 2.669 2.001 2.001 2.001 |
| 2 - загружение 2 |
| N 1.287 1.287 1.287 1. 1. 1. .6003 .6003 .6003 |
------------------------------------------------------------------------
| 001_ 7-1 7-2 7-3 8-1 8-2 8-3 9-1 9-2 9-3 |
| 8 8 8 9 9 9 10 10 10 |
| 9 9 9 10 10 10 11 11 11 |
------------------------------------------------------------------------
| 1 - загружение1 |
| N -2.062 -2.062 -2.062 -2.75 -2.75 -2.75 |
| 2 - загружение 2 |
| N -1.443 -1.443 -1.443 -1.719 -1.719 -1.719 |
------------------------------------------------------------------------
| 001_ 10-1 10-2 10-3 11-1 11-2 11-3 12-1 12-2 12-3 |
| 11 11 11 12 12 12 13 13 13 |
| 12 12 12 13 13 13 14 14 14 |
------------------------------------------------------------------------
| 1 - загружение1 |
| N -2.75 -2.75 -2.75 -2.062 -2.062 -2.062 |
| 2 - загружение 2 |
| N -1.031 -1.031 -1.031 -.6187 -.6187 -.6187 |
------------------------------------------------------------------------
| 001_ 13-1 13-2 13-3 14-1 14-2 14-3 15-1 15-2 15-3 |
| 1 1 1 1 1 1 2 2 2 |
| 8 8 8 9 9 9 9 9 9 |
------------------------------------------------------------------------
| 1 - загружение1 |
| N -.5 -.5 -.5 -3.202 -3.202 -3.202 1.001 1.001 1.001 |
| 2 - загружение 2 |
| N -.5 -.5 -.5 -2.241 -2.241 -2.241 .4007 .4007 .4007 |
------------------------------------------------------------------------
| 001_ 16-1 16-2 16-3 17-1 17-2 17-3 18-1 18-2 18-3 |
| 2 2 2 3 3 3 3 3 3 |
| 10 10 10 10 10 10 11 11 11 |
------------------------------------------------------------------------
| 1 - загружение1 |
| N -1.203 -1.203 -1.203 -.1654 -.1654 -.1654 .1906 .1906 .1906 |
| 2 - загружение 2 |
------------------------------------------------------------------------
| N -.4817 -.4817 -.4817 -.6659 -.6659 -.6659 .7671 .7671 .7671 |
------------------------------------------------------------------------
| 001_ 19-1 19-2 19-3 20-1 20-2 20-3 21-1 21-2 21-3 |
| 4 4 4 5 5 5 5 5 5 |
| 11 11 11 11 11 11 12 12 12 |
------------------------------------------------------------------------
| 1 - загружение1 |
| N .1906 .1906 .1906 -.1654 -.1654 -.1654 |
| 2 - загружение 2 |
| N -.5765 -.5765 -.5765 .5004 .5004 .5004 |
------------------------------------------------------------------------
| 001_ 22-1 22-2 22-3 23-1 23-2 23-3 24-1 24-2 24-3 |
| 6 6 6 6 6 6 7 7 7 |
| 12 12 12 13 13 13 13 13 13 |
------------------------------------------------------------------------
| 1 - загружение1 |
| N -1.203 -1.203 -1.203 1.001 1.001 1.001 -3.202 -3.202 -3.202 |
| 2 - загружение 2 |
| N -.7216 -.7216 -.7216 .6003 .6003 .6003 -.9606 -.9606 -.9606 |
------------------------------------------------------------------------
| 25-1 25-2 25-3 |
| 7 7 7 |
| 14 14 14 |
------------------------------------------------------------------------
| 1 - загружение1 |
| N -.5 -.5 -.5 |
| 2 - загружение 2 |
2.3. Использование уравнений равновесия для проверки усилий
в стержнях фермы, полученных с помощью программы SCAD
Заданная ферма является статически определимой системой, поэтому усилия в ее стержнях (в том числе и опорных) могут быть найдены с помощью только уравнений равновесия.
Использование уравнений равновесия для всей фермы
Условием равновесия всей фермы под действием всех заданных внешних сил и всех опорных реакций является удовлетворение трех уравнений равновесия (запишем их в соответствии с общей системой координат, принятой в программе SCAD):
![]() |
(2.2) |
В результате для загружений 1 и 2 соответственно получим (при нагрузке в кН и при параметре P=1): H1=0; V1=3 кН; V7=3 кН и H1=0; V1=2.25 кН; V7=0.75 кН.
Такие же значения реакций получились при расчете МКЭ с помощью ПВК SCAD. Поэтому рассмотренные уравнения равновесия могут быть использованы для контроля расчета фермы МКЭ с помощью программы SCAD: при подстановке найденных там значений опорных реакций в эти уравнения равновесия должны получиться тождества 0 = 0.
Использование уравнений равновесия для любого узла фермы
(способ вырезания узлов)
Любой вырезанный из фермы узел i должен находиться в равновесии. Это означает, что, если отнести усилия в стержнях, подходящих к этому узлу, к общей системе координат фермы, то должны удовлетворяться следующие два уравнения равновесия узла:


Указанные два уравнения равновесия позволяют либо определить усилия в двух стержнях, подходящих к узлу и не лежащих на одной прямой, либо, если все усилия в узле уже найдены, проверить равновесие узла.
Определение с помощью уравнений равновесия для узлов
явно нулевых стержней фермы
Как известно [2, 3], есть правила определения явно нулевых стержней в ферме, полученные на основе использования уравнений равновесия одного из узлов, к которому присоединяется рассматриваемый стержень. Если в заданной ферме имеются стержни, усилия в которых являются явно нулевыми, то и при расчете методом конечных элементов по программе SCAD они должны получиться нулевыми.
Приведенные в приложении 1.1. эпюры N показывают три нулевых стержня в первом загружении фермы и четыре нулевых стержня во втором загружении. По известным правилам определения явно нулевых стержней констатируем, что они и должны быть нулевыми.
Примеры проверки равновесия любых узлов фермы,
рассчитанной по программе SCAD
Узел 8 (Рис.2.4). Кроме явно нулевого стержня с номером 7, нулевое усилие в котором определяется из уравнения


Из уравнения

Таким образом, усилие N13, найденное при расчете по программе SCAD, удовлетворяет условиям равновесия узла 8.
Узел 1 (Рис.2.5,а). На него действуют усилия в трех стержнях фермы и усилия в двух опорных стержнях (опорные реакции). Равновесие узла можно проверить аналитическим способом, составив два, указанных выше, уравнения равновесия или графическим способом, построив многоугольник действующих на узел сил (Рис.2.5,б).

При использовании аналитического способа уравнения при подстановке в них соответствующих проекций сил должны тождественно удовлетворяться, а при использовании графического способа построенный многоугольник действующих на узел сил должен быть замкнутым, так как при равновесии сил их равнодействующая должна быть равна нулю. Выполним оба способа проверки.
Аналитический способ
Должны тождественно удовлетворяться два уравнения (силы в кН):
![]() |



Отсюда


Графический способ
Обходя узел против часовой стрелки (начиная с вертикальной составляющей опорной реакции), последовательно будем откладывать встречающиеся векторы сил в удобном для расчета масштабе в том направлении, в котором они действуют на узел. Иными словами: будем геометрически суммировать векторы (Рис.2.5,б). Многоугольник сил получился замкнутым, т.е. равнодействующая всех сил, действующих на узел, равна нулю и узел находится в равновесии.
Использование уравнений равновесия для части фермы,
полученной в результате рассечения ее поперечным сечением
(способ сечений)
Для определения усилий в некоторых стержнях фермы более рациональным является использование не способа вырезания узлов, а способа сечений. Это относится, например, к усилию в стержне 3. Наиболее рациональной является следующая последовательность определения этого усилия с помощью уравнения равновесия (см. рис.2.1 при загружении 1).
1) Рассекаем ферму сечением 1-1 на две части и рассмотрим равновесие любой из них, например, левую (Рис.2.6). Неизвестные усилия в рассеченных стержнях обозначим как растягивающие.
2) Линии действия усилий N9 и N18 пересечем в точке О3.
3) Применим для этой части фермы уравнение равновесия вида



Способ сечений в рассматриваемой ферме можно применить для определения любого из стержней нижнего и верхнего поясов и раскосов и подходящих к ним стоек (см. [2] и [3]).

3. Построение эпюр M И Q в шарнирной балке
3.1. Постановка задачи и анализ расчетной схемы балки
В учебном пособии [3] приведен пример построения указанных эпюр аналитическим способом для шарнирной балки, изображенной на рис. 3.1,а.
Расчет был выполнен для варианта, когда

Выполним построение этих эпюр с помощью ПВК SCAD при l = 6 м и q =10 кН/м.
Перед началом работы на компьютере необходимо выполнить две подготовительных операции с заданной расчетной схемы балки:
1) Проверить является балка статически определимой или статически неопределимой системой. Это связано с тем, что для статически определимых систем при определении в них только усилий упрощается задание жесткостей стержней при использовании программы SCAD (см. подраздел 1.6).

2) Вручную разбить балку на конечные элементы типа 2 (стержневой элемент плоской рамы, см. рис.1.3) с учетом особенностей ее конструкции и вида, действующей на нее нагрузки.
действующей на нее нагрузки.
При этом выбрать начало координат общей системы осей координат и продумать вопрос о методике построения расчетной схемы для МКЭ с помощью программы SCAD (см. подразделы 1.4 ¸1.6 раздела 1 учебного пособия).
|
Первая операция состоит из двух пунктов:
а) Сначала подсчитываем степень статической неопределимости n балки. Для этого используем формулу [3÷5]:
![]() |
(3.1) |
nш1- число уравнений равновесия вида

В рассматриваемой балке nоп
= 5; nш1 = 2. В результате по указанной формуле получаем необходимое условие статической определимости балки: n = 0.
б) Затем исследуем геометрическую неизменяемость рамы. В данном случае для этого достаточно использовать структурный анализ балки.
Действительно (Рис.3.1,б), заданную балку можно рассматривать как систему, состоящую из трех жестких дисков (ABE, ECF и FD). Диск ABE неподвижно прикреплен к основанию тремя опорными связями и, таким образом, геометрически неизменяем. Диск ECF прикреплен двумя связями к неподвижному диску ABE и одной связью с неподвижным основанием, поэтому он также геометрически неизменяем. Аналогично доказывается, что диск FD
геометрически неизменяем, а значит, геометрически неизменяема и вся заданная шарнирная балка.
Таким образом, на основании исследований, выполненных в пунктах а) и б), делаем вывод о том, что заданная балка является статически определимой системой.
Второй подготовительной операцией является подготовка к формированию расчетной схемы МКЭ заданной балки с помощью программы SCAD:
1) Еще раз изображаем заданную расчетную схему балки (Рис.3.1,в);
2) С учетом нагрузки (см. указания в подразделе 1.7), разбиваем стержни на элементы и нумеруем узлы и элементы (см. рис.3.1,в).
3) Нумерацию узлов выполняем с учетом рекомендаций подразделов 1.3, 1.4 и 1.7.
4) Выбираем начало общей системы осей координат (узел 1 на рис.3.1,в);
5) Рядом с номером узла указываем его координату X в общей системе координат X, Y, Z (так как балка представляет собой элементы, лежащие на оси X, координаты Y и Z у всех узлов равны нулю и на рис.3.1, в не указываются).
3.2.Инструкция по выполнению расчета с помощью программы SCAD
Как и при расчете фермы, воспользуемся разбиением расчета, на этапы, приведенные в подразделе 1.1 раздела 1. Частично процедура выполнения этой последовательности была рассмотрена в разделе 1, частично при расчете фермы. Воспользуемся разбиением на этапы и расчета заданной шарнирной балки, рассматривая только те моменты, в которых есть различие с процедурой расчета фермы.
Этап 1. Создание проекта
Действия при запуске программы SCAD и открытии окна Новый проект остаются таким же, как и при расчете фермы. Далее в этом окне выполняем следующие операции.

1.2.1. Ввод наименования проекта
Вводим (см. подраздел 1.1: работа 1
1.2.2. Ввод названий:организации, выполняющей расчет и объекта
Вводим соответственно: 30151 ( № группы); балка 1
1.2.3. Установка единиц измерения
В соответствии с выбранной системой (СИ или технической, например, МТС) назначаются единицы измерения основных величин.
1.2.4. Выбор типа схемы
При расчете плоских балок в программе SCAD используются конечные элементы типа 2, которые там условно отнесены к стержневой системе «Плоская рама». Поэтому в окне «Тип схемы» при расчете плоской балки выбирается: 2.Плоская рама.
1.2.5. Сохранение нового проекта
Для сохранения введенных данных о новом проекте курсор подводится к кнопке ОК и нажимается левая кнопка мыши. При этом на экран будет выведено окно с папкой SDATA, в котором находятся папки с номерами групп. Открываем папку с номером своей группы и задаем имя файла (см. в разделе 1 учебного пособия описание этой процедуры в подразделе 1.3).
1.3. Задание имени файла
Задаем имя файла 0102- б1, в котором: 0102 – цифровой шифр, выданный студенту для выбора заданий из сборника задач [2]; б - первая буква слова «балка»; 1 – порядковый номер балки в программе SCAD у конкретного расчетчика;.
Команда «Сохранить» сохраняет файл в этом же окне и открывает окно со схемой, которая называется Дерево проекта.

Процедура пункта 1.4
этапа 1 остается такой же, как и при расчете фермы.
Этап 2. Создание расчетной схемы балки для МКЭ
2.1. Синтез расчетной схемы
![]() |
Для создания расчетной схемы шарнирной балки из конечных элементов типа 2 (синтез расчетной схемы) можно использовать два способа.
1) Использовать заготовку для построения расчетной схемы плоской рамы. В этом варианте необходимо войти в раздел Схема. С этой целью курсор устанавливается на закладке Схема и нажимается левая кнопка мыши. Появится инструментальная панель соответствующая разделу Схема.

2)Использовать способ построения расчетной схемы шарнирной балки с помощью последовательного введения узлов балки в общей системе координат и затем последовательного соединения этих узлов стержневыми элементами.
Для этого способа надо войти не в раздел Схема, а в раздел Узлы и Элементы.
Рассмотрим более простой первый способ.
1) Входим в раздел Схема. Нажимаем первую кнопку панели – «Генерация прототипа рамы». Появится окно Выбор конфигурации рамы.

В соответствии с заданной на рис.3.1, в схемой балки, для построения соответствующей расчетной схемы МКЭ выбирается конфигурация рамы, отмеченная точкой в круглом светлом окне и нажимается кнопка ОК.
На экране появится окно Задание параметров регулярной рамы.

Этим окном можно воспользоваться для построения расчетной схемы заданной шарнирной балки для МКЭ, которая предварительно была построена на рис.3.1,в.
Действительно, намеченные на расчетной схеме конечные элементы (см. рис.3.1,в) можно рассматривать как пролеты ригелей длиной Lр показанной в окне типовой рамы (в таблицу вводятся длины конечных элементов).

Если в первом окне, где задавалось наименование проекта, был указан тип схемы “Плоская рама”, то в окне Задание параметров регулярной рамы при нажатии кнопки «Назначение типа КЭ» откроется приведенное здесь одноименное окно. Если не нужно изменять тип элемента, нажимаем кнопку ОК и снова выходим в окно Задание параметров регулярной рамы.
Здесь надо убрать галочку «Автоматическое задание связей» и перейти к заданию жесткостей конечных элементов. С этой целью в зоне окна с названием «Жесткости» нажимаем кнопку «Ригели».
Примечание.Нажимать кнопку «Колонны» при построении расчетной схемы балки не нужно, так как стоек в этой стержневой системе нет.
Откроется первая страница окна «Жесткость стержней», которая будет иметь такой же вид, как и при расчете фермы (см. Этап 2, пункт 2.3 инструкции, приведенной при расчете фермы). Также как и для фермы выберем способ задания жесткости КЭ в виде «Численное описание» (поставим точку в соответствующем круглом окне страницы) и выйдем на вторую страницу окна, которая называется «Численное описание».

Здесь точкой отметим тип элемента «Стержень плоской рамы» (Тип 2) и, поскольку поставлена задача определения только усилий в статически определимой балке, зададим единичные жесткости в окнах «Изгибная жесткость» и «Продольная жесткость» (см. подраздел 1.6 в разделе 1).
Подтверждаем выбранную жесткость нажатием кнопки ОК. Снова появится окно Задание параметров регулярной рамы (см. выше). Теперь можно это окно закрыть, нажав в нем кнопку ОК. Появится окно с расчетной схемой балки для МКЭ.

Примечание. Кнопку «Назначение типа КЭ» в окне Задание параметров регулярной рамы также можно не нажимать, так как тип КЭ был уже назначен в окне Новый проект. Однако для контроля можно нажатием этой кнопки открыть окно «Назначение типа элемента». В данном случае оно должно иметь показанный выше вид. Нажатием ОК выходим из этого окна в окно Задание параметров регулярной рамы. Далее выходим в только что приведенное окно с расчетной схемой балки для МКЭ.
В окне с расчетной схемой балки при указанных нажатых кнопках на панели Фильтры отображения на расчетной схеме балки будут отображены: узлы элементов, их номера (верхние числа выше оси балки) номера КЭ (тоже выше оси), номера типа заданной для расчета жесткости КЭ (цифра 1 ниже оси), тип КЭ (цифра 2 ниже оси).
Однако, хотя нажата кнопка

Для назначения опорных связей следует войти в раздел Назначения и нажать кнопку

Аналогично при нажатой на панели Фильтры отображения кнопке

2.5. Назначение шарниров

Назначение шарниров выполняется в разделе Назначения. Необходимо нажать кнопку


Поскольку шарнир в шарнирной балке позволяет подходящим к нему сечениям элементов балки поворачиваться вокруг оси Y, то его постановка в каком-то узле балки означает освобождение в этом узле угловой связи, которая в программе SCAD обозначена UY. Постановка одиночного шарнира в узле может быть выполнена или в элементе слева от узла, или в элементе справа от него. Для пояснения рассмотрим шарниры E и F(см. рис.3.1,а).
В расчетной схеме МКЭ (см. рис.3.1,в) эти одиночные шарниры относятся соответственно к элементам 4 и 6. Элементы при постановке шарниров рассматриваются в местной системе координат. Горизонтальный элемент типа 2 в местной системе координат изображен на рис.1.3. Его левый узел имеет №1. Поэтому для элементов 4 и 6 в демонстрируемом диалоговом окне галочкой отмечено, что связь UY удалена в каждом из этих элементов в узле 1.

После подтверждения выбранного варианта постановки шарниров нажатием в диалоговом окне кнопки ОК это окно исчезнет и снова появится расчетная схема балки в окне раздела Назначения.
На расчетной схеме необходимо подвести курсор к элементу 4 и нажать левую клавишу мыши. Элемент 4 выделится красным цветом. Тоже надо сделать с элементом 6. Затем нажать кнопку ОК с зеленой галочкой на инструментальной панели раздела Назначения. Тогда красное выделение указанных элементов исчезнет, а на расчетной схеме (при нажатой кнопке

Воспользуемся процедурой сохранения полученной расчетной схемы в файле с расширением wmf в рабочей папке SWORK и вставим эту схему в данное учебное пособие. В результате получим рис.3.2.
В пункте 2.6 первого раздела пособия и примера по расчету фермы показаны и другие способы получения расчетной схемы в отчете по работе.
Этап 3. Загружение расчетной схемы балки
3.1. Загружение узлов балки
Процедура остается такой же, как она описана при расчете фермы. В демонстрируемом диалоговом окне показано как задается сосредоточенная нагрузка в виде момента, равного 72 кН•м и действующего на узел 1 вокруг оси Y. Момент считается положительным при его действии по часовой стрелке, если смотреть с положительного конца оси Y (как в нашем случае). После нажатия кнопки ОК появится расчетная схема, в которой надо выделить узел, на который действует момент, и нажать кнопку ОК с зеленой, галочкой на меню панели Загружения. При нажатых на панели Фильтры отображения кнопках



3.2. Процедура загружения элементов балки
В этом случае в меню раздела Загружения
необходимо нажать кнопку «Нагрузки на стержни». Появится окно Задание нагрузки на стержневые элементы.


В этом окне задана нагрузка на элемент 2:
1) выбирается система координат, в которой задается нагрузка (выбираем общую систему координат).
2) Указываем вид нагрузки (в нашем случае «Распределенная»).
3)Указываем направление нагрузки в общей системе координат ( Z).
4) Задаем знак нагрузки (в данном случае он положителен, см. пояснение в подразделе 1.7) и ее значение.
В окне задана нагрузка q1 = 20 кН/м.
После нажатия на кнопку ОК появится расчетная схема балки.
С помощью курсора и левой клавиши мыши выделим элемент 2, к которому следует приложить заданную нагрузку (ось элемента станет красной), и нажимаем кнопку ОК с зеленой галочкой на инструментальной панели раздела Загружения. При нажатых на панели Фильтры отображения кнопках


Аналогично загружаем элементы 5, 6 и 7 равномерно распределенной нагрузкой интенсивностью q2
= 10 кН/м.
Если загружение балки одновременно действующей нагрузкой сформировано, его необходимо сохранить. В нашем примере рассмотрено только суммарное загружение балки всеми нагрузками одновременно и ему при сохранении присвоено наименование «Суммарная» и присвоен номер1.
Вид расчетной схемы с любым загружением можно сохранить в файле с расширением wmf в рабочей папке SWORK и при необходимости вставить в текст отчета в виде аналогичном рис.3.2 или распечатать сразу с экрана.
Внимание! Прежде чем из раздела Управление с помощью кнопки

В программе SCAD в окне Назначения имеется кнопка


На стержневых элементах с линейной эпюрой M для ее построения и анализа достаточно иметь только по две ординаты. Для этого в окошке с названием «Количество сечений» надо ввести цифру 2. Затем нажать ОК и на появившейся снова расчетной схеме отметить элементы, в которых ожидается линейная эпюра M, и нажать кнопку ОК с зеленой галочкой на инструментальной панели раздела Назначения.
Аналогично на элементах с равномерно распределенной нагрузкой рекомендуется иметь усилия не менее чем в 3 сечениях по длине элемента: в сечениях по концам элемента и в среднем сечении [3÷5].
В демонстрируемом здесь окне введена цифра 3 для элементов 2, 5, 6 и 7. Далее последовательно выполняются только что описанные действия для назначения указанных трех сечений на отмеченных элементах.
Этап 4. Выполнение линейного расчета и анализ результатов
Действия расчетчика для выполнения линейного расчета сформированной расчетной схемы остаются такими же, как они описаны в подразделе 4.1 инструкции, приведенной в примере расчета фермы. То же самое относится и к процедуре графического анализа и печати таблицы с результатами расчета.
Графические результаты расчета приведены в в виде: расчетной схемы балки для МКЭ (Рис.3.3,а); расчетной схемы балки для МКЭ при суммарном загружении (Рис.3.3,б); эпюр M и Q (Рис.3.4) при суммарном загружения балки.
Для изображения этих результатов использован второй способ, описанный в пункте 2.6. подраздела 1.6. Они же сохранены в соответствующих файлах с расширением wmf в папке SWORK.
Усилия в назначенных сечениях элементов балки при суммарном загружении балки приведены в табл.2.


Таблица 2
Единицы измеpения усилий: кН
Единицы измеpения моментов: кН*м
------------------------------------------------------------------------
| У С И Л И Я /НАПРЯЖЕНИЯ/ В ЭЛЕМЕНТАХ |
------------------------------------------------------------------------
| 002_ 1-1 1-2 1-3 2-1 2-2 2-3 3-1 3-2 3-3 |
| 1 1 1 2 2 2 3 3 3 |
| 2 2 2 3 3 3 4 4 4 |
------------------------------------------------------------------------
| 1 - сумма |
| M -72. -72. -72. -72. 60.03 12.07 12.07 6.035 |
| Q 73.89 13.95 -45.98 -13.41 -13.41 -13.41 |
------------------------------------------------------------------------
| 002_ 4-1 4-2 4-3 5-1 5-2 5-3 6-1 6-2 6-3 |
| 4 4 4 5 5 5 6 6 6 |
| 5 5 5 6 6 6 7 7 7 |
------------------------------------------------------------------------
| 1 - сумма |
| M -34.2 -68.4 -68.4 -32.4 -4.e-5 65.25 108. |
| Q -13.41 -13.41 -13.41 62.98 56.99 51. 50.97 35.98 21. |
------------------------------------------------------------------------
| 2_ 7-1 7-2 7-3 8-1 8-2 8-3 |
| 7 7 7 8 8 8 |
| 8 8 8 9 9 9 |
------------------------------------------------------------------------
| 1 - сумма |
| M 108. 54.45 -43.2 -43.2 -21.6 |
| Q -15.04 -36.02 -57. 36. 36. 36. |
--------------------------------------------------------------------------------
3.3. Использование этажной схемы балки для проверки усилий, полученных в ее элементах с помощью программы SCAD
В подразделе 3.1 при постановке задачи было отмечено то, что заданная балка была рассчитана аналитическим способом и результаты этого расчета приведены в учебном пособии [3].
Суть аналитического способа проста: все элементы этажной схемы балки (для заданной балки она приведена на рис.3.1,б) последовательно (начиная с верхнего элемента этажной схемы) рассчитываются с помощью уравнений равновесия от действующих на них нагрузок.
В рассматриваемой балке сначала рассчитывается элемент FD как простая однопролетная балка на двух опорах (см. рис.40,в [3]). При этом с помощью уравнения равновесия определяется вертикальная реакция VF опоры F.
Затем с помощью уравнений равновесия рассчитывается элемент EDF этажной схемы от заданной на него внешней нагрузки и давления от опоры F (равного реакции VF верхнего элемента этажной схемы, но имеющего обратное по отношению к реакции направление).
При этом будет определена вертикальная опорная реакция VE этого элемента, а значит и его вертикальное давление на ниже лежащий элемент.
В последнюю очередь с помощью уравнений равновесия рассчитывается нижний элемент этажной схемы – элемент FBE.
Таким способом были построены эпюры M и Q в заданной балке от суммарного загружения [3].
Результаты расчета выполненного с помощью уравнений равновесия совпадают с соответствующими результатами расчета выполненного МКЭ с помощью программы SCAD.
Для проверки соответствия друг другу эпюр M и Q использовалась и их взаимосвязь в уравнении

4. Построение эпюр усилий в раме
4.1. Постановка задачи и анализ расчетной схемы рамы
Для плоской рамы, изображенной на рис.4.1, требуется построить эпюры усилий М, Q, N от указанной на рисунке постоянной нагрузки. Расчет выполним на ПК с помощью программы SCAD [I], в которой реализуется метод конечных элементов строительной механики.
Перед началом работы на компьютере необходимо выполнить две подготовительных операции:
1) Проверить является заданная рама статически определимой или статически неопределимой системой. Это связано с тем, что для статически определимых систем при нахождении в них только усилий
упрощается задание жесткостей стержней при использовании программы SCAD (см. подраздел 1.6 первого раздела учебного пособия).


2) Вручную разбить раму на конечные элементы типа 2 (стержневой элемент плоской рамы, см. рис.1.3) с учетом особенностей ее конструкции и вида, действующей на нее нагрузки. При этом выбрать начало общей системы осей координат и продумать вопрос о методике построения расчетной схемы МКЭ с помощью программы SCAD.
Первая операция состоит из двух частей:
а) Сначала подсчитываем степень статической неопределимости n рамы. Для этого используем формулу [3÷5]:

где nоп
- число неизвестных составляющих опорных реакций во всех опорах рамы;
nк - число замкнутых контуров в раме;
3nк
- число неизвестных усилий, которые необходимо определить во всех замкнутых контурах, чтобы построить в них эпюры указанных усилий;
n1ш- число уравнений равновесия вида

В рассматриваемой раме nоп
= 4; nк = 0; n1ш
= 1. В результате по указанной формуле получаем необходимое условие статической определимости рамы: n = 0.
б) Затем исследуем геометрическую неизменяемость рамы. В данном случае для этого достаточно использовать структурный анализ рамы.
Действительно, заданную раму можно рассматривать как систему, состоящую из трех жестких дисков (АС, ВС и неподвижного жесткого диска в виде основания), которые соединены шарнирами. Такой треугольник является геометрически неизменяемой системой.
Таким образом, на основании исследований, выполненных в частях а) и б), делаем вывод о том, что заданная рама является статически определимой системой.
Второй операцией является подготовка к формированию расчетной схемы МКЭ с помощью программы SCAD:
1) Изображаем заданную расчетную схему рамы (Рис.4.2);
2) Выбираем начало общей системы осей координат (опора A );
3) С учетом нагрузки (см. указания в подразделе 1.7), разбиваем стержни на элементы и нумеруем узлы и элементы (см. рис.4.2).
4) Нумерацию узлов выполняем с учетом рекомендаций подраздела 1.5, первого раздела учебного пособия.
|





5) Рядом с номером узла указываем его координаты в общей системе координат в последовательности X, Y, Z (так как рама плоская, координата Y у всех узлов равна нулю).
4.2. Инструкция по выполнению задания с помощью программы SCAD
Подготовка исходных данных для построения расчетной схемы рамы с целью построения эпюр усилий в ее стержнях, расчет и вывод результатов производится в диалоговом режиме в последовательности, указанной в подразделе 1.2.
Процедуру использования возможностей программы SCAD, будем рассматривать в сокращенном виде в тех пунктах инструкции, которые уже были описаны в инструкциях в общем разделе 1 и в разделах 2 и 3 соответственно при расчете фермы и шарнирной балки.
Этап 1. Создание проекта
1.2.1. Ввод наименования проекта
Процедура запуска программы SCAD и процедура выхода в окно Новый проект остаются таким же, как и при расчете фермы и шарнирной балки.
Так как выполняется работа 2 (см. перечень работ в предисловии), вводится: Работа 2

1.2.2. Ввод названий: организации, выполняющей расчет, и объекта
Вводим соответственно: СПбГПУ, рама 1.
1.2.3. Установка единиц измерения
В соответствии с выбранной системой (СИ или технической, например, МТС) назначаются единицы измерения основных величин.
1.2.4. Выбор типа схемы
В окне «Тип схемы» при расчете плоской рамы выбирается: 2. Плоская рама.

1.2.5. Сохранение нового проекта
Процедура сохранения проекта остается такой же, как она была продемонстрирована в предыдущих примерах.
1.3. Задание имени файла.
При расчете рамы 1 файлу присваиваем имя: 0102-р1, где 0102 – цифровой шифр, выданный студенту на все время изучения дисциплины «Строительная механика стержневых систем (статика)» для выбора расчетных схем стержневых систем из [2].
р–первая буква наименования рассчитываемой системы; 1 – порядковый номер рамы в программе SCAD у конкретного расчетчика;
Команда «Сохранить» открывает окно со схемой, которая называется Дерево проекта.
1.4. Открытие окна «Расчетная схема»
Процедура выполнения этого пункта была рассмотрена в инструкции раздела 1 и в предыдущих примерах.
Этап 2. Создание расчетной схемы МКЭ
2.1. Синтез расчетной схемы
Инструментальная панель препроцессора содержит различные функции создания геометрии схемы, назначения граничных условий, нагрузок и др. После старта препроцессора активно окно Управление
инструментальной панели препроцессора.

Для создания расчетной схемы рамы из конечных элементов типа 2 (синтез расчетной схемы) можно использовать два способа.
1) Использовать заготовку для построения расчетной схемы плоской рамы. В этом варианте необходимо войти в раздел Схема. С этой целью курсор устанавливается на закладке Схема и нажимается левая кнопка мыши.
Появится инструментальная панель соответствующая разделу Схема.

2)Использовать способ построения расчетной схемы рамы с помощью последовательного введения узлов рамы в общей системе координат и затем последовательного соединения этих узлов стержневыми элементами. Для этого способа надо войти не в раздел Схема, а в раздел Узлы и Элементы.
2.1.1. Первый способ построения расчетной схемы рамы
Входим в раздел Схема. Нажимаем первую кнопку панели – «Генерация прототипа рамы». Появится окно Выбор конфигурации рамы.
\

В соответствии с заданной на рис.2.12 расчетной схемой рамы для МКЭ выбирается конфигурация рамы, отмеченная точкой в круглом светлом окне и нажимается кнопка ОК.
На экране появится окно Задание параметров регулярной рамы.
Этим окном можно воспользоваться для построения расчетной схемы рамы для МКЭ, которая предварительно была построена на рис. 2.12.
Сначала построим схему вспомогательной рамы с двумя указанными в окне пролетами и этажами.

В поле окна «Связи» уберем галочку из окошка «Автоматическая установка связей». Войдем в окно «Назначение типа КЭ» и выберем: 2. Стержень плоской рамы.
После нажатия кнопки ОК в этом окне снова выйдем в окно Задание параметров регулярной рамы.
Для установки жесткостей у элементов ригеля рамы нажмем кнопку «Ригели». Появится первая страница диалогового трехстраничного диалогового окна по назначению жесткости конечных элементов. Назначение жесткости стержневым элементам типа 2 выполним так же, как это было показано в инструкции для шарнирной балки. Аналогично назначаются жесткости элементов колонн рамы.
После нажатия ОК в окне Задание параметров регулярной рамы появится окно с вспомогательной расчетной схемой рамы в том виде, как она была построена.

Используем панель Фильтры отображения для анализа полученной расчетной схемы. Сначала с помощью кнопки






Как видно, в полученной расчетной схеме по сравнению с предварительно намеченной схемой (см. рис.4.2) имеется различие: в ней лишними являются 5 стержней (3, 4, 7, 8 и 5).
Для их удаления выйдем в раздел Узлы и Элементы. Нажав в двухкнопочном меню кнопку


Далее с помощью курсора и левой клавиши мыши выделяем указанные пять стержней и в меню нажимаем кнопку ОК с зеленой галочкой. Удаляемые стержни исчезнут, но нумерация оставшихся элементов и узлов останется без изменения.

Чтобы удалить из расчетной схемы и узлы, которые исчезли вместе с удаленными элементами, а также произвести перенумерацию оставшихся узлов и элементов надо выполнить так называемую «Упаковку данных». Это достигается нажатием кнопки

При этом появляется диалоговое окно SCAD, в котором надо нажать кнопку «Да». После этого расчетная схема рамы примет вид, изображенный на рис.4.4.

Полученная расчетная схема еще не имеет опорных связей, шарниров и к ней не приложена нагрузка.
Эти вопросы уже были рассмотрены в предыдущих примерах. Поэтому обратим внимание только на два аспекта:
1) одиночный шарнир поставлен в узле 2 (нумерация местной системы координат) элемента 4 (см. соответствующее диалоговое окно);
2) значение сосредоточенной силы в узле 2 (нумерация узлов в общей системе координат) вводится в общей системе координат как сила, действующая по направлению оси X и имеющая знак «минус», так как она направлена в положительном направлении оси X (см. соответствующее диалоговое окно).
В результате получим расчетную схему рамы для МКЭ простроенную для расчетов по программе SCAD в виде, приведенном на рис.4.5 (вариант суммарного загружения двумя заданными нагрузками).

2.1.2. Второй способ построения расчетной схемы рамы
Для использования этого способа необходимо войти в раздел Узлы и элементы, открыть меню «Узлы» и нажать кнопку


Если мы хотим, чтобы начало координат было в первом узле, то просто нажимаем кнопку «Добавить» при нулевых значениях координат. После этого на экране монитора (при нажатых кнопках


Аналогично надо ввести координаты всех узлов последовательно с нажатием кнопки «Добавить» в окне Ввод узлов.
Для того, чтобы получить раму с теми же номерами узлов, что и при ее построении первым способом их и надо вводить в указанной последовательности (см. рис.4.2), где отмечены и номера узлов и их координаты.
В результате получится схема расположения узлов, показанная на рис.4.6
Для ввода элементов надо в меню нажать кнопку



С помощью изменившего свою форму курсора и левой клавиши мыши надо последовательно изобразить оси стержневых элементов, начиная с узла с номером 1 и заканчивая узлом 2 (в местной системе координат). Последовательность ввода элементов должна быть в соответствии с предварительно намеченной схемой (см. рис.4.2). При нажатых на панели Фильтры отображения кнопках «Номера узлов» и «Тип элемента» после изображения оси элемента рядом с ней появлявятся порядковый номер (1) и тип элемента (2).
Закончим построение расчетной схемы введением опорных связей, шарнира на элементе 4 (узел 2 в местной системе координат) и ее загружением.
Эти операции были рассмотрены в предыдущих примерах. Так же как и при расчете шарнирной балки рассмотрено только суммарное загружение.
В результате получим расчетную схему рамы для МКЭ в том же виде, в каком она была получена первым способом (см. рис.4.5).
Операции по выходу в Дерево проекта, выполнению линейного расчета, графическому анализу и печати таблиц с результатами уже выполнялись в предыдущих примерах. Результаты расчета рамы приведены в виде эпюр усилий для суммарного загружения (Рис.4.7) и в виде табл. 3 с усилиями в заданных для расчета сечениях.
Таблица 3
Единицы измеpения усилий: кН
Единицы измеpения моментов: кН*м
------------------------------------------------------------------------
| У С И Л И Я /НАПРЯЖЕНИЯ/ В ЭЛЕМЕНТАХ |
------------------------------------------------------------------------
| 002_ 1-1 1-2 2-1 2-2 3-1 3-2 4-1 4-2 5-1 |
| 1 1 2 2 3 3 4 4 5 |
| 2 2 4 4 6 6 5 5 6 |
------------------------------------------------------------------------
| 1 - 1 |
| N -2.5 -2.5 -2.5 -2.5 -17.5 -17.5 -7.5 -7.5 -7.5 |
| M -12.5 -12.5 2.5 -15. -2.5 -2.e-5 |
| Q -12.5 -12.5 7.5 7.5 -7.5 -7.5 2.5 2.5 2.48 |
------------------------------------------------------------------------
| 5-2 5-3 |
| 5 5 |
| 6 6 |
------------------------------------------------------------------------
| 1 - 1 |
| N -7.5 -7.5 |
| M -2.5 -15. |
| Q -7.51 -17.5 |
СУММАРНОЕ ЗАГРУЖЕНИЕ



Рис.4.7
4.3. Использование уравнений равновесия для проверки усилий в сечениях элементов рамы, полученных с помощью программы SCAD
При расчете рам обычно с помощью уравнений равновесия выполняются следующие проверки (все они рассматривались в примерах расчета рам, приведенных в учебном пособии [3]).
Проверка равновесия всей рамы
Рама должна находиться в равновесии под действием всех заданных нагрузок и под действием найденных при расчете по программе SCAD опорных реакций.
Это означает, что три уравнения равновесия плоской рамы вида (2.2) (см. пункт 2..3 в примере расчета фермы) должны тождественно удовлетворяться, если в них подставить все указанные величины.
В заданной раме для суммарного загружения имеем опорные реакции (см. эпюры Q и N на рис.4.7):




В результате получим:



Все уравнения являются тождествами. Рама находится в равновесии.
Проверка равновесия узлов рамы по моментам
При этой проверке все узлы рамы вырезаются рассечением стержней бесконечно близко к узлу. Тогда при составлении суммы моментов всех усилий, действующих на узел, относительно точки пересечения всех стержней продольные силы в стержнях моментов не дают. Поперечные силы дают бесконечно малые моменты (их плечи относительно узловой точки бесконечно малы), которые при стремлении бесконечно малых плеч к нулю также стремятся к нулю и ими можно пренебречь. Иными словами уравнение равновесия в виде суммы моментов относительно указанной узловой точки


Проверка равновесия узлов рамы под действием
поперечных и продольных сил
При проверке равновесия любого плоского узла с номером i должны соблюдаться еще два уравнения равновесия:

На рис.4.8,б эти силы показаны для узлов, рассмотренных в варианте суммарного загружения рамы.
Проверку равновесия левого узла выполним аналитическим способом, записав указанные уравнения (силы в кН):


Узел находится в равновесии.

Как видим, многоугольник сил, действующих на узел, замкнут. Следовательно, узел находится в равновесии.
Равновесие любой отсеченной части рамы
Предыдущие проверки равновесия выполнялись для всей рамы и для любого ее отдельного узла. Однако в равновесии должна находиться любая отсеченная часть рамы. Иногда бывает удобно рассмотреть равновесие какой-то конкретно вырезанной части рамы.
На рис.4.10 показана проверка равновесия ригеля рамы, отделенного от стоек сечениями, проходящими бесконечно близко к ригелю.

Проверка равновесия любого бесконечно малого элемента dx на оси стержня
Как показано в учебном пособии [2], любой бесконечно малый элемент длиной dx, загруженный продольной и поперечной распределенными нагрузками интенсивностью соответственно qX1 и qZ1
(положительные направления местных осей координат и усилий в сечениях прямолинейного элемента показаны на рис 1.3), находится в равновесии, если соблюдаются уравнения равновесия этого элемента:
1) ![]() ![]() ![]() |
(4.2) |
В рассматриваемой раме:
1)


2) На элементах 1, 2, 3, 4


3) Как видно из третьего уравнения, при постоянном значении Q на элементах 1 – 4 соответствующие эпюры M должны быть прямолинейными и наклонными к оси стержней под углом


На элементе 5 с равномерно распределенной нагрузкой эпюра M представляет собой параболу второй степени. Следовательно, эпюра Q5
будет описываться линейной функцией. Там, где Q5
= 0, на эпюре M5 будет максимум. Это соответствие в эпюрах M5 и Q5 соблюдается.
|
|
Недвижимость: Рынок - Ипотека - Инвестиции
- Недвижимость
- Разновидности недвижимости
- Софт для работы с недвижимостью
- Законы о недвижимости
- Инвестиции в недвижимость
- Ипотека






















