Пакет Mechanical Desktop - Сборки
в ведомость материалов, сохраните ее
Чертеж 1
Завершив внесение уточнений в ведомость материалов, сохраните ее в виде файла.

Появится диалоговое окно экспорта. Установите тип файла *.txt.
Примечание: при экспорте могут использоваться и другие типы файлов.
Щелкните мышью на кнопке ОК.
или щелкните мышью на пиктограмме.
Чертеж 1

Щелкните мышью, затем буксировкой сформируйте окно для вставки текста ведомости материалов.
Выбрав цвет, щелкните мышью на
Чертеж 10
Выбрав цвет, щелкните мышью на кнопке ОК, затем — снова на кнопке ОК и еще раз на кнопке ОК, чтобы вернуться к экрану рисования.
<
Когда появится диалоговое окно многострочного
Чертеж 2
Когда появится диалоговое окно многострочного текстового редактора Multiline Text Editor, щелкните мышью на кнопке Import Text (Импортировать текст) и найдите местоположение файла ведомости, после чего выберите его и щелкните мышью на кнопке ОК.
Ведомость материалов можно также вставить
Чертеж 4
Ведомость материалов можно также вставить в чертеж непосредственно. Введите с клавиатуры AMPARTLIST и нажмите клавишу
Появится диалоговое окно списка деталей Parts List. (Внесете в списке требуемые уточнения или добавления.)
Щелкните мышью на кнопке ОК.
Переместите ведомость материалов на свое
Чертеж 5
Specify location: ( Переместите ведомость материалов на свое место).
Примечание: для уточнения размера окна ведомости материалов можно воспользоваться командой Scale (Масштаб).
в ведомости материалов, проделайте следующие
Чертеж 7
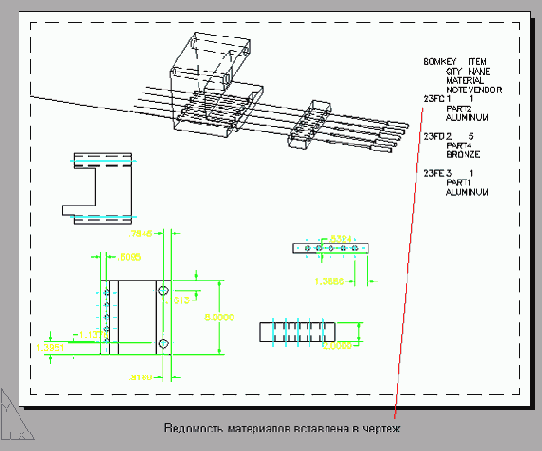
Законченный вид сборочного чертежа с ведомостью материалов
Чтобы изменить цвет текста в ведомости материалов, проделайте следующие шаги.
Выберите окно ведомости материалов.
Появится диалоговое окно списка деталей Parts List.
Щелкните мышью на области текста, а затем — на кнопке Properties (Свойства).
свойств списка деталей Parts List
Чертеж 8
Появится диалоговое окно ANSI- свойств списка деталей Parts List Properties for ANSI, которое позволяет внести в список деталей множество самых разнообразных уточнений.
Чтобы изменить цвет текста, щелкните
Чертеж 9
Чтобы изменить цвет текста, щелкните мышью на кнопке с цветным квадра- . том и выберите новый цвет.
Использование 3D-манипулятора для просмотра сборки
Использование 3D-манипулятора для просмотра сборки
Размещение ведомости материалов на чертеже
Размещение ведомости материалов на чертежеСохранив файл ведомости материалов, можете приступить к ее размещению на чертеже. Базовый процесс этой процедуры аналогичен процессу размещения на чертеже любого текстового документа с использованием команды МТЕХТ.
Щелкните мышью на закладке Drawing системного броузера.
Разработка ведомости материалов
Разработка ведомости материаловВ процессе создания сборочного чертежа пакет Mechanical Desktop отслеживает данные, появляющиеся в ходе черчения. Это позволяет осуществлять автоматическую разработку ведомости материалов.
Попытайтесь выполнить следующие шаги, чтобы добавить в сборочный чертеж ведомость материалов.

Появится диалоговое окно BOM (Bill of Materials) (Ведомость материалов).
В окне перечисляются следующие характеристики.
Сложные сборки и ведомость материалов
Сложные сборки и ведомость материаловИнструментальная линейка Assembly Modeling (Моделирование сборок) обеспечивает быстрый вызов большинства команд, связанных со сборками.

<
Введение справочных сносок
Введение справочных сносокSelect part/assembly: (Щелкните мышью на одной из деталей).
Select next point: (Буксировкой выведите курсор в место расположения справочной сноски и щелкните мышкой).
Появится диалоговое окно Surface Texture
Чертеж 1
в том месте, где должна
Чертеж 1
Start point: (Щелкните мышью в том месте, где должна будет находиться головка стрелки).
Next Point
в том месте, где должна
Чертеж 1
Start point: (Щелкните мышью в том месте, где должна будет находиться головка стрелки).
Next Point "Drtho off>: (Буксировкой сформируйте стрелку и линию сноски, после этого нажмите клавишу
Выберите символ и установите значения допуска.
Щелкните мышью на кнопке ОК.
в том месте, где должна
Чертеж 1
Start point: (Щелкните мышью в том месте, где должна будет находиться головка стрелки).
Next Point
Появится диалоговое окно Weld Symbol
Чертеж 2
Геометрические допуски установлены.
Чертеж 2
Щелкните мышью на кнопке ОК.
Чертеж 2
Выберите тип символа, щелкнув, мышью
Чертеж 3
Возможна установка символов геометрических допусков
Чертеж 3
Возможна установка символов геометрических допусков и других видов. Эти символы устанавливаются подобно тем, которые задаются с помощью окна Feature Control Frame. Обратите внимание на способ применения следующих пиктограмм:
<
Символ сварного соединения каждого типа
Чертеж 4
Введя параметры, щелкните мышью на кнопке ОК.
Показанный ниже окончательный вид символа
Чертеж 5
Показанный ниже окончательный вид символа сварного соединения включает в себя следующие параметры:
Ниже приведен перечень типовых сварных
Чертеж 6
Ниже приведен перечень типовых сварных соединений и соответствующих им символов.
Добавление в чертеж символов
Добавление в чертеж символовЧтобы более точно передать замысел инженера, чертеж имеет специальные символы. Правильное использование символов увеличивает точность и улучшает качество конечного продукта. Кроме того, символы — это единый язык общения между инженерами, рабочими, подрядчиками и производителями. Пакет Mechanical Desktop содержит готовый список общеупотребительных символов. В данной главе будут рассмотрены следующие символы:
<
Установка символов чистоты обработки поверхности
Установка символов чистоты обработки поверхности
Введите с клавиатуры AMSURFSYM и нажмите клавишу
Select object to attach: (Щелкните мышью на поверхности).
Установка символов геометрических допусков
Установка символов геометрических допусков
Введите с клавиатуры AMFCFRAME и нажмите клавишу
Select object to attach: (Щелкните мышью на детали).
Установка символов сварных соединений
Установка символов сварных соединений
Введите с клавиатуры AMWELDSYM и нажмите клавишу
Select object to attach: (Щелкните мышью на детали).
Щелкните мышью на одном из
Чертеж 1
На следующем этапе появится диалоговое
Чертеж 1
На следующем этапе появится диалоговое окно размещения.
Выберите метод позиционирования отверстия.
Процесс разработки во многом общий
Чертеж 13
Внимание! Процесс разработки во многом общий для всех доступных в пакете Mechanical Desktop стандартных элементов. Ниже приведены другие имеющиеся опции.
Разработка таких отверстий подобна разработке
Чертеж 4
Разработка таких отверстий подобна разработке с использованием команды AMHOLE, только в данном случае размеры отверстия будут приведены к стандартным. Рассмотрим пример создания отверстия с цилиндрической зенковкой.

Появится диалоговое окно выбора стандарта отверстия с цилиндрической зенковкой Select a Hole Standard.
Выберите тип цилиндрической зенковки.
с клавиатуры, то после ввода
Чертеж 5
Появится диалоговое окно выбора винта
Чертеж 5
Появится диалоговое окно выбора винта Select a Screw.
Выберите конкретный стиль винта.
Тип отображения винта можно изменить,
Чертеж 6
Появится диалоговое окно создания трехмерной
Чертеж 6
Появится диалоговое окно создания трехмерной модели винтового соединения Screw Connection - 3D.
Это удобное окно позволяет выбирать и задавать все компоненты соединения. В показанном примере выбирается винт с цилиндрической головкой под шлиц.
Выберите размер компоненты.
Теперь рассмотрим использование моделей конструкционных
Чертеж 7
Диалоговое окно размещения трехмерной модели
Чертеж 7
Диалоговое окно размещения трехмерной модели винтового соединения Screw Assembly Location - 3D используется для задания местоположения его компонентов в сборке.
В случае единичного отверстия просто щелкните мышью на клавише Finish.
Появится диалоговое окно ввода значений
Чертеж 8
Появится диалоговое окно ввода значений Enter Values.
В нем будут представлены стандартные размеры диаметра отверстия, диаметpa цилиндрической зенковки и ее глубины. При необходимости значения в столбце Value (Значение) могут быть изменены.
Щелкните мышью на кнопке ОК.
Mechanical Desktop Power Pack: библиотека моделей деталей и конструкционных элементов
Глава 14. Mechanical Desktop Power Pack: библиотека моделей деталей и конструкционных элементов<
Mechanical Desktop Power Pack: библиотека моделей деталей и конструкционных элементов
Mechanical Desktop Power Pack: библиотека моделей деталей и конструкционных элементовВ пакете Mechanical Desktop имеется библиотека большого количества базовых деталей, компонентов и конструкционных элементов, куда входят крепежные элементы, валы, втулки, конструкционные профили и подшипники. После того как подобные детали описаны и вставлены в чертеж, их можно использовать в сборке, точно так же, как и любую другую созданную вручную деталь. Рассмотрим примеры использования таких готовых моделей компонентов. Начнем с крепежа.
Металлоконструкции, шпильки, заклепки, заглушки и втулки
Металлоконструкции, шпильки, заклепки, заглушки и втулки





Появится диалоговое окно выбора винта
Шаг 1
Появится диалоговое окно выбора винта Select a Screw.
Появится диалоговое окно выбора стальных
Шаг 1
Появится диалоговое окно выбора стальных профилей Select a Steel Shape.
Выполните дальнейшее уточнение выбора, щелкнув
Шаг 2Доступны следующие типы профилей проката.
Шаг 2Щелкните мышью на экране во
Шаг 3Select second point [Concentric/cYlinder/two Edges]: ( Щелкните мышью на экране во второй точке).
Select first point
Шаг 3Select second point [Concentric/cYlinder/two Edges]:
Появится диалоговое окно размеров винта.
Шаг 4Щелкните мышью на требуемом размере винта.
Щелкните мышью на кнопке Finish (Закончить).
Если вы выбрали двутавровую балку
Шаг 4Если вы выбрали двутавровую балку W-типа, задайте значения глубины и веса на фут длины.
с моделью или путем ввода
Шаг 5с клавиатуры задайте длину конструкционного
Шаг 5Стандартизованные отверстия
Стандартизованные отверстияВ пакете Mechanical Desktop имеются заготовки стандартизованных отверстий в соответствии со стандартами ISO, ANSI и DIN, а также существует возможность задания отверстий пользователем.
Анализ деталей методом конечных элементов в пакете Mechanical Desktop
Анализ деталей методом конечных элементов в пакете Mechanical DesktopАнализ методом конечных элементов
Анализ методом конечных элементовПроектируя и передавая в эксплуатацию детали, мы, конечно, надеемся, что они испытаны и проверены на предмет сохранения целостности в течение всего жизненного цикла использования. Другими словами, мы надеемся, что во время эксплуатации они не откажут или не сломаются. Испытания и анализ помогают проектировщикам и инженерам удостовериться, что деталь обладает достаточным запасом механической прочности. В ходе проектирования в конструкцию вносятся усовершенствования. Анализ по методу конечных элементов как раз и помогает улучшать конструкцию. Хотя этот метод не является заключительным или решающим испытанием детали на целостность, он позволяет расчетным путем выявить области высоких напряжений, выполнить их анализ и представить разработчику в наглядном виде. После этого разработчик может воспользоваться данной информацией для улучшения конструкции.
На первом этапе анализа по
Чертеж 1
На первом этапе анализа по методу конечных элементов требуется задать ограничения и силы, действующие на моделируемую деталь. Следующий шаг таков: деталь разбивается на сетку элементов, в результате чего в каждой ячейке этой сетки может быть выполнен анализ напряжений. Напоследок полученное решение выводится на экран, при этом используются различные методы отображения.
Сначала необходимо задать неподвижную часть
Чертеж 1
с выбранным материалом. Теперь необходимо
Чертеж 10
Свойства материала изменятся в соответствии с выбранным материалом. Теперь необходимо пересчитать модель, снова щелкнув мышью на кнопке Run Calculation.
Если ваш компьютер обладает достаточной вычислительной мощностью, то можно воспользоваться опцией Refining (Уточнение). В этом случае генерируемая сетка будет мельче и гуще, чем достигается более точный результат анализа методом конечных элементов.
Программа может настраиваться на использование
Чертеж 2
Программа может настраиваться на использование стандартов США, системы СИ (метрической системы), стандартов ISO и ANSI.
Сделав выбор материала, щелкните мышью на кнопке Edit Materials (Редактировать материалы). Если необходимо, откорректируйте значение плотности материала, после чего щелкните мышью на кнопке ОК. Теперь щелкните мышью на закладке Results (Результаты) и после этого — на кнопке Calculate (Вычислить). Чтобы сохранить результаты в файле, выберите опцию Export Results (Экспортировать результаты).
Примечание: появится окошко сохранения, в котором будет стоять расширение имени файла .mpr. Сохраните файл и запомните его местоположение.
Щелкните мышью на кнопке Done (Сделать).
Щелкните мышью на кнопке Import
Чертеж 3
В окне имени файла введите с клавиатуры *. mpr и нажмите клавишу
Щелкните мышью на кнопке ОК.
Отпозиционируйте положение данных файла общих характеристик на чертеже. Для получения наиболее подходящего размещения данных на чертеже можно воспользоваться командой изменения масштаба SCALE.
Для полной точности анализа необходимо
Чертеж 8
Опции отображения
Внимание! Для полной точности анализа необходимо задать нужный материал детали.
Получение общих характеристик деталей
Получение общих характеристик деталейПосле того как проектирование модели завершено, пакет Mechanical Desktop позволяет получить общие характеристики этой детали. Можно задать материал (удельный вес материала) и сохранить данные в файле. Этот файл потом присоединяют к чертежу или распечатывают.
с клавиатуры AMFEA3D
Шаг 1Select 3D-body:
Выберите деталь.
и наложите все необходимы ограничения.
Шаг 1Щелкните мышью на ребре грани,
Шаг 2Появится диалоговое окно общих характеристик
Шаг 2
Появится диалоговое окно общих характеристик сборки Assembly Mass Properties.
После этого необходимо выбрать материал или ввести значение его удельного веса. Все материалы имеют определенное значение удельного веса. Точное значение удельного веса можно найти во многих физических, металлургических и технических справочниках. Ниже приведены значения удельного веса для некоторых наиболее распространенных материалов (в килограммах на кубический дюйм).
Примечание: в диалоговом окне значения удельного веса приводятся в г/см3.
Выберите кнопку Whole Face
Шаг 3Отбуксируйте линии выбора в центр грани и щелкните мышкой.
Задайте окно на экране режима
Шаг 3Задайте окно на экране режима черчения.
Щелкните мышью на кнопке нагрузки.
Шаг 4
Выберите нагружаемую грань и нажмите клавишу
На деталь будет наложена сетка
Шаг 5Specify a base point or displacement: (Щелкните на детали и отбуксируйте ее ниже исходного положения).
После нажатия кнопки Run Calculation
Шаг 6Щелчок мышью на гиперссылке приведет
Чертеж 1
Щелчок мышью на гиперссылке приведет к переходу на страницу с видом детали.
и щелкните на кнопке Next,
Чертеж 10
к каждому размещенному на главной
Чертеж 11
(Будьте терпеливы. Этот процесс потребует определенного времени на создание каждого JPEG- и DWF-файла).
Чтобы просмотреть страницу, щелкните мышью
Чертеж 12
снабженной всеми ссылками на страницы
Чертеж 13
Ниже представлен внешний вид Web-страницы, снабженной всеми ссылками на страницы в DWF-формате.
Проверьте ссылки, щелкая мышью на
Чертеж 14
Проверьте ссылки, щелкая мышью на именах с подчеркиванием
В качестве завершающего шага процесса
Чертеж 15
Открытая страница-ссылка.
Щелчок мышью на кнопке с обратной стрелкой "-вернет к главной индексной странице
В качестве завершающего шага процесса создания Web-страницы щелкните мышью на кнопке Finish (Конец).
<
в результате производится ресурс проектных
Чертеж 2
Достоинство создания Web-страниц САПР состоит в том, что в результате производится ресурс проектных чертежей, доступ к которому возможен из любой точки мира. Виды и проекции на страницах можно рассматривать, изменять их масштаб, вращать и переходить по гиперссылкам на более подробные изображения деталей сборочных чертежей и моделей. На схеме ниже показаны основные этапы процесса создания Web-страниц САПР.
Далее предлагается пошаговая инструкция первого
Чертеж 3
Далее предлагается пошаговая инструкция первого (ручного) метод создания Web-страниц САПР.
Откройте каждую из деталей записанного
Чертеж 5
это использование опции Publish to
Чертеж 6
Щелкните мышью на кнопке Next.
Чертеж 7
Щелкните мышью на кнопке Next.
Чертеж 8
Щелкните мышью на кнопке
Чертеж 9
Применение Internet-средств пакета Mechanical Desktop
Глава 16. Применение Internet-средств пакета Mechanical DesktopИспользуя мощность и гибкость Internet, можно:
Примечание: показанный ниже вид сборки представляет собой вид web-страницы в броузере, а не вид экрана пакета Mechanical Desktop. Он выглядит как типичный чертеж пакета Mechanical Desktop, однако сохраненный как файл формата .DWF (drawing web format — web-формат чертежей).
Заметьте, что в DWF-файле доступны следующие опции, вызываемые правой кнопкой мыши.
С помощью пакета AutoCAD создайте
Шаг 2после этого выберите одну из
Шаг 3Появится диалоговое окно установки смещения
Чертеж 1
Введите значения смещений. (Более высокие значения будут приводил к продлению осей совмещения на большее расстояние. Использование опции Pick (Отбор) может пригодиться в тех случаях, когда положена точки прохождения оси совмещения не очевидно.)
Щелкните мышью на кнопке ОК.
Теперь необходимо ввести еще одно
Чертеж 10
Теперь необходимо ввести еще одно ограничение, чтобы не позволить деталям вращаться друг относительно друга вокруг первой оси.
Теперь на эти две детали
Чертеж 11
Теперь на эти две детали наложены правильные ограничения с точки зрения сборки.
После вызова из каталога на
Чертеж 12
и затем после завершения вызова
Чертеж 13
Select second circular edge:
Чертеж 14
Enter Offset <.0000>:
и соединения деталей до тех
Чертеж 15
Теперь все готово для создания
Чертеж 16
Далее добавим некоторые детали для
Чертеж 19
Обратите внимание на то, что
Чертеж 2
Обратите внимание на то, что когда вы в системном броузере перемещаете курсор на ограничение, появляются голубые стрелки, указывающие на то, каким образом это ограничение накладывается.
Продолжайте создавать все необходимые в,
Чертеж 2
Если новые детали мешают друг другу, то советуем законченные детали удалить с экрана. При удалении детали система сделает запрос об удалении ее из списка определений деталей. В этом случае щелкните мышью на кнопке No. Деталь останется в каталоге, и ее можно будет вызвать, когда все будет готово к построению сборки.
Продолжайте добавлять оси совмещения во
Чертеж 20
На следующем шаге можно добавить
Чертеж 21
Select planar face, work plane
Чертеж 22
Щелкните мышью на странице рисования в том месте, где хотите разместить вид.
Можно добавить и другие виды сборки.
Это будут базовые виды деталей с видом спереди, используемого для их совмещения. После этого можно добавить ортографические виды сверху и сбоку.
и другие комбинации видов сборки,
Чертеж 23
Введите с клавиатуры AMACTIVATE и нажмите клавишу
Enter an option [Assembly/Part/Scene]
Select part to activate or [?]
Теперь деталь активирована, поэтому можно
Чертеж 24

Появится диалоговое окно создания вида чертежа Create Drawing View.
Проверьте, чтобы в окне Data Set была выбрана опция Active Part (Активная деталь).
С помощью команды AMACTIVATE активируйте
Чертеж 25
С помощью команды AMACTIVATE активируйте другие детали и продолжайте создавать графические виды.
Объединение сборки с разносом деталей и ортографических проекций каждой детали позволяет получить высококачественный чертеж.
Опция Flush используется для размещения
Чертеж 27
Опция Flush используется для размещения поверхностей в одной плоскости (заставляет поверхности оставаться в одной плоскости).
Опция Insert используется для размещения
Чертеж 28
Опция Insert используется для размещения вставок, штифтов, болтов и винтов внутри отверстий. (Примечание, голубые стрелки должны всегда быть направлены друг на друга.)
Опция Align используется для размещения
Чертеж 29
Опция Align используется для размещения поверхностей под углом друг к другу (заставляет поверхности или ребра располагаться под углом).
Теперь закончено проектирование всех деталей,
Чертеж 3
Эти ограничения можно редактировать, щелкнув
Чертеж 31
Эти ограничения можно редактировать, щелкнув на них в броузере правой кнопкой мыши.
в режим редактирования предоставляется возможность
Чертеж 32
При переходе в режим редактирования предоставляется возможность выбора из двух опций: Edit (Редактировать) и Delete (Удалить).
Чтобы вызвать деталь на экран
Чертеж 5
Щелкните левой кнопкой мыши столько раз, сколько требуется деталей для окончательного вида сборки.
Продолжайте двойными щелчками мыши выбирать
Чертеж 6
Подсказка: если вы предпочитаете работать с менее загроможденным экраном, то вызывайте за раз только те детали, на которые в данный момент хотите наложить сборочные ограничения.
Select second set of geometry:
Чертеж 7
Поскольку зазора между этими двумя
Чертеж 8
На данный момент двум граням
Чертеж 9
Для лучшей видимости поверхностей детали можно отодвинуть одну от другой. Это не окажет влияния на ограничения.
На следующем этапе необходимо ввести дополнительные ограничения.
Процесс наложения сборочных ограничений
Существует четыре основных типа сборочных ограничений:
Опция Mate используется для стыковки плоскостей, линий и точек. Имеются три типа опции Mate.
Проверка на наличие в сборке нестыковок
Проверка на наличие в сборке нестыковокДругим полезным инструментарием для проектирования сборок, входящим в состав пакета Mechanical Desktop, является функция проверки нестыковок деталей. Таким образом, в сборке можно откорректировать размеры.
Редактирование сборочных ограничений
Редактирование сборочных ограниченийСистемный броузер является мощным инструментом для редактирования сборочных ограничений, позволяя видеть обозначения наложенных ограничений.
Сборки как средство проектирования
Сборки как средство проектированияСборки являются полезным инструментом проектирования, они представляют важную информацию о конструкции. Сначала рассмотрим задачу исследования общих характеристики сборки. К общим характеристикам относятся.
Примечание: это несколько упрощенные определения характеристик, но они должны помочь людям без высшего технического образования получить пред-ставление о характеристиках.
Сборки
СборкиПакет Mechanical Desktop предлагает значительно больше, чем просто проектирование параметрических моделей; он также поддерживает создание сборок и их анализ. Кроме того, с его помощью можно создавать проекции сборок в их окончательном виде.
Давайте кратко рассмотрим основные шаги создания сборок.
Создание деталей, из которых состоит сборка. Перед тем, как приступить к работе, пакету Mechanical Desktop необходимо сообщить, что создается новая деталь.
Ниже приведены базовые методические указания по созданию сборки.
или щелкните мышью на соответствующей
Шаг 1
Введите с клавиатуры AMNEW и нажмите клавишу
Введите имя первой детали и нажмите клавишу
Создайте первую деталь из состава сборки и наложите на нее все необходимые ограничения.
Шаг 1
Примечание: в более старых версиях пакета Mechanical Desktop следует использовать команду AMASSMPROP.
Шаг 1
Шаг 1

Nested part or subassembly selection? [Yes/No]
Чтобы добавить оси совмещения деталей,
Шаг 10
Select reference point on part or subassembly: (Щелкните в центре сборки).
Появится диалоговое окно создания вида
Шаг 11
Появится диалоговое окно создания вида чертежа.
Оставьте в качестве типа вида (View Type) установку Base (Базовый).
Набор данных (Data Set) установите как Scene (Сцена).
На начальном этапе уменьшите масштаб (Scale), чтобы вид уместился в пределах экрана режима рисования сцены. При необходимости масштаб можно будет увеличить позднее.
Щелкните мышью на кнопке ОК.
или щелкните мышью на соответствующей
Шаг 2
Введите имя второй детали и нажмите клавишу
Создайте вторую деталь из состава сборки и наложите на нее все необходимые ограничения.
Шаг 2
Шаг 2
Select second set of parts or subassemblies: (Выберите вторую деталь, которая подлежит проверке, и затем нажмите клавишу
Шаг 2
Select second set of or [Objects]: (Выберите вторую из измеряемых деталей и нажмите клавишу
Вызовите детали из каталога для
Шаг 3
Появится диалоговое окно каталога сборки Assembly Catalog. Чтобы увидеть все созданные детали, щелкните мышью на закладке All (Все). Закладка External (Внешние) используется в том случае, если в сборку необходимо включить внешние детали.
Шаг 3
Щелкните мышью на кнопке Assign Material (Назначить материал). (В диалоговом окне последует запрос о подтверждении сделанного выбора; щелкните мышью на кнопке ОК.)
Шаг 3
Create interference solids? [Yes/No]
Highlight pairs of interfering parts/subassemblies? [Yes/No]
Шаг 3
Minimum distance: <0.853031>
это процесс задания того, как
Шаг 4
Select first set of geometry: (Щелкните мышью в первой детали на той грани, которая должна быть подстыкована. Продолжайте щелкать левой кнопкой мыши до тех пор, пока грань не подсветится и пока не появится указывающая наружу стрелка, после чего нажмите клавишу
Шаг 4
Щелкнув мышью на кнопке Export Results (Экспортировать результаты), можно создать и переслать в любое место текстовый файл с полученными данными. Этот файл можно пересылать и подсоединять к файлу чертежа. Файл идентифицируется по расширению .MPR, которое указывает на то, что речь идет об общих характеристиках.
Для импорта данных в чертеж можно воспользоваться командой МТЕХТ, отбуксировать текстовую рамку в нужное место и нажать кнопку Import File (Импортировать файл). После этого следует установить имя файла *.MPR и провести поиск нужного файла. Сделав любые другие необходимые текстовые установки, щелкните мышью на кнопке ОК.
Select first set of geometry:
Шаг 5
Select first set of geometry: (Выберите линию ребра, нажмите клавишу
Select second set of geometry: (Выберите линию ребра, нажмите клавишу
Примечание: удостоверьтесь, что линии осей указывают в одном направлении.
Select first set of geometry:
Шаг 6
Select first set of geometry: (Выберите линию ребра, нажмите клавишу
Select second set of geometry: (Выберите линию ребра, нажмите клавишу
Примечание: Удостоверьтесь, что линии осей указывают в одном направлении.
или щелкните мышью на соответствующей
Шаг 7
Для более удобного выполнения операции
Шаг 8
Введите с клавиатуры AMINSERT и нажмите клавишу
Select first circular edge: (Выберите внутреннее круглое ребро).
Specify target or assembly name
Шаг 9
Specify target or assembly name
Enter new scene name of the active assembly
Enter overall explosion factor <.0000>: 5 (Введите значение коэффициента разноса, чтобы разделить детали).
Щелкните мышью на кнопке ОК.
Быстрый поиск инструментальных панелей
Быстрый поиск инструментальных панелейДля вывода на экран доступных инструментальных панелей пройдите по меню путь:
View =>Toolbars:
View=>Toolbars:
Ниже показан вид наиболее часто используемых инструментальных панелей пакета Mechanical Desktop и их местонахождение.
Инновации: Менеджмент - Моделирование - Софт
- Инновационный менеджмент
- Разработка программного обеспечения
- Россия и инновации
- Управление инновационным менеджментом
- Моделирование
- Финансовое моделирование
- Системы моделирования
- Виды моделирования
- Практическое моделирование
- Пакет Mechanical Desktop
- Моделирование программ
- Софт для моделирования
- Пакет Simulink
- Моделирование в IBM
- MSC Nastran Моделирование -
- AutoCAD
- Unigraphics
- P-CAD