Проектирование предприятий общественного питания
Функциональная структура предприятий
Основные положения. Проектирование предприятий общественного питания осуществляют в соответствии с функциями, обеспечивающими производственно-торговую деятельность будущего предприятия.
Понятие функции означает соответствующую деятельность, определенный круг работ, выполняемых каким-либо материальным объектом или человеком (например, функции предприятия общественного питания, группы помещений, директора и т. п.).
В целом для предприятий общественного питания характерно сочетание следующих трех основных функций: производство блюд, их реализация и организация потребления, что вызывает необходимость проектирования производственной и торговой группы помещений.
Обычно осуществление какой-либо главной функции сопровождается выполнением нескольких других функций, имеющих вспомогательный характер. Так, общий технологический процесс производства блюд на предприятиях общественного питания состоит из отдельных процессов — приема продуктов, их хранения, кулинарной обработки сырья и изготовления полуфабрикатов, а также тепловой обработки блюд. Кроме того, в общий процесс включают еще ряд вспомогательных операций, необходимых для производства готовых блюд. Сюда относятся мойка посуды и емкостей, обработка тары, удаление пищевых отходов, а также инженерные устройства — приточная и вытяжная вентиляция, отопление, энергоснабжение и т. п.
Таким образом, характер выполняемых функций влияет на формирование групп помещений в общей производственно-торговой структуре предприятия, на которую, в свою очередь, влияют следующие факторы: ассортимент кулинарной продукции, полуфабрикатов, степень их готовности, объем производства и реализации, вместимость залов, наличие отделений для диетического питания и др., которые и определяют характер технологического процесса — основы проектирования любого производственного предприятия, в том числе предприятия общественного питания.
В соответствии с технологическим процессом производства продукции и ее реализации проектируют отдельные функциональные группы помещений, осуществляющих однотипные или доступные для объединения рабочие операции (например, группа помещений для приема и хранения продуктов; производственных помещений; помещений для потребителей; служебных и бытовых помещений; технических помещений).
В связи с наличием множества функций, связанных с процессом приготовления блюд, их реализацией и организацией потребления, предприятия общественного питания имеют функциональное зонирование помещений, которое предполагает выделение отдельных групп помещений и их взаимосвязь, которая должна обеспечить:
поточность технологического процесса — от поступления продуктов до приготовления и отпуска кулинарной продукции;
минимальную протяженность технологических, транспортных и людских потоков с целью создания наиболее благоприятных условий для потребителей и работающих;
соблюдение правил охраны труда и санитарно-гигиенических норм и правил.
В зависимости от выполняемых функций предприятия общественного питания классифицируют на заготовочные, доготовочные, предприятия, работающие с полным производственным циклом (на сырье), предприятия-раздаточные. Предприятия-раздаточные можно условно отнести к доготовочным.
Заготовочные предприятия общественного питания. Они вырабатывают кулинарные полуфабрикаты различной степени готовности, готовые блюда, кулинарные и кондитерские изделия. Основные типы заготовочных предприятий — фабрика полуфабрикатов и кулинарных изделий, специализированные цехи, предприятие полуфабрикатов и кулинарных изделий.
С учетом требований технологического проектирования заготовочные предприятия, осуществляющие функцию производства, имеют в своем составе следующие группы помещений: складские, производственные, служебные, бытовые, подсобные, а также экспедицию.
Складская группа помещений включает охлаждаемые камеры для хранения сырья и отходов, кладовые для хранения картофеля и овощей, сухих продуктов, тары, упаковочных материалов и производственного инвентаря, разгрузочную платформу с боксами и помещения кладовщика.
Производственные помещения заготовочного предприятия, выпускающего все виды полуфабрикатов и готовых изделий, включают мясной, птице-гольевой, рыбный, овощной, кулинарный и кондитерский цехи.
В группу подсобных входят: помещения для хранения уборочного инвентаря, точки ножей и правки пил, кладовая для сухого мусора, ремонтно-механическая мастерская, а также технические помещения (зарядная, трансформаторная подстанция, тепловой пункт, вентиляционные камеры и камеры кондиционирования, машинные отделения холодильных камер и лифтов, радиоузел и АТС).
К экспедиции относятся: помещения для загрузки, приемки и комплектации продукции; охлаждаемые камеры для хранения готовой продукции; кладовая кондитерских изделий; помещения для приема, разбора, мойки, сушки и хранения экспедиционной тары, мойки, сушки и хранения контейнеров и стеллажей, загрузочная платформа экспедиции с боксами, помещение экспедитора.
Доготовочные предприятия и предприятия с полным производственным циклом. Эти предприятия различаются по типам в зависимости от ассортимента реализуемой продукции, характера и объема предоставляемых потребителям услуг, методов и форм обслуживания. К основным типам таких предприятий относятся столовые, рестораны, кафе, закусочные, магазины (отделы) кулинарии и бары.
С учетом требований технологического проектирования в них проектируют группы помещений: для приема и хранения продуктов; производственных; для потребителей; служебных и бытовых; технических помещений. Состав помещений предприятия зависит от типа предприятия, мощности, а также от степени готовности получаемых полуфабрикатов, кулинарных изделий и сырья.
В группу помещений для приема и хранения продуктов входят: охлаждаемые камеры (для хранения мясных, рыбных и овощных полуфабрикатов; фруктов, зелени, напитков; молочных продуктов, жиров и гастрономии; пищевых отходов); неохлаждаемые кладовые для хранения сухих продуктов; кладовые тары, инвентаря и средств материально- технического оснащения; приемочная.
Группа производственных помещений объединяет: цехи — горячий, холодный, доготовочный, обработки зелени; моечные столовой, кухонной посуды и полуфабрикатной тары; помещение для резки хлеба; раздаточную, сервизную и помещение заведующего производством. В эту группу могут входить кондитерский цех и помещение для приготовления мучных изделий.
При переводе доготовочных предприятий на работу с полуфабрикатами высокой степени готовности доготовочный цех и цех обработки зелени не проектируют.
Группа помещений для потребителей включает: вестибюль (в том числе гардероб, умывальные и туалеты); залы с раздаточными и буфетом (на предприятиях с самообслуживанием); аванзал, залы без раздаточных, банкетные залы (на предприятиях с обслуживанием официантами); зимние сады и летние веранды; зал магазина кулинарии с кафетерием; комнату отдыха и кабинет врача (диетсестры) в диетических столовых; помещения для организации досуга по тематическим программам в специализированных предприятиях; отделы (бюро) заказов.
Группа служебных и бытовых помещений состоит: из административных помещений дирекции, кассы, бухгалтерии; помещения для персонала; гардероба для персонала; душевых, кабин личной гигиены женщин; туалетов для персонала; бельевой.
Группа технических помещений — это вентиляционные камеры, электрощитовая, тепловой узел, машинное отделение охлаждаемых камер и мастерские.
Предприятия, работающие с полным производственным циклом (на сырье), осуществляют кулинарную обработку сырья, изготовление полуфабрикатов, приготовление блюд, реализацию и организацию их потребления.
Проектирование предприятий, работающих на сырье, рекомендуется выполнять в тех случаях, когда отсутствует или недостаточно развита сеть заготовочных предприятий (предприятий пищевой промышленности).
В состав производственных цехов предприятий, работающих на сырье, входят мясной, рыбный, овощной, горячий, холодный и кондитерский цехи. Состав остальных функциональных групп помещений такой же, как в доготовочных предприятиях.
Состав и площади помещений доготовочных предприятий общественного питания и предприятий, работающих на сырье, принимают в соответствии с технологическими расчетами и по желанию заказчика могут быть изменены. Из нормативных документов используют СНиП 2.08.02—89 «Общественные здания и сооружения», в которых приведены нормы площади на одно место в залах предприятий общественного питания.
При определении состава и площадей помещений заготовочных предприятий необходимо руководствоваться «Ведомственными нормами технологического проектирования заготовочных предприятий общественного питания по производству полуфабрикатов, кулинарных и кондитерских изделий» (ВНТП 05—86).
Контрольные вопросы и задания:
1. На основе каких решений и документов осуществляют проектирование нового строительства, реконструкцию и техническое перевооружение действующих предприятий?
2. Что представляет собой проектная документация?
3. Какие вопросы решают при проведении технико-экономического обоснования проекта?
4. Какие сведения приводят в задании на проектирование?
5. Каковы отличительные особенности проекта для типового, индивидуального и экспериментального строительства зданий?
6. В каких случаях разрабатывают проекты реконструкции и технического перевооружения предприятий?
7. Во сколько стадий осуществляют проектирование предприятий?
8. Из каких документов состоит проект?
9. Из каких разделов состоит пояснительная записка?
10. Что такое САПР в проектировании?
11. Перечислите функциональные группы помещений заготовочных предприятий.
12. Назовите функциональные группы помещений доготовочных предприятий.
Количество продуктов и полуфабрикатов
| Код продукта |
Наименование продукта |
Масса брутто, кг |
Масса нетто, кг |
| 104 |
Щавель |
33,0 |
25,0 |
| 103 |
Шпинат |
67,5 |
50,0 |
| 080 |
Картофель сырой очищенный сульфитированный |
25,0 |
25,0 |
| 083 |
Лук репчатый сырой очищенный |
10,0 |
10,0 |
| 002 |
Мука пшеничная |
5,0 |
5,0 |
| 068 |
Маргарин «Сливочный» |
6,0 |
6,0 |
| 299 |
Яйца куриные |
5,0 |
5,0 |
| 028 |
Соль поваренная |
2,0 |
2,0 |
| 165 |
Грудинка |
20,0 |
20,0 |
| 036 |
Сметана 30%-ной жирности |
5,0 |
5,0 |
| 090 |
Петрушка (зелень) |
3,0 |
2,0 |
Использование ЭВМ для оптимизации рецептур и технологии блюд. Индустриализация отрасли выдвигает задачи дальнейшего совершенствования технологического процесса поточного производства блюд массового спроса. Существующую традиционную технологию, приведенную в Сборнике рецептур блюд, приходится изменять применительно к поточному производству. В РЭА им. Г. В. Плеханова канд. техн. наук Л. П. Жуковской разработана программа для оптимизации рецептур и технологии изготовления традиционных блюд массового спроса, которая дает возможность автоматизировать процесс производства.
В основу выбора ассортимента блюд для их оптимизации положены требования, предъявляемые к экономичному технологическому процессу: минимальная энергоемкость, высокая механизация и автоматизация, снижение потерь при механической и тепловой обработке, удобство порционирования и транспортирования и др.
Все перечисленные требования предъявляются процессом производства к оптимальному ассортименту блюд. Для потребителя основные требования — это органолептические показатели, пищевая ценность, товарный вид блюда и др.
Оптимизацию выбранных рецептур проводят по математической модели с помощью ЭВМ. Модель позволяет провести оптимизацию традиционных рецептур вторых горячих блюд, сладких блюд и кулинарных изделий, рецептура которых включает пищевые продукты растительного и животного происхождения.
Математическая модель имеет вид:

где x1, x2, x3 ...xi , — количество каждого компонента рецептуры, кг; n — число компонентов в рецептуре; a10 , a20 , a30 — количество в каждом компоненте рецептуры соответственно белка, жира, углеводов, кг, а40 — трудоемкость обработки 1 кг компонента, с; 0,034; 0,041; 0,154 — количество (кг) белка, жира и углеводов, рекомендуемое для потребления в обед (35 %) при суточной энергетической потребности для мужчин при III группе интенсивности труда — Дж (3200 ккал); zmin — трудоемкость готового изделия, с; 1 — количество готовой продукции, равное 1 кг.
Данная модель позволяет проводить оптимизацию по таким параметрам, как режим питания и энергетическая ценность рациона в целом, соотношение основных пищевых веществ и их количества, трудоемкость обработки продуктов и механизация обработки.
Чтобы учесть потери при тепловой обработке, следует для каждого хi , ввести дополнительно коэффициент тепловых потерь Кi . Уравнение будет иметь вид

где K11 , К12 — коэффициенты тепловых потерь соответственно продуктов х11 и х12.
Оптимизация технологии блюда складывается из следующих этапов: составление технологической схемы традиционной технологии, анализ операций этой схемы, рассмотрение возможности сокращения числа технологических и вспомогательных операций, исключение транспорта и перевалок путем перевода операций на поток с заменой оборудования, составление новой схемы технологии и расчет экономической эффективности проведенной оптимизации. Разработаны рекомендации по методике проведения каждого этапа оптимизации технологии блюд.
Объемно-планировочные решения предприятий общественного питания
Глава 5
ОБЪЕМНО-ПЛАНИРОВОЧНЫЕ РЕШЕНИЯ ПРЕДПРИЯТИЙ ОБЩЕСТВЕННОГО ПИТАНИЯ
5.1. ОБЩИЕ ПРИНЦИПЫ ОБЪЕМНО-ПЛАНИРОВОЧНЫХ РЕШЕНИЙ ПРЕДПРИЯТИЙ ОБЩЕСТВЕННОГО ПИТАНИЯ
Выполнение планировочного решения предприятия общественного питания — сложный и трудоемкий процесс. К нему приступают после проведения технологических расчетов и определения площадей помещений, входящих в состав проектируемого предприятия.
Цель планировки здания — соединение в одно целое всех групп помещений, входящих в состав предприятия, с учетом их взаимосвязи и требований, которые предъявляют к проектированию каждой из них.
Планировку здания в целом осуществляют в следующем порядке: выбор типа здания (отдельно стоящее, пристроенное или встроенное в здание иного назначения); выбор этажности и конфигурации; выбор архитектурно-планировочной схемы, размещение помещений в здании, размещение оборудования.
Необходимо стремиться к разработке оптимального варианта планировочного решения, учитывая при этом, что не всегда ожидаемое решение достигается в полной мере. Однако при всех принимаемых решениях необходимо учитывать современные требования торгово-технологических процессов, основные из которых — принцип поточности и четкости выполнения технологических процессов при обязательном соблюдении правил безопасности и производственной санитарии. При этом исходят из ряда общих положений, присущих проектированию общественных зданий, в том числе предприятий общественного питания.
Объемно-планировочное решение предприятия определяется: функциональным назначением предприятия и конструктивным решением здания; градостроительными и природно-климатическими факторами; архитектурно-художественными задачами; техническими и экономическими требованиями. От функционального назначения предприятия зависят состав помещений, их площадь, взаимосвязь и группировка помещений.
При разработке конструктивного решения проектируемого предприятия учитывают общую конструктивную схему, виды применяемых конструкций, сетку внутренних несущих опор, тип фундамента, габариты применяемых сборных конструктивных элементов и т.
п.
Градостроительные и природно-климатические факторы — это конфигурация и величина участка строительства, его ориентация по странам света и к господствующим ветрам, рельеф, климатический район строительства, характер окружающей застройки и природной среды, связь с транспортными магистралями, улицами и проездами.
Архитектурно-художественные задачи — создание художественного образа сооружения в соответствии с его месторасположением в условиях городской застройки и необходимостью создания единой архитектурной композиции.
Технические требования учитывают уровень инженерного оборудования, удобство сообщения помещений проектируемого предприятия, располагаемых на разных этажах, качество наружной и внутренней отделки стен, потолков и полов; создание благоприятных температурно-влажностных условий, в том числе систем отопления, вентиляции и кондиционирования воздуха; условия нормального естественного и искусственного освещения помещений.
К экономическим требованиям проектирования относят эффективное использование площади и объема здания, сокращение площади коммуникационных, технических и прочих вспомогательных помещений, экономию затрат труда, материалов и энергии при возведении и оборудовании здания, сокращение сроков строительства и эксплуатационных расходов.
Объемно-планировочные решения
5.2. ОБЪЕМНО-ПЛАНИРОВОЧНЫЕ РЕШЕНИЯ ОТДЕЛЬНО СТОЯЩИХ ОДНОЭТАЖНЫХ И МНОГОЭТАЖНЫХ ЗДАНИЙ ПРЕДПРИЯТИЙ ОБЩЕСТВЕННОГО ПИТАНИЯ
Предприятия общественного питания по своему градостроительному положению могут размещаться в отдельно стоящих зданиях, быть пристроенными к зданиям иного назначения при обособленности всех групп помещений, быть встроенными в здания иного назначения при совмещении некоторых групп помещений предприятия с аналогичными группами помещений этих зданий.
Заготовочные предприятия размещают, как правило, в отдельно стоящих зданиях. Отдельные заготовочные цехи могут входить в состав распределительных холодильников, плодоовощных и продовольственных баз и складов.
Доготовочные предприятия и предприятия, работающие на сырье, могут размещаться: в отдельно стоящих зданиях в составе общественных и торговых центров, рыночных комплексов; во встроенных, встроенно-пристроенных помещениях жилых и общественных зданий, во вспомогательных зданиях производственных предприятий.
Отдельно стоящие здания, в которых размещаются предприятия общественного питания, могут быть одноэтажными и многоэтажными, с подвалом и без него. Выбор этажности определяется мощностью предприятия и условиями градостроительства.
Предприятия, расположенные в одноэтажных зданиях, имеют ряд преимуществ перед предприятиями, которые находятся в многоэтажных зданиях: в них наиболее просто решается вопрос взаимосвязи отдельных групп помещений, отпадает необходимость в устройстве лестниц, подъемников, что значительно снижает стоимость строительства. Однако для одноэтажных зданий требуется большая площадь застройки, поэтому крупные предприятия (как заготовочные, так и доготовочные), а также предприятия, расположенные в районах сложившейся застройки, рекомендуется размещать в многоэтажных зданиях. В целях экономии городской территории отдельно стоящие предприятия общественного питания с числом мест свыше 200 следует размещать в многоэтажных зданиях.
Конфигурация зданий заготовочных предприятий должна быть простой (в виде прямоугольника).
Наличие пристроек, выступов вызывает значительное увеличение площади участка, отводимого под строительство, усложняет подвод коммуникаций, индустриализацию строительства, удорожает благоустройство участка.
Для доготовочных предприятий допускается та форма здания, при которой наилучшим образом решается вопрос о взаимосвязи помещений в соответствии с технологическим процессом производства.
Внутри здания помещения следует располагать по определенным архитектурно-планировочным схемам. В схемах заготовочных предприятий основное место занимает расположение холодильных камер (для хранения сырья и готовой продукции), которые желательно объединять в блоки с предельно простой конфигурацией; всякое иное их расположение приводит к устройству длинных, дорогостоящих коммуникаций и большому расходу дорогостоящего изоляционного материала. Рекомендуется несколько планировочных схем расположения холодильного блока в здании предприятия: центричная, или островная; П-образная, или полуостровная; Г-образная, или угловая; линейная, или торцевая.
Все планировочные схемы имеют в плане прямоугольную форму. При центричной планировочной схеме холодильные камеры располагаются в центре здания, а с четырех сторон к ним примыкают производственные помещения. Расположение холодильных камер в центре здания рационально, так как они занимают неосвещенную часть здания, в то время как производственные помещения, расположенные по периметру, имеют естественное освещение. На основе данной композиционной схемы можно осуществлять планировку одноэтажных и многоэтажных зданий заготовочных предприятий. В последнем случае в средней части здания во всех этажах размещают холодильные цехи
При П-образной планировочной схеме холодильные камеры расположены также в средней части здания, но производственные помещения примыкают к ним только с трех сторон; четвертой стороной они примыкают к наружной стене.
При Г-образной планировочной схеме холодильные камеры частично встроены в здание предприятия, а производственные помещения примыкают к ним только с двух сторон.
Такая планировочная схема может быть применена при ограниченном составе производственных помещений по отношению к запроектированной емкости холодильника.
При линейной, или торцевой, планировочной схеме холодильные камеры примыкают к зданию с торцевой стороны. Таким образом, здание четко разграничивается на две части: производственную и складскую.
В торце здания располагаются холодильные камеры, а в остальной части — производственные цехи и остальные помещения. Такая планировочная схема может быть рекомендована для предприятий небольшой мощности (примерно 10-15 т перерабатываемого сырья) или для отдельных заготовочных цехов, которые можно пристраивать к крупным городским холодильникам.
Рассмотренные выше планировочные схемы представлены на рис. 5.1. Они могут быть применены при проектировании одноэтажных зданий заготовочных предприятий. Для многоэтажных зданий наиболее рациональны центричная и П-образная планировочные схемы.

Рис. 5.1. Планировочные схемы заготовочных предприятий:
а — центричная, или островная, б — П-образная, в — Г-образная, г — линейная, или торцевая.
Примечание. На схеме холодильные камеры заштрихованы
При планировке предприятий, расположенных в одноэтажных зданиях, группы помещений размещают в соответствии с направлением технологических, транспортных и людских потоков.
Если предприятия расположены в многоэтажных зданиях, то основные группы помещений можно располагать в различных вариантах и сочетаниях. Однако при этом необходимо соблюдать некоторые общие требования: на первом этаже располагают складские помещения, помещения экспедиции, цех по переработке овощей, магазин кулинарии; на втором и третьем этажах — прочие производственные помещения.
При выполнении планировочных решений доготовочных предприятий и предприятий, работающих на сырье, главную роль играет взаимосвязь основных групп помещений — для потребителей и производственных, а точнее, залов и горячего цеха. В связи с этим рекомендуется несколько архитектурно-планировочных схем: центричная; фронтальная; глубинная; угловая.
При центричной планировочной схеме горячий цех с прочими производственными и другими помещениями проектируют в центре здания, а залы с раздачами размещаются вокруг них. При такой планировке здание в плане может иметь круглую или прямоугольную форму, близкую к квадрату. По этой схеме можно проектировать многозальные предприятия вместимостью 200 мест и более. Каждый зал имеет свою раздачу, примыкающую к горячему цеху. Помещения, расположенные в центре здания, имеют верхнее боковое естественное освещение за счет увеличения высоты средней части здания. Залы и другие помещения, расположенные вокруг центральной части здания, имеют боковое естественное освещение. Основной недостаток центричной схемы — удаленность отдельных мест в зале от раздачи и моечной столовой посуды.
При фронтальной планировочной схеме план здания условно делится на две части параллельно продольной оси. Со стороны главного фасада размещают группу помещений для потребителей, а в противоположной половине здания — производственные, складские и другие помещения. Характерная особенность этой схемы — вытянутая по всему фронту здания прямоугольная форма зала. По этой схеме зал с раздачей своей удлиненной частью примыкает к горячему цеху, моечной столовой посуды и сервизной (на предприятиях с обслуживанием официантами), помещению для резки хлеба. Зал и производственные помещения имеют естественное боковое освещение. К залу могут быть пристроены террасы и веранды для организации летних мест. По фронтальной схеме проектируют предприятия общественного питания вместимостью 100 мест и более. Основной недостаток указанной схемы — значительная протяженность зала, а следовательно, большие расстояния от раздачи до отдельных мест в зале.
При глубинной планировочной схеме план здания условно делится пополам параллельно короткой стороне. Со стороны главного фасада размещают группу помещений для потребителей, с противоположной стороны — все остальные помещения. Характерная особенность этой схемы состоит в том, что все основные помещения последовательно размещаются в глубине здания в соответствии с технологическим процессом производства.
При глубинной планировочной схеме зал с раздачей примыкает к горячему цеху и моечной столовой посуды узкой стороной. Освещение зала и производственных помещений естественное. Недостаток схемы — ограниченный фронт раздачи, поэтому ее применяют при проектировании небольших предприятий.
При угловой планировочной схеме залы располагаются в плане здания смежно, под углом друг к другу и соответственно примыкают с двух сторон к производственным и другим помещениям. Горячий цех и примыкающие к нему производственные помещения могут иметь верхнее боковое освещение за счет увеличения высоты средней части здания. Залы имеют боковое естественное освещение. Данная планировочная схема может быть рекомендована для предприятий вместимостью 200 мест и более с несколькими обособленными залами, связанными раздачами с горячим цехом.
Описанные планировочные схемы представлены на рис. 5 2 Такие схемы применяют при проектировании одноэтажных отдельно стоящих зданий доготовочных и предприятий общественного питания, работающих на сырье.

Рис. 5.2. Планировочные схемы доготовочных предприятий:
а, б — центричные, в — фронтальная, г — глубинная, д — угловая.
Примечание. На схеме помещения для потребителей заштрихованы
В многоэтажных зданиях в связи с некоторыми особенностями размещения помещений на разных уровнях необходимо придерживаться следующих рекомендаций: в верхних этажах размещают залы с раздачами и моечными столовой посуды; залы с раздачами, горячим и холодным цехами, моечными столовой и кухонной посуды; залы с раздачами и основными помещениями. На первом этаже — все остальные помещения, входящие в состав предприятия.
На первом этаже у наружных стен располагают производственные помещения, требующие естественного освещения (цехи мясо-рыбный и овощной на предприятиях, работающих на сырье, или доготовочный цех и цех обработки зелени на предприятиях, работающих на полуфабрикатах, помещение изготовления мучных изделий, кондитерский цех), часть технических (вентиляционная камера, тепловой пункт) и административных помещений.В центре здания могут быть расположены складские, бытовые и остальные технические помещения.
Во всех случаях на первых этажах рекомендуется размещать магазины кулинарии. При расположении помещений в плане здания необходимо учитывать все требования, которые предъявляют как к группам в целом, так и к отдельным помещениям внутри каждой группы. В случае многоэтажных зданий при размещении помещений необходимо наметить места расположения лестниц и подъемников; сбалансировать площади помещений по этажам.
Последний этап выполнения планировки предприятия — расстановка оборудования в цехах и других помещениях.
Оценка технического уровня проектируемого предприятия
3.9. ОЦЕНКА ТЕХНИЧЕСКОГО УРОВНЯ ПРОЕКТИРУЕМОГО ПРЕДПРИЯТИЯ
Технический уровень проектируемого предприятия может быть рассчитан на основании Системы нормативных показателей. Система показателей представляет собой совокупность частных и обобщающих показателей, отражающих прогрессивность технологии, обеспеченность техникой, техническое совершенство используемого парка оборудования и техническую вооруженность труда. Нормативные показатели технического уровня заготовочных и доготовочных предприятий разработаны для двух вариантов работы — частичное снабжение и комплексное снабжение полуфабрикатами.
Оценка технического уровня проектируемого предприятия при выполнении дипломного проекта может быть дана по одному из показателей (например, по уровню прогрессивности технологии) или по всем показателям.
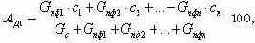
Уровень прогрессивности технологии доготовочного предприятия (%)

где Ад —уровень прогрессивности технологии; Ад1 —доля полуфабрикатов, кулинарных изделий и готовых блюд в общем расходе сырья и продуктов, %; Ад2 — доля полуфабрикатов, кулинарных изделий и готовых блюд, полученных в функциональных емкостях и контейнерах, %.

где Gпф1, Gпф2 ,..., Gпфn — масса полуфабрикатов разной степени готовности, кг; Gc — масса сырья, кг; с1 , с2 ,...,сn — степень готовности полуфабрикатов. Степень готовности равна: для полуфабрикатов, прошедших частичную механическую обработку, 0,3; полную механическую обработку 0,5; полную механическую и частично тепловую 0,7; готовых кулинарных изделий 0,9; готовых блюд, мучных кулинарных, булочных и кондитерских изделий 1.

где GK — масса полуфабрикатов и кулинарной продукции, поступивших в контейнерах, кг, Gпф — общая масса полуфабрикатов и кулинарной продукции, кг.
Нормативный уровень прогрессивности технологии доготовочных предприятий составляет 60—80 %.
Уровень прогрессивности технологии заготовочных предприятий (%)

где Аз1 — доля сырья и продуктов, обработанных поточно-механизированным способом, %; Аз2— доля полуфабрикатов, кулинарных изделий и готовых блюд, отправляемых в функциональных емкостях и контейнерах, %.
Показатель Аз1 рассчитывают, исходя из номенклатуры серийно выпускаемого оборудования. Показатель Аз2 принимают равным 100 %, так как во всех заготовочных предприятиях предусмотрено использование функциональных емкостей, стеллажей и контейнеров на всех стадиях производства, хранения и транспортировки продукции. Нормативный уровень прогрессивности технологии заготовочных предприятий составляет 50—60 %.
Пример. Определить уровень прогрессивности технологии в столовой при заводе. В столовую поступают мясо крупным куском, рыба специальной разделки, очищенные овощи в количестве 200 кг; мясные полуфабрикаты порционные, мелкокусковые, рубленые, овощи очищенные и нарезанные — 90 кг; запеканки, блинчики, пассерованные овощи — 500 кг; кондитерские изделия — 200 кг; общая масса сырья 600 кг.



Обеспеченность техникой характеризуют показателем уровня технической оснащенности

где nф — фактическое количество единиц оборудования; nн — нормативная потребность единиц оборудования (определяется по нормам оснащения оборудованием).
Техническое совершенство используемого оборудования характеризуют долей прогрессивных видов машин и оборудования в общем числе единиц оборудования

где nпр — количество прогрессивных видов оборудования (это то оборудование, которое соответствует современным направлениям научно-технического прогресса в отрасли); п — общее число единиц оборудования на предприятии.
Техническую вооруженность труда характеризуют долей работников механизированного труда по отношению к численности работников ручного труда.

где NM — численность работников механизированного труда; Nр — численность работников ручного труда.
Технический уровень проектируемого предприятия

Организация проектирования
ОБЩИЕ ПОЛОЖЕНИЯ ПРОЕКТИРОВАНИЯ ПРЕДПРИЯТИЙ ОБЩЕСТВЕННОГО ПИТАНИЯ
1.1. ОРГАНИЗАЦИЯ ПРОЕКТИРОВАНИЯ
Проектирование представляет собой взаимоувязанный комплекс работ, в результате выполнения которого составляют техническую документацию для строительства или реконструкции зданий и сооружений. Проектирование — промежуточное звено между научными исследованиями и их внедрением в народном хозяйстве.
В проектировании принимают участие коллективы высококвалифицированных специалистов проектных, изыскательских и комплексных проектно-изыскательских организаций (институты, тресты и конструкторские бюро).
Основную часть проектных работ выполняет организация, называемая генеральным проектировщиком. Для выполнения отдельных частей проекта генеральный проектировщик привлекает на договорных началах специализированные проектные организации. По каждому проектируемому предприятию назначается ответственное лицо — главный архитектор или главный инженер проекта, который увязывает различные части проекта, отвечает за сроки его выпуска, качество, технический уровень, эффективность и соответствие нормам.
Проекты зданий предприятий общественного питания разрабатывают на основе утвержденных схем развития и размещения сети предприятий общественного питания на первую очередь строительства и на расчетный срок (20 лет). Схемы составляются головными проектными или научно-исследовательскими и проектными организациями, которые занимаются разработкой типовых проектов и проектов для экспериментального строительства, а также индивидуальных проектов крупных предприятий, методических и нормативных документов.
Проектирование нового строительства, реконструкции и технического перевооружения действующих предприятий осуществляют на основании решений, принятых в утвержденных технико-экономических обоснованиях (ТЭО) или технико-экономических расчетах (ТЭР) строительства.
Проектная документация — это система расчетов, чертежей и показателей, создающих модель будущего предприятия, обосновывающих технологическую и техническую возможность, а также экономическую целесообразность его строительства.
Разработка проектной документации включает три этапа: предпроектный, проектный и послепроектный.
На предпроектном этапе проводят изыскания, которые условно можно подразделить на экономические и технические. На этом этапе должны быть изучены предполагаемый район строительства, его климатические и географические условия, наличие в нем предприятий общественного питания и пищевой промышленности, определены перспективные потребности населения в услугах общественного питания, источники снабжения сырьем, полуфабрикатами, готовой кулинарной и кондитерской продукцией, а также топливом, электроэнергией, водой и газом.
В технико-экономическом обосновании (расчетах) приводят сметную стоимость строительства и дают общую оценку экономической целесообразности и хозяйственной необходимости предприятия. Срок действия ТЭО (ТЭР) составляет два года, для крупных и сложных предприятий — три года.
По утвержденным технико-экономическим обоснованиям (расчетам) составляют задание на проектирование. Состав и его содержание регламентированы инструкцией о составе, порядке разработки, согласования и утверждения проектно-сметной документации на строительство предприятий, зданий и сооружений (СНиП 1.02.01—85). В задании на проектирование содержатся следующие сведения: наименование предприятия, основание для проектирования, вид строительства (новое, реконструкция, расширение), его месторасположение; мощность предприятия (в случае проектирования по очередям — на полное развитие и на первую очередь строительства); режим работы предприятия, его намечаемая специализация, производственное и хозяйственное кооперирование, если такое будет иметь место; основные источники обеспечения предприятия сырьем, водой, теплом, газом, электроэнергией как в процессе эксплуатации, так и в период строительства; условия по очистке и сбросу сточных вод; требования к технологии и основным технологическим процессам и оборудованию; необходимость разработки автоматизированных систем управления производством; сроки строительства; размер капитальных вложений и основные технико-экономические показатели, которые должны быть достигнуты при проектировании; стадийность проектирования; наименование генеральной проектной и строительной организации генерального подрядчика.
При размещении предприятий, зданий и сооружений на территории городов проектной организации выдают архитектурно-планировочное задание (АПЗ), а также строительный паспорт участка и технический. В техническом паспорте изложены результаты инженерных и экономических изысканий, проведенных в районе строительства.
После утверждения задания начинается второй (проектный) этап непосредственного проектирования объекта. На этом этапе разрабатывают проектную документацию, состоящую из нескольких взаимосвязанных частей: архитектурно-строительной, технологической, технико-экономической, электротехнической, санитарно-технической, сметной. Номенклатура частей проекта зависит от сложности и сметной стоимости объекта.
Повышение эффективности капитальных вложений, улучшение качества и снижение стоимости объектов достигаются путем реализации ряда основных положений проектирования:
широкого использования в проектах достижений науки, техники, передового отечественного и зарубежного опыта;
осуществления проектирования от общего к частному в строгом соответствии с разрабатываемыми схемами развития и размещения предприятий отрасли и ее материально-технической базы;
внедрения вариантного проектирования, позволяющего выявить и реализовать тот вариант технологического и объемно-планировочного решения, который в заданных условиях экономически целесообразен;
широкого использования типовых проектов предприятий, что позволяет значительно сократить затраты труда проектировщиков, повысить качество и снизить стоимость проектных работ.
На третьем (послепроектном) этапе проектирования осуществляют авторский надзор за строительством. Для обеспечения качества и повышения ответственности проектных организаций за строящиеся здания и сооружения генеральному проектировщику предоставляется право приостанавливать производство строительно-монтажных работ, выполняемых с нарушением проектных решений и нормативных требований.
Особенности проектирования предприятий общественного питания
5.3. ОСОБЕННОСТИ ПРОЕКТИРОВАНИЯ ПРЕДПРИЯТИЙ ОБЩЕСТВЕННОГО ПИТАНИЯ, РАСПОЛОЖЕННЫХ В ЗДАНИЯХ ИНОГО НАЗНАЧЕНИЯ
Для обслуживания населения микрорайонов наряду с отдельно стоящими зданиями предприятий общественного питания проектируют кооперированные здания и предприятия, встроенные в первые этажи жилых домов.
В кооперированных зданиях обычно размещают одновременно два или три предприятия повседневного обслуживания (например, столовая, кафе, закусочная, магазин продовольственных товаров, комбинат бытового обслуживания). При этом предусматривают универсальное использование общих помещений и возможность изоляции одного предприятия от другого. При объемно-планировочном решении всего кооперированного здания определяющим является планировочное решение предприятия общественного питания как наиболее сложное в техническом отношении.
На первых этажах жилых домов можно проектировать небольшие предприятия (столовые, специализированные предприятия), работающие на полуфабрикатах высокой степени готовности, охлажденной готовой кулинарной продукции, с числом мест не более 100, предприятия по отпуску обедов на дом. Габариты встроенных предприятий общественного питания должны соответствовать конструктивной основе жилого дома, что осложняет планировочное решение предприятия.
Типовые проекты предприятий, встроенных в первые этажи жилых домов, предусматривают расположение зала между лестничными клетками в пределах двух смежных секций; подсобные помещения размещают в соседних секциях, отделенных от зала лестничной клеткой, а моечные привязаны к сети водопровода жилого дома. Такое планировочное решение усложняет взаимосвязь отдельных помещений. Загрузочные люки для продуктов наиболее рационально размещать в торцах здания с устройством тупиковых разгрузочных площадок, что дает возможность изолировать тротуар вдоль дома от разгрузочных операций и не мешать пешеходному движению.
В сети торгово-бытового обслуживания все шире применяют торговые центры. Это комплексы, объединяющие различные предприятия торговли, общественного питания и бытового обслуживания.
В состав торгового центра входят такие предприятия общественного питания, как рестораны, столовые, кафе, специализированные предприятия, магазины кулинарии.
При проектировании торгового центра необходимо размещать предприятия общественного питания так, чтобы к ним был свободный доступ как с улицы, так и из внутренних помещений.
Все предприятия общественного питания торгового центра должны обслуживаться единым комплексом цехов, складских, технических и административно-бытовых помещений. Блок предприятий общественного питания может размещаться в отдельно стоящем здании или кооперироваться в одном здании с другими предприятиями и учреждениями торгового центра.
Планировочные решения предприятий общественного питания при гостиницах должны соответствовать основным требованиям проектирования общегородской сети, а также удовлетворять следующим условиям: обеспечивать питанием всех проживающих в гостинице; вести обслуживание в номерах; обслуживать население района, города. Эти условия должны найти отражение в планировочных решениях: связь ресторана с этажами гостиницы осуществляется посредством специальных лифтов, вход в зал предусматривается как из гостиницы, так и через вестибюль с улицы.
Планировочные решения предприятий общественного питания по месту работы и учебы населения должны удовлетворять тем же требованиям, что и общедоступные предприятия. Вместе с тем особенность организации их работы — большие потоки потребителей в обеденный перерыв, студентов и учащихся в перемену. Поэтому для ускорения обслуживания большое значение имеет правильное планировочное решение раздач. Данные предприятия могут размещаться как в отдельно стоящих зданиях, так и занимать часть зданий иного назначения. Блоки питания, встроенные в многоэтажные здания, могут размещаться на нескольких этажах.
В условиях индустриализации общественного питания большое значение придается проектированию и строительству специализированных предприятий быстрого обслуживания, планировочные решения которых должны учитывать: работу предприятий на полуфабрикатах высокой степени готовности, кулинарных изделиях и готовых блюдах, централизованно вырабатываемых заготовочными предприятиями общественного питания (предприятиями пищевой промышленности); обеспечение рационального распределения общей площади предприятия за счет сокращения площадей коридоров, многофункционального использования подсобных помещений, объединения помещений одинакового назначения; с целью ускорения обслуживания потребителей предусматривать рациональную организацию рабочих мест буфетчиков (барменов).

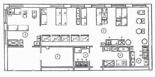
Рис. 5.5. План кафе на 150 мест:
1 — вестибюль с гардеробом и туалетами для потребителей; 2 — зал; 3 — горячий цех; 4 — холодный цех с помещением для резки хлеба; 5 — моечная кухонного инвентаря и полуфабрикатной тары; 6 — моечная столовой посуды; 7 — помещение заведующего производством; 8— буфет; 9 — раздача; 10 — охлаждаемые камеры с тамбуром; 11 — кладовые и моечная складской тары; 12 — загрузочная; 13 — служебные помещения и кладовая инвентаря; 14 — подсобное помещение буфета; 15 — помещение персонала; 16, 20 — гардеробы, душевые и туалеты персонала; 17 — бельевая; 18 — радиоузел; 19 — технические помещения.

Рис. 5.6. План кафе детского на 150 мест:
1,2 — вестибюль, гардероб и туалеты потребителей; 3 — залы; 4 — помещение для игр; 5 — служебные помещения; 6 — горячий цех; 7 — холодный цех с помещением для резки хлеба; 8, 9, 10, 11 — складские помещения с загрузочной площадкой, 12 — моечная кухонного инвентаря и полуфабрикатной тары; 13 — моечная столовой, 14, 15 — гардеробы, душевые и туалеты для персонала; 16 — бельевая; 17 — кладовая инвентаря; 18,19 — технические помещения.

Специализированные предприятия общественного питания рекомендуется размещать во встроенных, пристроенных или отдельно стоящих зданиях.
Примеры объемно-планировочных решений различных типов предприятий общественного питания представлены на рис. 5.3— 5.9.

Рис. 5.3. План фабрики полуфабрикатов, кулинарных и кондитерских изделий мощностью 15т сырья в сутки:
а — план первого этажа: 1, 2 — магазин кулинарии с подсобным помещением; 3 — моечная тары кондитерского цеха; 4, 5 — экспедиция с боксами; 6— моечная полуфабрикатной тары; 7 — камера отходов; 8— загрузочный бокс; 9 — комната кладовщика; 10 — помещение загрузочной; 11 — охлаждаемые камеры; 12 — кладовая кондитерских изделий; 13 — овощной цех; 14 — гардероб верхней одежды персонала; б — план второго этажа: 1 — гардеробы, душевые, туалеты персонала; 2 — технические помещения; 3,4 — рыбный цех; 5,6—птице-гольевой цех; 7,8,9— мясной цех; 10— охлаждаемые камеры; 11— кладовая тары; 12, 13— кладовые белья, инвентаря; 14— дефростеры; 15— мастерская, 16, 17—служебные помещения; в — план третьего этажа: 1 — помещения столовой персонала; 2— технические помещения; 3 охлаждаемые камеры; 4 — комната заведующего производством; 5 — помещения кондитерского цеха; 6 — кладовая сухих продуктов; 7 — лаборатория; 8 — помещение персонала; 9 — помещение общественных организаций; 10 — санчасть; 11 — радиоузел.

Рис. 5.4. План общедоступной столовой, работающей вечером как кафе, на 200 мест:
а — первого этажа: 1, 2 — магазин кулинарии с подсобным помещением; 3, 7, 13, 19, 24, 32— технические помещения; 4— тамбур; 5, 6— вестибюль с гардеробом и туалетами для потребителей; 8, 9 — гардероб с душевыми для персонала; 10 — бельевая; 11 — гардероб официантов; 12 — кладовая инвентаря; 14 — помещение слесаря-механика; 15 — контора; 16 — кладовая и моечная тары; 17— коридоры; 18 — туалеты персонала; 20, 21, 22, 23 — охлаждаемые камеры с тамбуром; 25 — кладовая сухих продуктов; 26— загрузочная; 27, 28, 29— кладовые; 30— овощной цех; 31 — камера отходов; 33 — мясо-рыбный цех; 34 — помещение подготовки яиц; 35 — помещение отделки мучных кондитерских изделий; 36 — моечная тары; 37— кондитерский цех; б — план второго этажа: 1 — зал с раздеточной; 2, 3 — буфет с подсобным помещением; 4 — техническое помещение; 5 — кабинет директора; 6 — помещение персонала; 7 — помещение суточного запаса продуктов; 8 — холодный цех; 9 — коридор; 10 — радиоузел; 11 — главная касса; 12 — помещение официантов; 13 — помещение для резки хлеба; 14 — горячий цех; 15 — моечная кухонного инвентаря; 16 — сервизная; 17 — моечная столовой посуды.
Первый комплекс
| 50 |
Баклажаны, нарезанные кружочками (консервы) |
50 | 1,0 | 8,0 | 5,0 | 376 | 90 | 400 |
| 235 |
Суп-лапша домашняя |
250 | 4,5 | 6,0 | 14,0 | 556 | 133 | 400 |
| 690/863 |
Голубцы с мясом и рисом (соус сметанный) |
216/100 | 20,6 | 28,4 | 26,7 | 1851 | 443 | 400 |
| 986 |
Яблоки печеные |
75 | — | — | 26,0 | 105 | 439 | 400 |
| 1010 |
Чай с лимоном |
200/15/7 | 0,1 | — | 15,2 | 59 | 247 | 400 |
| |
Хлеб пшеничный, ржаной |
60/40 | 9,0 | 2,4 | 58,4 | 280 | 1170 | 400 |
| Итого |
35,2 | 44,8 | 145,3 | 1110 | 4639 | |||
План предприятия «котлетная» на мест

Рис. 5.9. План винного бара на 18 мест:
1 — барная стойка для установки кофеварки, 2 — барная стойка основная, 3 — барная стойка для установки холодильника, 4 — барная стойка короткая, 5 — барная стойка для хранения бутылок, 6 — пристенные секции, 7 — моечные ванны, 8 — производственный стол, 9 — холодильный шкаф, 10 — сиденья барные, 11 — обеденный стол, 12 — стул.
Основными строительными параметрами зданий считаются: шаг опор (сетка колонн) и высотные габариты, привязка элементов конструкций к координационным осям и т.п.
Сетка колонн в залах предприятий для обычных условий строительства должна, как правило, приниматься при вместимости зала: до 100 мест — 6 х 6 м, от 100 до 200 мест — 6 х 6, 6 х 7,2; от 200 до 300 мест — 7,2 х 7,2, 6 х 9 м; свыше 300 мест — 6 x 9, 9 x 9, 6 х 12 м.
При строительстве одноэтажных зданий специализированных предприятий общественного питания можно применять архитектурно-конструктивную схему сборно-разборных зданий павильонного типа с облегченным металлическим каркасом и многослойными стеновыми панелями, а также капитальных зданий из металлических, деревянных и других легких конструкций.
Контрольные вопросы и задания.
- Какова цель планировки здания?
- Какими факторами определяется объемно-планировочное решение предприятия?
- Что относится к экономическим требованиям проектирования?
- Где могут размещаться предприятия общественного питания по своему градостроительному положению?
- Какие существуют планировочные схемы для заготовочных предприятий и предприятий, работающих на сырье?
- Сформулируйте рекомендации для размещения помещений в многоэтажных зданиях?
- Как удобнее разместить помещения предприятия общественного питания в торговых центрах, в зданиях гостиницы?
Планировочные решения помещений в соответствии с их функциональным назначением
Глава 4
ПЛАНИРОВОЧНЫЕ РЕШЕНИЯ ПОМЕЩЕНИЙ В СООТВЕТСТВИИ С ИХ ФУНКЦИОНАЛЬНЫМ НАЗНАЧЕНИЕМ
Помещения предприятий общественного питания в зависимости от типа предприятия, его мощности, характера производства и формы обслуживания объединяют в функциональные группы.
На предприятиях общественного питания, работающих на сырье, производственный процесс складывается из следующих стадий: прием и хранение сырья; производство кулинарных полуфабрикатов и обработка отдельных видов сырья; производство кулинарной продукции и оформление блюд; реализация продукции и обслуживание потребителей. В связи с этим все помещения объединяют в следующие функциональные группы: для приема и хранения продуктов; для механической кулинарной обработки сырья и производства полуфабрикатов; для производства кулинарной и кондитерской продукции (мучных изделий); для потребителей; служебные, бытовые и технические помещения.
На предприятиях общественного питания, работающих на кулинарных полуфабрикатах (доготовочные предприятия), из производственного процесса исключают производство полуфабрикатов. В связи с этим помещения доготовочных предприятий объединяют в следующие функциональные группы: для приема и хранения продуктов и полуфабрикатов; для холодной доработки полуфабрикатов и обработки зелени, фруктов, ягод и овощей, поступающих на предприятия в виде сырья, а также солений; для производства кулинарных и мучных изделий; для потребителей; служебные, бытовые и технические помещения.
На заготовочных предприятиях, производственный процесс которых состоит из стадий приема и хранения сырья, производства полуфабрикатов, кулинарных и кондитерский изделий, передачи, временного хранения и отправки полуфабрикатов, кулинарных и кондитерских изделий в доготовочные предприятия и магазины кулинарии, все помещения объединяют в следующие функциональные группы: складские; производственные; административно-бытовые; подсобные.
Функциональные группы помещений, в свою очередь, состоят из ряда отдельных помещений. При разработке планировочных решений предъявляют определенные требования научной организации труда как к функциональным группам помещений в целом, так и к отдельным помещениям, входящим в их состав, к технологическим процессам, размещению оборудования и механизации по-грузочно-разгрузочных работ.
Подсобные помещения
4.5. ПОДСОБНЫЕ ПОМЕЩЕНИЯ
Эти помещения предназначены для хранения уборочного инвентаря, мусора и сушки спецодежды.
Помещения для хранения, мытья и сушки уборочного инвентаря и дезинфицирующих средств предусматривают на каждом этаже предприятия раздельно для производственных и складских помещений, для санитарных узлов. Помещения оборудуют поливочными кранами с трапом и регистром для сушки. Площадь помещения составляет 6-8 м2.
Сушку спецодежды осуществляют в специальном помещении, оборудованном вытяжной вентиляцией. Площадь помещения составляет 6 — 9 м2. Помещение располагают в подвальном, цокольном или первом этаже здания со стороны хозяйственного двора или боковых фасадов здания.
В предприятия общественного питания часть продуктов поставляют в бумажной одноразовой упаковке (пакеты, кульки, коробки, ящики и т.д.). В процессе работы образуются различные вторичные отходы: металлические консервные банки, жестяные крышки, пробки, тарелки из алюминиевой фольги; происходит бой посуды, оборотной и одноразовой стеклянной тары, нестандартных бутылок и банок импортного производства и т.д.
В процессе работы образуется бытовой мусор с высокой степенью пищевых примесей.
Действующая в настоящее время технология утилизации наносит непоправимый ущерб окружающей среде — как социальный, так и экономический.
Соблюдение технологии удаления мусора обязательно для обеспечения успешного функционирования всего предприятия. Поэтому еще в ходе проектирования должны быть согласованы основные положения этой технологии с предприятиями по санитарной очистке города. Для снижения удельного веса ручного труда необходимо применять контейнеры для мусора. Хранят контейнеры в камере пищевых отходов в предприятиях с числом мест свыше 100; в заготовочных предприятиях рекомендуется устраивать отдельное помещение для хранения мусора, располагаемое смежно с камерой пищевых отходов. Площадь кладовой сухого мусора составляет 10— 12 м2. Это помещение должно находиться со стороны хозяйственного двора с выходом наружу и в производственный коридор предприятия.
При проектировании хозяйственной зоны предусматривают проезды для автотранспорта, мощеный хозяйственный двор, отдельно стоящие павильоны и навесы для дополнительного хранения тары и топлива, противопожарные емкости, здания и сооружения инженерного хозяйства, мусоросборники; желательно озеленение хозяйственной зоны. Площадка хозяйственного двора должна обеспечивать непосредственный подъезд автотранспорта ко всем местам разгрузки и погрузки, разворот его (при тупиковом размещении хозяйственного двора), объезд стоящей у основной разгрузочной площадки автомашины. При вместимости предприятий более 150 мест, а также для заготовочных предприятий допускается устройство сквозного проезда через хозяйственный двор.
При планировке участка желательно, чтобы объекты хозяйственной зоны не граничили непосредственно с площадками отдыха и летней посадки потребителей, а также с оживленными улицами и пешеходными проходами, в том числе ведущими к другим, расположенным рядом, общественным зданиям.
Размещение проездов, площадок и пешеходных дорожек на участке должно обеспечивать минимальную протяженность путей движения и противопожарный проезд к зданиям и сооружениям, исключать пересечение и сводить к минимуму совместное движение потоков потребителей и потоков хозяйственной зоны. Ширина автопроездов должна быть не менее 3,5м.
Автостоянки у предприятий питания устраивают при условии, что требуемая площадь не может быть учтена в общих автостоянках, находящихся на расстоянии не более 200 м от этих предприятий.
На участке предприятий питания предусматривают пешеходные дорожки шириной не менее 1 м, при двухстороннем движении — не менее 1,5 м.
Контрольные вопросы и задания.
1. Какие охлаждаемые камеры и кладовые входят в состав складских помещений?
2. Перечислите требования к размещению складских помещений в плане здания.
3. Назовите требования к размещению охлаждаемых камер в плане здания.
4. Каковы требования к размещению загрузочного помещения в зависимости от этажности здания?
5. Какие помещения входят в состав экспедиции?
6. Каковы требования к проектированию производственных помещений?
7. Как можно разместить технологическое оборудование в производственных цехах?
8. Что определяет монтажная привязка оборудования?
9. Каковы требования к планировке моечных столовой и кухонной посуды?
10. Каковы требования к размещению помещений для потребителей?
Помещения для потребителей
4.3. ПОМЕЩЕНИЯ ДЛЯ ПОТРЕБИТЕЛЕЙ
В эту группу помещений в зависимости от типа предприятия входят: залы, аванзалы, бары, буфет, магазин кулинарии, вестибюль, включая гардероб, умывальные и уборные, помещения для отдыха потребителей, кабинет врача, помещение для официантов, помещение для хранения музыкальных инструментов, помещение совета кафе (в молодежных кафе), помещение для игр (детское кафе) и помещение для отпуска обедов на дом.
Кроме общих залов предусматривают залы диетического и специального питания, банкетные залы при ресторанах и т.д. Проектируют также залы сезонного функционирования на террасах и верандах.
Помещения для потребителей располагают, как правило, в наземных этажах здания; при размещении выше третьего этажа предусматривают лифты для доставки потребителей. Входы и лестницы для потребителей на предприятиях с количеством мест 50 и более отделены от входов и лестниц для обслуживающего персонала.
Залы. Их размещают в наземных этажах здания со стороны главного или боковых фасадов здания. Входы для потребителей располагают преимущественно со стороны главного фасада, допускается — со стороны боковых фасадов и с угла здания. При самообслуживании входы для потребителей рекомендуется приближать к раздаточным для наименьшего пересечения потоков движения потребителей. У лестницы предусматривают свободную площадь для визуального осмотра зала и раздаточной линии.
Залы диетических столовых, закусочных, магазинов кулинарии, отпуска обедов на дом и предприятий быстрого обслуживания размещают преимущественно на первых этажах. Залы должны иметь естественное освещение с ориентацией на юг или хорошее искусственное освещение При недостаточном искусственном освещении зала по замыслу художника-оформителя предусматривают индивидуальное или экранированное освещение столиков.
Залы размещают на одном уровне с горячим и холодным цехами, моечной столовой посуды, а на предприятиях с обслуживанием официантами — с раздаточной, буфетом и сервизной.
Если производственные помещения в предприятиях самообслуживания располагаются на разных уровнях, связь с залами осуществляется при помощи наклонных конвейеров, а в предприятиях с обслуживанием официантами — при помощи подъемников и экскалаторов.
Это допускается лишь в исключительных случаях при использовании приспосабливаемых помещений, переводе предприятий на новую технологию, реконструкции или модернизации предприятия.
Залы должны иметь удобную связь с вестибюлем. В предприятиях с самообслуживанием предусматривают вход в зал непосредственно из вестибюля, в ресторанах — через аванзал. Аванзал предназначен для сбора гостей, ожидания освободившихся мест в зале. Размещают аванзал на одном этаже с залами. При вместимости зала 100 — 150 мест площадь аванзала принимают равной 15 м2. С увеличением числа мест на каждые последующие 50 мест в зале добавляют 5 — 10 м2.
В ресторанах и кафе с обслуживанием официантами 15 — 20 % проектируемого числа мест предусматривают для банкетных залов и боксов. Боксы вместимостью 4 — 12 мест проектируют открытыми одной или двумя сторонами в зал. Применение трансформирующихся перегородок между банкетными залами дает возможность организации единого объема, что позволяет варьировать их число и вместимость. Входы в банкетные залы целесообразно устраивать в стороне от входов в общий зал.
Для зданий ресторанов и кафе характерно создание единого пространства при выделении в нем функциональных зон — входной, обеденной и эстрадно-танцевальной.
Входная зона позволяет потребителю осмотреть зал, установить наличие свободных мест, принять решение по выбору места и определить путь перемещения.
Обеденная зона в зависимости от планировки зала определяется его размерами, формой и приемами расстановки мебели.
Залы большой вместимости разделяют панелями-экранами, декоративными решетками и растениями на отдельные группы столов. Помогают разделять пространство зала на обособленные секторы, создают камерность и интимность декоративные барьеры цветочницы с вмонтированными в них маленькими софитами.
Эстрадно-танцевальная зона в значительной степени определяет архитектурно-планировочную композицию зала. Танцевальная площадка служит, как правило, центром композиции зала и должна иметь хороший обзор.
Для этого ее поднимают (опускают) или подчеркивают соответствующей расстановкой мебели.
При вместимости залов 75 мест и более и обслуживании официантами в кафе и ресторанах предусматривают места для танцев и эстраду. В столовых, работающих вечером как кафе с обслуживанием официантами, днем место для танцев заполняют столиками, а эстраду предусматривают сборно-разборной. Площадь для танцев в залах на 75; 100 и 150 мест принимают соответственно 8; 12 и 16 м2. Минимальные габариты эстрады: длина — 2,5, ширина — 1,8, высота — 0,25-0,45 м. В кафе и ресторанах малой мощности допускается использовать для танцев главный проход, для чего его ширину увеличивают до 2,5 м. Танцевальная площадка может не примыкать к эстраде. Помещение для хранения музыкальных инструментов должно примыкать к эстраде или предусматривается удобный проход.
Площадь эстрады в кафе 7 м2, в ресторанах — не менее 12 м2, диаметр круглой эстрады для кафе составляет 3 м, для ресторанов — не менее 4,5 м.
Размещают эстраду и танцевальную площадку в месте, наиболее свободном от движения потребителей.
Планировочное решение зала должно способствовать быстрому обслуживанию потребителей, созданию удобств для обслуживающего персонала, обеспечению кратчайших и прямолинейных путей движения потребителей, официантов к потребителям, быстрой ориентации потребителей в зале и возможности применения средств механизации для транспортирования посуды из зала в моечную столовой посуды.
Выполнение этих условий возможно при правильно выбранной конфигурации зала. По форме плана обеденные залы различают прямоугольные, сложные и круглые.
Более экономична и рациональна прямоугольная форма зала с соотношением сторон от 1:1 до 1:3. Форма зала, близкая к квадрату, позволяет организовать кратчайшие пути движения потребителей. При большой вместимости залы могут иметь Г-образную, П-образную и другую форму плана.
Глубина обеденного зала в предприятиях с самообслуживанием может быть 6 м при размещении раздаточной линии на площади горячего цеха и не менее 9м — при размещении раздаточной линии на площади зала.
Длина залов определяется расстоянием от раздаточной до наиболее удаленных столиков. При самообслуживании это расстояние не должно превышать 20, а при обслуживании официантами — 30 м.
Важную роль в организации работы залов, формировании внутреннего пространства и создании комфортных условий для потребителей играет расстановка мебели; варианты расстановки мебели выбирают с учетом обеспечения оптимальных условий для потребителей и обслуживающего персонала. Размеры мебели и варианты ее расстановки определяются типом предприятия, формой обслуживания, вместимостью залов, размерами и планировочной схемой зала. Существует два основных варианта — геометрический и свободный. При первом варианте проходы между столами устраивают параллельно стенам с различными планировочными вариантами: в линию; по диагонали; в линию вдоль стен и по диагонали в середине.
В предприятиях с самообслуживанием и больших залах применяют линейную расстановку столов. В ресторанах или кафе с обслуживанием официантами мебель расставляют по свободной схеме с выделением зон обслуживания. Используют различные варианты столов с диванами, креслами или скамьями, применяя в композиционных приемах ограждающие стенки-экраны.
На выбор приема расстановки оборудования в зале влияют промежуточные опоры и расстояние между ними. Поэтому расстановку столов в залах рекомендуется начинать от колонн и проводить ее таким образом, чтобы обеспечить свободный проход потребителей и обслуживающего персонала к каждому месту, беспрепятственную эвакуацию людей из зала, а также транспортировку использованной посуды.
Варианты размещения мебели в торговых залах представлены на рис. 4.28.

Помещения для приема и хранения продуктов
4.1. ПОМЕЩЕНИЯ ДЛЯ ПРИЕМА И ХРАНЕНИЯ ПРОДУКТОВ
В группу помещений для приема и хранения продуктов на предприятиях, работающих на сырье и кулинарных полуфабрикатах, входят: складские помещения и экспедиция.
Складские помещения. В состав складских помещений входят: охлаждаемые камеры для хранения молочно-жировых продуктов; мороженого мяса; охлажденного мяса, птицы и субпродуктов; рыбы; солений и зелени; пищевых отходов; кладовые картофеля и овощей; кладовая сухих продуктов; кладовая тары; кладовая хлеба; кладовая упаковочных материалов; кладовая инвентаря; разгрузочная платформа склада с боксами; помещение кладовщика; помещение для выколачивания мешков.
На заготовочных предприятиях, работающих на полуфабрикатах, получаемых от промышленности, вместо охлаждаемых камер для мороженого и охлажденного мяса, птицы и субпродуктов, рыбы, картофеля и овощей предусматривают охлаждаемые камеры мясных полуфабрикатов, костей, полуфабрикатов из птицы и субпродуктов, рыбных и овощных полуфабрикатов.
Складские помещения размещают в подвальном, цокольном или первом этаже со стороны хозяйственного двора, в северной, северо-восточной или северо-западной части здания. Допускается размещение складских помещений в отдельно расположенных зданиях, соединяемых с основным зданием переходным коридором, а также в пристраиваемых помещениях.
Охлаждаемые камеры могут размещаться на вышележащих этажах здания, но при обязательном объединении камер в блоки с поэтажной накладкой охлаждаемых блоков. Охлаждаемые камеры, как правило, объединяют одним тамбуром глубиной не менее 1,6м. Отдельно размещаемые охлаждаемые камеры при расчетной температуре воздуха в них 2 °С и выше допускается проектировать без тамбуров.
При разности расчетных температур воздуха в охлаждаемых камерах 4 °С и менее перегородки между такими камерами следует проектировать без теплоизоляции; при этом теплоизоляционный слой стен камеры или блока камер должен быть на 15 см ниже уровня пола. Камеры должны быть размером в плане не менее 2,1 х 2,4 м и высотой не менее 2,6м.
На заготовочных предприятиях площадь охлаждаемых камер, за вычетом площади, занимаемой приборами охлаждения, не должна быть менее 6 м2. Высота этажа при устройстве в камерах подвесных монорельсовых транспортных путей не менее 4,2 м.
Кладовые продуктов и охлаждаемые камеры не следует размещать под моечными и санитарными узлами, а также под производственными помещениями с трапами.
Охлаждаемые камеры не допускается размещать рядом с помещениями котельных, бойлерных и душевых, а также над этими помещениями или под ними.
Не рекомендуется располагать охлаждаемые камеры под жилыми помещениями. При необходимости размещения охлаждаемых камер под жилыми помещениями перекрытие камер отделяют от междуэтажного перекрытия здания вентилируемой воздушной прослойкой.
Двери охлаждаемых камер и тамбуров должны иметь теплоизоляцию, резиновые уплотнители притворов, прижимные затворы и открываться в сторону выхода из камер. Ширина дверей должна быть 0,9 м; при использовании погрузчиков, контейнеров и поддонов — не менее 1,5 м.
Камеру пищевых отходов с тамбуром проектируют, как правило, на первом этаже здания с выходом через тамбур наружу и в помещение (коридор) предприятия общественного питания; 4 м2 площади камеры отводят под неохлаждаемое помещение.
Более удачный вариант — размещение камеры пищевых отходов в блоке с моечными кухонной и столовой посуды с выходом через тамбур наружу. При размещении последних на втором или выше этажах для вертикального перемещения отходов предусматривают грузовые лифты. Должны быть обеспечены подъездные пути к камере пищевых отходов. Камеру оборудуют разгрузочной площадкой размером 1,2 х 2 м.
Наружные двери камеры допускается размещать со стороны хозяйственного двора и в виде исключения с торцов здания, разумеется, только не под окнами залов и подальше от людских потоков.
Создание нормальных условий для хранения продуктов предусматривает соблюдение определенного режима и сроков хранения (табл. 4.1).
Таблица 4.1
Условия хранения основных продуктов
Загрузку кладовой сухих продуктов можно проводить также через люк в стене.
Складские помещения следует располагать компактно, обеспечивая при этом удобную взаимосвязь с производственными помещениями. На многих предприятиях общественного питания невозможно размещение всей функциональной группы складских помещений на одном уровне с производственными помещениями, в связи с чем возникает необходимость в устройстве подъемников для транспортировки продуктов по вертикали. У подъемников предусматривают разгрузочные площади размером: для грузовых лифтов грузоподъемностью 500 кг и более — 2,7 х 2,7 м; для малых грузовых лифтов грузоподъемностью 100 кг — 2,0 х 1,5 м, не считая ширины примыкающих производственных коридоров.
Подъемники размещают непосредственно на загрузочной. Помещение загрузочной целесообразно выполнять в форме «товарного шлюза», пригодного для приемки, складирования и выборочной проверки качества и массы продуктов. В помещении загрузочной устанавливают весы, на крупных предприятиях и заготовочных весы встраивают в пол. Для взвешивания туш и полутуш предусматривают весы непосредственно на подвесном пути.
Загрузочную размещают между охлаждаемыми и неохлаждаемыми складскими помещениями, в подвале или на 1-м этаже здания.
Если помещение загрузочной расположено в подвале, то сырье и продукты подают через специальный люк-спуск по пандусу при помощи наклонного транспортера или подъемника. Различают люки: с пандусами наклоном до 30°; с наклонными (до 45°) подъемниками; с вертикальными подъемниками тротуарного типа.
При люках с пандусами предусматривают лестницы для рабочих, сопровождающих грузы, шириной не менее 0,6 м и высотой прохода по лестнице не менее 1,6м. Ширина пандуса должна быть не менее 1,2 м, отверстие в стене над пандусом должно быть размером в свету не менее 1,2 м2.
Люки защищают от атмосферных осадков навесами. Крышки люков должны быть трудносгораемыми, и к ним должен быть обеспечен удобный подъем транспорта. На рис. 4.1 представлена планировка люка-спуска с пандусом.
При размещении на первом этаже загрузочные помещения должны примыкать к разгрузочной платформе и иметь двери, открывающиеся на разгрузочную платформу. Разгрузочную платформу проектируют шириной 2 м и высотой 12,1 м до уровня кузова автомашины. На платформу должна идти лестница шириной 0,9 м.
Платформу оборудуют подъемно-опускными механизмами для обеспечения приема грузов: уравнительной гравитационной площадкой УГП-1150, уравнительной стационарной площадкой ПУС-3000 или подъемным столом ПС-630.

Рис. 4.1. Планировка люка-спуска с пандусом: 1 — пандус; 2 — лестница для сопровождения груза; 3 — стол для приема грузов, 4 — грузовой лифт, 5— навес
Планировка помещений для приема и хранения продуктов представлена на рис. 4.2. Ширину платформы принимают в зависимости от грузооборота предприятия с учетом возможности проезда по ней грузового транспорта в двух направлениях и установки врезных весов и уравнительных площадок на уровне пола платформы, но не менее 4 м. Длину разгрузочной платформы принимают по расчету, но не менее 4,5 м на одно машино-место. Число разгрузочных мест следует принимать по данным, приведенным ниже.
| Число мест в залах |
Число разгрузочных мест |
| До 500 |
1 |
| От 500 до 1000 |
2 |
| От 1000 до 1500 |
3 |
Над разгрузочными платформами имеется навес, перекрывающий платформу не менее чем на 0,5 м.
В предприятиях общественного питания, размещаемых в жилых домах, зданиях учреждений и учебных заведений (во встроенных или встроенно-пристроенных к ним помещениях), разгрузочные платформы должны находиться в крытых помещениях или под навесами. Крытые помещения могут быть неотапливаемыми.
На заготовочных предприятиях прием сырья и вывоз полуфабрикатов и готовой продукции осуществляют в закрытых отапливаемых или неотапливаемых помещениях-дебаркадерах или боксах, оборудованных уравнительными площадками.
При реконструкции, когда нет возможности предусмотреть помещения-дебаркадеры, допускается пристройка разгрузочных платформ с навесами.
Дебаркадеры состоят из боксов, оборудованных уравнительными площадками. Размеры бокса в плане рассчитывают на установку в нем автомашины с примыканием заднего борта к разгрузочной платформе. Необходимый зазор между тремя остальными плоскостями автомашин и сооружением принимают равным 0,5 м с каждой стороны.
Допускается устройство дебаркадеров в виде пилообразных зубцов по краю платформы. Оптимальные размеры зубчатой разгрузочной платформы: минимальная ширина — 3 м, размеры катетов зубков: минимальный — 3,5 м, максимальный — 4 м. На рампу с участка должна вести лестница шириной 0,9 м.
Помещения боксов в дебаркадерах оборудуют вытяжной вентиляцией, а ворота в них защищают воздушно-тепловой завесой. Разгрузку овощей осуществляют в самостоятельном боксе при кладовой овощей. Схема механизации разгрузки картофеля и овощей должна учитывать возможность доставки их в контейнерах, мягкой таре (мешках, сетках и др.), россыпью (в период заготовки).

Рис. 4.2. Планировка помещений для приема и хранения продуктов: 1 — ленточный транспортер, 2 — врезные весы, 3 — грузовая тележка, 4 — товарные весы, 5 — колесный поддон, 6— подтоварники, 7 — стеллажи, 8 — моечная ваннаЧисло разгрузочных мест для автотранспорта принимают в зависимости от мощности предприятия (табл. 4.2).
Таблица 4.2
Число загрузочных мест на заготовочных предприятиях
| Мощность заготовочного предприятия по переработке, т сырья/смену |
Число разгрузочных мест на предприятиях |
|
| с первичной обработкой сырья |
без первичной обработки |
|
| До 10 |
1—2 |
1 |
| От 10 до 15 |
2—3 |
2 |
| От 15 до 25 |
3—4 |
2—3 |
| От 25 до 40 |
4—6 |
3—5 |
Планировка разгрузочной платформы с боксами в заготовочном предприятии представлена на рис. 4.3.
Продукты, поступающие в складские помещения, хранят на подвесных путях (заготовочные предприятия), металлических балках, в таре на подтоварниках, стеллажах, поддонах и в контейнерах.
Для хранения мяса в камерах предусматривают подвесные пути или балки с крючьями лужеными или из нержавеющей стали, или легко моющиеся стеллажи. Туши не должны соприкасаться между собой, со стенами и полом помещения.
Мороженую и охлажденную птицу, субпродукты хранят в таре, в которой они поступили, на подтоварниках. При укладке ящиков штабелями на подтоварниках для улучшения циркуляции воздуха между ящиками прокладывают деревянные рейки.
Рыбу хранят в таре, в которой она поступила, и устанавливают штабелями на подтоварнике.
Колбасы хранят подвешенными на луженых крючьях.
Молоко и кисломолочные продукты хранят в металлических флягах или бочках; доставляемые в бутылках или пакетах — в металлических и пластмассовых ящиках, устанавливаемых на подтоварники.

Рис. 4.3. Планировка разгрузочной платформы с боксами в заготовочном предприятии мощностью 25 т сырья в смену: 1 — боксы, 2 — разгрузочная платформа
Сыры хранят на деревянных стеллажах. Головки сыра не должны соприкасаться, поэтому между ними прокладывают картон или фанеру.
Яйца хранят в ящиках, в которых они поступили, или выложенными на лотки.
Сливочное масло хранят в таре или брусками, завернутыми в пергамент, уложенными на полки стеллажа с прокладкой картона или фанеры.
Овощи хранят в закромах слоем не выше 1,5 м и в ларях; квашеные — в бочках; зелень — разложенной на стеллажах, ягоды — в решетах на стеллажах.
Сыпучие и сухие продукты хранят в ларях с крышками или в мешках и ящиках на стеллажах и подтоварниках. Мешки укладывают штабелями — не более восьми мешков по высоте.
Консервы, соки, прохладительные напитки и винно-водочные изделия хранят в заводской упаковке — в ящиках, установленных на подтоварники.
Минеральную воду в бутылках хранят в горизонтальном положении на стеллажах.
На заготовочных предприятиях овощи хранят в бункерах вместимостью 3—5 т.
Сульфитированный картофель хранят в металлических ящиках, флягах или функциональных емкостях.
Очищенный картофель для текущей реализации в кулинарном цехе — в бидонах или флягах с водой.
Очищенные корнеплоды и другие овощи хранят в фанерных ящиках, корзинах, мешках из полиэтиленовой пленки, алюминиевых контейнерах с крышками или в другой таре массой брутто не более 20 кг, обеспечивающей сохранность качества.
При использовании тары без крышек корнеплоды и другие овощи на время хранения и транспортирования покрывают белой чистой влажной тканью, чтобы не подсыхала и не темнела поверхность овощей.
Кулинарные полуфабрикаты хранят в охлаждаемых камерах. Они поступают на предприятие в функциональных емкостях. Хранят кулинарные полуфабрикаты без перекладывания в передвижных контейнерах.
Вместимость кладовых зависит главным образом от выбранного метода штабелирования. В предприятиях общественного питания преобладает очередное штабелирование. При этом продукты штабелируют рядом один с другим и один над другим по обеим сторонам прохода. Необходимые продукты отбирают со стеллажей и подтоварников вручную, в предприятиях большой мощности и заготовочных — со стеллажей для поддонов с помощью тележек с подъемным устройством или штабелеров. Расстановка оборудования должна быть линейной.
Планировка кладовой столовой для хранения сухих продуктов представлена на рис. 4.4. Ширину проходов между линиями рекомендуется принимать по табл. 4.3.
Таблица 4.3
Ширина проходов в складских помещениях
| Проход |
Ширина прохода, м, не менее |
|
| при немеханизированной доставке (стеллажи, тележки, контейнеры) |
при доставке погрузчиками |
|
| Между рабочим фронтом оборудования и стеной |
1,5 |
2,5 |
| Между двумя рабочими фронтами оборудования |
2,5 |
3,5 |
| Между рабочим фронтом оборудования и стеной с охлаждаемыми батареями |
1,9 |
3,0 |
Доставка продуктов в помещение для хранения должна быть механизирована. При выборе средств механизации предусматривают совместное использование напольного аккумуляторного транспорта и ручных тележек.
Ручные тележки грузоподъемностью от 50 до 1000 кг (ГТ-50, ТГ-125, ТГ-1000) применяют для горизонтального перемещения грузов на небольшие расстояния.
Ручные грузовые тележки с гидравлическим подъемом вил ТГВ-5000 используют для транспортировки грузов на поддонах и в таре-оборудовании. Тележку с опущенными вилами подводят под тару-оборудование или поддон, и после нескольких качаний рукояткой тележки подъемное устройство приподнимает раму с вилами, а вместе с ней и груз на высоту не менее 125 мм. На месте разгрузки после выключения подъемного механизма рама с вилами плавно опускается до крайнего нижнего положения и тележка свободно выкатывается из-под тары-оборудования или поддона.
Можно использовать также полуподвижный поддон ППВ-250 с водилом, который представляет собой металлическую сварную раму из уголковой стали с деревянным настилом.

Рис. 4.4. Планировка кладовой столовой для хранения сухих продуктов: 1 — стеллаж, 2 — подтоварник
В зависимости от методов доставки и хранения картофеля (навалом, в контейнерах, мешках и сетках) предусматривают различные методы механизации погрузочно-разгрузочных работ.
При доставке в контейнерах картофель разгружают с автомашины аккумуляторным погрузчиком или подвесным краном-балкой.
Если картофель поступает навалом, а храниться будет в контейнерах, то его выгружают в приемный бункер, врезанный в платформу, а затем подают наклонным конвейером в подставленный передвижной контейнер.
Если картофель хранят в бункерах вместимостью 3—5 т, то их полностью заглубляют в почву, а затем с помощью наклонного конвейера подают картофель в цех непосредственно на линию очистки картофеля.
Мешки, ящики или сетки с картофелем или корнеплодами укладывают либо на поддоны для транспортировки погрузчиком или тележкой ТГВ-5000, либо на полуподвижные поддоны ППВ-250.
Сухие продукты и напитки поступают в предприятия общественного питания в ящиках или мешках, которые устанавливают на поддоны и перевозят погрузчиками в кладовые.
Если высота помещения менее 4 м, то для складирования поддонов в стеллажи применяют аккумуляторные погрузчики, а не подвесные краны-штабелеры.
В этом случае ширина прохода между стеллажами должна составлять не менее 25 м.
В заготовочных предприятиях общественного питания муку можно хранить, просеивать и доставлять к месту потребления бестарным способом.
Установка для хранения, просеивания и доставки муки к месту потребления бестарным способом включает виброемкость, внутри которой расположен бункер на 8—11 т муки и вибросито. Мука поступает по трубе в бункер при закрытой заслонке вибросита. Выгрузка и просеивание муки обеспечиваются в результате вибрации виброузла. Просеянная мука с вибросита подается в дежу тестомесильной машины, которая откатывается через платформу товарных весов. Если виброемкость установлена вне помещения, мука от вибросита подается в цех по прутковому шнековому транспортеру, соединенному с виброситом брезентовым рукавом.
Вследствие использования бестарного способа перевозки и хранения муки сокращается применение тяжелого труда при погрузочно-разгрузочных работах, просеивании и доставке ее к месту потребления.
Рекомендуемое число электропогрузчиков в зависимости от мощности заготовочного предприятия приведено ниже.
| Мощность заготовочного предприятия, т сырья/смену |
Число электропогрузчиков |
| 10—15 |
2 |
| 15—25 |
4 |
| 25—40 |
6 |
Кладовые тары, упаковочных материалов и инвентаря оснащают подтоварниками, стеллажами и шкафами для хранения принадлежностей для сервировки, посуды, белья, средств для чистки, упаковочных материалов и др. Укладку и выдачу товаров осуществляют вручную. Помещения должны быть хорошо вентилируемыми с искусственным освещением. Если отсутствует достаточная площадь или же если расположение кладовых по отношению к местам потребления (производственные и служебные помещения) недостаточно удобно, то допускается устройство в проходах и коридорах встроенных шкафов.
Помещение для выколачивания мешков оборудуют специальным комплектом устройств для их очистки от мучной пыли и тестовой корки, которые устанавливают в отдельном помещении, расположенном у наружной стены. Это помещение по взрывной и взрывопожарной опасности относится к категории «Б», поэтому его следует проектировать с тамбуром.
Основная часть продуктов поступает в предприятия общественного питания упакованной в одноразовую или многооборотную тару, которую по мере высвобождения и санитарной обработки отправляют на хранение в кладовую тары. Кладовая тары представляет собой помещение, защищенное от атмосферных воздействий. В ней предусматривают условия для ремонта многооборотной тары и хранения вплоть до вывоза одноразовой тары.
При размещении оборудования в складских помещениях и определении маршрутов перемещения сырья, полуфабрикатов и готовой продукции необходимо выполнение следующих основных требований:
обеспечение прямолинейности движения сырья, полуфабрикатов и готовой продукции между участками и рабочими местами с применением средств механизации;
сокращение продолжительности путей передвижения грузов;
уменьшение числа перевалок;
соблюдение предельно допустимых нагрузок на тележку, погрузчики или подъемники в соответствии с технологической документацией.
Преимущество отдается планировочному решению, при котором вертикальные и горизонтальные грузопотоки, а также протяженность людских потоков минимальны.
Для хранения документации и выполнения документальных операций по приемке и отпуску продуктов на предприятиях общественного питания выделяют помещение для кладовщика, которое должно быть отапливаемым, хорошо освещенным, иметь условия для хранения документации, спецодежды и мытья рук. Для кладовщика и грузчиков предусматривают самостоятельный выход из складских помещений помимо загрузочной площадки. Других выходов из складских помещений не устраивают, чтобы не допустить хищений. Используют двери с механическим приводом или обычные с шарнирной подвеской, открывающиеся вовнутрь.
Применение эвм в технологических расчетах
3.2. ПРИМЕНЕНИЕ ЭВМ В ТЕХНОЛОГИЧЕСКИХ РАСЧЕТАХ
Использование ЭВМ для определения пищевой ценности блюд и количества продуктов. При разработке комплексных меню завтраков, обедов и ужинов рассчитывают содержание в блюдах белков, жиров, углеводов и минеральных веществ, а также энергетическую ценность блюд. Поскольку такие расчеты очень трудоемкие, их рекомендуется осуществлять на ЭВМ. Вначале в память ЭВМ вводят наименования пищевых продуктов с присвоенными им кодами, содержание в них основных пищевых веществ (белков, жиров, углеводов, минеральных веществ и витаминов) и энергетическую ценность. Затем подготавливают информацию по каждой рецептуре блюда и по заданному количеству порций по каждому блюду в отдельности.
При подготовке этой информации каждую рецептуру блюда записывают в четыре строки: в первой строке указывают номер рецептуры блюда, номер варианта блюда, число наименований продуктов и количество блюд данного вида; во второй — коды наименований пищевых продуктов, входящих в рецептуру блюда; в третьей — нормы расхода продуктов по массе брутто (или нетто, если блюдо готовят из полуфабрикатов) для определения количества продуктов; в четвертой — нормы расхода продуктов по массе нетто для определения пищевой и энергетической ценности блюда. Нормы продуктов должны быть записаны в целых единицах; десятые и сотые доли граммов округляют до целых по правилам округления. Номер варианта блюда записывают в связи с тем, что одно и то же блюдо может быть приготовлено из различных наборов продуктов.
В качестве примера расчета на ЭВМ дана рецептура № 198 «Щи зеленые». Нормы расхода продуктов по массе брутто и нетто приняты по III колонке Сборника рецептур блюд (1981 г.).
Масса одной порции 500 г; картофель, лук репчатый, говядина — полуфабрикаты. Количество блюд 500.
Применение пэвм в технологических расчетах
3.10. ПРИМЕНЕНИЕ ПЭВМ В ТЕХНОЛОГИЧЕСКИХ РАСЧЕТАХ
Весь комплекс технологических расчетов, необходимых при проектировании предприятий общественного питания, можно осуществить на персональных ЭВМ (ПЭВМ). В РЭА им. Г.В. Плеханова разработан Л.А. Жуковской пакет программ для ПЭВМ типа «Атари», «Искра-326» и «Искра -1030». Особенность и преимущество этих программ — возможность использования их для работы на ПВМ при отсутствии доступа к внешней памяти, а также при необходимости выполнения не всего комплекса расчетов, а только части их. Перечисленные ПЭВМ имеют встроенную систему «Бейсик».
Работа на ПЭВМ складывается из следующих этапов: четкая формулировка задачи на профессиональном языке, математическая ее постановка, т.е. представление в виде уравнений, соотношений, ограничений и т. д.; выбор метода решения; разработка алгоритма на основе выбранного метода; выбор структуры данных; программирование, т.е. запись разработанного алгоритма на языке программирования; тестирование и отладка программы, т.е. проверка ее правильности и исправление обнаруженных ошибок; расчет по готовой программе и анализ результатов. Разработаны следующие программы для проведения технологических расчетов на ПЭВМ: составление производственной программы предприятия; определение количества продуктов, численности производственных работников, необходимого количества единиц оборудования (теплового, механического, холодильного, вспомогательного), площадей помещений.
Пользуясь перечисленными программами, можно полностью рассчитать курсовой и дипломный проекты на ПЭВМ.
Контрольные вопросы и задания.
- Что является производственной программой заготовочного предприятия и предприятия, работающего на сырье?
- Как определить число потребителей, обслуживаемых за 1 ч, за день?
- Как рассчитать общее количество блюд, реализуемое за день?
- Что характеризует коэффициент потребления блюд?
- Какие бывают виды меню?
- Каков порядок написания блюд в меню для различных типов предприятий общественного питания?
- Каков порядок подбора данных для определения пищевой ценности блюд при использовании ЭВМ?
- По каким показателям может быть проведен расчет расхода сырья и полуфабрикатов?
- Какие существуют методики расчета площадей складских помещений.
- В каких технологических расчетах используют таблицы реализации блюд?
- По каким нормативам рассчитывают численность производственных работников?
- От каких показателей зависит число раздатчиков в предприятиях с самообслуживанием?
- В каких случаях при расчете механического оборудования определяют требуемую производительность предполагаемой к установке машины, а в каких не определяют?
- По каким параметрам рассчитывают полезный объем холодильного шкафа?
- Для каких целей строят график работы пищеварочных котлов?
- Какое оборудование называют вспомогательным?
- Охарактеризуйте состав раздаточного оборудования для предприятий с обслуживанием официантами и самообслуживанием.
- Опишите методику расчета площадей помещений, входящих в состав предприятия.
- По каким показателям рассчитывают технический уровень проектируемого предприятия?
Проектирование и принципы размещения общедоступных предприятий общественного питания
Проектирование и строительство общедоступных предприятий общественного питания осуществляют на основе СНиП 2.07.01— 89 «Планировка и застройка городов, поселков и сельских населенных пунктов. Нормы проектирования».
Предприятия общественного питания городской застройки и сельских населенных пунктов должны располагаться с учетом градостроительных параметров расселения, системы транспортных магистралей и размещения производственных, культурно-бытовых объектов и сооружений.
Общую потребность в сети общедоступных предприятий общественного питания на расчетный срок и на первую очередь строительства определяют по нормативным данным, приведенным в Методических указаниях по составлению перспективных планов (схем) развития и размещения сети предприятий розничной торговли и общественного питания в развитие генеральных планов городов (табл. 2.1).
Поскольку нормативы развития сети общедоступных предприятий общественного питания установлены в целом по городу, при обосновании необходимой проектной мощности предприятия учитывают: численность населения города в целом; район предполагаемого строительства проектируемого предприятия; систему размещения предприятия в структуре застройки города.
В современном градостроительстве размещение предприятий общественного питания обусловлено характером сложившейся системы расселения, планировочными и социально-демографическими условиями каждого конкретного города. Особое значение при этом приобретает решение проблемы взаимосвязи системы размещения со структурой расселения в городе и зоне его влияния и соответственно со структурой внутригородских транспортных связей.
Предприятия общественного питания рекомендуется размещать: на территории микрорайонов, жилых районов и комплексов, жилых кварталов (предприятия общественного питания местного значения); в центре города, общественных центрах планировочных районов (зон), городских административно-деловых, спортивных, культурных центрах, местах концентрации населения, связанной с большими транспортными потоками, крупными торговыми, культурными и просветительными предприятиями (универмаги, музеи, театры, дворцы культуры и т.п.), вблизи крупных транспортных узлов (предприятия городского значения).
Главная особенность размещения предприятий общественного питания заключается в том, что предусматриваемое деление на предприятия местного и городского значения не связывается с конкретными членениями территории, а образует единую гибкую (открытую) систему в городе в целом, построенную на учете общегородских связей и интересов населения, его пространственной мобильности. Соответственно и размещение предприятий общественного питания увязывают с общей пространственной структурой города так, чтобы предприятия местного значения, располагаясь на открытых (территориально не замкнутых) улицах и магистралях, дополняли систему предприятий городского значения и включались в общую архитектурно-пространственную структуру города.
Предприятия общественного питания местного значения, расположенные в жилой зоне, целесообразно размещать в структуре города с учетом системы расположения транспортных остановок там, где основные потоки населения переходят от транспортного к пешеходному движению по пути к месту жительства или работы. Такое размещение (с учетом обязательной пешеходной доступности остановок общественного транспорта) одновременно обеспечивает охват каждым предприятием обслуживаемой зоны в пределах пешеходной доступности 5—7 мин (400—500 м) независимо от границ микрорайонов. При этом полностью учитываются интересы проживающего населения.
Предприятиями общественного питания местного значения в соответствии с выполняемыми ими функциями являются: столовые, которые в вечерний период могут работать как кафе (ресторан); диетические столовые; магазины кулинарии с отделом заказов; предприятия по отпуску обедов на дом; специализированные предприятия общественного питания.
Предприятия городского значения (в зависимости от конкретных условий размещения) включают: рестораны; предприятия быстрого обслуживания; кафе, специализированные с организацией досуга по тематическим программам — молодежные, литературные и т. п.; крупные магазины кулинарии (в том числе фирменные) с отделами заказов.
К общедоступным предприятиям общественного питания относят предприятия, обслуживающие непосредственно население города и не связанные с обслуживанием контингента какого-либо определенного производственного предприятия, учебного заведения, учреждения или организации.
2. При расчете сети учитывают общедоступные предприятия общественного питания независимо от их ведомственной принадлежности (предприятия минторгов, урсов, орсов, военторгов, потребкооперации, министерств и ведомств).
3. В расчетах общей потребности в сети предприятий общественного питания учитывают общедоступные предприятия, входящие в состав заготовочных предприятий, размещаемых на селитебной территории города.
4. В городах-курортах и городах — центрах туризма потребность в сети предприятий общественного питания определяют по специальному расчету (сверх установленных нормативов исходя из планируемого количества отдыхающих и приезжающих, приказ Минторга СССР от 29 декабря 1984г. №340).
5. Предприятия общественного питания, предназначенные для обслуживания зрителей и посетителей спортивных сооружений, зрителей в учреждениях культуры и искусства, проживающих в гостиницах, мотелях, посетителей предприятий бытового обслуживания, пассажиров на вокзалах, пристанях, в аэропортах, размещаемых в их зданиях, рассчитывают по соответствующим главам СНиП или ведомственным нормам технологического проектирования; такие предприятия не включают в состав общедоступных предприятий общественного питания и не учитывают их при определении обеспеченности этой сетью населения города.
6. Нормативы расчета сети общедоступных предприятий общественного питания, кроме сети на курортах, не включают сезонную сеть, ее организуют дополнительно с учетом местных конкретных условий.
Таблица 2.2. Нормативы развития (на 1000 чел.) сети предприятий общественного питания
| Период времени | Число мест | Торговая площадь, м2 |
| На расчетный срок |
13 | 5 |
| На первую очередь |
10 | 3 |
2. Предприятия общественного питания, магазины кулинарии размещают в жилой зоне (микрорайоны, жилые районы, жилые комплексы, кварталы, межмагистральные территории и т.п.).
Потребность в предприятиях общественного питания городского значения определяют как разность между общей потребностью, рассчитанной для города в целом, и числом мест в предприятиях, размещаемых в жилой зоне. При расчете предприятий общественного питания городского значения рекомендуется учитывать внутригородскую миграцию населения — приезжающих из жилых районов с деловыми, культурно-бытовыми и другими целями, а также внутригородской транзитный пассажиропоток. В связи с этим вместимость предприятий общественного питания определяют индивидуально для каждого из предполагаемых мест сосредоточения потребителей с учетом всех конкретных градостроительных условий.
Общее количество мест распределяется между отдельными типами предприятий общественного питания в соотношении, указанном в табл. 2.3.
Таблица 2.3. Примерное соотношение мест в различных типах предприятий общественного питания
| Тип предприятия | Удельный вес мест, % | |
| на расчетный срок | на первую очередь | |
| Столовые диетические |
6 — 7 | 5 — 6 |
| Столовые |
12 — 16 | 20 — 24 |
| Рестораны |
30 — 35 | 25 — 30 |
| Кафе и закусочные |
40 — 45 | 40 — 45 |
| До 50 тыс. чел. |
15 — 20 |
| Свыше 50 до 100 тыс. чел. |
20 — 25 |
| Свыше 100 до 250 тыс. чел. |
25 — 35 |
| Свыше 250 до 500 тыс. чел. |
35 — 45 |
| Свыше 500 до 1000 тыс. чел. |
45 — 50 |
Примерное распределение сети специализированных предприятий по типам осуществляют в следующем соотношении (по числу мест) (%)
| Кафе |
30—35 |
| Закусочные |
20—25 |
| Предприятия быстрого обслуживания |
35—30 |
| Бары |
15—10 |
Общую потребность в сети предприятий общественного питания определяют по нормативным данным, приведенным в Методических указаниях по организации общественного питания в городских зонах массового отдыха населения крупнейших и крупных городов.
Сеть постоянно действующих предприятий общественного питания в городских зонах массового отдыха в целом по городу рассчитывают исходя из нормативов мест на 1000 человек населения с учетом обеспеченности его общедоступной сетью (табл. 2.4).
Таблица 2.4. Расчетные показатели постоянно действующих предприятий общественного питания
| Города с населением, тыс. чел. | Число мест на 1000 чел. населения с учетом степени обеспеченности общедоступной сетью, % | На перспективу (расчетный срок) | ||
| до 50 | 51 — 75 | 76 — 100 | ||
| Свыше 250 до 500 |
0,55 | 0,8 | 1,1 | 1,6 |
| Свыше 500 до 1000 |
0,7 | 1,1 | 1,4 | 1,8 |
В городе обеспеченность сетью общедоступных предприятий общественного питания составляет 50 %. При данной степени обеспеченности норматив мест на 1000 человек равен 0,7 (табл. 2.4).
Расчетное число мест в предприятиях общественного питания, расположенных в городских зонах массового отдыха, составит Р= 420 (600 • 0,7).
Необходимое число мест в предприятиях общественного питания в j-й городской зоне отдыха

где N — среднедневная численность отдыхающих в зоне, человек; Кк — коэффициент концентрации отдыхающих в часы пик; принимается равным 0,55; Кс — коэффициент спроса отдыхающих на услуги предприятий общественного питания, принимается равным 0,7; t — продолжительность одной посадки, принимается в среднем равной 20 мин (0,33ч); Т— продолжительность обслуживания отдыхающих в часы пик, принимается равной 3 ч; 0,85 — средний коэффициент загрузки зала.
Общее число мест в предприятиях общественного питания, расположенных в городских зонах массового отдыха населения крупнейших и крупных городов, распределяют между отдельными типами предприятий общественного питания в соотношении, указанном в табл. 2.5.
Таблица 2.5 Примерная структура типов предприятий общественного питания (по числу мест) в различных городских зонах массового отдыха, % к итогу
| Тип предприятия | Соотношение типов предприятий | |||||
| Вся сеть предприятий, размещенных | В том числе | |||||
| в общегородских парках культуры и отдыха | в экскурсионно-познавательных местах отдыха | постоянно действующих | сезонных | |||
| в общегородских парках культуры и отдыха | в экскурсионно- познавательных местах отдыха | в общегородских парках культуры и отдыха | в экскурсионно-познавательных местах отдыха | |||
| Столовая | — | 5 | — | 15—20 | — | — |
| Ресторан | 7 | 7 | 15—20 | 20—25 | — | — |
| Кафе(закусочная) | 70 — 75 | 70—75 | 70—80 | 50—55 | 70—75 | 80—85 |
| Бар | 6—10 | 3 | 5—10 | 5—10 | 10 | — |
| Буфет | 10—15 | 10—15 | — | — | 15—20 | 15—20 |
| Итого | 100 | 100 | 100 | 100 | 100 | 100 |
2. При организации сети постоянно действующих предприятий общественного питания в детских общегородских и районных парках крупнейших и крупных городов принимают следующее соотношение между типами предприятий (по числу мест): кафе и закусочные — 80—85 %, буфеты — 15—20 %.
Общую потребность в сети предприятий общественного питания на курортах определяют по нормативным данным. На 1000 человек расчетной численности населения города-курорта предусмотрено 70 мест на первую очередь строительства и 90 мест на расчетный срок для группы бальнеологических курортов, а также соответственно 100 и 120 мест для группы климатических.
Расчетная численность населения города- курорта складывается из численности местного населения и всех групп организованно и неорганизованно отдыхающих и принимающих лечение в пересчете на односменное пребывание (заезд) на курорте в месяц пик (июль, август) курортного сезона (май — октябрь).
Рекомендуемая структура сети общедоступных предприятий общественного питания приведена в табл. 2.6.
Таблица 2.6. Рекомендуемая структура сети общедоступных предприятий общественного питания на курортах, % к общему числу мест общественного питания
| Тип и специализация общедоступных предприятий общественного питания | Бальнеологические курорты | Климатические курорты | ||||
| Все предприятия | В том числе | Все предприятия | В том числе | |||
| постоянная сеть | сезонная сеть | постоянная сеть | сезонная сеть | |||
| Ресторан |
15 | 10 | 5 | 30 | 10 | 20 |
| Столовая |
50 | 40 | 10 | 20 | 15 | 5 |
| Кафе |
20 | 15 | 5 | 25 | 13 | 12 |
| Закусочная |
11 | 7 | 4 | 20 | 5 | 15 |
| Бар и прочие предприятия |
4 | 3 | 1 | 5 | 2 | 3 |
| Итого |
100 | 75 | 25 | 100 | 45 | 55 |
| Сеть: |
||||||
| специализированная |
15 | 10 | 5 | 25 | 15 | 10 |
| диетпитания |
50 | 40 | 10 | 20 | 15 | 5 |
| детского питания |
8 | 5 | 3 | 15 | 5 | 10 |
Вместимость предприятий общественного питания, размещаемых в зданиях железнодорожных, речных вокзалов, аэровокзальных комплексов и аэропортов, определяют в зависимости от пассажирского потока по табл. 2.7.
Таблица 2.7. Нормативы мест на предприятиях общественного питания при вокзалах и аэропортах
| Пассажирский поток вокзала, человек единовременно | Число мест в зале | Наименование предприятия общественного питания |
| Железнодорожных вокзалов: | ||
| 50 — 200 |
6 — 24 | Буфет |
| 300 |
31 | » |
| 500 |
45 | Кафе |
| 700 |
70 | » |
| 900 |
78 | » |
| 1500 |
125 | » |
| Свыше 1500 |
По заданию на проектирование | Буфет, кафе, ресторан |
| Речных вокзалов: | ||
| Свыше 100 до 400 |
20—10 | Буфет |
| 25 | Кафе | |
| Свыше 400 |
16—20 | Буфет |
| 20—30 | Кафе | |
| 100 | Ресторан | |
| Аэропортов: | ||
| 600 |
50 | Ресторан |
| 50 | Кафе | |
| 74 | Буфет | |
| 174 | ||
| 1000 |
50 | Ресторан |
| 100 | Кафе | |
| 132 | Буфет | |
| 282 | ||
| 1500 |
100 | Ресторан |
| 150 | Кафе | |
| 182 | Буфет | |
| 432 | ||
| 2000 |
150 | Ресторан |
| 200 | Кафе | |
| 238 | Буфет | |
| 588 |
При гостиницах размещают рестораны, кафе, бары, буфеты и столовые. Рестораны, кафе и бары используют для обслуживания проживающих в гостиницах, а также населения близлежащих районов; буфеты предназначаются в основном для обслуживания проживающих в гостинице, столовые — для питания обслуживающего персонала гостиниц. Вместимость залов ресторанов, кафе и баров равна количеству человек, проживающих в гостиницах. Однако с помощью соответствующих технико-экономических расчетов вместимость можно изменить.
Все предприятия общественного питания при гостиницах проектируют с общими помещениями для приемки и хранения продуктов, служебными, бытовыми, производственными и техническими помещениями.
Рестораны, кафе, бары и столовые рекомендуется располагать в зданиях, пристроенных к жилым зданиям гостиниц. Буфеты можно размещать и на жилых этажах гостиниц при обеспечении удобной связи для доставки в них продуктов из складских и производственных помещений и для удаления освободившейся тары.
в наиболее многочисленной смене) развития
Таблица 2.8
Нормативы (на 1000 работающих в наиболее многочисленной смене) развития сети общественного питания при предприятиях и учреждениях
| Обслуживаемый контингент |
Число мест |
|
| всего |
в том числе для диетического питания |
|
| Работающие на промышленных предприятиях производственных отраслей: |
|
|
| тяжелого, энергетического и транспортного машиностроения, общего машиностроения и т.д. |
260 |
60 |
| легкой, химической промышленности, энергетики и электрификации, строительных материалов, пищевой промышленности и т.д. |
250 |
50 |
| заготовительных, жилищно-коммунального хозяйства и бытового обслуживания, лесного хозяйства и т.д. |
220 |
45 |
| Работающие на производственных предприятиях непромышленных отраслей (здравоохранение, культура, финансы и т.д.) |
220 |
45 |
| Работающие на строительстве |
250 |
50 |
| Работающие на транспорте |
125 |
30 |
| Работающие в учреждениях |
200 |
40 |
Столовые-доготовочные можно размещать: в отдельно стоящих зданиях, соединенных с производственными корпусами подземными или наземными переходами, наземными галереями или коридорами; в зданиях, пристроенных к производственным корпусам, или в помещениях, встроенных в производственные корпуса. Во всех случаях столовые должны располагаться таким образом, чтобы удаленность залов от рабочих мест не превышала 300 м. Состав и площади помещений столовых-доготовочных производственных предприятий определяют в соответствии с Методическими указаниями о проектировании объектов общественного питания, работающих в условиях индустриальной технологии приготовления пищи, для разных типов производственных предприятий.
Кроме столовых при производственных предприятиях проектируют магазины по продаже полуфабрикатов, кулинарных и кондитерских изделий.
Рекомендуется предусматривать вход в магазины с предзаводской территории.
Число рабочих мест в магазине кулинарии на производственных предприятиях определяют по расчетному нормативу, установленному на 1000 работающих в наиболее многочисленной смене. Минимальная мощность магазина кулинарии на предприятиях с числом работающих от 500 до 1000 человек в наиболее многочисленной смене — два рабочих места, а на предприятиях с числом работающих до 10 тыс. человек на каждую тысячу работающих прибавляют одно рабочее место. На предприятиях, насчитывающих свыше 10 тыс. работающих в наиболее многочисленной смене, число рабочих мест в магазине кулинарии возрастает на одно рабочее место на каждые последующие 5 тыс. работающих.
На производственных предприятиях с числом работающих в наиболее многочисленной смене до 500 человек организуют постоянно действующий отдел полуфабрикатов или кулинарных, в том числе кондитерских, изделий. Размещают отделы в зале столовой или в специально выделенных местах по согласованию с санитарными органами и оснащают холодильными прилавками и шкафами.
Магазины кулинарии, работающие по методу самообслуживания, можно организовать на производственных предприятиях с числом работающих в наиболее многочисленной смене не менее 2 тыс. человек. На производственных предприятиях, работающих в одну смену, для расчета принимают общую численность работающих на предприятии.
Необходимое число мест в сети общественного питания при учреждении рассчитывают исходя из численности работающих с учетом явочного коэффициента и норматива развития сети (см. табл. 2.8).
На предприятиях общественного питания при учреждениях с численностью работающих 300 человек и более должно быть отведено не менее 20 % общего требуемого числа мест по нормативу для организации диетического питания.
Предприятия общественного питания при высших учебных заведениях проектируют в соответствии с ВСН 51—86 «Профессионально-технические, средние специальные и высшие учебные заведения. Нормы проектирования».
Для снабжения учащихся горячим питанием при общеобразовательных школах проектируют столовые, в вечерних школах — буфеты. Целесообразно, чтобы столовые работали на полуфабрикатах с доставкой их из заготовочных или базовых предприятий. Помещения столовых располагают в блоках помещений общешкольного назначения на первом этаже и соединяют утепленным переходом с учебными корпусами.
Вместимость залов столовых принимают такой, чтобы обеспечить завтраком в течение второй и третьей перемен учащихся первой смены, обедом и полдником — учащихся групп продленного дня после занятий, обедом — учащихся второй смены перед занятиями. Продолжительность приема пищи 35 мин. Вместимость залов столовых в общеобразовательных школах 350 мест на 1000 учащихся. При этом предусматривается, что во вторую (короткую) перемену завтраки получает одна партия учащихся, а в третью (большую) перемену — две.
Перечень и площади помещений столовых принимают в соответствии с ВСН 50—86 «Общеобразовательные школы и школы-интернаты. Нормы проектирования».
Для обеспечения учащихся профессионально-технических училищ и средних специальных учебных заведений горячим питанием проектируют столовые. Вместимость залов столовых принимают равной одной трети численного состава учащихся. Столовые работают, как правило, на полуфабрикатах; размещают столовые на первом этаже в составе помещений общешкольного назначения и соединяют их утепленными переходами с учебными и производственными корпусами. Состав и площади помещений столовых проектируют в соответствии с ВСН 51—86 «Профессионально-технические, средние специальные и высшие учебные заведения. Нормы проектирования».
При вузах проектируют, как правило, столовые, работающие на полуфабрикатах. Предусматривают снабжение полуфабрикатами столовых-доготовочных одного или нескольких вузов из одного заготовочного предприятия или базовой столовой.
Общее число мест на предприятиях общественного питания, расположенных на территории вуза, должно составлять 20 % расчетного числа студентов дневного отделения. Между числом мест (% расчетного числа студентов) в отдельных предприятиях существует следующее соотношение:
| Столовые: |
|
| для студентов и обслуживающего персонала |
13 |
| для профессорско-преподавательского состава |
1 |
| диетические |
2 |
| Буфеты: |
|
| для студентов |
3 |
| для профессорско-преподавательского состава и обслуживающего персонала |
1 |
| Итого |
20 |
Столовые размещают в отдельно стоящих зданиях и соединяют с учебными корпусами утепленными переходами; буфеты — в учебных корпусах.
В зданиях общежитии проектируют буфеты, общую площадь которых определяют исходя из следующих данных:
| Число проживающих |
Общая площадь на одного человека, м2 |
| 200 |
0,18 |
| 400 |
0,16 |
| 600 |
0,14 |
| 1000 |
0,12 |
Чтобы обеспечить удобную загрузку продуктов и выгрузку освободившейся тары, помещения буфетов располагают на первых этажах общежитии.
Кроме буфетов в соответствии с расчетами для комплекса общежитии рекомендуется проектировать столовые и молодежные кафе. Эти предприятия следует размещать ближе к наиболее населенным зданиям общежитии и по возможности соединять их утепленными переходами.
Проектирование предприятий общественного
На промышленных производствах с целью создания благоприятных социальных условий и обеспечения работников горячим питанием (в том числе работающих рассредоточенными и малочисленными коллективами) предусматривают предприятия общественного питания.
Перспективное направление в работе предприятий общественного питания при промышленных производствах — повышение эффективности использования мест в зале предприятия и увеличение доли потребителей, пользующихся услугами общественного питания, путем организации обслуживания населения, проживающего в близлежащих районах, и других потребителей.
При проектировании предприятий общественного питания при производственных предприятиях и учреждениях руководствуются СНиП 2.09.04—87 «Административные и бытовые здания. Нормы проектирования».
Для обеспечения питанием работающих предусматривают, как правило, столовые-доготовочные с числом мест в залах, которое определяют из расчета одно место на четыре человека в наиболее многочисленной смене. Однако в соответствии с технологическим процессом основного производства это соотношение может быть уменьшено. При числе работающих в максимальную смену менее 200 человек предусматривают столовые-раздаточные. Если число обслуживаемых менее 30 человек, допускается вместо столовых-раздаточных использовать комнаты приема пищи. Общественное питание рассредоточенных коллективов организуют с помощью индивидуальных термосов.
Для организации диетического питания на производственных предприятиях проектируют диетические столовые (диет-отделения). Минимальное число мест, при котором предусматривают диетическое отделение, — 12, диетическую столовую — 50. Поэтому сеть диетического питания, исходя из действующих нормативов (табл. 2.8), организуют на производственных предприятиях, начиная со следующей численности работающих в наиболее многочисленной смене: на промышленном предприятии дифференцированно при нормативе 60 мест — 200 человек и более, при нормативе 50 мест — 240 человек и более, при нормативе 45 мест — 270 человек и более; на стройке — 240 человек и более; при транспортном предприятии — более 400 человек.
При кинотеатрах и театрах для обслуживания зрителей проектируют буфеты. В составе их помещений предусматривают подсобное помещение, моечную посуды, а также кладовые продуктов и тары.
Площадь помещений, отводимую под буфеты, определяют по ВСН 45—86 «Культурно-зрелищные учреждения. Нормы проектирования». Эта площадь (с подсобными помещениями) на одно место в зрительном зале составляет для театров 0,30 м2, для кинотеатров — 0,23 м2. При проектировании кинотеатров с универсальными залами и детских кинотеатров (залов) площадь буфета равна 0,28 м2.
Кроме буфетов для обслуживания зрителей в зависимости от численности работающих предусматривают предприятия питания для обслуживающего персонала. Их вместимость можно определить так же, как и вместимость предприятий питания при административных учреждениях и проектных организациях.
Число мест в буфетах для зрителей на спортивных сооружениях принимают из расчета 3 % от числа зрительских мест, в буфетах для посетителей массового катания на коньках — из расчета 5 % единовременной пропускной способности (ВСН 46—86 «Спортивные и физкультурно-оздоровительные сооружения. Нормы проектирования»).
Помещения буфетов включают зал с раздаточной, подсобную буфета, моечную посуды, кладовую продуктов, холодильную камеру и кладовую тары. Залы буфетов можно совмещать с холлами для зрителей. Кроме буфетов рекомендуется предусматривать столовые для своевременного обеспечения питанием спортсменов и обслуживающего персонала предприятий. Вместимость залов для обслуживающего персонала определяют из расчета обеспечения питанием работающих в наиболее многочисленную смену при четырехкратной оборачиваемости мест. Вместимость залов для питания спортсменов должна быть определена заданием на проектирование и расчетами.
При проектировании предприятий общественного питания на выставках различного типа выполняют расчеты, в которых следует учитывать время посещения выставок, потоки посетителей, распределяемые по их территории, количество обслуживающего персонала. После определения количества, вместимости и типов предприятий общественного питания и распределения их на ген-плане выставок переходят к проектированию каждого отдельного предприятия — ресторана, кафе, закусочной или столовой.
При домах отдыха, пансионатах, мотелях (гостиницах для автотуристов), кемпингах (лагерях для автотуристов), туристских базах и приютах и летних городках отдыха предусматривают столовые. Вместимость залов столовых домов отдыха должна соответствовать общему числу отдыхающих из расчета 100%-ного их обеспечения питанием при однократной оборачиваемости мест; в столовых при остальных учреждениях отдыха — 50 % отдыхающих при двукратной оборачиваемости мест. В столовых предусматривают самообслуживание, но в соответствии с заданием — иногда и обслуживание официантами. В столовых при турбазах должен быть пункт отпуска сухих пайков туристам, отправляющимся в походы.
Кроме столовых для отдыхающих проектируют буфеты, а также столовую для обслуживающего персонала. Вместимость зала этой столовой определяют из расчета обеспечения питанием всех работающих в наиболее многочисленную смену при четырехкратной оборачиваемости мест.
Для снабжения столовых, относящихся к нескольким различным учреждениям отдыха, предусматривают заготовочное или базовое предприятие.
В санаториях предусматривают столовые для больных и отдыхающих, буфеты, а также столовые для персонала. Вместимость залов столовых должна соответствовать числу мест в санатории, а залов буфетов — не более 5 % числа отдыхающих; вместимость залов для обслуживания персонала принимают из расчета обеспечения питанием работающих в наиболее многочисленную смену при четырехкратной оборачиваемости мест.
При детских оздоровительных лагерях проектируют столовые для детей и обслуживающего персонала. Столовые для детей проектируют двух видов: со всеми помещениями, как на обычном предприятии, и только с помещениями для отпуска, приема пищи и мойки столовой посуды. Во втором случае пищу готовят в централизованных кухнях, где предусматривают помещения для хранения продуктов, их обработки и приготовления блюд.
Число мест в залах столовых принимают из расчета одновременного обслуживания 100 % детей. В лагерях круглогодичного использования все помещения столовых должны находиться в отапливаемой части здания и лишь 50 % мест в зале может быть размещено на веранде или террасах.
Столовые для обслуживающего персонала лагерей проектируют из расчета обслуживания всех работающих в наиболее многочисленную смену при четырехкратной оборачиваемости мест.
Проектирование заготовочных предприятий
Заготовочные предприятия общественного питания предназначены для выработки полуфабрикатов, готовых блюд, кулинарных и кондитерских изделий. В соответствии с Ведомственными нормами технологического проектирования заготовочных предприятий общественного питания по производству полуфабрикатов, кулинарных и кондитерских изделий основными типами заготовочных предприятий являются:
фабрика полуфабрикатов и кулинарных изделий с объемом перерабатываемого сырья 15; 25 и 40 т в смену — высокомеханизированное производство по централизованной выработке полуфабрикатов высокой степени готовности, готовых блюд, кулинарных и кондитерских изделий для обеспечения комплексного снабжения ими предприятий общественного питания. Производственный процесс осуществляется промышленным способом с использованием поточно-механизированных линий, высокопроизводительного оборудования и прогрессивной системы товародвижения (функциональных емкостей, передвижных стеллажей и контейнеров);
специализированные цехи — самостоятельное высокомеханизированное производство по централизованной выработке полуфабрикатов высокой степени готовности из какого-либо одного вида сырья (мяса, рыбы, птицы, овощей и картофеля), готовых блюд, кулинарных и кондитерских изделий для обеспечения ими предприятий общественного питания; мощность и производственный процесс в них соответствуют аналогичным цехам фабрики полуфабрикатов и кулинарных изделий;
предприятие полуфабрикатов и кулинарных изделий с объемом перерабатываемого сырья 3; 5 и 10 т в смену — централизованное производство по выработке полуфабрикатов высокой степени готовности, готовых блюд, кулинарных и кондитерских изделий для обеспечения ими предприятий общественного питания. Они отличаются тем, что производственный процесс в них осуществляется с использованием серийно выпускаемых машин и механизмов, функциональных емкостей, передвижных стеллажей и контейнеров. Строительство этих предприятий целесообразно осуществлять в ограниченных масштабах из-за трудности механизации производственных процессов вследствие небольшой мощности.
Мощности заготовочных предприятий, определяемых в тоннах всех видов перерабатываемого сырья в смену, рассчитывают с учетом полного удовлетворения потребности в их продукции обслуживаемых доготовочных предприятий и с учетом максимальной протяженности перевозки ее в 30 км, а также использования при реконструкции или техническом перевооружении существующих заготовочных предприятий. Мощности производственных цехов, входящих в состав заготовочных предприятий, принимают в проектах в соответствии с данными, приведенными в табл. 2.9—2.11; их следует уточнять, руководствуясь Временными методическими указаниями, с учетом контингента и численности групп обслуживаемого населения.
Таблица 2.9
Мощность цехов по переработке сырья на предприятиях и фабриках полуфабрикатов и кулинарных изделий, т/смену
| Цех |
Мощность предприятия, т/смену |
Мощность фабрики, т/смену |
||||
| 3 |
5 |
10 |
15 |
25 |
40 |
|
| Мясной |
0,48 |
0,8 |
1,6 |
3 |
5 |
7,5 |
| Птице-гольевой |
0,18 |
0,3 |
0,6 |
1 |
1,5 |
3 |
| Рыбный |
0,12 |
0,2 |
0,4 |
1 |
1,5 |
2 |
| Овощной |
1,92 |
3,2 |
6,3 |
8 |
14 |
22 |
| Кулинарный |
0,18 |
0,3 |
0,6 |
1 |
1,5 |
2,5 |
| Кондитерский |
0,12 |
0,2 |
0,5 |
1 |
1,5 |
3 |
| Итого |
3 |
5 |
10 |
15 |
25 |
40 |
Таблица 2.10
Мощность цехов по переработке полуфабрикатов (сырья) на предприятиях и фабриках полуфабрикатов и кулинарных изделий, т/смену
| Цех |
Единица измерения |
Мощность предприятия, т/смену |
Мощность фабрики, т/смену |
||||
| 2,4 |
4,1 |
8,1 |
12,3 |
20,6 |
33,3 |
||
| Мясной |
т (полуфабрикатов)/ смену |
0,47 |
0,78 |
1,57 |
2,9 |
4,9 |
7,3 |
| Птице-гольевой |
То же |
0,16 |
0,27 |
0,5 |
0,9 |
1,3 |
2,7 |
| Рыбный |
» |
0,07 |
0,12 |
0,24 |
0,7 |
1 |
1,24 |
| Овощной |
» |
1,4 |
2,4 |
4,7 |
5,8 |
10,4 |
16,6 |
| Кулинарный |
т (сырья) / смену |
0,18 |
0,3 |
0,6 |
1 |
1,5 |
2,5 |
| Кондитерский |
То же |
0,12 |
0,2 |
0,5 |
1 |
1,5 |
3 |
| Итого |
|
2,4 |
4,07 |
8,11 |
12,3 |
20,6 |
33,34 |
Примечания: 1. Мощности птице-гольевого, рыбного и овощного цехов приняты с учетом установленного процента отходов при первичной обработке сырья от мощностей тех же цехов, указанных в табл. 2.9; мощности кулинарного и кондитерского цехов аналогичны приведенным в табл. 2.9.
2. В общую мощность мясного, птице-гольевого и рыбного цехов включены наполнители, а в мощность мясного, кроме того, и кости.
Заготовочные предприятия общественного питания проектируют в соответствии с утвержденной Временной номенклатурой типов заготовочных предприятий и на основании технико-экономического обоснования (расчетов). Заготовочные предприятия общественного питания могут работать на сырье, полуфабрикатах или на сырье и полуфабрикатах. Поэтому при разработке проектно-сметной документации в развитие обосновывающих материалов — схем, ТЭО (ТЭР) заготовочных предприятий дополнительно учитывают возможность использования полуфабрикатов промышленного изготовления, готовой продукции пищевых, мясо-молочных и плодоовощных предприятий в системе общественного питания.
Число, мощность и типы вновь строящихся заготовочных предприятий определяют исходя из конкретных условий, касающихся планировочной схемы города: транспортной доступности; структуры управления отраслью; особенностей размещения и прикрепления сети доготовочных предприятий.
В соответствии с Временными методическими указаниями перспективный план развития заготовочных предприятий разрабатывают в такой последовательности: анализируют материалы, характеризующие современное состояние и перспективы развития города, сети доготовочных предприятий, источников выработки полуфабрикатов, кулинарных и кондитерских изделий; определяют общую потребность города, отдельных районов и контингентов населения в сырье для централизованной выработки полуфабрикатов, кулинарных и кондитерских изделий; разрабатывают концепции перспективного развития заготовочных предприятий города; выбирают типы заготовочных предприятий, устанавливают их число и мощность; размещают заготовочные предприятия в застройке города и прикрепляют к ним сеть доготовочных предприятий; устанавливают экономическую эффективность капитальных вложений в строительство, расширение и реконструкцию заготовочных предприятий; составляют пояснительную записку к проекту, оформляют схемы и другие графические материалы.
Таблица 2.11
Мощность цехов по выпуску полуфабрикатов и готовой продукции на фабрике (предприятии) полуфабрикатов и кулинарных изделий, т/смену
| Цех |
Единица измерения |
Мощность предприятия, т/смену |
||||||||
| 3 |
5 |
10 |
||||||||
| Общий выпуск полуфабри-катов в цехе |
В том числе |
Общий выпуск полуфабри-катов в цехе |
В том числе |
Общий выпуск полуфабри-катов в цехе |
В том числе |
|||||
| Вывоз через экспеди-цию |
Перера-ботка в кулинар-ном цехе |
Вывоз через экспеди-цию |
Перера-ботка в кулинар-ном цехе |
Вывоз через экспеди-цию |
Перера-ботка в кулинар-ном цехе |
|||||
| Мясной |
т (полуфабри-катов)/смену |
0,49 |
0,25 |
0,24 |
0,81 |
0,41 |
0,4 |
1,63 |
0,82 |
0,81 |
| Птице-гольевой |
То же |
0,17 |
0,09 |
0,08 |
0,28 |
0,14 |
0,14 |
0,52 |
0,26 |
0,26 |
| Рыбный |
» |
0,07 |
0,03 |
0,04 |
0,13 |
0,05 |
0,08 |
0,25 |
0,1 |
0,15 |
| Овощной |
» |
1,4 |
0,9 |
0,5 |
2,4 |
1,56 |
0,84 |
4,7 |
3,1 |
1,6 |
| Итого |
» |
2,13 |
1,27 |
0,86 |
3,62 |
2,16 |
1,46 |
7,1 |
4,28 |
2,82 |
| Кулинарный |
т (готовой про- дукции)/смену |
0,93 |
0,93 |
— |
1,57 |
1,57 |
— |
3,12 |
3,12 |
— |
| Кондитерский |
То же |
0,2 |
0,2 |
— |
0,34 |
0,34 |
— |
0,67 |
0,67 |
— |
| |
тыс. шт/смену |
2,0 |
2,0 |
— |
3,4 |
3,4 |
— |
6,7 |
6,7 |
— |
| Итого |
т (готовой про-дукции)/смену |
1,13 |
1,13 |
— |
1,91 |
1,91 |
— |
3,79 |
3,79 |
— |
| Всего |
т (выпускаемой продукции)/смену |
3,26 |
2,4 |
— |
5,53 |
4,07 |
— |
10,89 |
8,07 |
— |
| Цех |
Единица измерения |
Мощность предприятия, т/смену |
||||||||
| 15 |
25 |
40 |
||||||||
| Общий выпуск полуфабри-катов в цехе |
В том числе |
Общий выпуск полуфабри-катов в цехе |
В том числе |
Общий выпуск полуфабри-катов в цехе |
В том числе |
|||||
| Вывоз через экспеди-цию |
Перера-ботка в кулинар-ном цехе |
Вывоз через экспеди-цию |
Перера-ботка в кулинар-ном цехе |
Вывоз через экспеди-цию |
Перера-ботка в кулинар-ном цехе |
|||||
| Мясной |
т (полуфабри- катов)/смену |
3 |
1,5 |
1,5 |
5 |
2,5 |
2,5 |
7,6 |
3,8 |
3,8 |
| Птице–гольевой |
То же |
0,93 |
0,47 |
0,46 |
1,37 |
0,62 |
0,75 |
2,91 |
1,39 |
1,52 |
| Рыбный |
» |
0,73 |
0,3 |
0,43 |
1,03 |
0,43 |
0,6 |
1,27 |
0,51 |
0,76 |
| Овощной |
» |
6,2 |
4,0 |
2,2 |
10,4 |
6,8 |
3,6 |
16,6 |
10,8 |
5,8 |
| Итого |
т (полуфабри-катов)/смену |
10,86 |
6,27 |
4,59 |
17,8 |
10,35 |
7,45 |
28,38 |
16,5 |
11,88 |
| Кулинарный |
т (готовой про-дукции)/смену |
4,91 |
4,91 |
— |
8,1 |
8,1 |
— |
13,02 |
13,02 |
— |
| Кондитерский |
То же |
1,15 |
1,15 |
— |
1,96 |
1,96 |
— |
3,18 |
3,18 |
|
| тыс. шт/смену |
11,5 |
11,5 |
— |
19,6 |
19,6 |
— |
31,8 |
31,8 |
— |
|
| Итого |
т (готовой про-дукции)/смену |
6,06 |
6,06 |
— |
10,06 |
10,06 |
— |
16,2 |
16,2 |
— |
| Всего |
т (выпускаемой продукции)/смену |
16,92 |
12,33 |
— |
27,86 |
20,41 |
— |
44,58 |
32,7 |
— |
Примечания: 1. В общую мощность кулинарного цеха, кроме основных полуфабрикатов, включены сухие и мелочно-жировые продукты (см. табл. 2.9). 2. В общую мощность мясного и рыбного цехов включено сырье наполнителей для производства рубленых и панированных изделий 3. В общую мощность фабрик (предприятий) кондитерские изделия включены по массе из расчета средней массы одного изделия 100 г. 4. В общую мощность мясного цеха включены кости в количестве 20 % (70 % костей используют в кулинарном цехе для варки бульона, а 30 % вывозят в диетические столовые и рестораны).
При анализе материалов, характеризующих современное состояние и перспективы развития города, изучают следующие вопросы: численность, социально-демографическую структуру населения, планировочные особенности, транспортные сети и другие данные генерального плана развития города; состояние и перспективы развития сети доготовочных предприятий, обслуживающих различные контингенты населения по месту работы, учебы и проживания; существующий уровень использования полуфабрикатов, кулинарных и кондитерских изделий в сети доготовочных предприятий; состояние и размещение предприятий общественного питания по выработке полуфабрикатов, кулинарных и кондитерских изделий и прикрепленной к ним сети доготовочных предприятий. Концепция развития и размещения заготовочных предприятий в увязке с сетью доготовочных предприятий должна учитывать перспективы индустриализации общественного питания.
К заготовочному предприятию могут прикрепляться доготовочные предприятия, находящиеся в радиусе оптимальной транспортной доступности, которые обслуживают однородные контингенты питающихся (столовые при промышленных предприятиях, вузах, техникумах и школах), а также общедоступные предприятия (столовые, специализированные предприятия общественного питания и др.).
Вновь строящиеся заготовочные предприятия размещают исходя из наличия свободной территории, пригодности ее по геологическим условиям и объему работ для инженерной подготовки, характера окружающей застройки и санитарно-гигиенических условий, целесообразности реконструкции существующей застройки, обеспечения удобных транспортных связей с коммунально-складской зоной и потребителями продукции.
В проектно-сметной документации на реконструкцию и техническое перевооружение существующих заготовочных предприятий с учетом каждого конкретного объекта предусматривают: замену устаревшего оборудования и внедрение прогрессивной технологии производства продукции с использованием поточных линий, новейших видов оборудования, функциональных емкостей и контейнеров, способствующих созданию единой транспортной-технологической «цепочки» по производству, хранению, доставке и реализации пищи от заготовочных до доготовочных предприятий общественного питания; перепланировку и замену конструкций с целью достижения наилучших условий производства и улучшения условий труда персонала; доведение размеров подсобных, вспомогательных и бытовых помещений до нормативных величин, соответствующих проектируемой мощности предприятий. В проектах реконструкции предусматривают упорядочение генпланов предприятий с обеспечением зонирования и улучшения благоустройства их территорий, разделения транспортных и людских потоков.
В составе заготовочного предприятия, обслуживающего коллективы промышленного предприятия или учреждения, предусматривают разветвленную сеть доготовочных и раздаточных предприятий, которые являются самой массовой формой предприятий общественного питания, обеспечивающих трудовые коллективы горячей пищей в рабочее время. К ним относятся столовые (доготовочные раздаточные), буфеты, магазины кулинарии, которые входят в структуру социальных служб предприятий или учреждений.
Предпроектные и проектные материалы для них являются частью общей документации по реконструкции, расширению и новому строительству производственных предприятий.
Существующие в настоящее время на производственных предприятиях столовые-доготовочные необходимо реконструировать в связи с переводом их на работу по индустриальной технологии приготовления пищи, предусматривающей использование продукции высокой степени готовности и готовых блюд с применением функциональных емкостей и контейнеров, механизированных раздаточных линий, передвижного теплового оборудования, системы предварительных заказов и т.
д. При этом необходимо руководствоваться Методическими указаниями о проектировании объектов общественного питания, работающих в условиях индустриальной технологии приготовления пищи, для разных типов производственных предприятий.
Объемно-планировочные и конструктивные решения вновь возводимых отдельно стоящих или пристроенных доготовочных предприятий должны отвечать требованиям, предъявляемым к доготовочным предприятиям общедоступной сети или ведомственным нормам. Доготовочные предприятия могут быть встроены в производственные, подсобные и вспомогательные помещения промышленных зданий и учреждений.
Доготовочные предприятия должны иметь оборудованные приемные участки (со встроенными или пристроенными рампами, с навесами, выравнивающими площадками и т. д.) для получения обменных контейнеров.
При техническом перевооружении существующих доготовочных предприятий должно быть предусмотрено обновление оборудования, внедрение новой технологии на предприятии; при реконструкции и расширении может осуществляться также необходимая перепланировка с сокращением площадей производственных и складских помещений и увеличением площадей залов, организацией магазинов кулинарии, столов заказов и буфетов, улучшением условий работы и отдыха для персонала.
В проектах заготовочных и доготовочных предприятий предусматривают: оптимальный температурно-влажностный режим в рабочей зоне; максимальное снижение ручных трудовых затрат при санитарной обработке полов, окон и оборудования. Проектирование новых и реконструкцию действующих заготовочных предприятий общественного питания осуществляют в соответствии с разработанными Гипроторгом Ведомственными нормами технологического проектирования заготовочных предприятий общественного питания по производству полуфабрикатов, кулинарных и кондитерских изделий.
Контрольные вопросы и задания.
1. Каково содержание технико-экономического обоснования проекта?
2. Где можно размещать общедоступные предприятия общественного питания?
3. Какие существуют нормативы расчета сети общедоступных предприятий общественного питания?
4. Как рассчитать потребность в числе мест для определенного типа предприятия в конкретном городе?
5. Как определить потребность в числе мест на предприятиях общественного питания при вузах и техникумах?
6. Как рассчитать потребность в числе мест в столовых при производственных предприятиях и учреждениях?
7. Охарактеризуйте назначение и состав заготовочных предприятий общественного питания.
8. На основании каких документов осуществляют проектирование заготовочных предприятий?
9. Чем отличаются заготовочные предприятия от заготовочных фабрик?
Производственная программа и режим работы цеха
3.5. ПРОИЗВОДСТВЕННАЯ ПРОГРАММА И РЕЖИМ РАБОТЫ ЦЕХА
Производственная программа. Для цехов заготовочных предприятий и предприятий, работающих на сырье, производственной программой является совокупность ассортимента и количества полуфабрикатов, кулинарных или кондитерских изделий, выпускаемых за основную смену для доготовочных предприятий и для дальнейшей тепловой обработки в кулинарном цехе.
При разработке производственной программы необходимо учесть кулинарное использование и выход полуфабрикатов для предприятий различного типа.
Исходными данными для определения ассортимента и расхода сырья являются значения мощности цеха, выраженной количеством перерабатываемого сырья в сутки или смену. Ассортимент сырья для мясного, птице-гольевого, рыбного и овощного цехов определяют в соответствии с примерным процентным соотношением, указанным в Ведомственных нормах технологического проектирования (ВНТП 04—86). Имея данные по расходу каждого вида мясного сырья (говядины, баранины, свинины), рыбного и т. п., рассчитывают выход крупнокусковых полуфабрикатов из мяса, полуфабрикатов и отходов из рыбы с костным и хрящевым скелетом, тушек сельскохозяйственной птицы и субпродуктов, овощей и картофеля. Основанием для такого расчета служат нормы выхода и отходов, указанные в Сборнике рецептур блюд (1981 г.) или в ГОСТах и ОСТах на то или иное сырье.
Расчеты следует представить по каждому виду сырья в отдельности в виде табл. 3.22, 3.23.
Таблица 3.22
Расчет расхода сырья
| Сырье |
Соотношение, % |
Масса сырья, кг |
|
| в сутки |
в основную смену |
||
| Мясо |
100 |
10000 |
6000 |
| В том числе: |
|
|
|
| говядина |
60 |
6000 |
3600 |
| свинина |
25 |
2500 |
1500 |
| и т.п. |
… |
… |
… |
Расчет выхода крупнокусковых полуфабрикатов
| Полуфабрикат |
Говядина (3600 кг) |
|
| Норма выхода, % |
Масса крупнокусковых полуфабрикатов, кг |
|
| Длиннейшая мышца спины |
|
|
| Спинная часть (толстый край) |
1,7 |
61,2 |
| Поясничная часть (тонкий край) |
1,6 |
57,6 |
| … |
… |
… |
Подобные таблицы составляют на каждый вид сырья в отдельности и в результате расчетов определяют массу различных полуфабрикатов и отходов при их изготовлении.
Производственную программу мясного цеха можно представить в виде табл. 3.24.
В ВНТП-04—86 даны следующие рекомендации по распределению продукции для вывоза в доготовочные предприятия и переработке в кулинарном цехе (%): мясо и птица — по 50, субпродукты — соответственно 30 и 70, рыба — 40 и 60, картофель — 90 и 10, овощи — 40 и 60.
Таблица 3.24
Производственная программа мясного цеха
| Крупно-кусковой полуфаб-рикат |
Масса, кг |
Для предприятий доготовочных |
Для кулинарного цеха |
||||||||
| масса, кг |
Наименова-ние полуфаб-риката |
масса одной порции, г |
количество порций |
масса, кг |
масса, кг |
Наименова-ние полуфаб-риката |
масса одной порции |
количество порций |
масса, кг |
||
| Толстый край |
61,2 |
30,0 |
Антрекот |
125 |
240 |
30 |
31,2 |
Ростбиф |
— |
— |
31,2 |
| … |
… |
… |
… |
… |
… |
… |
… |
… |
… |
… |
… |
При составлении производственной программы цеха следует учитывать действующие Сборники рецептур блюд и кулинарных изделий, технические условия и технологические инструкции, ОСТы на полуфабрикаты и кулинарные изделия. Производственная программа служит основой для дальнейших расчетов.
Режим работы. Работу цехов заготовочных предприятий рекомендуется организовывать в основном в две смены со ступенчатым графиком выхода на работу. В отдельных случаях цехи могут работать в три смены. Технологические расчеты ведут на основную смену, в которую перерабатывается и выпускается 60 % всей продукции.
Режим работы цеха доготовочных предприятий зависит от режима работы зала предприятия общественного питания и сроков реализации выпускаемых полуфабрикатов, блюд и кулинарных изделий.
Реализация блюд за каждый час работы приведена в табл. 3.25.
Таблица 3.25
Таблица реализации блюд в зале диетической столовой при заводе
| Наименование блюда |
Количество блюд |
Часы работы |
|||
| 6 ч 30 мин — 7 ч 30 мин |
11ч — 12ч 20 мин |
14 ч 30 мин — 15 ч 30 мин |
19—20 ч |
||
| Коэффициент пересчета |
|||||
| 1 |
0,73 |
0,27 |
1 |
||
| Завтрак |
|||||
| Рыба ледяная |
10 |
10 |
|
|
|
| Язык говяжий отварной |
20 |
20 |
|
|
|
| … |
… |
… |
|
|
|
| Обед |
|||||
| Баклажаны |
50 |
|
37 |
13 |
|
| Суп-лапша домашняя |
120 |
|
88 |
32 |
|
| … |
… |
|
… |
… |
|
| Ужин |
|||||
| Творог со сметаной |
30 |
|
|
|
30 |
| Голубцы с мясом |
60 |
|
|
|
60 |
| … |
… |
|
|
|
… |
| Часы отпуска обедов на дом |
Количество отпускаемых блюд*, % общего количества |
| 11-12ч |
10 |
| 12-13ч |
15 |
| 13-14ч |
30 |
| 14-15ч |
15 |
| 15—16ч |
5 |
| 16-17ч |
5 |
| 17-18ч |
15 |
| 18-19ч |
5 |
| Итого |
100 |
Реализация полуфабрикатов, кулинарных и кондитерских изделий в магазине кулинарии, входящем в состав предприятия. Основа для этого расчета — ассортимент и соотношение количества изделий, отпускаемых в течение дня из цехов в магазин. Расчет реализации изделий в магазине может быть представлен в виде табл. 3.26.
Таблица 3.26
Реализация изделий в магазине кулинарии
| Изделие |
Единица измерения |
Количество |
|||
| за день |
в часы реализации |
||||
| 8—13 ч |
13—17ч |
17—21 ч |
|||
| % дневного количества |
|||||
| 30 |
30 |
40 |
|||
| Мясо жареное |
кг |
30 |
9 |
9 |
12 |
| Блинчики с творогом |
шт. |
500 |
150 |
150 |
200 |
| … |
… |
… |
… |
… |
… |
Расчет может быть представлен в виде формы (табл. 3.27).
Таблица 3.27
Отпуск изделий в экспедицию
| Изделие |
Единица измерения |
Количество за день |
Часы поступления изделий |
|||||||
| 7 — 11 ч |
11 — 15ч |
15 — 19ч |
19 — 22 ч |
|||||||
| % |
количество |
% |
количество |
% |
количество |
% |
Количество |
|||
| Антрекот |
шт. |
1500 |
30 |
450 |
30 |
450 |
25 |
375 |
15 |
225 |
| … |
… |
… |
… |
… |
… |
… |
… |
… |
… |
… |
Производственная программа предприятия
3.1. ПРОИЗВОДСТВЕННАЯ ПРОГРАММА ПРЕДПРИЯТИЯ
Основные сведения о производственной программе. Производственная программа заготовочных предприятий (фабрики полуфабрикатов и кулинарных изделий, специализированные цехи, предприятия полуфабрикатов и кулинарных изделий) характеризуется объемом перерабатываемого сырья (мощностью) или объемом выпускаемых полуфабрикатов и готовой продукции в ассортименте в сутки или в основную смену в тоннах или тысячах штук для комплексного снабжения сети доготовочных предприятий и магазинов кулинарии выпускаемой продукцией. Мощность заготовочного предприятия может быть установлена заданием на проектирование с учетом возможности поставки полуфабрикатов предприятиями пищевых отраслей промышленности или должна быть рассчитана. Мощность проектируемого предприятия рассчитывают на основании Временной номенклатуры типов заготовочных предприятий общественного питания государственной торговли и Методических указаний по развитию и размещению в застройке городов заготовочных предприятий по производству полуфабрикатов, кулинарных и кондитерских изделий в увязке с сетью доготовочных предприятий общественного питания, а для индивидуальных проектов и в соответствии с технико-экономическим обоснованием.
При определении мощности заготовочных предприятий учитывают расход основных видов сырья при централизованном производстве полуфабрикатов, кулинарных и кондитерских изделий на 1000 жителей города, где будет размещено предприятие, или на одно место в сети доготовочных предприятий с учетом магазинов кулинарии (табл. 3.1, 3.2).
Таблица 3.1 Расход сырья при централизованной выработке полуфабрикатов, кулинарных и кондитерских изделий на первую очередь строительства и в расчетный срок, кг
| Период времени | Вид сырья | Итого | |||||
| Мясо и птица | Рыба | Овощи | Картофель | Сырье для кондитерских изделий | Сухие и молочно-жировые продукты | ||
| Расчетный срок: |
|||||||
| на 1000 жителей города |
95 | 20 | 80 | 83 | 17 | 13 | 308 |
| на одно место |
0,78 | 0,17 | 0,6 | 0,8 | 0,15 | 0,06 | 2,56 |
| Первая очередь: |
|||||||
| на 1000 жителей города |
81 | 17 | 75 | 78 | 14 | 10 | 275 |
| на одно место |
0,78 | 0,17 | 0,6 | 0,8 | 0,15 | 0,06 | 2,56 |
Производственная программа заготовочного предприятия должна быть такой, чтобы оно могло снабжать доготовочные предприятия полуфабрикатами, кулинарными и кондитерскими изделиями в требуемом ассортименте и объеме. Кроме того, в производственной программе должно быть предусмотрено использование оборудования.
Потребность в полуфабрикатах в различных типах предприятий общественного питания в расчете на одно место определяют по дифференцированным показателям основных видов сырья (см. табл. 3.2).
Общую потребность в сырье для определенного города или района при централизованной выработке полуфабрикатов, кулинарных и кондитерских изделий находят умножением нормы расхода сырья на 1000 жителей (см. табл. 3.1) на перспективную численность населения.
Таблица 3.2 Расчет количества сырья и полуфабрикатов на одно место в различных типах предприятий общественного питания, г/сут
| Тип предприятия | Мясо | Рыба | Овощи | Картофель | Кондитерс-кие изделия (сырье) | Сухие и молочно-жировые продукты* | ||||
| Сырье | Полуфаб-рикаты | Сырье | Полуфаб-рикаты | Сырье | Полуфаб-рикаты | Сырье | Полуфаб-рикаты | |||
| Столовые при производственных предприятиях: |
||||||||||
| немеханизированный труд обслуживаемого контингента |
800 | 600 | 150 | 115 | 800 | 360 | 800 | 585 | 100 | 70 |
| механизированный труд обслуживаемого контингента |
700 | 525 | 150 | 115 | 650 | 455 | 800 | 520 | 100 | 60 |
| Столовые при учереждениях |
600 | 450 | 150 | 115 | 500 | 350 | 700 | 455 | 150 | 65 |
| Столовые при вузах и средних специальных учебных заведениях |
700 | 525 | 250 | 190 | 850 | 595 | 900 | 585 | 175 | 70 |
| Столовые при профтехучилищах |
300 | 225 | 200 | 150 | 600 | 420 | 900 | 585 | 125 | 65 |
| Столовые при общеобразовательных школах |
250 | 190 | 70 | 55 | 300 | 210 | 400 | 260 | 100 | 40 |
| Общедоступные предприятия |
1000 | 750 | 200 | 150 | 600 | 420 | 620 | 400 | 175 | 65 |
| В том числе: |
||||||||||
| столовые |
1000 | 750 | 250 | 190 | 1000 | 700 | 1300 | 845 | 150 | 80 |
| рестораны |
1100 | 830 | 200 | 150 | 700 | 490 | 700 | 455 | 125 | 55 |
| кафе с самообслуживанием |
700 | 525 | 150 | 115 | 500 | 350 | 600 | 390 | 400 | 70 |
| кафе с обслуживанием официантами |
800 | 600 | 200 | 150 | 400 | 280 | 450 | 290 | 250 | 60 |
| Закусочные с самообслуживанием |
950 | 715 | 200 | 150 | 300 | 210 | 400 | 260 | 200 | 75 |
| Закусочные с обслуживанием официантами (шашлычные) |
1300 | 980 | 150 | 115 | 350 | 245 | 400 | 260 | 100 | 35 |
* Количество сухих и молочно-жировых продуктов рассчитано с учетом потребностей кулинарного цеха и изготовления наполнителей для производства рубленых и панированных изделий мясного и рыбного цехов.
Для пересчета расхода сырья на количество полуфабрикатов применяют коэффициенты: для мяса —1,33; рыбы—1,33; овощей — 1,43; картофеля — 1,54.
К одному заготовочному предприятию прикрепляют несколько доготовочных предприятий, объединенных территориальной близостью, обслуживающих однородные контингента питающихся.
Потребность доготовочного предприятия в сырье определяют путем умножения дифференцированных норм расхода сырья и полуфабрикатов (см. табл. 3.2) на перспективное число мест в конкретном предприятии.
Общий объем сырья для централизованного производства на заготовочных предприятиях полуфабрикатов, кулинарных и кондитерских изделий рассчитывают как разность между общей потребностью города (района) и продукцией, централизованно вырабатываемой отраслями пищевой промышленности.
Производственной программой различных типов предприятий общественного питания — доготовочных и работающих на сырье (столовые, рестораны, кафе и др.) — является расчетное меню для реализации блюд в зале данного предприятия и снабжения буфетов, магазинов кулинарии и отпуска обедов на дом.
Расчетное меню представляет собой перечень наименований блюд с указанием выхода готового блюда и количества блюд. Чтобы составить его, необходимо выполнить предварительно ряд расчетов: определить число потребителей, общее количество блюд и количество блюд по группам.
Пример составления производственной программы для столовой при производственном предприятии представлен в табл. 3.9— 3.13.
Определение числа потребителей. Число потребителей можно найти по графику загрузки зала или оборачиваемости мест в течение дня.
При определении числа потребителей по графику загрузки зала основными данными для составления графика служат: режим работы зала; продолжительность приема пищи одним потребителем; загрузка зала (в процентах) по часам его работы.
Режим работы общедоступного предприятия общественного питания устанавливается непосредственно самим предприятием. Если предприятие общественного питания обслуживает производственное предприятие или учреждение, то режим его работы зависит от режима работы обслуживаемого объекта (число смен, продолжительность каждой смены и обеденного перерыва) и согласовывается с администрацией и фабричным, заводским или местным комитетом профсоюза. Часы работы столовой, обслуживающей учебное заведение, определяют в соответствии с организацией учебного процесса (обучение студентов в дневные и вечерние часы, продолжительность перерывов между лекциями и т.д.).
В ресторанах при вокзалах (железнодорожных, речных и аэровокзалах) часы работы залов устанавливают в соответствии с расписанием движения транспортных средств.
Средняя продолжительность приема пищи одним потребителем во время завтрака, обеда и ужина для различных типов предприятий приведена в приложении 1 , примерные графики загрузки залов — в приложении 2.
Число потребителей, обслуживаемых за 1 ч работы предприятия,

где Р— вместимость зала (число мест), ?ч — оборачиваемость места в зале в течение данного часа, хч — загрузка зала в данный час, %
Оборачиваемость мест зависит от продолжительности приема пищи.
Если на предприятии предусмотрено несколько приемов пищи (завтрак, обед и ужин), то число потребителей определяют для каждого приема пищи в отдельности.
Общее число потребителей за день

При определении числа потребителей с учетом оборачиваемости Мест в зале расчет ведут по формуле

где nД — число потребителей, обслуживаемых в течение дня, Р — вместимость зала, число мест; ?д — оборачиваемость места в зале в течение дня Примерные значения ср для различных предприятий общественного питания приведены в приложении 3.
Расчет числа потребителей по оборачиваемости рекомендуется проводить для баров, кафетериев и буфетов, которые занимают отдельные помещения.
Определение количества блюд. Исходными данными для определения количества блюд являются число потребителей и коэффициент потребления блюд.
Общее число блюд, реализуемых предприятием в течение дня,

где NД — число потребителей в течение дня, т — коэффициент потребления блюд (сумма коэффициентов потребления холодных блюд, супов, вторых горячих и сладких блюд), он указывает, какое количество блюд в среднем приходится на одного человека на предприятии данного типа. Значения коэффициента потребления блюд для различных типов предприятий общественного питания определены исходя из фактических средних данных о ежедневной реализации блюд в этих предприятиях в разные периоды времени и приведены в приложении 4.
Разбивку общего количества блюд на отдельные группы (холодные блюда, супы, вторые горячие и сладкие блюда), а также внутри-групповое распределение блюд по основным продуктам (рыбные, мясные, овощные и т.п.) проводят в соответствии с таблицей процентного соотношения различных групп блюд в ассортименте продукции, выпускаемой предприятием (см. приложение 5).
Если на предприятии общественного питания (столовая общедоступная, диетическая и др.) предусмотрено несколько приемов пищи (завтрак, обед и ужин), то количество блюд определяют для каждого режима отдельно по формулам



где nЗ, пО, пУ — общее количество блюд, реализуемых соответственно в течение завтрака, обеда и ужина; NЗ , NО , NУ — число потребителей в течение завтрака, обеда и ужина; mЗ , mО , mУ —коэффициенты потребления блюд во время завтрака, обеда и ужина.
Затем проводят ориентировочную разбивку общего количества блюд, реализуемых в течение завтрака, обеда и ужина, на отдельные группы в соответствии с таблицей процентного соотношения различных групп блюд в общедоступных и диетических столовых (см. приложение 5).
Если предприятие работает по комплексным меню (столовые при производственных предприятиях, учебных заведениях, рестораны и др.), то количество блюд каждого наименования, входящих в состав данного комплекса, должно соответствовать числу потребителей, пользующихся этим комплексом. Процентную разбивку блюд в этом случае не делают.
Общее количество блюд, отпускаемых на дом,

где nД — количество блюд, реализуемых в зале в течение дня. Рекомендуется следующее примерное распределение блюд, отпускаемых на дом, по отдельным группам: супы — 45 %, вторые горячие блюда — 50 %, сладкие — 5 % общего количества блюд, отпускаемых на дом.
Количество напитков, кондитерских изделий, хлеба, фруктов и т. д. для всех предприятий общественного питания определяют на основе примерных норм потребления на одного человека (см. приложение 6).
Составление расчетного меню. Расчетное меню составляют по действующим сборникам рецептур блюд и кулинарных изделий с учетом ассортиментного минимума для различных типов предприятий общественного питания, сезонности продуктов, разнообразия блюд по дням недели, приемов тепловой обработки, особенностей вкусов местного населения, климатических условий.
Разработаны Методические указания по развитию, размещению сети специализированных предприятий общественного питания и требования к их организации, в которых дан уточненный ассортимент блюд, напитков и кулинарных изделий для этих предприятий (табл. 3.3-3.6).
Таблица 3.3 Ассортимент блюд в специализированных кафе
| Блюда, напитки и кулинарные изделия | Примерное число наименований в меню | ||||
| Кафе-конди-терская | Кафе-моро-женое | Кафе молочное | Детское кафе | Молодежное кафе | |
| Мучные кондитерские и булочные изделия | 10 — 15 | 5 — 6 | 5 — 6 | 8 — 10 | 8 — 10 |
| Горячие напитки | 3 — 5 | 2 — 3 | 2 — 3 | 2 — 3 | 3 — 5 |
| Коктейли безалкогольные (или холодные напитки собственного производства) | 3 — 4 | 3 — 4 | 3 — 4 | 3 — 4 | 6 — 8 |
| Сладкие блюда, мороженое | 3 — 4 | 5 — 6 | 3 — 4 | 4 — 5 | 4 — 5 |
| Холодные закуски | — | — | — | 3 — 4 | 3 — 4 |
| Горячие блюда | — | — | 3 — 4 | 3 — 4 | 3 — 4 |
| Соки | 5 — 6 | 5 — 6 | 5 — 6 | 5 — 6 | 5 — 6 |
Примечания: 1. В кафе потребителям дополнительно предлагают шоколад, конфеты, фрукты и цитрусовые (по сезону).
2. Может быть предусмотрен отпуск горячих напитков с различными добавками (лимоном, джемом, вареньем, сливками и др.).
3. В чайной потребителям предлагают сушки, баранки, бублики и др.
Таблица 3.5
Ассортимент блюд в специализированных закусочных
| Блюда, напитки и кулинарные изделия | Примерное число наименований в меню | ||
| Закусочные со специализацией по блюдам | Блинные | ||
| рыбным | мясным | ||
| Холодные закуски | 2 — 3 | 2 — 3 | 2 — 3 |
| Горячие блюда | 3 — 4 | 4 — 5 | 1* |
| Горячие напитки | 1 | 1 | 1 |
| Бульоны и мучные кулинарные изделия | 2 — 3 | 2 — 3 | — |
| Соки (или холодные напитки собственного производства) | 2 — 3 | 2 — 3 | 2 — 3 |
| Сладкие блюда | — | — | 2 — 3 |
Таблица 3.5 Специализированные предприятия быстрого обслуживания
| Блюда, напитки и кулинарные изделия | Примерное число наименований в меню | ||
| Предприятия со специализацией по блюдам | Кафетерий | ||
| мясным | мучным | ||
| Горячие блюда и кулинарные изделия, на реализации которых специализируется предприятие | 1* | 1* | — |
| Бутерброды | — | — | 5 — 6 |
| Горячие напитки, соки, фруктовые и минеральные воды, прохладительные и тонизирующие напитки, холодные напитки собственного производства | 1 — 2 | 1 — 2 | 4 — 6 |
| Булочные и мучные кулинарные изделия | 4 — 5 | — | 8 — 10 |
| Напитки, блюда и мучные кондитерские изделия | Примерное число наименований в меню | |||||
| Коктейль-бары | Десертные молочные бары | Кофейные, шоколадные бары | Гриль-бары | Салатные бары | Пивные бары | |
| Коктейли безалкогольные, холодные напитки собственного производства | 8—10 | 6—8 | — | 6—8 | — | — |
| Сладкие блюда, мороженое | — | 3—4 | — | — | — | — |
| Горячие напитки | — | 1—2 | 1—2 | 1 | 1—2 | 1 |
| Мучные кондитерские изделия | 5—6 | 5—10 | 5—10 | 3—4 | 3—4 | 3—4 |
| Холодные закуски, бутерброды | — | — | — | 3—4 | 4—5 | 4—5 |
| Горячие блюда | — | — | — | 1—2 | — | 1—2 |
| Пиво | — | — | — | — | — | 3—4 |
| Фруктовые и минеральные воды, прохладительные и тонизирующие напитки, соки | 3—4 | 3—4 | 3—4 | 3—4 | 3—4 | 3—4 |
В барах потребителям дополнительно предлагают шоколадные конфеты, орехи, фрукты и цитрусовые (по сезону).
2. Может быть предусмотрен отпуск горячих напитков с различными добавками (лимоном, сливками, джемом, вареньем и др.).
В зависимости от типа предприятия, обслуживаемого контингента и принятых форм обслуживания различают следующие виды меню: со свободным выбором блюд; скомплектованных завтраков, обедов и ужинов; дневного рациона; диетическое; банкетное.
Расчетное меню со свободным выбором блюд составляют на всех общедоступных предприятиях общественного питания (столовые, рестораны, кафе, закусочные и т.п.). Перечень блюд в меню записывают в строго определенном порядке с указанием номера рецептуры, наименования блюда, выхода основного продукта, гарнира, соуса и количества порций данного блюда. Количество порций различных блюд в меню принимают из таблиц процентного соотношения различных групп блюд.
Ассортимент блюд и закусок может быть расширен за счет включения в меню фирменных и сезонных блюд.
Порядок написания блюд в меню следующий.
Фирменные блюда.
Холодные закуски из рыбных гастрономических продуктов и консервов, холодные рыбные блюда; холодные закуски из мясных гастрономических продуктов, мяса, птицы и дичи; салаты и винегреты (рыбные, мясные, овощные); сыры, масло сливочное и различные кисломолочные продукты.
Горячие закуски из раков, крабов, мяса, дичи, грибов.
Супы прозрачные (бульоны), заправочные (рыбные, мясные, овощные), супы-пюре, молочные и сладкие.
Вторые горячие блюда из рыбы, мяса, мясных продуктов, птицы, дичи, кролика; картофеля, овощей, грибов; круп, бобовых, макаронных изделий; яиц и творога.
Сладкие блюда.
Горячие напитки.
Холодные напитки.
Мучные кулинарные, хлебобулочные и кондитерские изделия.
Меню для отпуска обедов на дом составляют из тех же блюд, которые реализуются в зале.
Меню специализированных предприятий общественного питания (пельменная, чебуречная и т.п. ) начинают с блюд, по которым это предприятие специализируется, т.е.
с пельменей в ассортименте, чебуреков и т.п.
Расчетные меню скомплектованных завтраков, обедов и ужинов применяют в основном в столовых при производственных предприятиях, учреждениях, учебных заведениях. Их можно также использовать в общедоступных столовых и ресторанах (экспресс-меню). Расчетное скомплектованное меню представляет собой набор блюд для завтрака, обеда или ужина с указёёёанием их количества. Рекомендуется составлять несколько вариантов комплексных обедов, завтраков и ужинов, различных по составу блюд и стоимости рациона Исходными данными для составления этого вида меню служат число потребителей и ассортимент блюд для принятого рациона (завтрака, обеда и ужина).
В комплексных меню указывают стоимость, а также пищевую и энергетическую ценность каждого блюда в отдельности и комплекса в целом. Химический состав и энергетическая ценность должны соответствовать физиологическим потребностям организма для каждого приема пищи в отдельности с учетом энергозатрат, обусловленных той или иной профессией.
В связи с этим при четырехразовом питании рекомендуется следующее распределение энергетической ценности суточного рациона: завтрак — 25 %, обед — 35, полдник — 15, ужин — 25 %. Чтобы комплексы завтраков, обедов, ужинов соответствовали рекомендуемым потребностям организма в пищевых веществах и энергии, необходимо предварительно определить, к какой группе интенсивности труда относится данный контингент, и в зависимости от этого и принятого режима питания распределить эти нормы (табл. 3.7). Полдник или второй завтрак при четырехразовом питании в столовой организовывать необязательно.
Таблица 3.7 Рекомендуемые химический состав и энергетическая ценность блюд по рационам питания для работников III группы интенсивности труда
| Прием пищи | Энергетическая ценность | Содержание, г | ||||
| распределение суточного рациона, % | кДж | ккал | белков | жиров | углеводов | |
| Завтрак | 25 | 3344—2821 | 800—675 | 24—20 | 29—25 | 110—93 |
| Обед | 35 | 4639—3950 | 1120—945 | 34—29 | 41—34 | 154—130 |
| Полдник | 15 | 2006—1692 | 480—405 | 14—12 | 18—15 | 66—55 |
| Ужин | 25 | 3344—2821 | 800—675 | 24—20 | 29—25 | 110—93 |
| Итого | 100 | 13333—11284 | 3200—2700 | 96—81 | 117—99 | 440—371 |
При составлении экспресс-меню комплексных обедов в ресторане пищевую ценность блюд рассчитывать необязательно.
Блюда, входящие в экспресс-меню, не должны повторяться в меню общего зала ресторана, так как это связано с применением разной наценки на обеденные и порционные блюда. Норма закладки сырья для блюд, входящих в комплексы, может быть принята по второй колонке Сборника рецептур блюд.
Расчетное меню дневного рациона применяют в столовых с постоянным контингентом потребителей: при профтехучилищах, санаториях, домах отдыха, туристических комплексах и т. п. Такое меню составляют также для питания участников конференций, съездов и туристов.
Меню для учащихся и отдыхающих составляют с учетом физиологических норм питания и рекомендуемого набора продуктов; меню для участников различных мероприятий — с учетом стоимости. Меню может быть комплексным (профтехучилища, турбазы) и со свободным выбором (санатории, дома отдыха), когда блюда заказывают накануне.
Расчетное диетическое меню применяют в диетических столовых, диетических отделениях столовых при производственных предприятиях, учреждениях и учебных заведениях, а также в санаториях и домах отдыха. Такое меню составляют на основе физиологических норм и с учетом особенностей лечебного питания. Меню может быть со свободным выбором блюд и комплексным.
В первом случае после наименования каждого блюда кроме количества порций и его пищевой и энергетической ценности указывают номера диет, для которых оно рекомендуется; во втором — по каждой диете в отдельности составляют комплекс для завтрака, обеда и ужина. Для второго случая необходимо также составить предварительно таблицу потребности в пищевых веществах и энергии по отдельным приемам пищи (см. табл. 3.7).
На предприятиях общественного питания рекомендуются к реализации следующие диеты: № 1, 2, 5, 7, 8, 9, 10, 15. Если в столовой предусмотрен кроме диетического зала зал общего питания, то диету № 15 можно исключить. При составлении диетического меню руководствуются действующим Сборником рецептур блюд диетического питания для предприятий общественного питания.
Расчетное банкетное меню составляют в соответствии с пожеланиями заказчика. Исходными данными для его составления служат характер банкета (свадьба, юбилей и т. п.) и число его участников. Число блюд различных наименований в меню зависит от желания заказчика.
Ассортимент продукции для магазина кулинарии должен соответствовать примерному ассортименту полуфабрикатов, кулинарных и кондитерских изделий, учитывать спрос потребителей на продукцию общественного питания. Необходимые требования — разнообразие ассортимента с учетом рационального расходования продовольственных ресурсов и обеспечение рентабельности работы магазина кулинарии.
При определении количества полуфабрикатов, кулинарных и кондитерских изделий исходят из примерного товарооборота в день на одного продавца. Примерный расчет ассортимента и количества изделий представлен в табл. 3.8.
Таблица 3.8 Ассортимент изделий для магазина кулинарии
| Изделия | Единица измерения | Количество |
| Полуфабрикаты | ||
| Гуляш | кг | 10 |
| Котлеты и т. п. | шт. | 50 |
| Кулинарные изделия | ||
| Сырники | шт. | 30 |
| Блинчики | шт. | 50 |
| Говядина отварная и т.п. | кг | 5 |
Определяем число потребителей по графикам загрузки залов (табл. 3.9), составленным по приложению 2.
Таблица 3.9
График загрузки залов
| Часы работы | Зал скомплектованных рационов на 200 мест | Диетический зал на 60 мест | ||||
| оборачивае- мость места за 1 ч, раз | средняя загрузка зала, % | число потреби- телей | оборачивае- мость места за 1 ч, раз | средняя загрузка зала, % | число потреби- телей | |
| Завтрак |
||||||
| 6 ч 30 мин — 7 ч 30 мин |
4 | 50 | 400 | 4 | 50 | 120 |
| Обед |
||||||
| 11 ч—12ч 20мин |
4 | 100 | 800 | 4 | 100 | 240 |
| 14—15ч |
— | — | — | 3 | 50 | 90 |
| Ужин |
||||||
| 19—20ч |
3 | 89 | 534 | 3 | 89 | 160 |
| Ужин (ночная смена) |
||||||
| 3—4ч |
4 | 50 | 400 | — | — | — |
Таблица 3.10 Скомплектованное меню обедов
Производственные помещения
4.2. ПРОИЗВОДСТВЕННЫЕ ПОМЕЩЕНИЯ
Основные принципы проектирования. Состав цехов предприятий общественного питания зависит от типа предприятия, его вместимости или мощности, характера производственного процесса (работает на сырье или на полуфабрикатах) и формы обслуживания. Производственные помещения предприятий, работающих на сырье, включают: горячий и холодный цехи, мясной, птице гольевой, рыбный и овощной, помещение мучного цеха (кондитерский цех); моечные столовой и кухонной посуды, помещение для резки хлеба, помещение заведующего производством. На предприятиях с обслуживанием официантами предусматривают дополнительно к перечисленным помещениям раздаточную, сервизную и буфет. Состав помещений доготовочных предприятий отличается тем, что в них вместо мясного, рыбного (мясо-рыбного) и овощного цехов предусматривают доготовочный и цех обработки зелени. На предприятиях, реализующих готовую пищу (столовые-раздаточные), предусматривают помещение для приема термосов с пищей, временного хранения, подогрева и порционирования, моечную столовой и кухонной посуды, помещения для резки хлеба, а также помещение для заведующего производством. Состав цехов заготовочного предприятия зависит от наличия в районе строительства сырьевой базы, перерабатывающих цехов на мясокомбинатах, птицефабриках и рыбных комплексах, овощных цехов — на овощеперерабатывающих базах. На заготовочных предприятиях предусматривают цехи для механической кулинарной обработки сырья и производства полуфабрикатов (мясной, цех обработки птицы и субпродуктов, рыбный и овощной), цехи, изготовляющие кулинарную и кондитерскую продукцию. Не все перечисленные производственные помещения могут быть предусмотрены при проектировании предприятий. Связано это с их мощностью. Мясной цех выделяют как самостоятельный в столовых и ресторанах с числом мест в залах более 400, мясо-рыбный — менее 400, птице-гольевой — только в ресторанах с числом мест более 300. Доготовочный цех предусматривают во всех предприятиях независимо от их мощности; это же имеет место при проектировании цеха обработки зелени в ресторанах.
В столовых цех обработки зелени выделяют как самостоятельный, начиная с 250 мест. На заготовочных предприятиях мощностью от 3 до 5 т сырья в смену мясо, птицу и рыбу обрабатывают в одном помещении — мясо-рыбном цехе. При проектировании предприятий общественного питания к производственным помещениям предъявляют ряд требований по научной организации труда. Цехи размещают в отдельных помещениях наземных этажей здания со стороны хозяйственного двора или торцов здания с ориентацией на север, северо-восток и северо-запад. Цехи не должны быть проходными. Исключение составляют отделения цехов, связанные с цехами непрерывным технологическим процессом, и предприятия, спроектированные по бесцеховой планировочной схеме. Технологический процесс изготовления готовых блюд и кулинарных изделий осуществляют в них в одном, хорошо освещенном помещении, без деления его на отдельные цехи глухими перегородками. Этим приемом достигается возможность создания планировочной схемы «гибкого цеха», что позволяет осуществлять без реконструкции свободную перестановку оборудования и изменять технологические процессы и профиль предприятия, обеспечивать возможность централизованного наблюдения за производством. Применяют бесцеховую планировочную схему в предприятиях небольшой мощности, работающих на сырье и полуфабрикатах. Производственные помещения должны быть взаимосвязаны, иметь удобную связь с необходимыми группами помещений. На рис. 4.6 представлены схемы взаимосвязи производственных помещений заготовочных и доготовочных предприятий, работающих на сырье, а также ресторанов. Производственные помещения должны иметь достаточную естественную освещенность. В них следует избегать размещения канализационных стояков, труб и опор, ниш, выступов, карнизов и других сложных элементов внутренней отделки во избежание затемнения помещений и скопления пыли. Кроме освещенности при создании оптимальной среды в производственных помещениях необходимо следить за состоянием воздушной среды: температурой, влажностью, степенью чистоты и скоростью движения воздуха.
Температура воздуха в помещениях должна быть в пределах 15 — 16 °С. Размещение оборудования в производственных помещениях необходимо осуществлять с учетом обеспечения прямолинейного и кратчайшего пути движения сырья, полуфабрикатов и готовой продукции между участками и рабочими местами с применением средств механизации. При проектировании предприятий общественного питания важную роль играет выбор размеров рабочих мест, учет антропометрических данных и требований физиологии труда. Правильно организованное рабочее место повышает эффективность труда на 20 %. Факторами, влияющими на выбор и назначение размеров рабочих мест, являются: рост работающих, требуемое расстояние видения (удаление глаз от обрабатываемого предмета) и угол зрения.


Рис. 4.6. Схемы взаимосвязи производственных помещений:
а — заготовочного предприятия, б — доготовочного предприятия, в — предприятия, работающего на сырье, г — ресторана
Другие важные факторы формирования и компоновки рабочих мест на предприятиях общественного питания: размещение оборудования в соответствии с направлением технологического процесса; правильная фиксация размеров рабочих проходов, служащих одновременно и путями движения; организация путей движения по кратчайшим, прямолинейным и не имеющим пересечений направлениям; обеспечение хороших условий для уборки рабочих мест; учет требований охраны труда при установке машин и приборов. Для оснащения небольших специализированных предприятий общественного питания и буфетов выпускают малогабаритное модульное оборудование: мармиты; сосисковарки; пельменеварки; тепловые шкафы, фритюрницы, плиты; охлаждаемые витрины трех типов и секции со шкафом и емкостями; подставки для настольного оборудования; устройства для улучшения микроклимата; моечные ванны; раздаточные полки и декоративные панели.
Управление модульным оборудованием, а также его подключение к электролинии, водопроводу и канализации осуществляют с фронтальной стороны, что обеспечивает одностороннее его обслуживание и ремонт только с фронтальной стороны (в противоположность обычному оборудованию, которое требуется обслуживать и с других сторон).
Это позволяет устанавливать секции модульного оборудования вплотную одна к другой в сплошные технологические линии как пристенным, так и островным способом. Секционность этого оборудования и наличие в комплектах угловых стоек позволяют изменять на 90° направление технологических линий и, следовательно, устанавливать его в помещениях любой конфигурации, а широкая номенклатура — подбирать нужные аппараты в соответствии с типом и производственной мощностью предприятий. Линейный принцип расстановки различных видов модульного оборудования и возможность легкой перекомпоновки его в различные технологические линии позволяет обеспечить последовательную и удобную взаимосвязь различных стадий технологического процесса с учетом прямоточности движения продуктов на производстве. Использование модульного оборудования позволяет перейти к организации производства в одном объеме, без цехового деления. Модульное оборудование обеспечивает создание оптимальных условий в рабочей зоне. Линейное (островное и пристенное) размещение секционного модульного оборудования позволяет оснастить его локальными системами (местными вентиляционными отсосами). Каждую из тепловых секций снабжают коробом, в котором совмещают приточную и вытяжную системы вентиляции. Короба отдельных секций соединяют в единую линию. Приточный воздух с помощью жалюзийной решетки может подаваться либо непосредственно в рабочую зону (душирование), создавая воздушную завесу против теплоизлучений, либо вверх в общий объем помещения. Благодаря этому пары, дым и прочие вредные газообразные отходы, а также запахи улавливаются непосредственно над источником и удаляются еще до того, как они успевают рассеяться по всему помещению и загрязнить воздух. В результате этого работники избавлены от неудобств, связанных с наличием вредных примесей и запахов в атмосфере помещения. Установочная площадь, приходящаяся на единицу площади рабочей поверхности, для модульного оборудования в 1,4 — 5,4 раза меньше, чем для аналогичного немодулированного оборудования.
При оснащении цехов заготовочных предприятий следует ориентироваться на использование функциональных емкостей и средств их передвижения — стеллажи, контейнеры, тележки, подъемные устройства для загрузки в пищеварочные котлы и выгрузки из них кассет с функциональными емкостями. Их использование позволяет сократить число перевалок продукции в процессе ее изготовления и транспортирования. С учетом требований научной организации труда, соблюдения правил техники безопасности и производственной санитарии установлена определенная ширина проходов (табл. 4.4 и 4.5). Таблица 4.4 Ширина проходов в производственных помещениях заготовочных предприятий
| Проход | Минимальная ширина, м |
| Между линиями вспомогательного оборудования | 1,5 |
| Между линиями вспомогательного и теплового оборудования | 1,5 |
| Между линиями теплового оборудования | 2,0—2,5 |
| Между механизированными линиями: | |
| при снятии продукции с боковых сторон конвейеров |
2,5 |
| при снятии продукции с торцов конвейеров |
8,0—1,0 |
| для разворота электропогрузчиков |
3,0 |
| Магистральные (основные) проезды | 3,0 |
Ширина проходов в производственных помещениях доготовочных предприятий общественного питания
| Проход | Минимальная ширина, м |
| Между технологическими линиями оборудования (столами, ваннами и т. п.) при расположении рабочих мест в проходе в два ряда при длине линии оборудования: | |
| до 3 м |
1,2 |
| более 3 м (но не выше 6м) |
1,3 |
| Между стеной и технологической линией оборудования (со стороны рабочих мест) | 1,0 |
| Между технологическими линиями вспомогательного оборудования и линиями оборудования, выделяющего теплоту | 1,3 |
| Между технологическими линиями оборудования, выделяющего теплоту, а также между этими линиями и раздаточной линией | 1,5 |
| Между стеной и плитой (со стороны топочного отверстия): | |
| при твердом топливе | 1,5 |
| при других видах топлива | 1,25 |
Мясной цех. Предназначен для обработки мяса (говядины, свинины, баранины) и изготовления полуфабрикатов (крупнокусковых, порционных, мелкокусковых, из натурального рубленого мяса и котлетной массы). Мясные цехи большой мощности проектируют на заготовочных предприятиях и крупных предприятиях, работающих на сырье; средней и малой мощности (мясо-рыбный цех) — на предприятиях, перерабатывающих сравнительно небольшое количество мяса, рыбы и птицы. Мясные цехи можно проектировать и как самостоятельные заготовочные предприятия с полным составом помещений для организации производства, приема и хранения полуфабрикатов. Мясной цех предприятия, работающего на сырье, независимо от его мощности проектируют в одном помещении. В мясном цехе заготовочного предприятия, работающего на сырье, предусматривают ряд помещений: камеры для размораживания мяса; помещение для зачистки туш; мясное отделение; охлаждаемая камера полуфабрикатов; кладовая полуфабрикатной тары; помещение для обработки костей; моечная инвентаря; помещение начальника цеха. Технологический процесс обработки мяса в цехах, работающих на сырье, организуют по схеме: размораживание туш —> обмывание и обсушивание —> деление на отруба —> обвалка отрубов —>жиловка и зачистка частей —> приготовление полуфабрикатов —> укладка в функциональные емкости —> охлаждение и кратковременное хранение —> транспортирование. При работе мясных цехов на крупнокусковых полуфабрикатах операции по обвалке, зачистке и жиловке мяса отсутствуют. Обмывание мяса предусматривают в ваннах мясного отделения цеха. Мясные туши, полутуши и четвертины доставляют в складские помещения, а из складских помещений — в камеры размораживания и мясное отделение цеха по непрерывно продолжающемуся подвесному пути, длину которого принимают из расчета 250 кг мяса на участок подвесного пути длиной 1 м. После обмывания и обсушивания мясо разделяют на отруба; обвалку, зачистку производят на конвейере, длину которого определяют из расчета 1,6 м на одного работника; расстояние между осями параллельно установленных конвейеров 6 м.
Столы обвальщиков устанавливают перпендикулярно конвейеру на расстоянии 0,8 м один от другого. В мясных цехах мощностью менее 5 т перерабатываемого сырья в сутки мясные туши транспортируют при помощи тележек. Для изготовления и упаковки порционных и мелкокусковых полуфабрикатов, а также изделий рубленых и из котлетной массы предусматривают отдельные участки, оснащенные холодильным, механическим и вспомогательным оборудованием (столы, ванны и стеллажи). При значительном количестве перерабатываемого сырья участки объединяют в технологические линии: обвалки мяса; приготовления порционных и мелкокусковых полуфабрикатов; приготовления котлетной массы и изделий из нее. В мясо-рыбном цехе выделяют линии обработки: мяса; птицы и субпродуктов; рыбы. Участки упаковки полуфабрикатов укомплектовывают передвижными стеллажами с функциональными емкостями. После заполнения емкостей готовой продукцией стеллажи направляют в охлаждаемую камеру полуфабрикатов, а затем, по мере накопления определенной массы продукции, — в экспедицию. В заготовочных предприятиях мясной цех размещают единым блоком на первом этаже здания рядом с помещениями приема и хранения сырья; при этом обеспечивают удобную связь мясного цеха с кулинарным и с экспедицией. Размещать цех на втором этаже не рекомендуется из-за необходимости транспортировки на второй этаж значительных количеств сырья и со второго на первый — готовых полуфабрикатов. В предприятиях, работающих на сырье, мясной цех (мясо-рыбный) размещают, как правило, на первом этаже здания, вблизи подъемников и лестничной клетки, при этом обеспечивают удобную связь цеха с помещениями приема и хранения сырья, а также с горячим цехом. Планировка мясных цехов мощностью 2,0 и 0,5 т показана на рис. 4.7 и 4.8. Цех обработки птицы и субпродуктов. Предназначен для обработки птицы и субпродуктов и изготовления из них полуфабрикатов: тушки птицы, подготовленные к кулинарной обработке; наборы для студня, рагу, супов и котлеты рубленые; вымя, сердце, печень и почки обработанные.
Цехи обработки птицы и субпродуктов большой мощности предусматривают в заготовочных предприятиях и ресторанах на 300— 500 мест. Цех размещают на первом этаже здания единым блоком с мясным цехом вблизи подъемника и лестничной клетки; при этом обеспечивают удобную связь с помещениями для приема и хранения сырья, с кулинарным цехом и экспедицией. В состав цеха входят: помещение для размораживания птицы; помещение для опаливания птицы; отделение обработки; охлаждаемая камера полуфабрикатов; моечная инвентаря; кладовая полуфабрикатной тары; помещение начальника цеха. Если цех работает на полуфабрикатах, не предусматривают помещений для размораживания и опаливания птицы. Размораживание проводят в ваннах или на стеллажах в помещении обработки.

Рис. 4.7. Планировка мясного цеха мощностью 2,0 т:
1 — универсальная машина, 2 — мясорубка, 3 — машина для формовки и панировки котлет, 4, 5 — холодильные шкафы, 6, 7— производственные столы, 8 — тележка-стеллаж, 9 — стул для разруба мяса
Цех обработки птицы и субпродуктов в ресторанах проектируют в одном самостоятельном помещении; при небольшом количестве перерабатываемого сырья обработку птицы и субпродуктов проводят в мясном или мясо-рыбном цехе на отдельных участках. Технологический процесс обработки птицы и субпродуктов в цехе организуют по схеме: опаливание —> удаление голов, шеек, ножек, крыльев —>потрошение —> промывание —> обсушивание —> заправка тушек —> приготовление полуфабрикатов —> обработка потрохов —> укладка в функциональные емкости —> охлаждение и кратковременное хранение —> транспортирование; удаление несъедобных частей —> замачивание —> обсушивание —> укладка в функциональные емкости —> охлаждение и кратковременное хранение —> транспортирование.

Рис. 4.8. Планировка мясного цеха мощностью 0,5 т:
1 — универсальная машина, 2 — мясорубка, 3 — машина для формовки и панировки котлет, 4— устройство для опаливания птицы, 5, 6 —холодильные шкафы, 7, 8— производственные столы, 9 — моечная ванна, 10 — тележка-стеллаж, 11 — стул для разруба мяса
В цехе выделяют две технологические линии: обработки птицы и субпродуктов. При большом количестве обрабатываемой птицы выделяют помещение для опаливания птицы, где устанавливают опалочные горны. Более удачный вариант — опаливание птицы с помощью газовых форсунок. Подвешенные тушки птицы, вращаясь по замкнутому подвешенному металлическому кольцу, проходят вдоль форсунок и хорошо очищаются от перьев и пуха. Для изготовления полуфабрикатов предусматривают рабочие места, оснащенные холодильным, механическим и вспомогательным оборудованием (столы, стеллажи и ванны). Головы, шейки, ножки и крылья удаляют пилой, устанавливаемой перед конвейером, длина которого определяется из расчета 1,2 м на одного работника. Столы работниц устанавливают перпендикулярно конвейеру на расстоянии 0,8 м один от другого. Участок упаковки полуфабрикатов укомплектовывают передвижными стеллажами с функциональными емкостями. После заполнения емкостей готовой продукцией стеллажи направляют в охлаждаемую камеру полуфабрикатов для временного хранения, а из нее — в экспедицию. Планировка цехов обработки птицы и субпродуктов мощностью 2,8 т сырья в смену и 150 кг в сутки показана на рис. 4.9 и 4.10. Рыбный цех. Предназначен для обработки рыбы и изготовления полуфабрикатов: тушек специальной разделки, порционных кусков, изделий из рубленой массы. Проектируют рыбные цехи в заготовочных предприятиях, столовых и ресторанах на 400 мест и более, работающих на сырье, а также как самостоятельные заготовочные предприятия с полным составом помещений при городских распределительных холодильниках. Рыбный цех предприятия, работающего на сырье, независимо от его мощности проектируют в одном помещении. В цехе предусматривают линии обработки частиковый рыбы и производства из нее полуфабрикатов, а также линию обработки осетровых рыб (в ресторанах). В рыбном цехе заготовочного предприятия, работающего на сырье, предусматривают помещения: рыбное отделение; охлаждаемую камеру полуфабрикатов; моечную инвентаря; кладовую полуфабрикатной тары; помещение начальника цеха; помещение Приготовления фиксажа.
Технологический процесс обработки рыбы в цехах организуют по схеме: размораживание —> очистка от чешуи —> удаление плавников, голов, внутренностей —> промывка —> фиксация —> изготовление полуфабрикатов —> укладка в функциональные емкости-—> охлаждение и кратковременное хранение —> транспортирование.

Рис. 4.9. Планировка цеха обработки птицы и субпродуктов мощностью 2,8 т сырья в смену:
Помещения (номера позиций заключены в кружки): 1 — помещение опаливания птицы; 2 — помещение размораживания птицы; 3 — отделение обработки; 4— моечная инвентаря; 5— помещение начальника цеха; 6 — охлаждаемая камера полуфабрикатов; 7— кладовая полуфабри-катной тары; А — линия обработки птицы, Б — линия обработки субпродуктов.
Оборудование: 1 — опалочный горн; 2 — транспортер; 3 — пила для отделения голов, шеи, ножек птицы; 4 — приспособление для удаления клювов и коготков птицы; 5— универсальный привод для мясо-рыбною цеха; 6— котлетоформовочная машина, 7 — хлеборезка (приспособленная для рубки костей); 8 — ванна моечная двухгнездная; 9 — производственный стол со встроенной моечной ванной; 10 — производственный стол; 11 — конторский стол; 12 — производственная передвижная ванна; 13 — емкость для сырьевых отходов; 14 — производственный стационарный стеллаж; 15— передвижной стеллаж; 16— плоский поддон.

Рис. 4.10. Планировка цеха обработки птицы и субпродуктов мощностью 150 кг в сутки:
1 — холодильный шкаф, 2 — устройство для опаливания птицы и дичи; 3 — моечная ванна; 4 — производственный стол; 5 — тележка-стеллаж; 6 — производственный стационарный стеллаж
В цех рыбу доставляют по тельферному пути. Размораживают рыбу путем механической загрузки в сетчатых контейнерах в моечные ванны. Для переработки рыбы предусматривают линии: разделки рыбы и нарезки порционных полуфабрикатов; приготовления изделий из рубленой массы. Линии оборудуют разделочным конвейером, приспособлениями для очистки рыбы, машинами для фиксации и измельчения (мясорубки), столами со встроенными ваннами и передвижными стеллажами.
Столы устанавливают перпендикулярно конвейеру на расстоянии 0,8 м друг от друга. Длину конвейера принимают из расчета 1,2 м на одного работника. Подготовленные полуфабрикаты укладывают в функциональные емкости на отведенном в цехе участке, на стеллажах транспортируют в охлажденную камеру полуфабрикатов для охлаждения и кратковременного хранения, а затем — в экспедицию. Если рыбный цех работает на полуфабрикатах, поставляемых промышленностью, то предусматривают линию для нарезки порционных кусков и изготовления рубленых изделий с установкой механического и вспомогательного оборудования для этих операций. Рыбный цех размещают на первом этаже здания единым блоком с мясным цехом, помещениями для приема и хранения сырья; при этом обеспечивают удобную связь рыбного цеха с кулинарным и с экспедицией. Рыбный цех предприятия небольшой мощности, работающего на сырье, занимает одно помещение, которое располагают на первом этапе здания вблизи подъемника и лестничной клетки, при этом обеспечивают удобную связь рыбного цеха с горячим и с камерой для хранения рыбы. Планировка рыбных цехов мощностью 2 т сырья в смену и 0,5 т сырья в сутки показана на рис. 4.11 и 4.12. Овощной цех. Предназначен для очистки и изготовления полуфабрикатов очищенного картофеля, корнеплодов, капусты, репчатого лука, сезонных овощей и зелени. Овощной цех проектируют в основном как самостоятельное предприятие с полным составом помещений при овощехранилищах и плодоовощных базах. Если по каким-либо причинам в городе отсутствуют или прекратили функционировать овощехранилища или плодоовощные базы, овощной цех проектируют при заготовочном предприятии, причем нередко — в отдельном здании. Во всех предприятиях, работающих на сырье (столовые, кафе, рестораны и диетические столовые), предусматривают овощной Цех. В заготовочном предприятии овощной цех может работать на полуфабрикатах, получаемых от промышленности.

Рис. 4.11. Планировка рыбного цеха мощностью 2 т сырья в смену:
Помещения (номера позиций заключены в кружки): 1 — помещение начальника цеха; 2 — охлаждаемая камера полуфабрикатов; 3 ~ рыбное отделение; 4 — моечная инвентаря; 5— кладовая полуфабрикатной тары;
А — участок нарезки полуфабрикатов; Б — участок приготовления рыбных котлет; В — участок промывки и фиксации рыбы; Г— участок разделки рыбы; Д — участок очистки рыбы от чешуи; Е — участок размораживания рыбы; Ж— участок обработки рыбы с хрящевым скелетом; 3 — участок укладки полуфабрикатов. Оборудование: 1 — электрическая сковорода; 2 — настольная мясорубка; 3 — универсальный привод для мясо-рыбного цеха; 4 — машина для формования и панирования котлет; 5 — машина для фиксации рыбы; 6 — универсальная рыборезка; 7— приспособление для очистки рыбы; 8 — ванна моечная одногнездная; 9 — ванна моечная двухгнездная; 10 — передвижная ванна; 11 — производственная передвижная ванна; 12 — производственный стол; 13 — производственный стол со встроенной моечной ванной; 14 — конторский стол; 15 — передвижной стеллаж; 16 — стационарный стеллаж; 17 — плоский поддон.

Рис. 4.12. Планировка рыбного цеха мощностью 0,5 т в сутки:
1 — мясорубка, 2 — приспособление для очистки рыбы; 3 — холодильный шкаф, 4,5 — производственные столы; 6— производственный стол для очистки рыбы, 7— моечная ванна; 8 —тележка-стеллаж Овощной цех заготовочного предприятия включает следующие помещения: отделение мойки и очистки овощей; отделение дочистки овощей и сульфитации картофеля; охлаждаемую камеру полуфабрикатов; помещение для хранения и приготовления раствора бисульфита; кладовую полуфабрикатной тары; помещение начальника цеха. При работе овощного цеха на полуфабрикатах (например, школьные базовые столовые и др.) в овощном цехе предусматривают отделение овощных полуфабрикатов, отделение нарезки овощей и картофеля, охлаждаемую камеру полуфабрикатов и кладовую полуфабрикатной тары. Технологический процесс обработки овощей включает операции: мойку —> очистку —> дочистку —> сульфитацию (картофеля) —> нарезку —> укладку в функциональные емкости —> охлаждение и кратковременное хранение —> транспортирование. Белокочанную капусту моют после зачистки и удаления зеленых и подгнивших листьев.
Картофель обрабатывают на поточно-механизированной линии ПЛСК-800 производительностью 400; 600 и 800 кг/ч в зависимости от длины конвейера инспекции и дочистки сульфитированного картофеля. Площадь, занимаемая механизированной поточной линией по очистке и сульфитации картофеля, составляет 30 м (длина) х 6 м (ширина) = 180 м2. В цехе кроме линии ПЛСК-800 предусматривают линию по обработке корнеплодов и репчатого лука, на которой все операции, кроме дочистки, осуществляются различными машинами и механизмами: контейнероопрокидывателем, моечной вибрационной машиной, картофелечисткой, дозаторами и т. д. Площадь, занимаемая комплектом оборудования для очистки корнеплодов, равна 20 м (длина) х 6 м (ширина) = 120 м2. Линию обработки капусты, зелени и сезонных овощей по возможности также механизируют. Здесь могут быть установлены машины для высверливания кочерыг, тележки, контейнероопрокидыватель, дозатор и др. В крупных овощных цехах могут быть предусмотрены участки обработки квашений, солений и нарезки овощей. Для нарезки овощей используют овощерезательные машины. Изготовленные полуфабрикаты помешают в функциональные емкости на специальном участке в цехе, лотки и другую тару и на передвижных стеллажах или тележках направляют в охлаждаемую камеру полуфабрикатов для временного хранения, а затем — в экспедицию или в цехи для тепловой обработки. Овощной цех размещают на первом этаже рядом или над кладовой овощей с обеспечением удобной связи с помещениями кулинарного цеха и экспедиции. Для выноса отходов из цеха предусматривают изолированный выход. При проектировании овощного цеха заготовочного предприятия может быть предусмотрено кулинарное отделение, в котором изготовляют разнообразный ассортимент кулинарной продукции: овощи вареные, тушеные, пассерованные, котлеты, крокеты, рулеты, запеканки, маринады и т. п. За последние годы получила распространение заготовка (консервирование) сезонных овощей; подготовляют следующую продукцию: перец для фарширования, суповые наборы зелени, икру из кабачков, баклажанов, отварную морковь и зеленый горошек для гарниров.
Этой продукцией обеспечивают столовые-доготовочные и используют ее для приготовления блюд в собственной столовой для организации питания сотрудников. Кулинарное отделение размещают смежно с отделением дочистки для уменьшения перевалки очищенных овощей. Планировка овощного цеха мощностью 22,4 т сырья в смену приведена на рис. 4.13. Овощные цехи, работающие на сырье, перерабатывающие сравнительно небольшое количество овощей, проектируют в одном помещении. Они должны быть удобно связаны с кладовой овощей, горячим и холодным цехами. При размещении овощного цеха с горячим и холодным цехами на разных этажах связь с ними осуществляют подъемниками и транспортерами. Для обработки отдельных видов овощей в цехе предусматривают рабочие места. Все операции по обработке овощей максимально механизируют. Для мойки и очистки овощей используют картофелечистки, устанавливаемые на фундамент для погашения вибрации, для нарезки — овощерезки. Для облегчения труда работников применяют передвижные ванны, тележки, столы со встроенными ваннами, столы дочистки овощей и стол для очистки лука с вытяжным устройством. Загрузку овощей в картофелечистку и выгрузку из нее осуществляют с помощью наклонного транспортера, для чего картофелечистки поднимают над полом и устанавливают на постамент. Планировка овощного цеха ресторана на 300 мест приведена на рис. 4.14. Кулинарный цех. Входит в состав заготовочных предприятий и выпускает широкий ассортимент кулинарных изделий для снабжения магазинов кулинарии и доготовочных предприятий общественного питания.

Рис. 4.13. Планировка овощного цеха мощностью 22,4 т сырья в смену:
1 — линия очистки картофеля, 2 — линия очистки и сульфитации картофеля, 3 — линия очистки корнеплодов, 4— линия очистки лука, 5 — участок нарезки картофеля, 6 — участок нарезки корнеплодов, 7— участок нарезки свежей капусты, 8— участок нарезки лука.

Рис. 4.14. Планировка овощного цеха ресторана на 300 мест:
1 — картофелеочистительная машина, 2 — стол для дочистки картофеля, 3 — производственный стол, 4 — стол с моечной ванной, 5 — стол для дочистки лука, 6— универсальная овощерезательная машина, 7 — подтоварник, 8 — моечная передвижная ванна, 9 — моечная ванна, 10 — раковина для мытья рук.
Технологический процесс организуют по схеме подготовка продуктов —> приготовление блюд и изделий —> интенсивное охлаждение —> упаковка —> хранение —> транспортирование. Кулинарный цех включает следующие помещения: помещение для подготовки продуктов; горячее отделение; холодное отделение; помещение интенсивного охлаждения; охлаждаемую камеру готовой продукции; моечную инвентаря; кладовую тары для кулинарных изделий; охлаждаемую камеру суточного запаса сырья и полуфабрикатов; помещение укладки готовой продукции; помещение начальника цеха. Кулинарный цех размещают, как правило, на втором этаже предприятия единым блоком, учитывая необходимость в удобной связи с заготовочными цехами (овощным, мясным, рыбным и птице-гольевым) и экспедицией. Планировочное решение кулинарного цеха должно обеспечивать: последовательность технологических процессов приготовления кулинарной продукции и ее транспортирования; смежное размещение горячего и холодного отделений; расположение помещения интенсивного охлаждения рядом с горячим отделением; моечной инвентаря — в непосредственной близости к горячему и холодному отделениям. Кулинарный цех может размещаться в отдельно стоящем здании. В этом случае в состав кулинарного цеха кроме перечисленных выше входят заготовочные отделения, экспедиция, служебная и бытовая группа помещений. В горячем и холодном отделениях кулинарного цеха небольшой мощности различные кулинарные изделия изготовляют на одних и тех же участках, но с разрывом во времени и при соблюдении правил санитарии. Процессы транспортирования и приготовления блюд максимально механизируют, оснащают цех тепловым, холодильным, механическим и вспомогательным оборудованием. Для транспортирования продукции (бульонов, соусов, отварных продуктов и др.) используют грузовые тележки ТПК-80 («китайки»), передвижные емкости Я2ФЦ1В, устройства для загрузки и выгрузки костей из котлов, тельферы с подъемными механизмами для сеток-вкладышей, насосы для перекачивания бульонов и соусов, тележки с подъемными платформами.
Из теплового оборудования в цехе устанавливают пищеварочные котлы различной вместимости, в том числе котлы КПЭ-250 в комплекте с сеткой-вкладышем, подставкой для сеток и подъемным механизмом, жарочные шкафы, варочные аппараты, электросковороды, конвейерные печи, секционные модульные плиты, фритюрницы и электрокипятильники. Используют такое холодильное оборудование, как холодильные шкафы различной вместимости, в том числе для интенсивного охлаждения готовой продукции. Для измельчения, перемешивания, просеивания, протирания и выполнения других операций монтируют универсальные приводы с мясорубками, фаршемешалками протирочными машинами, котлетоформовочные автоматы, кремовзбивальные машины и вибросита. Для укомплектования участков используют также вспомогательное оборудование различных видов: столы для установки средств малой механизации; столы со встроенными ваннами; моечные ванны; передвижные ванны для промывки отварных круп; передвижные стеллажи. Оборудование, отвечающее по модулю функциональным емкостям, компонуют в виде линий. Основное требование, которое при этом должно соблюдаться: напротив линии теплового оборудования устанавливают линию вспомогательного. Одно из направлений централизованного производства кулинарной продукции — производство быстрозамороженных блюд и кулинарных изделий, которые уже сейчас широко применяют для снабжения вагонов-ресторанов и самолетов дальнего следования, а также организации питания отдыхающих на курортах. Здесь быстрозамороженные блюда используют в предприятиях временного и сезонного характера, на теплоходах и подводных лодках. Важнейшее преимущество снабжения предприятий общественного питания быстрозамороженными блюдами — разделение во времени приготовления блюд и их отпуска. Блюда готовят в кулинарном цехе большими партиями в то время, когда потребность в них снижается (например, зимой). Блюда замораживают большими партиями и отпускают тогда, когда мощности предприятий общественного питания не могут обеспечить питанием всех нуждающихся.
В результате сокращения времени и затрат труда на приготовление пищи увеличивается пропускная способность предприятий, Повышается культура производства и уменьшается потребность в обслуживающем персонале. Технология изготовления быстрозамороженных блюд не имеет принципиальных различий с традиционной кулинарией. Готовые блюда фасуют в формочки из алюминиевой фольги, пакеты из полиэтиленовой пленки или целлофана и после интенсивного охлаждения замораживают в скороморозильных аппаратах при -35 °С и хранят до определенного времени при -18 °С. Перед употреблением блюда разогревают. Организация производства быстрозамороженных блюд позволяет не только полнее удовлетворить потребности населения в готовой пище, но и более рационально использовать мощности заготовочных предприятий во вторую и третью смены, что не менее важно. Кондитерский цех. Такие цехи предусматривают на заготовочных предприятиях, изготовляющих полуфабрикаты, и на предприятиях общедоступной сети (кафе, рестораны и столовые). В отличие от мелких кондитерских цехов, организуемых в предприятиях общественного питания, кондитерские цехи заготовочных предприятий имеют большую мощность, технически лучше оснащены и поэтому более рентабельны. В цехе изготовляют широкий ассортимент изделий из дрожжевого, песочного, слоеного, бисквитного и заварного теста, а также выпускают дрожжевое, песочное и слоеное тесто в виде полуфабриката. В результате перепрофилирования производств многих заготовочных предприятий, которое произошло в последние годы, производство кондитерских и мучных изделий разделилось с образованием кондитерского и мучного цехов. Технологический процесс в мучном цехе осуществляют по схеме: подготовка продуктов —> замес теста —> разделка и выпечка изделий —> остывание —> укладка —> хранение —> транспортирование. Сырье, поступающее в цех, разгружают в кладовые суточного запаса. Муку просеивают в помещении просеивания, откуда она подается по гибкому рукаву в отделение замеса, разделки и выпечки мучных изделий.
Для получения дрожжевого теста хорошего качества предусматривают помещение расстойки дрожжевого теста. Готовые изделия хранят в кладовой готовых изделий на стеллажах до отправки в экспедицию. Технологический процесс в кондитерском цехе осуществляется по схеме: подготовка продуктов —> приготовление и выпечка теста и изделий —> остывание —> отделка —> укладка —> охлаждение и хранение —> транспортирование. Сырье разгружают в кладовые суточного запаса (охлаждаемую и неохлаждаемую). После просеивания муки и подготовки продуктов приготовляют тесто всех видов и осуществляют разделку и выпечку изделий из песочного, слоеного, заварного и бисквитного теста. Остывшие изделия отделывают кремами, повидлом или другими отделочными полуфабрикатами, укладывают в тару, охлаждают и хранят в охлаждаемой и неохлаждаемой камерах готовых изделий до отправки в экспедицию. В соответствии с приведенными схемами мучной и кондитерский цехи проектируют следующим образом. Мучной цех включает кладовую суточного запаса, помещение подготовки продуктов, помещение просеивания муки, отделение замеса теста, отделение разделки и выпечки, помещение расстойки дрожжевого теста, охлаждаемую камеру полуфабрикатов, кладовую готовых изделий, помещение мойки яиц, моечную инвентаря, кладовую упаковочных материалов, кладовую тары для готовых изделий, помещение начальника цеха; кондитерский цех — кладовую суточного запаса, охлаждаемую камеру суточного запаса, помещение подготовки продуктов, помещение просеивания муки, отделение приготовления теста, отделение разделки и выпечки, помещение приготовления крема, помещение отделки изделий, отделение приготовления сиропов и помадок, охлаждаемую камеру полуфабрикатов, охлаждаемую камеру готовых изделий, кладовую готовых изделий, помещение обработки яиц (распаковка, мойка и дезинфекция яиц, получение яичной массы), помещение обработки отсадочных мешочков, мелкого инвентаря, моечную инвентаря, кладовую упаковочных материалов, кладовую тары для готовых изделий, помещение начальника цеха.
В кондитерских цехах большой мощности могут быть предусмотрены дополнительные помещения для приготовления бисквитного теста, остывания изделий; в отделении разделки и выпечки — самостоятельные участки для приготовления дрожжевого теста и изделий из него, а также слоеного, песочного, бисквитного и заварного теста. Каждый участок оснащают соответствующим оборудованием. Кондитерские и мучные цехи малой мощности (до 5 тыс. изделий) не дробят на отдельные помещения — выделяют лишь помещения отделки изделий и обработки яиц; мощностью до 15 тыс. изделий — проектируют с отделениями суточного запаса сырья, обработки яиц, подготовки сырья и приготовления теста, разделки и выпечки, остывания и отделки изделий, кратковременного хранения готовых изделий, а также с моечной инвентаря и холодильной камерой для хранения готовых изделий с кремом. Помещения кондитерского и мучного цехов размещают единым блоком, на втором и третьем этаже заготовочного предприятия, обеспечивая удобную связь с помещениями приема и хранения сырья, а также с экспедицией. Помещения располагают последовательно, по ходу технологического процесса, с целью обеспечения кратчайших путей перемещения сырья и готовых изделий. Цехи оснащают оборудованием, соответствующим происходящим в них технологическим процессам: механическим — просеиватель, тестомесильные машины, дежеопрокидыватели, делительно-округлительные автоматы, тестораскаточные машины, машины для отсадки заготовок из теста, взбивальные машины, универсальные приводы, комплексы для очистки мешков от мучной пыли и тестовой корки; холодильным — холодильные шкафы различной вместимости, столы с охлаждаемой поверхностью для раскатки и разделки изделий из песочного и слоеного теста, холодильные разборные камеры для хранения продуктов, полуфабрикатов (слоеного теста, начинок, кремов, сиропов и др.); тепловым — печи, автоматы для жарения пирожков, пекарные трехкамерные шкафы, сковороды, расстоечные шкафы, автоклавы, комплексы с трехполочными люльками для расстойки теста; вспомогательным — производственные столы, передвижные стеллажи, подтоварники, секции-столы с охлаждаемым шкафом, шкафы для сушки кондитерских мешков, дежи к тестомесильным машинам, моечные ванны с сетками-вкладышами.
Оборудование в помещениях цехов размещают последовательно, по ходу технологического процесса, с соблюдением допустимых расстояний, перпендикулярно окнам для обеспечения нормальной освещенности рабочих мест. Планировка кондитерского цеха мощностью 10 тыс. шт. в сутки представлена на рис. 4.15. Помещение для изготовления мучных изделий. Такие помещения предусматривают в доготовочных предприятиях общественного питания и работающих на сырье. Предназначены они для изготовления мучных изделий и реализации их в залах предприятий и магазинах кулинарии. Для производства используют сырье и полуфабрикаты (тесто), доставляемые из заготовочных предприятий. Проектирование этих помещений способствует расширению ассортимента мучных изделий (пирожки, вареники, пельмени, лаваши, вергуны и другие национальные мучные изделия), рациональному использованию работников предприятия и улучшению результатов хозяйственной деятельности. Размещают помещения для изготовления мучных изделий обычно на первом этаже предприятия; они могут также входить в группу помещений для приготовления блюд и кулинарных изделий. Во всех случаях должна быть обеспечена удобная связь со складскими и производственными помещениями. В помещениях для изготовления мучных изделий устанавливают пекарный шкаф, холодильный шкаф, взбивальную машину (универсальный привод), тестомесильную машину с дежами, электросковороду, стеллажи и моечную ванну. Количество и производительность устанавливаемого оборудования определяются ассортиментом и массой выпускаемой продукции. Наряду с перечисленным оборудованием в этом помещении используют ручные приспособления и инвентарь (сита, веселки, венчики, скалки для раскатки теста и др.). Доготовочный цех и цех обработки зелени. Их проектируют в предприятиях, работающих на полуфабрикатах. Доготовочный цех предназначен для доработки мясных, рыбных и овощных полуфабрикатов. В цехе выделяют рабочие места для доработки полуфабрикатов. При большой мощности цеха рабочие места объединяют в технологические линии.
Рабочие места и линии оснащают механическим (универсальный привод, мясорубка), холодильным (холодильный шкаф, секция-стол с охлаждаемым шкафом) и вспомогательным оборудованием ( производственные столы со встроенными ваннами, столы для установки средств малой механизации, моечные ванны).

Рис. 4.15. Планировка кондитерского цеха мощностью 10 тыс. шт/сут:
Помещения (номера позиций заключены в кружки): 7 — помещение для подготовки яиц; 2 — отделение замеса теста разделки и выпечки; 3 — помещение отделки изделий; 4 — моечная инвентаря; 5 — кладовая продуктов; 6 — помещения экспедиций. Оборудование: 7 — плита; 2 — пекарский шкаф; 3, 4 — холодильные шкафы; 5 — секция-стол с охлаждаемым шкафом; 6 — универсальная машина; 7,8 — взбивальные машины; 9 — тестомесильная машина; 10 — машина для раскатки теста; 11 — просеиватель; 12, 13— производственные столы; 14, 15 — моечные ванны; 16 — подтоварник; 17 — тележка-стеллаж; 18, 19 — стационарные стеллажи. В цехе обработки зелени обрабатывают зеленые овощи, зелень, фрукты, ягоды, поступающие на предприятия в виде сырья, и соленья. Рабочие места оборудуют подтоварниками, стеллажами, моечными ваннами, производственными столами со встроенными ваннами, средствами малой механизации, овощерезательными машинами, механическими и ручными.
Оборудование в доготовочном цехе и цехе обработки зелени размещают с учетом обеспечения удобной работы, допустимых расстояний между рабочими местами и линиями по ходу технологического процесса. В доготовочном цехе предусматривают возможность разгрузки контейнеров с функциональными емкостями. Цехи размещают на первом этаже предприятия, обеспечивая удобную связь с помещениями приема и хранения продуктов, горячим и холодным цехами, вблизи подъемников и лестниц с окнами в сторону дворового или боковых фасадов здания, с естественным освещением. Планировка доготовочного цеха и столовой представлена на рис. 4.16. В предприятиях, переведенных на комплексное снабжение полуфабрикатами высокой степени готовности, эти цехи не предусматривают.
И наоборот, если предприятия получают продукцию в виде сырья, даже в небольших количествах, то вместо доготовочного цеха и цеха обработки зелени в соответствии с санитарными требованиями проектируют мясо-рыбный и овощной цехи.
Горячий и холодный цехи. Эти цехи проектируют на всех предприятиях независимо от их мощности, где предусмотрены залы для обслуживания потребителей. Исключение составляют раздаточные предприятия, столовые (в сельских населенных пунктах), кафе и специализированные предприятия на 25 — 50 мест, в которых хранение, приготовление, оформление и отпуск горячих и холодных блюд и закусок, а также нарезку хлеба осуществляют в одном помещении — горячем цехе (кухне).

Рис. 4.16. Планировка доготовочного цеха столовой:
1, 2 — холодильные шкафы; 3 — механическая мясорубка; 4 — рыхлитель; 5 — машина для резки овощей; 6 — производственный стол; 7, 8 — моечные ванны на одно отделение. Горячий и холодный цехи предназначены для приготовления горячих блюд и холодных закусок, отпускаемых в залах предприятия, а также кулинарных изделий — для реализации в магазинах кулинарии. В горячем цехе организуют: участок для приготовления супов, который оборудуют котлами различной вместимости; участок приготовления вторых блюд, оборудованный плитами, котлами небольшой вместимости, жарочными шкафами, сковородами, фритюрницами, шашлычными печами, прилавками-мармитами для первых блюд и соусов, раздаточными стойками с подогреваемой поверхностью; участок приготовления горячих напитков, оборудованный электрокипятильниками и электрокофеварками. В холодном цехе организуют участки приготовления холодных и сладких блюд и оборудуют их холодильными шкафами, льдогенераторами, секциями-столами с охлаждаемым шкафом, секциями-столами с охлаждаемым шкафом и горкой, производственными столами со встроенной ванной, моечными ваннами, стеллажами, раздаточными стойками и приводами для холодных цехов. Для облегчения труда работников рабочие места оснащают маслоделителями, яйцерезками, миксерами, овощерезками и др.
В холодном цехе предприятий большой мощности дополнительно организуют участки по приготовлению салатов из свежих сезонных овощей и зелени, гастрономических продуктов, порционированию и оформлению холодных и сладких блюд. При работе предприятий на полуфабрикатах и продукции высокой степени готовности процессы приготовления и оформления горячих и холодных блюд осуществляют в одном помещении на участках: разогрева и доведения до готовности охлажденных супов, вторых блюд, соусов и гарниров; приготовления несложных блюд (молочных каш, яичных блюд и изделий из творога), приготовления горячих напитков, салатов из сезонных овощей и зелени; блюд из гастрономических продуктов; порционирования и оформления холодных и сладких блюд. Применение секционного модульного оборудования в горячем и холодном цехах предъявляет повышенные требования к организации рабочих мест, поскольку появляется возможность выполнять на рабочих местах последовательно несколько технологических операций, таких, как промывка и переборка круп, шинковка и промывка зелени, хранение продуктов на холоде. Эти требования заключаются в правильном размещении на рабочих местах оборудования, взаимосвязанного ходом технологического процесса: тепловых аппаратов, холодильных шкафов, моечных ванн, производственных столов, механического оборудования и т.п. Основное требование к планировке рабочего места — такое его расположение, которое сводило бы к минимуму переходы повара от одного вида оборудования к другому. В соответствии с этим требованием рядом с плитами устанавливают секции-вставки с водоразборным устройством и инвентарными шкафами, предусматривают установку столов у жарочных шкафов и сковород, между пищеварочными котлами размещают столы со встроенными ваннами, а универсальные приводы и овощерезательные машины — между производственными столами и тепловым оборудованием и т.д. Большое значение имеет порядок размещения рабочих мест на технологических линиях, так как от этого зависит характер передвижения обслуживающего персонала.
Чем короче этот путь, тем меньше будет расходоваться времени и энергии человека в производственном процессе, тем эффективнее будет использоваться оборудование. Правильно организованные технологические линии позволяют сократить лишние непроизводительные движения работников, облегчить условия труда и способствовать повышению его производительности. При размещении оборудования необходимо соблюдать прежде всего принцип прямоточности, с тем чтобы при выполнении работ повара не совершали непроизводительные перемещения в направлении, противоположном направлению технологического процесса. Наиболее рационально линейное размещение оборудования. Повара в процессе работы передвигаются только вдоль линии оборудования и поворачиваются не более чем на 90°. Для рациональной организации труда на рабочих местах надо, комплектуя технологические линии, учитывать не только последовательность выполнения операций, но и направление, в котором ведут процесс. Производительность труда поваров на 5 — 8 % выше, если технологические процессы направлены справа налево. В соответствии с требованиями охраны труда повар должен во время работы машины находиться у пульта управления, поэтому загрузочные отверстия машин с механическими приводами (мясорубок, фаршемешалок, овощерезок, хлеборезок и т.д.) и большинства тепловых аппаратов находятся справа, а разгрузочные отверстия или приемные лотки — слева. Это также подтверждает вывод о том, что процесс обработки должен быть направлен справа налево. Поскольку протяженность технологических линий ограничивается габаритными размерами цехов, допускается применение линейно-группового метода расстановки оборудования по технологическим процессам. Параллельно линиям теплового оборудования в горячем цехе и линиям холодильного оборудования в холодном располагают линии вспомогательного оборудования. Технологические линии могут иметь пристенное и островное расположение, их устанавливают в одну или две смежные линии, параллельно или перпендикулярно раздаче. Планировки холодных и горячих цехов предприятий, работающих с самообслуживанием и обслуживанием официантами, представлены на рис. 4.17— 4.19.
Как видно из рис. 4.17—4.19, характер размещения оборудования в цехах существенно различается. Это обусловлено тем, что в предприятиях с обслуживанием официантами приготовленные блюда оформляют на раздаточных стойках и выдают официантам из цеха, а при самообслуживании реализация блюд осуществляется на линиях раздачи, установленных в зале предприятия.

Рис. 4.17. Планировка холодного цеха столовой:
1 — холодильный шкаф, 2 — секция-стол с охлаждаемым шкафом и горкой; 3 — низкотемпературный прилавок; 4 — машина для нарезания вареных овощей; 5 — ручной маслоделитель; 6, 7 — производственные столы, 8— моечная ванна на одно отделение.

Рис. 4.18. Планировка холодного цеха ресторана:
1— холодильный шкаф; 2 — охлаждаемый стол; 3 — универсальный привод; 4 — раздаточная стойка; 5, 6 — производственные столы; 7 — моечная ванна. Для организации выдачи блюд официантам из холодного и горячего цехов предусматривают раздаточные окна, размеры которых зависят от числа мест в залах. Горячий и холодный цехи размещают в наземных этажах здания, со стороны дворового или боковых фасадов здания, в помещениях с естественным освещением, на одном уровне с залами. При наличии в здании нескольких залов одного назначения цехи размещают на этаже рядом с залом с наибольшим числом мест; на других этажах предусматривают помещения, в которых готовая продукция горячего цеха хранится в мармитах, холодного цеха — в холодильных шкафах, организованы рабочие места для порционирования и оформления блюд. Готовую продукцию транспортируют по этажам подъемниками. При отсутствии последних и размещении на этажах залов разного назначения горячий и холодный цехи проектируют при каждом из них.

Рис. 4.19. Планировка горячего цеха ресторана:
1 — четырехконфорочная плита, 2 — плита с жарочным шкафом; 3 — плита для непосредственной жарки; 4 — мармит для соусов, 5— передвижной стеллаж; 6— сковорода, 7— фритюрница; 8 — жарочный шкаф; 9 — шашлычная печь; 10— кипятильник; 11 — универсальный привод; 12, 13 — пищеварочные электрические котлы, 14 — стол для установки средств малой механизации; 15 — стол с охлаждаемым шкафом; 16— производственный стол; 17 — стол с моечной ванной; 18 — прилавок-мармит для супов; 19, 20 — раздаточные стойки; 21 — холодильный шкаф; 22— охлаждаемый стол; 23 — вставки к оборудованию, 24 — передвижная ванна
Горячий и холодный цехи должны быть удобно связаны друг с другом моечными столовой и кухонной посуды, помещением для нарезки хлеба, цехами — мясным (мясо-рыбным) и овощным при работе предприятия на сырье и цехами — доготовочным и обработки зелени, если предприятие работает на полуфабрикатах, с помещениями для приема и хранения сырья. В зависимости от формы обслуживания горячий и холодный цехи должны иметь удобную связь с помещениями раздачи пищи. При обслуживании официантами цехи примыкают непосредственно к раздаточной; в предприятиях с самообслуживанием — к залам, на площади которых размещают раздаточные линии. Моечная столовой посуды. Это помещение проектируют на всех предприятиях общественного питания, имеющих залы для обслуживания потребителей независимо от их типа и вместимости. Моечная столовой посуды предназначена для очистки посуды от остатков пищи, сортировки, мытья посуды, приборов и подносов, а также для хранения их. Для организации процесса мойки посуды в моечной выделяют две линии: с установкой машины и вспомогательного оборудования; моечных ванн и вспомогательного оборудования. Оборудование в линиях располагают последовательно — в соответствии с ходом операций по обработке посуды и перпендикулярно окну приема посуды. Столовую посуду в моечную доставляют на тележках. Для механизации сбора использованной посуды устанавливают транспортеры, число которых определяют по нормам оснащения оборудованием доготовочных предприятий. Все операции по обработке посуды выполняют в определенной последовательности: очистка посуды от остатков пищи, сортировка и мытье в машине или ваннах, мытье приборов и стаканов, просушивание и стерилизация столовых приборов, хранение чистой посуды на столах, в шкафах, на тележках с выжимным устройством. В зависимости от формы обслуживания потребителей должна быть обеспечена взаимосвязь между функционально зависимыми помещениями. На предприятиях общественного питания с самообслуживанием моечная столовой посуды должна быть связана в первую очередь непосредственно с залом: использованная посуда из зала поступает в моечную, а чистая посуда из моечной — к раздаточным линиям, расположенным в зале.
Кроме зала моечная столовой посуды должна иметь удобную связь с горячим и холодным цехами. На предприятиях общественного питания с самообслуживанием при отпуске пищи с механизированных раздаточных линий моечная столовой посуды должна быть связана непосредственно с горячим цехом, если зона комплектации обедов расположена на площади горячего цеха, с холодным цехом и помещением нарезки хлеба. На крупных предприятиях общественного питания при наличии двух и более залов, расположенных как на одном этаже, так и на разных этажах, в целях снижения непроизводительных затрат труда работников моечные столовой посуды проектируют так, чтобы они примыкали одновременно к залам, раздаточным, горячему и холодному цехам. Использование секционного модульного оборудования позволяет решить такую задачу, так как вместо отдельных цехов можно проектировать одно помещение, разграниченное технологическими линиями оборудования, с образованием отдельных участков приготовления блюд и создавать «гибкие» цехи, где возможна перестановка линий оборудования в соответствии с внедрением механизированных способов раздачи пищи, более прогрессивных технологий, новой техники и научной организации труда.

Рис. 4.20. Планировка моечной столовой посуды в предприятиях с самообслуживанием:
1— машина для мытья посуды; 2 — моечная ванна; 3 — стол для сбора остатков пищи; 4 — транспортер; 5 —тележка для вывоза остатков пищи, 6— тележка с выжимным устройством для тарелок; 7 — производственный стол; 8 — машина для мойки приборов; 9 — раковина для мытья рук; Моечная столовой посуды должна быть удобно связана с камерой пищевых отходов. При размещении моечной на втором этаже связь с камерой отходов, расположенной на первом этаже, осуществляют посредством подъемника грузоподъемностью 100 кг. Планировки моечных столовой посуды в предприятиях с самообслуживанием и обслуживанием официантами представлены на рис. 4.20 и 4.21. На предприятиях с обслуживанием официантами моечная столовой посуды должна быть связана непосредственно с раздаточной, сервизной, горячим и холодными цехами, а также с залами.

Рис. 4.21. Планировка моечной столовой посуды в предприятиях с обслуживанием официантами:
1— посудомоечная универсальная машина; 2 — машина для мойки столовых приборов; 3 — производственный стол, 4— стол для сбора остатков пищи; 5 — моечная ванна, 6 — тележка с выжимным устройством для тарелок, 7,8 — стеллажи для сервизных; 9 — раковина для мытья рук. Сервизные. Их предусматривают в ресторанах и кафе. Основное назначение сервизной — хранение запаса столовой посуды и приборов, необходимых для нормального обслуживания потребителей. Сервизная должна непосредственно примыкать к моечной столовой посуды, раздаточной и иметь удобную связь с горячим и холодным цехами. Оборудуют сервизную шкафами и многоярусными стеллажами для хранения посуды, столовых приборов, сервизов и другими столами. Между моечной столовой посуды и сервизной предусматривают шкафы с передаточными окнами. Моечная кухонной посуды. Это помещение предназначено для мойки посуды и инвентаря. В небольших предприятиях (например, кафе на 25 — 50 мест) моечную можно размещать в одном помещении с моечной столовой посуды и полуфабрикатной тары небольшой мощности. В этом случае линии мойки всех видов посуды разделяют барьерами высотой 1,5 м. В предприятиях до 100 мест в моечных кухонной посуды допускается мойка функциональных емкостей. Моечную кухонной посуды оснащают моечными ваннами, стеллажами, подтоварниками, на крупных предприятиях — моечными кухонными машинами. Размещение оборудования должно обеспечивать последовательное выполнение операций: прием использованной посуды, мойку в ваннах или машине, хранение на стеллажах. Для мойки передвижного оборудования следует выделить специальную зону размером 1300 х 1000 мм. Моечную кухонной посуды размещают в непосредственной близости к горячему цеху, обеспечивая удобную связь с производственными цехами и камерой пищевых отходов. Моечная полуфабрикатной тары. Это помещение, предназначенное для хранения и мойки функциональных емкостей и другой полуфабрикатной тары, предусматривают на предприятиях, работающих на полуфабрикатах.
Моечную полуфабрикатной тары размещают таким образом, чтобы обеспечить удобную связь с доготовочным цехом и приемочной, через которую тару транспортируют на заготовочные предприятия. Планировка моечной кухонной посуды представлена на рис. 4.22. Аналогичным образом устанавливают оборудование в моечной полуфабрикатной тары.

Рис. 4.22. Планировка моечной кухонной посуды:
1 — подтоварник; 2 — моечная ванна; 3 — машина для мойки кухонной посуды; 4 — стеллаж; 5 — бачок для отходов Моечную полуфабрикатной тары, как и моечную кухонной посуды, можно проектировать с искусственным освещением, но обязательно — с приточной и вытяжной вентиляцией. Помещение для резки хлеба. Предназначено для кратковременного (суточного) хранения хлеба, нарезки его и отпуска на раздачу (в предприятиях с самообслуживанием) или официантам. Помещение оборудуют шкафами для хранения хлеба, столом с хлеборезкой и столом для приема нарезанного хлеба. Помещение для резки хлеба размещают вблизи раздаточной при обеспечении удобной связи с приемочной платформой. Допускается искусственное освещение. Планировка помещения для резки хлеба представлена на рис. 4.23.

Рис. 4.23. Планировка помещения для резки хлеба:
1 — производственный стол; 2 — машина для резки хлеба; 3 — шкаф для хлеба; 4 — раковина для мытья рук. Помещение заведующего производством. Предназначено для хранения запаса продуктов. Размещают его вблизи горячего и холодного цехов, подъемника, по которому подают продукты со склада. Помещение оборудуют холодильным шкафом, стеллажом, подтоварником и канцелярским столом. Допускается искусственное освещение. Помещение персонала. Предназначено для приема пищи и отдыха персонала предприятия. Оборудуют помещение столами для приема пищи и раковиной. В помещении должны быть созданы условия для отдыха: по возможности — мягкая мебель, комнатные цветы, аквариумы, музыка. В крупных предприятиях предусматривают барную стойку с автоматической реализацией напитков, мороженого и др. Помещение персонала должно иметь хорошую связь (в функциональном отношении) с горячим и холодным цехами, иметь естественное освещение.
Площадь помещения для отдыха персонала должна быть достаточной для размещения 50 % состава смены. Буфет. В составе производственных помещений предусматривают буфет. Назначение буфета — отпуск официантам кондитерских изделий, холодных напитков, винно-водочных изделий, пива и другой покупной продукции. Буфет можно проектировать совместно с помещением для резки хлеба, в связи с чем в нем кроме оборудования, устанавливаемого в помещении для резки хлеба, предусматривают буфетные прилавки, холодильные шкафы, льдогенератор, производственные столы и стеллажи. Если из буфета отпускают мороженое, то устанавливают низкотемпературный прилавок. Длину фронта выдачи продуктов принимают из расчета 0,01 м на одно место в зале, длину прилавка в помещении для резки хлеба — равной 1,5 м. Буфет может иметь помещение для хранения запаса продуктов. Допускается искусственное освещение. Буфет должен примыкать непосредственно к помещению раздаточной с одной стороны, а с другой — иметь удобную связь со складскими помещениями. Планировка буфета ресторана представлена на рис. 4.24.

Рис. 4.24. Планировка буфета ресторана:
1 — буфетная стойка; 2 — льдогенератор; 3 — стационарный стеллаж; 4— низкотемпературная секция; 5 — холодильный шкаф; 6— подтоварник; 7— электрическая плита; 8 — раковина для мытья рук; 9 — производственный стол; 10 — смесительная установка; 11 — электрокофеварка Раздаточная. В составе производственных помещений на предприятиях с обслуживанием официантами предусматривают раздаточную, которая является служебным помещением официантов. В раздаточной осуществляют кратковременное хранение предметов сервировки, а официанты получают готовые блюда, буфетную продукцию и оформляют заказы в кассовых аппаратах. Важные условия, предъявляемые к проектированию раздаточных, — размещение ее в непосредственной связи с залами, горячим и холодным цехами, буфетом и помещением для резки хлеба, моечной столовой посуды и сервизной; организация прямого сообщения между зоной приготовления пищи, оборудованием для раздачи и отбора готовых блюд; создание целенаправленного производственного потока в направлении слева направо.

Рис. 4.25. Схема взаимосвязи раздаточной с производственными помещениями ресторана:
1 — горячий цех; 2 — холодный цех; 3 — моечная столовой посуды, 4— сервизная; 5 — буфет с хлеборезкой, 6— моечная кухонной посуды; 7 — помещение для заведующего производством; 8 — помещение для официантов; 9 — производственные помещения. При наличии на предприятии нескольких залов раздаточную размещают так, чтобы обеспечить непосредственную связь ее со всеми залами для потребителей. Прямая связь буфета с раздаточной — оптимальное решение. Рядом с буфетом располагают также помещение для хранения напитков. Это обусловлено усиливающейся тенденцией к передаче реализации покупных и других товаров и напитков, подготовленных к продаже, в личное ведение официантов. Поэтому рабочие места буфетчиков все в большей степени заменяются рабочими местами официантов, оснащенными порционирующими разливочными автоматами со счетчиками, охлаждаемыми прилавками для хранения напитков в бутылках и льдогенераторами кубикового льда. Это дает возможность разместить в зале привлекательный для потребителей ассортимент товаров и успешно реализовать его с сервировочных тележек.

Рис. 4.26. Схема планировки раздаточной при наличии нескольких залов:
I — охлаждаемые емкости для напитков, 2,4 — поддоны для сбора стеклянной посуды; 3 — кассовые аппараты; 5 — передвижные столики; 6 — буфет; 7 — кофейный буфет; 8 — вход на производство; 9, 10, 11 — производственные помещения, 12 — залы. Помещения, непосредственно связанные с раздаточной, могут размещаться у раздаточной с одной или двух сторон. При одностороннем их расположении ширина раздаточной должна быть не менее 2 м, при двухстороннем — не менее 3 м. В раздаточной должны быть предусмотрены рабочие места для официантов, установлены в удобных для подхода местах кассовые аппараты, сервировочные тележки и решетчатые поддоны для пустых бутылок. Соответственно размерам устанавливаемого оборудования увеличивается площадь раздаточной. При этом нужно стремиться к компактному устройству раздаточной, ограничению протяженности и обеспечению ее хорошей освещенности.
Это имеет немаловажное значение для сохранения длительной работоспособности и снижения усталости официантов. Схема взаимосвязи раздаточной с производственными помещениями ресторана приведена на рис. 4.25, планировка раздаточной при наличии нескольких залов — на рис. 4.26. Монтажная привязка оборудования. Она определяет местоположение точек ввода коммуникаций (электроэнергии, газа, пара, горячей и холодной воды, отвода в канализацию) к технологическому оборудованию. С этой целью на монтажном плане указывают расстояния от точек ввода до двух строительных конструкций (стен, колонн, перегородок), расположенных перпендикулярно друг другу. Кроме того, указывают все параметры подводимых коммуникаций: число фаз и мощность тока, диаметр трубопроводов горячей и холодной воды, высоту подводок от чистого пола. При нанесении точек ввода коммуникаций необходимо учитывать также рекомендуемые расстояния от точек ввода до краев оборудования. На монтажный план наносят только монтируемое тепловое, холодильное, механическое и вспомогательное оборудование. Фрагмент монтажной привязки оборудования, установленного пристенно на ножках и на ферме, показан на рис. 4.27.

Рис. 4.27. Фрагмент монтажной привязки оборудования, установленного пристенно и на ферме:
1 — электрическое варочное устройство; 2 — жарочный шкаф; 3 — электрическая сковорода; 4— электрическая плита, 5 — фритюрница; 6, 7 — вставки, 8 — островная ферма; I — электрический трехфазный ток (220/380 В) — высота точки h = 200 мм, II— трубопровод холодной воды диаметром 1/2", h — 200 мм; III — электрический трехфазный ток (380 В), жарочный шкаф мощностью 8 кВт; IV— электрический трехфазный ток (380 В), электрическая плита мощностью 12 кВт и электрическая сковорода мощностью 11,5 кВт; V — электрический трехфазный ток (220/380 В), электрическая плита мощностью 12 кВт и фритюрница мощностью 5 кВт.
Расчет численности работников производства и зала
3.6. РАСЧЕТ ЧИСЛЕННОСТИ РАБОТНИКОВ ПРОИЗВОДСТВА И ЗАЛА
Для каждого цеха и помещения предприятия общественного питания определяют численность работников, выполняющих ту или иную работу, технологические операции, связанные с производством и реализацией продукции, мойкой посуды, тары и инвентаря, обслуживанием потребителей.
Численность производственных работников в цехах можно рассчитать по нормам времени (на единицу готовой продукции), а также по нормам выработки с учетом фонда рабочего времени одного работающего за определенный период и производственной программы цеха за тот же период.
Численность производственных работников, непосредственно занятых в процессе производства, определяют по нормам времени в соответствии с формулой

где n — количество изделий (или блюд), изготавливаемых за день, шт , кг, блюд; t — норма времени на изготовление единицы изделия, с; t = К•100; здесь К — коэффициент трудоемкости; значения коэффициентов трудоемкости К даны в Справочнике руководителя предприятия общественного питания (1981 г.); 100 — норма времени, необходимого для приготовления изделия, коэффициент трудоемкости которого равен 1 ,с; Т— продолжительность рабочего дня каждого работающего, ч (Т= 7—7,2 ч или 8—8,2 ч); ? — коэффициент, учитывающий рост производительности труда (? = 1,14), применяют только при механизации процесса.
Численность производственных работников в столовых, а также в производственных цехах заготовочных предприятий по нормам времени находят по формуле

где t — норма времени на полное приготовление блюда, включая отпуск его и мытье кухонной посуды, мин; значения t даны в Нормах времени и расценках для оплаты труда работников предприятий общественного питания за изготовление блюд, полуфабрикатов, кулинарных и кондитерских изделий.
Численность производственных работников по нормам выработки вычисляют по формуле

где n количество изготавливаемых изделий или перерабатываемого сырья за день, шт (кг); Hв — норма выработки одного работника за рабочий день нормальной продолжительности, шт. (кг); значения Hв даны в Справочнике руководителя предприятий общественного питания (1981 г.); ? — коэффициент, учитывающий рост производительности труда; ? = 1,14.
Количество изделий и норма выработки могут быть выражены в условных блюдах.
Численность производственных работников заготовочного предприятия может быть определена по укрупненным показателям:

где G — суточный расход сырья, полуфабрикатов или готовой продукции, т, тыс.-шт.; N — численность работников на единицу перерабатываемой продукции (дается на 1 т сырья или готовой продукции, на 1 тыс. шт кондитерских изделий в ВНТП 04—86), чел/т, чел/тыс, шт.
Общая численность производственных работников с учетом выходных и праздничных дней, отпусков и дней по болезни

где К1 — коэффициент, учитывающий выходные и праздничные дни; значения коэффициента K1 зависят от режима работы предприятия и режима рабочего времени работника (табл. 3.28).
Таблица 3.28
Значения коэффициента К1
| Режим работы предприятия |
Режим рабочего времени производственного |
К1 |
| 7 дней в неделю |
5 дней в неделю с двумя выходными днями |
1,59 |
| 7 дней в неделю |
6 дней в неделю с одним выходным днем |
1,32 |
| 6 дней в неделю |
6 дней в неделю с одним выходным днем |
1,13 |
| 5 дней в неделю |
5 дней в неделю с двумя выходными днями |
1,13 |
Пример. Определить численность производственных работников столовой при заводе (табл. 3.29).
Таблицп 3.29
Расчет численности работников
| Блюдо |
Число блюд за день |
Норма времени, мин |
Количество времени, мин |
| Суп-лапша домашняя |
150 |
2,72 |
408 |
| Суп гороховый |
180 |
0,75 |
135 |
| Голубцы с мясом и рисом и соусом сметанным |
150 |
0,7 |
105 |
| Поджарка из свинины |
280 |
2,35 |
423 |
| Макароны отварные |
180 |
0,62 |
111,6 |
| Итого |
|
|
1182,6 |
Помещение моечной столовой посуды оборудуют посудомоечными машинами непрерывного действия, которые обслуживаются двумя операторами, или периодического, обслуживаемыми одним оператором. Если посуду моют в моечных ваннах, то численность операторов можно рассчитать по формуле (3.27). В этом случае норма выработки на одного оператора за день может быть принята равной 1000 при 7-часовом рабочем дне и 1170 при 8,2-часовом рабочем дне. Численность операторов с учетом выходных и праздничных дней определяют по формуле (3.29).
Численность мойщиков кухонной посуды и цехового инвентаря рассчитывают по формуле (3.28).
Норма выработки равна 2000 блюд при 7-часовом рабочем дне и 2340 при 8,2-часовом рабочем дне.
Численность мойщиков полуфабрикатной тары при ручной мойке

где nт — число единиц тары за день, подлежащих мытью, шт.; Hв — норма выработки одного мойщика за рабочий день нормальной продолжительности; принимают равной 300 единицам тары.
Численность мойщиков кухонной посуды и полуфабрикатной тары с учетом выходных и праздничных дней находят по формуле (3.29).
Численность раздатчиков (комплектовщиков) зависит от типа и производительности принятой к установке раздаточной линии и определяется исходя из данных УкрНИИТОПа: для линии «Поток» (ЛККО-2) производительностью 300—400 обедов/ч — 3 человека, для этой же линии производительностью 600—800 обедов/ч — 6—7 человек.
Численность поваров-раздатчиков

где п — количество блюд, реализуемых в час максимальной загрузки зала (принимают по таблице реализации блюд); t — средняя норма времени на отпуск одной порции блюда, с.
На отпуск одной порции супа в среднем затрачивается 8—11 с, второго горячего блюда — 11—14 с, обеда в целом — 25—30 с.
При расчете числа официантов рекомендуется принять в ресторане высшей категории 12 мест на одного официанта, первой и второй категории — 14—16; в кафе высшей категории — 16, первой — 18, второй — 20. При бригадном методе обслуживания число мест на одного официанта можно увеличить до 10 %.
Расчет площадей производственных, служебных, бытовых и технических помещений
3.8. РАСЧЕТ ПЛОЩАДЕЙ ПРОИЗВОДСТВЕННЫХ, СЛУЖЕБНЫХ, БЫТОВЫХ И ТЕХНИЧЕСКИХ ПОМЕЩЕНИЙ
Площади помещений рассчитывают по площади, занимаемой оборудованием, и по нормативным данным. Площадь производственных помещений рассчитывают по площади, занимаемой оборудованием, и по нормативным данным, всех остальных помещений — по нормативным данным.
Расчет площадей помещений по площади, занимаемой оборудованием. В этом расчете площади помещений вычисляют по формуле (3.14). Коэффициент использования площади для мясного, рыбного, овощного, мясо-рыбного и холодного цехов и для моечной столовой посуды равен 0,35; для горячего, кондитерского и кулинарного цехов — 0,3; для цехов обработки зелени, доготовочного, резки хлеба, а также для моечных кухонной посуды и полуфабрикатной тары — 0,4.
На предприятиях общественного питания, работающих по методу самообслуживания, отдельно рассчитывают площадь горячего цеха — по площади, занимаемой оборудованием этого цеха (плиты, котлы, столы и т. д.), площадь зоны комплектации и зоны получения обедов — по площади, занимаемой раздаточным оборудованием.
Общая площадь помещений — основа для получения компоновочной площади, которую определяют графическим путем в результате правильной расстановки оборудования. После определения компоновочной площади выводят фактический коэффициент ее использования по формуле

где F— площадь помещения, занятая оборудованием, м2; FKOM — компоновочная площадь помещения, м2.
Если оборудование расставлено с учетом всех необходимых требований и правил, то г\ф = г\.
Расчет площадей помещений можно представить в виде табл. 3.47.
Таблица 3.47
Расчет площади горячего цеха
| Оборудование |
Марка оборудования |
Число единиц оборудования |
Габаритные размеры, м |
Площадь, м2 |
|
| занятая единицей оборудования |
занятая всем оборудованием |
||||
| Плита электри-ческая |
ПЭ-0,51-01 |
2 |
1,0x0,8x0,85 |
0,8 |
1,6 |
| Сковорода электрическая |
СЭ-045-0,1 |
1 |
1,2x0,8x0,85 |
0,96 |
0,96 |
| Итого |
|
2,56 |
|||
Площадь горячего цеха равна 2,56 : 0,3 = 8,5 м2.
Расчет площадей помещения по нормативным данным. Площадь цехов заготовочных предприятий (мясного, рыбного и т. д.) рассчитывают по норме площади (м2) на 1 т сырья в сутки или смену; на 1 т полуфабрикатов в смену; на 1 т готовой продукции в сутки или смену; на 1 тыс. изделий в смену или на цех в зависимости от мощности цеха (см. ВНТП 04—86). Площади помещений для обслуживания потребителей и технических помещений (м2) рассчитываются по формуле

где р — число мест в зале или обедов в домовой кухне; d — норма площади на одно место в зале, м2 (см. приложение 13).
Площади служебных и бытовых помещений принимают по нормативным данным на одного работающего.
После проведения расчетов площадей помещений, входящих в состав проектируемого предприятия, составляют сводную таблицу состава и площадей помещений для определения площади всего здания (табл. 3.48). Полученная в результате расчета площадь здания — основа для компоновки проектируемого предприятия.
Таблица 3.48
Сводная таблица площадей помещений
| Помещение |
Площадь, м2 |
|
| расчетная |
компоновочная |
|
| Горячий цех |
63 |
70 |
| Холодный цех |
12 |
10 |
| … |
… |
… |
Расчет площадей складских помещений
3.4. РАСЧЕТ ПЛОЩАДЕЙ СКЛАДСКИХ ПОМЕЩЕНИЙ
Полезную площадь складских помещений заготовочных предприятий определяют как сумму площадей всех расположенных в нем помещений (экспедиция, склад сырья, кладовые), за исключением лестничных клеток, лифтовых шахт, внутренних открытых лестниц и пандусов.
Площадь отдельных охлаждаемых и неохлаждаемых помещений можно рассчитывать по нормативным данным, по нагрузке на 1 м2 грузовой площади пола, по площади, занимаемой оборудованием.
Площадь помещений для приема и хранения продуктов предприятий, доготовочных и работающих на сырье, можно рассчитывать по нагрузке на 1 м2 грузовой площади пола и площади, занимаемой оборудованием.
Расчет площадей помещений по нормативным данным. Этот расчет основан на нормах площади на 1 т сырья в сутки, на 1 т полуфабрикатов или готовой кулинарной продукции в смену, на 1 тыс. штук мучных кондитерских изделий в смену. Нормы площадей зависят от мощности проектируемого цеха, предприятия или фабрики и даны в Ведомственных нормах технологического проектирования заготовочных предприятий общественного питания по производству полуфабрикатов, кулинарных и кондитерских изделий (ВНТП 04—86).
Расчет проводят для каждого помещения в отдельности по формуле

где F— площадь помещения, м2; G — суточный или сменный запас сырья данного вида, полуфабрикатов или кулинарных изделий, кг; f — норма площади (ВНТП-04—86), т/м2, тыс. шт/м2.
Площадь охлаждаемых камер и кладовых в экспедиции принимают из расчета 100%-ного сменного выпуска полуфабрикатов и готовой продукции.
Пример. Определить площадь камеры для хранения 3 т говядины, 2,25 т свинины и 0,75 т баранины на фабрике полуфабрикатов и кулинарных изделий мощностью 16 т в смену

Расчет площадей помещений по нагрузке на 1 м2 грузовой площади пола. В основу этого расчета положены количество продуктов, подлежащих хранению, допустимые сроки хранения и нагрузка на 1 м2 грузовой площади пола.
Площадь (м2) для каждого помещения в отдельности рассчитывают по формуле

где G — суточный запас продуктов данного вида, кг; ? —срок хранения, сут; q — удельная нагрузка на единицу грузовой площади пола, кг/м2 (значения ? и q приведены в приложении 7); ? — коэффициент увеличения площади помещения на проходы; значения ? зависят от площади помещения и принимаются в пределах: 2,2 — для малых камер (площадью до 10 м2); 1,8— для средних камер (площадью до 20 м2); 1,6 — для больших камер (площадью более 20 м2).
Пример. Рассчитать площадь камеры для хранения молочных продуктов, жиров и гастрономии. Представить расчет в виде таблицы (табл. 3.16).
Таблица 3.16
Расчет площади камеры молочно-жировых продуктов и гастрономии
| Продукт |
Суточный запас продукта, кг |
Срок хранения, сут |
Удельная нагрузка на единицу грузовой площади пола, кг/м2 |
Коэффициент увеличения площади |
Площадь, м2 |
| Масло сливочное |
24 |
3 |
160 |
2,2 |
0,99 |
| Сметана |
20 |
3 |
120 |
2,2 |
1,10 |
| Простокваша |
26 |
1 |
120 |
2,2 |
0,47 |
| Сыр |
30 |
5 |
220 |
2,2 |
1,50 |
| Маргарин «Столовый» |
16 |
3 |
160 |
2,2 |
0,66 |
| Колбаса вареная |
42 |
1 |
120 |
2,2 |
0,76 |
| … |
… |
… |
… |
… |
… |
| Итого |
5,48 |
|
|
|
|
Площадь помещения (м2) определяют по формуле

где Fоб — площадь оборудования, т.е. площадь, занимаемая контейнерами или стеллажами (в экспедиции), м2; ? — коэффициент использования площади. Значение коэффициента ? принимают в зависимости от площади камеры в пределах: 0,45 — для камер площадью до 8 м2; 0,55 — для камер площадью до 12м2; 0,62 — для камер, площадь которых более 12м2.
При применении электропогрузчиков коэффициент использования площади принимают равным 0,37.
Площадь охлаждаемой камеры рассчитывают в следующем порядке: определяют необходимое число функциональных емкостей, число единиц и площадь средств их перемещения (стеллажей, контейнеров), а затем площадь самой камеры.
Функциональные емкости и средства их перемещения — передвижные стеллажи и контейнеры стали широко применять при разработке проектов в связи с переходом общественного питания на индустриальные методы приготовления пищи, предусматривающие централизацию производства полуфабрикатов, кулинарных и кондитерских изделий.
Функциональные емкости изготовляют в соответствии со стандартом СЭВ 763—77. Их можно использовать для приготовления пищи, хранения, транспортировки и раздачи ее. Наружные размеры функциональных емкостей соответствуют внутренним размерам средств их перемещения и, кроме того, определяют внутренние размеры технологического оборудования, серийный выпуск которого начат промышленностью. Модулем функциональных емкостей являются длина и ширина (530 х 325 мм). Высоту выбирают из следующего ряда размеров: 20; 40; 65; 100; 150 и 200 мм. Для приготовления изделий на пару применяют перфорированные вкладыши высотой 55, 140 и 190 мм. Условное обозначение El x 100 означает, что высота емкости равна 100 мм, длина и ширина 530 х 325 мм, Е2х 150 —высота— 150 мм, длина и ширина равны 2/3 модуля, т.е. 354 x 325мм, Е3 —1/2 модуля (265 x 325 мм), Е4 — 1/3 модуля (176 х 325 мм) и Е5 — 1/4 модуля (265 х 162 мм). Функциональные емкости могут быть с крышками (Е1 х 100К1). В каждую функциональную емкость помещают полуфабрикаты и кулинарные изделия только одного наименования.
Передвижные стеллажи по стандарту СЭВ 762—77 предназначены для внутрицехового и межцехового транспортирования функциональных емкостей, а также для использования при выпекании мучных кулинарных и кондитерских изделий в печах большой производительности, кратковременного хранения готовых изделий в доготовочных и заготовочных цехах и камерах при них.
Передвижной стеллаж СП-125 имеет габариты 580 х 400 х 1500 мм, грузоподъемность 125 кг; СП-230 — габариты 670 х 600 х 1500 мм, грузоподъемность 230 кг.
Передвижные контейнеры по стандарту СЭВ 762 — 77 предназначены для транспортировки полуфабрикатов, кулинарных и кондитерских изделий из заготовочных в доготовочные предприятия общественного питания и магазины кулинарии. Передвижной контейнер КП-160 имеет габариты 800 х 600 х 900 мм, грузоподъемность 160 кг; КП-300 — габариты 800 х 600 х 1700 мм, грузоподъемность 300 кг.
Функциональные емкости и средства их передвижения представлены на рис. 3.1.

Рис. 3.1. Функциональные емкости и средства их передвижения:
а — емкость с крышкой; б — вкладыш перфорированый; в — стеллаж передвижной; г — контейнер передвижной; д — модульные размеры емкостей.
Число функциональных емкостей определяют исходя из вместимости емкости, используемой для доставки продукции данного вида, по формуле:

где G — количество полуфабрикатов, кулинарных изделий, кг или шт.; Eф.е — вместимость данной функциональной емкости, кг или шт. (см. приложение 8); R — коэффициент запаса емкостей (R = 3 — один комплект емкостей находится на производстве, один — на мойке, один — на доготовочных предприятиях).
Число передвижных стеллажей и контейнеров находят по формулам:


где ес.п — вместимость передвижных стеллажей, шт.; ЕК.П — вместимость передвижных контейнеров, шт.
Вместимость передвижных стеллажей и контейнеров по количеству функциональных емкостей дана в табл. 3.17.
Таблица 3.17
Вместимость передвижных стеллажей и контейнеров
| Обозначение функциональной емкости |
Число емкостей |
|||
| на стеллажах |
в контейнерах |
|||
| СП-125 |
СП-230 |
КП-160 |
КП-300 |
|
| 01 x 20 |
14 |
30 |
16 |
36 |
| 01 x 40 |
14 |
30 |
16 |
36 |
| 01 x 65 |
14 |
30 |
16 |
36 |
| El x l00Kl |
7 |
14 |
8 |
14 |
| El x l50Kl |
7 |
14 |
8 |
14 |
| El x 200Kl |
4 |
10 |
6 |
10 |
Пример. Рассчитать площадь камеры для хранения полуфабрикатов в функциональных емкостях и контейнерах. Расчет представить в виде табл. 3.18—3.20.
Таблица 3.18
Расчет числа единиц функциональных емкостей
| Полуфабрикат |
Масса изделия, кг |
Обозначение функциональной емкости |
Вместимость, кг |
Число функциональных емкостей |
| Картофель сырой очищенный сульфитированный |
164 |
Е1 х 200К1 |
15 |
11 |
| Лук репчатый сырой очищенный |
23 |
E1 x l00Kl |
10 |
3 |
| Азу |
18 |
Е1 х 200К1 |
10 |
2 |
| Люля-кебаб и т. п. |
150 шт. |
Е1 х 65К1 |
64 шт. |
3 |
| Итого |
|
Е1 х 200К1 |
|
13 |
| |
|
E1 x l00Kl |
|
3 |
| |
|
Е1 х 65К1 |
|
3 |
Расчет числа единиц контейнеров
| Полуфабрикат |
Обозначение функциональной емкости |
Число функцио-нальных емкостей |
Вместимость контейнера КП-160 по функциональным емкостям |
Число контейнеров КП-160 |
| Картофель сырой очищенный сульфи-тированный, азу |
Е1х200К1 |
13 |
6 |
2,1 |
| Лук репчатый сырой очищенный |
E1x 100K1 |
3 |
8 |
0,4 |
| Люля-кебаб |
Е1х65К1 |
3 |
16 |
0,2 |
| Итого |
|
|
|
2,7 |
Расчет площади охлаждаемой камеры полуфабрикатов
| Оборудование |
Тип |
Число |
Габаритные размеры, мм |
Площадь единицы оборудования, м2 |
Площадь вего оборудования, м2 |
| Контейнер |
КП-160 |
3 |
800х600х900 |
0,48 |
1,44 |
| … |
… |
… |
… |
… |
… |
Площадь мясной камеры на заготовочных предприятиях и предприятиях общественного питания, работающих на сырье, в которых мясо хранится на подвесных путях, определяют по формуле (3.14). В числителе этой формулы необходимо проставить площадь подвесного пути вместо площади, занятой оборудованием. Площадь подвесного пути можно найти по формулам:
для говядины, свинины

для баранины

где L — длина подвесного пути, м; b — ширина туши, полутуши, четвертины, м.
Длину подвесного пути для хранения говядины, свинины и баранины рассчитывают по формулам:
для говядины, свинины

для баранины

где п — число туш, полутуш, четвертин; а — толщина туши, полутуши, четвертины, м, с — расстояние между тушами, полутушами, четвертинами на подвесном пути, м.
Баранину размещают с двух сторон подвесного пути. На рис. 3.2 дан план размещения туш, полутуш и четвертин на подвесном пути. Участок подвесного пути, на котором они размещаются, можно рассматривать как прямоугольник со сторонами L и b для говядины и свинины и со сторонами L и 2b для баранины.

Рис. 3.2. План размещения туш (баранина), полутуш (свинина) и четвертин (говядина) на подвесном пути:
а — толщина туши (полутуши, четвертины); b — ширина, с — расстояние между тушами (полутушами, четвертинами) на подвесном пути
Число туш, полутуш и четвертин

где G — суточный расход сырья, кг; ? — срок хранения сырья, сутки; g — масса одной туши, полутуши и четвертины, кг.
Средняя масса каждой части (туши, полутуши, четвертины), ее размеры и расстояния между частями приведены в табл. 3.21.
Таблица 3.21
Данные для расчета длины и площади подвесного пути
| Мясное сырье |
Масса, кг |
Размеры, м |
Расстояние между четвертинами, полутушами, тушами по длине подвесного пути, м |
||
| Длина |
Ширина |
Толщина |
|||
| Говядина (четвертина) |
40 |
1,2 |
0,7 |
0,3 |
0,05 |
| Свинина (полутуша) |
35 |
1,0 |
0,4 |
0,2 |
0,03 |
| Баранина (туша) |
20 |
0,8 |
0,4 |
0,2 |
0,03 |
Расчет расхода сырья и кулинарных полуфабрикатов
3.3. РАСЧЕТ РАСХОДА СЫРЬЯ И КУЛИНАРНЫХ ПОЛУФАБРИКАТОВ
При проектировании фабрик и предприятий полуфабрикатов и кулинарных изделий, специализированных цехов (мясного, рыбного, овощного и т. п.) задают или получают расчетным путем (см. раздел 3.1. Производственная программа предприятия) мощность, выраженную в тоннах сырья или полуфабрикатов.
Прежде всего определяют состав и мощность цехов, а затем проводят внутривидовую разбивку сырья (в %): мясо: говядина — 60, баранина — 15, свинина — 25; рыба всех пород: семейства осетровых — 10, океанических и частиковых пород — 90; птица и субпродукты: птица — 60, субпродукты — 40 и т.п. Разбивку проводят, пользуясь Ведомственными нормами технологического проектирования заготовочных предприятий общественного питания по производству полуфабрикатов, кулинарных и кондитерских изделий с учетом специфики обслуживаемого контингента.
Расход сырья для кулинарных и мучных кондитерских изделий определяют на основании ассортимента изделий и их количества также, как для всех предприятий общественного питания (по меню расчетного дня).
При проектировании предприятий общественного питания (столовые, рестораны и т. п.) расход сырья и полуфабрикатов можно рассчитывать по физиологическим нормам питания и по меню расчетного дня. Выбор методики расчета определяется типом предприятия и обслуживаемым контингентом. В столовых при санаториях, домах отдыха, турбазах, профтехучилищах и т. п., т.е. там, где питание организовано по полному дневному рациону, расчет проводят по физиологическим нормам; для всех остальных предприятий общественного питания — по меню расчетного дня.
Расчет расхода сырья по физиологическим нормам. В основу расчета по данной методике положены соответствующие физиологические нормы продуктов питания для данного контингента потребителей. Эти нормы разработаны и утверждены Институтом питания АМН СССР.
Количество сырья (кг) определяют по формуле

где N — число потребителей на данном предприятии в течение дня; g — физиологическая норма сырья данного вида на одного человека в день, г.
Физиологические нормы сырья на одного человека разработаны для учащихся профтехучилищ, домов отдыха, санаториев различных профилей и т.п. соответствующими ведомственными организациями.
Расчет расхода сырья по меню. В его основу положено расчетное меню. Суточное количество сырья (кг) определяют по формуле

где gp — норма сырья или полуфабриката на одно блюдо или на 1 кг выхода готового блюда по Сборнику рецептур, г; n — количество блюд (шт.) или готовой продукции (кг), реализуемой предприятием за день.
Расчет расхода сырья для кондитерского и кулинарного цехов проводят аналогично расчету расхода продуктов по меню. Вместо меню составляют развернутый ассортимент изделий (производственная программа), устанавливают количество изделий по видам и выбирают соответствующие рецептуры для их приготовления.
Формула (3.10) для кондитерского цеха расшифровывается следующим образом:
G — количество сырья данного вида , кг; gp — норма расхода сырья на 100 шт. кондитерских изделий или на 10 кг полуфабриката, г; n — количество кондитерских изделий данного вида (в сотнях штук).
Для кулинарного цеха:
gp — норма расхода сырья на одно изделие или на 1 кг, г; п — количество изделий, шт., кг.
Расчет проводят для каждого продукта в отдельности. Общее количество сырья данного вида:

На предприятия, работающие на полуфабрикатах, поступают полуфабрикаты различной степени готовности и кулинарные изделия. Для таких предприятий проводят расчет необходимого количества полуфабрикатов и кулинарных изделий в штуках или по массе, а не сырья, которое расходуется на их изготовление.
Для отдельных несложных блюд, которые будут готовить в доготовочном предприятии, а также для жарки полуфабрикатов, приготовления некоторых соусов и т.
Таблица 3.15
Сводная продуктовая ведомость
| Сырье, полуфабрикаты, кулинарные изделия |
Количество, кг |
Нормативно-техническая документация |
| Салат зеленый обработанный |
8,4 |
ТУ 28-13-84 |
| Редис обработанный нарезанный |
8,0 |
ТУ 28-13-84 |
| Огурцы свежие |
8,0 |
ГОСТ 1726-68 |
| Лук зеленый обработанный |
5,6 |
ТУ 28-32-84 |
| Яйца |
60 шт. |
РТУ РСФСР 8016-63 |
| Сметана |
8,0 |
РСТ РСФСР 372-73 |
| Горох |
1,4 |
ГОСТ 6201-68 |
| Морковь свежая очищенная |
0,4 |
ТУ 28-48-90 |
| Лук репчатый свежий очищенный |
8,4 |
ТУ 28-48-90 |
| Кулинарный жир |
0,2 |
ОСТ 18-197-74 |
| Бульон костный концентрированный из костей говядины |
2,3 |
ТУ 28-18-84 |
| Свинина (корейка, тазобедренная часть) |
29,6 |
ОСТ 49-208-84 |
| Жир животный топленый пищевой |
2,8 |
ГОСТ 25292-82 |
| Томатное пюре |
4,0 |
ГОСТ 3343-71 |
| Макароны отварные |
40,0 |
ТУ 28-5-82 |
| Сок яблочно-виноградный, л |
80,0 |
ГОСТ 18192-72 |
| Соль |
2,48 |
ГОСТ 13830-68 |
п. следует дополнительно рассчитать все необходимые продукты.
Расход продуктов для любых предприятий общественного питания можно рассчитать с помощью ЭВМ. Методика подготовки информации дана в разделе 3.1.
После расчета расхода сырья, полуфабрикатов и кулинарных изделий составляют сводную продуктовую ведомость, в которой указывают расход сырья, полуфабрикатов и кулинарных изделий, а также нормативно-техническую документацию на них (ГОСТы, ОСТы, ТУ и др.).
Пример. Определить расход сырья и полуфабрикатов для приготовления комплексного обеда на 400 человек (см. табл. 3.10) в столовой при заводе. Столовая работает на полуфабрикатах, для приготовления горохового супа используют костный концентрированный бульон.
Расчет расхода сырья и полуфабрикатов может быть представлен в виде табл. 3.14, сводная продуктовая ведомость — в табл. 3.15.
Таблица 3.14
Расчет расхода сырья, полуфабрикатов и кулинарных изделий
| Сырье, полуфабрикаты, кулинарные изделия |
Салат «Весна» (40 кг) |
Суп гороховый (10л) |
Поджарка из свинины с макаронами (400 порций) |
Сок яблочно-виноградный (400 порций) |
Итого, кг |
||||
| норма продукта на 1 кг выхода, г |
количество продукта, кг |
норма продукта на 1 л блюда, г |
количество продукта, кг |
норма продукта на 1 блюдо, г |
количество продукта, кг |
норма продукта на 1 порцию, г |
количество продукта, кг |
||
| Салат зеленый обработанный |
210 |
8,4 |
|
|
|
|
|
|
8,4 |
| Редис обработанный нарезанный |
200 |
8,0 |
|
|
|
|
|
|
8,0 |
| Огурцы свежие |
200 |
8,0 |
|
|
|
|
|
|
8,0 |
| Лук зеленый обработанный |
140 |
5,6 |
|
|
|
|
|
|
5,6 |
| Яйца |
1,5 шт. |
60 шт. |
|
|
|
|
|
|
60 шт. |
| Сметана |
200 |
8,0 |
|
|
|
|
|
|
8,0 |
| Горох |
|
|
140 |
1,4 |
|
|
|
|
1,4 |
| Морковь свежая очищенная |
|
|
40 |
0,4 |
|
|
|
|
0,4 |
| Лук репчатый свежий очищенный |
|
|
60 |
0,6 |
20 |
8,0 |
|
|
8,4 |
| Кулинарный жир |
|
|
20 |
0,2 |
|
|
|
|
0,2 |
| Бульон костный концентрированный |
|
|
0,232 |
2,3 |
|
|
|
|
2,3 |
| Свинина (корейка, тазобедренная часть) |
|
|
|
|
74 |
29,6 |
|
|
29,6 |
| Жир животный топленый пищевой |
|
|
|
|
7 |
2,8 |
|
|
2,8 |
| Томатное пюре |
|
|
|
|
10 |
4,0 |
|
|
4,0 |
| Макароны отварные |
|
|
|
|
100 |
40,0 |
|
|
40,0 |
| Сок яблочно-виноградный |
|
|
|
|
|
|
200 |
80 |
80,0 |
| Соль |
20 |
|
8 |
0,08 |
4 |
1,6 |
— |
— |
2,48 |
Рецептура № «щи зеленые»
| Наименование |
Масса брутто, г |
Масса нетто, г |
| Щавель |
66 |
50 |
| Шпинат |
135 |
100 |
| Картофель сырой очищенный сульфитированный |
50 |
50 |
| Лук репчатый сырой очищенный |
20 |
20 |
| Мука пшеничная |
10 |
10 |
| Маргарин столовый |
12 |
12 |
| Яйца |
10 |
10 |
| Соль |
4 |
4 |
| Говядина (грудинка) |
40 |
40 |
| Сметана |
10 |
10 |
| Петрушка (зелень) |
6 |
4 |
Для ввода в ЭВМ эту рецептуру преобразуют в следующий вид:
| 198 |
002 |
011 |
500 |
|
|
|
|
|
|
|
| 104 |
103 |
080 |
083 |
002 |
068 |
299 |
028 |
165 |
036 |
090 |
| 066 |
135 |
050 |
020 |
010 |
012 |
010 |
004 |
040 |
010 |
006 |
| 050 |
100 |
050 |
020 |
010 |
012 |
010 |
004 |
040 |
010 |
004 |
Содержание белков, жиров, углеводов дано в граммах, минеральных веществ и витаминов — в миллиграммах, энергетическая ценность указана в килокалориях.
Блюдо содержит: белков — 7,4; жиров — 13,9; углеводов — 39,1; кальция—188,67; магния—155,04; фосфора — 208,01; железа — 5,53; бета-каротина — 6,10; витамина А — 0,10; витамина B1 — 0,27, витамина В2 —0,37; витамина РР—1,42; витамина С — 94,65. Энергетическая ценность блюда 250,0.
Система автоматизации проектирования
Комплексная программа по автоматизации проектных работ предусматривает наращивание уровня их автоматизации, который определяется следующими компонентами: используемой технической базой, программным и информационным обеспечением, организацией работ, которые должны быть тесно увязаны в систему автоматизированного проектирования (САПР).
В соответствии со стандартом САПР представляет собой организационно-техническую систему, состоящую из комплекса средств автоматизации проектирования, взаимосвязанную с подразделениями проектной организации и выполняющую автоматизированное проектирование. Цели создания САПР следующие:
повышение качества и технико-экономического уровня проектируемых объектов, увеличение производительности труда, сокращение сроков, уменьшение стоимости и трудоемкости проектирования.
САПР — это человеко-машинная система, позволяющая на базе ЭВМ автоматизировать определенные функции, выполняемые человеком, для повышения темпов и качества проектирования.
Особенно эффективно применение ЭВМ на начальных стадиях проектирования зданий и сооружений, когда формируются основные конструктивные, объемно-планировочные, технологические, экономические и другие характеристики будущего объекта. САПР предусматривает комплексную автоматизацию процесса проектирования вплоть до выпуска проектно-графической документации.
Важное преимущество автоматизированного проектирования — возможность тиражировать полученные результаты, широко распространять в проектных организациях наиболее эффективные типовые методы и нормативные данные.
Разработка и применение САПР объектов строительства должны ориентироваться на достижение таких основных целей: повышение производительности труда проектировщиков путем привлечения ЭВМ, снабженных терминальными устройствами для выполнения наиболее трудоемких задач по расчету, конструированию и получению изображений (твердых копий) объектов; улучшение качества проектов путем снижения капитальных затрат и экономии расхода материалов и ресурсов.
Достижение второй цели основывается на возможности быстрого рассмотрения и анализа нескольких десятков вариантов, что позволяет углубить оптимизацию проекта объекта строительства, улучшить компоновочные решения, уменьшить используемые территории, выбрать наилучшие конструктивные схемы, снизить материалоемкость зданий и сооружений и т.п.
Структурно САПР подразделяют на ряд подсистем, обеспечивающих комплексную разработку проектно-сметной документации на основе использования ЭВМ, оснащенных различными периферийными устройствами, в том числе дисплеями и графопостроителями.
В соответствии со стандартом машинную графику (МГ) рассматривают как обслуживающую подсистему САПР. Машинная графика состоит из обеспечении: методического, лингвистического, математического, программного, технического, информационного и организационного.
Методическое обеспечение — документы, в которых отражены состав, правила отбора и эксплуатации средств автоматизации проектирования.
Лингвистическое обеспечение — языки проектирования, терминология; сюда также относятся правила формализации естественного языка и методы сжатия и развертывания текстов.
Математическое обеспечение основано на методе математического моделирования, согласно которому структура, отношения элементов в модели соответствуют структуре и отношениям в реальном объекте. В машинной графике используют геометрическую версию математического моделирования, при котором двух- и трехмерные изображения состоят из точек, линий и поверхностей.
Программное обеспечение включает программы на машинных носителях, тексты программ и эксплуатационную документацию. Основу программного обеспечения МГ составляют пакеты прикладных программ (ППП МГ), представляющие собой набор программ, реализующих на ЭВМ инвариантные и объектно-ориентированные графические процедуры.
Техническое обеспечение — устройства вычислительной и организационной техники, средств передачи данных, измерительные и другие устройства или их сочетания.
Информационное обеспечение — документы, содержащие описание стандартных проектных процедур, типовых проектных решений, типовых элементов, комплектующих изделий, материалов и другие данные, а также файлы и блоки данных на машинных носителях с записью указанных документов. Информационное обеспечение должно гарантировать соблюдение принципа информационного единства САПР, который требует, чтобы в подсистеме МГ использовались термины, условные обозначения, символы, проблемно-ориентировочные языки, установленные в отрасли строительства соответствующими стандартами и нормативными документами.
Организационное обеспечение — положения, инструкции, приказы, штатные расписания, квалификационные требования и другие документы, регламентирующие организационную структуру подразделений и взаимодействие их с комплексом средств автоматизации проектирования. Сюда также входят форма представления результатов проектирования и порядок рассмотрения проектных документов, необходимых для функционирования подсистемы МГ.
При автоматизированном проектировании машинная графика позволяет: освободить человека от выполнения однообразных, трудоемких графических операций, которые можно формализовать и тем самым повысить производительность труда в проектировании; благодаря возможности быстрого перебора многих вариантов решать одну из основных задач в области проектирования — поиск оптимальных вариантов; обеспечивать естественную связь человека с ЭВМ.
Машинную графику можно определить как совокупность технических, программных, языковых средств и методов связи пользователя с ЭВМ на уровне зрительных образов при решении различных классов задач.
Комплексы технических средств (КТС) машинной графики обеспечивают ввод графической информации, формирование и вывод результатов в виде графических изображений, а также редактирование изображений. В соответствии с функциональным назначением различают устройства ввода и вывода данных, представленных в графической форме, и ЭВМ, перерабатывающие информацию и определяющие параметры графических изображений. Редактируют изображения с помощью устройств ввода и вывода, объединенных в графические терминальные станции или диалоговые графические терминалы.
Среди устройств ввода, входящих в состав КТС машинной графики, можно выделить устройства графической информации и оперативного ввода неграфических данных. К последним относятся алфавитно-цифровые, цифровые и функциональные клавиатуры, цифровые наборные устройства и т.п.
Устройства вывода графических изображений подразделяют на графические регистрирующие устройства (в результате работы которых изготовляют графические документы) и устройства отображения графической информации без регистрации, или графические дисплеи, при работе которых изображения формируются на экранах, входящих в состав устройств.
Для достижений большей эффективности современные КТС САПР строят в виде трехуровневых систем: верхний — большая ЭВМ (многомашинный комплекс, вычислительная сеть), средний — мини-ЭВМ, управляющая терминальными станциями, нижний — терминальные станции со встроенными микроЭВМ.
Комплексы технических средств машинной графики на основе мини-ЭВМ получили название автоматизированных рабочих мест (АРМ). При таком трехуровневом построении КТС САПР достигаются: эффективное использование многими АРМ больших ЭВМ; повышение производительности процесса проектирования (интерактивной машинной графики) на АРМ; удобный доступ проектировщиков к средствам САПР в результате установки терминальных станций непосредственно на их рабочих местах; возможность использования при необходимости удаленных вычислительных мощностей, создания и ведения распределенных баз данных; специализация вычислительных подразделений и эффективное распределение работ в системе.
Автоматизированные рабочие места (АРМ) представляют собой аппаратурно-программные комплексы, базирующиеся на устройствах ввода и ввода информации в графической и алфавитно-цифровой форме, объединенных мини-ЭВМ по принципу функциональной полноты с общим программным обеспечением и системой текстового контроля. Информационные связи устройств в комплексах обеспечиваются передачей информации по одной или нескольким параллельным физическим линиям (при взаимодействии в реальном масштабе времени) либо переносом информации на носителях.
Комплексы технических средств и программное обеспечение АРМ строят по модульному принципу, что позволяет наращивать мощность отдельных функциональных компонентов и числа объединяемых устройств и переходить к более крупным системам.
Техническое оснащение проектных организаций ориентировано на использование комплексов автоматизированных рабочих мест средней и малой мощности. Технология проектирования предприятий торговли и общественного питания достаточно формализована. Это позволяет разработать автоматизированные системы проектирования, состоящие из отдельных подсистем и технологических линий для создания отдельных видов проектно-сметной документации.Однако обширная номенклатура объектов проектирования со значительным удельным весом небольших по стоимости (мощности, вместимости) предприятий порождает трудности при создании САПР, определении ее структуры и внутренних связей, выделении тех видов работ и объектов, которые необходимо автоматизировать в первую очередь.
Применение ЭВМ экономически не всегда оправдано при конкретном проектировании мелких и разнородных предприятий общественного питания, не имеющих единой формализованной программы вычислений. Напротив, при централизованном проектировании типовых зданий предприятий общественного питания для массового строительства их унифицированных элементов и оборудования использование ЭВМ является высокоэффективным.
Словарь терминов и определений
Вместимость зала — способность зала одновременно вмещать предусмотренное нормативами число потребителей, выраженная числом мест
Доготовочное предприятие общественного питания — предприятие общественного питания, осуществляющее приготовление блюд из полуфабрикатов и кулинарных изделий, их реализацию и организацию потребления
Заготовочное предприятие (цех) общественного питания — предприятие (цех) общественного питания, предназначенное для централизованного механизированного производства кулинарной продукции, мучных кондитерских и булочных изделий и снабжения ими доготовочных предприятий, магазинов кулинарии и розничной торговли.
Место — часть площади зала, оборудованная в соответствии с нормативами для обслуживания одного потребителя
Норматив развития сети — показатель, выраженный отношением установленного числа мест сети предприятий общественного питания к расчетной численности потребителей
Оборачиваемость мест — кратность использования мест за определенный промежуток времени
Общественное питание — совокупность предприятий различных организационно-правовых форм и граждан-предпринимателей, занимающихся производством, реализацией и организацией потребления кулинарной продукции
Потребитель услуги общественного питания — гражданин, пользующийся услугами питания, обслуживания, досуга
Предприятие общественного питания — предприятие, предназначенное для производства кулинарной продукции, мучных кондитерских и булочных изделий, их реализации и (или) организации потребления
Раздача — специально оборудованное помещение (часть зала или производственного помещения предприятия), предназначенное для комплектования и отпуска готовой кулинарной продукции и кондитерских изделий потребителям или официантам
Рацион питания — набор рекомендуемых потребителю блюд и изделий, скомплектованных по видам приема пищи в соответствии с требованиями рационального питания
Рациональное питание — питание потребителей, организуемое с учетом физиологических потребностей в пищевых веществах и установленного режима питания
Сеть предприятий общественного питания — совокупность предприятий общественного питания
Скомплектованный обед (завтрак или ужин) — набор блюд и изделий для приема пищи, составленный с учетом требований рационального питания для приема пищи в обед (завтрак, полдник, ужин)
Специализированное предприятие общественного питания — предприятие общественного питания любого типа, вырабатывающее и реализующее однородную по ассортименту кулинарную продукцию с учетом специфики обслуживания и организации досуга потребителей
Суточный рацион — рацион питания, включающий скомплектованный обед, завтрак, полдник, ужин
Услуга общественного питания — результат деятельности предприятий и граждан-предпринимателей по удовлетворению потребностей населения в питании и проведении досуга
ГОСТ Р 50647—94. Общественное питание. Термины и определения, ГОСТ Р 50764—95. Услуги общественного питания. Общие требования, ГОСТ Р 50762—95. Общественное питание. Классификация предприятий. — М.: Госстандарт России.
Служебные, бытовые и технические помещения
4.4. СЛУЖЕБНЫЕ, БЫТОВЫЕ И ТЕХНИЧЕСКИЕ ПОМЕЩЕНИЯ
Предприятия, работающие на сырье и доготовочные, содержат служебные помещения (кабинет директора, контору и главную кассу); помещение персонала; гардероб для персонала; гардероб для официантов; душевые, уборные и помещения личной гигиены женщин; бельевую; помещение общественных организаций; помещения слесаря-механика, электромонтера; помещение заведующего хозяйством. В группу технических помещений входят: машинное отделение холодильных камер; тепловой пункт; электрощитовая; вентиляционные камеры; камера тепловых завес.
Заготовочные предприятия содержат служебные и бытовые помещения; столовую-раздаточную для персонала; бельевую; здравпункт; помещение для личной гигиены женщин; помещение общественных организаций; помещение учебных занятий; опорный пункт автоматизированной системы управления предприятием; санитарно-технологическую пищевую лабораторию. К техническим помещениям относятся зарядная станция, ремонтно-механи-ческая мастерская, тепловой пункт, насосная, трансформаторная подстанция, вентиляционные камеры, камера кондиционирования, машинное отделение холодильных камер и лифтов, радиоузел, АТС.
Служебные помещения проектируют на любом этаже здания, обеспечивая удобную связь со всеми помещениями предприятия; освещение естественное. Допускается размещать служебные помещения в цокольных этажах. В заготовочных предприятиях эта группа помещений может располагаться в пристроенном или отдельно стоящем здании. В служебно-бытовом блоке заготовочного предприятия предусматривают проходную.
Главная касса должна находиться в непосредственной близости к служебным помещениям; освещение естественное.
Бытовые помещения располагаются единым блоком в здании со стороны входа обслуживающего персонала (со стороны хозяйственного двора или боковых фасадов здания) в подвальном, цокольном или первом этаже здания. Они должны иметь удобную связь со всеми группами помещений.
В заготовочных предприятиях бытовые помещения размещают последовательно, по ходу движения персонала, единым блоком со стороны главного фасада здания, с самостоятельным входом для возможной изоляции их от других помещений при обеспечении удобной связи со всеми помещениями, в подвальном, цокольном или первом этаже здания.
Гардеробные предназначены для хранения уличной и домашней одежды, а также спецодежды. Проектирование гардеробных регламентируется гигиеническими требованиями. Гардеробы для женщин и мужчин проектируют раздельными. Гардероб официантов, предназначенный для переодевания и хранения спецформы, проектируют отдельно. Гардеробные для производственных работников следует проектировать на основе принципа раздельного хранения уличной и специальной одежды. Площадь гардероба определяют из расчета хранения в них одежды для 85 % общего числа работающих. На предприятиях с общим числом работающих 100 и менее для хранения всех видов одежды предусматривают один двойной шкаф на одного работника; на предприятиях с общим числом работающих более 100 предусматривают гардеробные для раздельного хранения на вешалках одежды; уличной — один крючок на одного работника, домашней и спецодежды — два крючка на одного работника. Длину вешалки определяют из расчета шесть крючков на 1 м длины вешалки. При наличии резерва площади целесообразно устанавливать шкафы с двумя или тремя отделениями с крючками для развешивания одежды и полками, по количеству большими, чем это требуется по расчетам, поскольку численность персонала может возрасти за счет использования сезонных лиц или практикантов.
В заготовочных предприятиях предусматривают гардеробные для раздельного хранения на вешалках: уличной одежды (один крючок на одного работающего); домашней и спецодежды (два крючка на одного работающего). Число мест в гардеробных для верхней одежды следует принимать равным 100 % работающих в максимальной смене плюс 25 % от смежной смены. При гардеробных для мужчин и женщин предусматривают раздельные помещения для переодевания, смежные с душевыми кабинами.
Площадь гардеробных принимают из расчета 0,575 м2 на одного работника; эта площадь включает 0,125 м2 — гардероб верхней одежды; 0,25 м2 — гардероб домашней и спецодежды (на 100 % производственного персонала); 0,05 м2 — помещение для хранения личных вещей (на 100 % производственного персонала); 0,15 м2 — помещение для переодевания (на 100 % производственного персонала).
Число процедурных кабин принимают из расчета одна кабина на 100 женщин. Размеры кабины 1,8 х 1,2 м.
В местах для раздевания предусматривают скамьи, над которыми должно быть по два крючка. Число мест для раздевания определяют из расчета три места на одну кабину. Площадь для раздевания определяют из расчета 0,7 м2 на одно место.
Кладовую для белья устраивают смежно с гардеробами рабочей одежды. Площадь бельевой принимают по СНиПам, в заготовочных предприятиях — из расчета 10 м2 на 100 человек производственного персонала. В бельевой предусматривают отделения для чистого и грязного белья.
Санитарно-технологическая лаборатория содержит: помещение приема проб, кабинет начальника лаборатории и два отделения: химико-технологическое и бактериологическое.
В химико-технологическом отделении предусматривают комнату для ведения физико-химических анализов (с вытяжным шкафом), весовую, моечную, кладовую для хранения посуды, реактивов и инвентаря.
В бактериологическом отделении проектируют комнату для проведения баканализов с боксом для посевов, автоклавную, моечную и средоварочную.
Помещения моечных и кладовой для хранения посуды, реактивов и инвентаря могут быть объединены при условии разделения линий мойки и хранения посуды и реактивов.
Площадь помещений лаборатории принимают равной 8 — 10 м2 на 1 т перерабатываемого сырья.
Технические помещения представляют собой особую группу. Они не всегда могут располагаться единым блоком, так как служат, как правило, вспомогательными помещениями, обслуживающими другие группы помещений. Поэтому при их размещении в плане здания должно соблюдаться требование удобного доступа к ним и наличия самостоятельных входов из производственных коридоров или со стороны хозяйственной зоны предприятия. Проектируют технические помещения в цокольном, подвальном и других этажах здания.
Машинное отделение холодильных камер размещают в непосредственной близости к холодильным камерам с выходом наружу или в производственный коридор. Ширина проходов в машинном отделении должна иметь следующие значения (м): не менее 1,5 — главный проход и проход от электрощита до выступающих частей холодильной машины; не менее 1 — между выступающими частями машин; не менее 0,8 — между гладкой стеной и машинами.
В предприятиях малой мощности для установки холодильного агрегата можно не предусматривать специального машинного отделения. Запрещается располагать холодильные агрегаты на лестницах и лестничных площадках, под лестницами, в непосредственной близости к входным дверям зданий, в машинных отделениях лифтов и в вестибюле. Не допускается также размещать холодильные агрегаты в тепловых шлюзах (тамбурах), холодильных камерах и в коридорах холодильников.
Вентиляционная установка отводит излишки теплоты, влаги и вредные газы, выделяющиеся из помещений предприятий, находящихся на разных этажах. В связи с этим в производственных помещениях предприятий общественного питания предусматривают приточные и вытяжные вентиляционные установки, представляющие собой раздельные системы, располагаемые на разных этажах.
Вентиляционные камеры и тепловой пункт располагают у наружных стен здания.
Электрощитовую размещают также у наружных стен и по возможности вблизи группы помещений с наибольшей установочной мощностью оборудования. Не допускается, чтобы электрощитовая находилась под моечными, душевыми, санузлами и другими помещениями, где имеются раковины и канализационные трапы.
Ремонтно-механические мастерские выполняют текущий ремонт технологического, подъемно-транспортного, энергетического оборудования, проводят ремонт инвентаря и тары, точку ножей и правку пил, изготовление различных видов ручных приспособлений для облегчения труда работников предприятия.
Камеру кондиционирования воздуха размещают рядом с тепловым пунктом (теплоносителем является перегретая вода теплосети) и в удобной связи с холодильной установкой (хладоноситель — охлажденная вода). Площадь приточной камеры неполного комфортного кондиционирования воздуха вместе с машинным отделением холодильной установки при проектировании принимают равной 0,4 — 0,45 м2 на одно место.
Электрощитовую желательно располагать у наружных стен и в непосредственной близости от производственных помещений с наибольшей установочной мощностью оборудования.
Электрощитовые размещают выше уровня грунтовых вод, а в районах, подверженных затоплению, — выше уровня затопления. Не допускается располагать электрощитовые под моечными, санузлами, душевыми, горячим и другими производственными помещениями.
На заготовочных предприятиях электрощитовые должны отделяться от помещений другого назначения противопожарными перегородками и перекрытиями. Питающие линии к распределительным пунктам охлаждающих или замораживающих пищевые продукты установок должны быть самостоятельными.
Распределительные пункты, шкафы и щитки должны находиться за пределами помещений выколачивания мешков, моечных, охлаждаемых камер, кладовых и складов картофеля и овощей.
Распределительные пункты, шкафы и щитки размещают в коридорах утопленно в нишах, выполненных из несгораемых конструкций. Установка их в мясном, рыбном, овощном, кондитерском и кулинарном цехах допускается лишь в металлических шкафах с уплотнением.
Двери электрощитовой должны иметь ширину не менее 0,75 м и открываться наружу.
Зарядную станцию, трансформаторную подстанцию, насосную АТС размещают во дворе заготовочного предприятия в отдельно расположенном здании, пристроенном к зданию заготовочного предприятия, в подвальном, цокольном или первом этаже.
В группе технических помещений столовых на 150 мест и более и ресторанах необходимо предусматривать помещение для слесаря-механика площадью 6 м2.
Состав и содержание проекта
В соответствии с «Инструкцией о составе, порядке разработки проектно-сметной документации на строительство предприятий, зданий и сооружений» (СНиП 1.02.01—85) проектирование осуществляют в одну или в две стадии. Проектирование предприятий, зданий и сооружений, строительство которых будет проводиться по типовым и повторно применяемым проектам, а также для технически несложных объектов, осуществляют в одну стадию — рабочий проект со сводным сметным расчетом стоимости. Для других объектов строительства, в том числе крупных и сложных, — в две стадии — проект со сводным сметным расчетом стоимости и рабочая документация со сметами.
В целом проект состоит из текстовых материалов (пояснительной записки, расчетов), чертежей и сметной документации.
В пояснительной записке обосновывают принятые архитектурно-планировочные, технологические, конструктивные (строительные) и инженерные (санитарно-технические, электротехнические и др.) решения, приводят основные технико-экономические показатели, характеризующие эффективность проекта.
Чертежи — это графическое изображение принятого архитектурного, технологического и конструктивного решения проектируемого объекта, его элементов и деталей.
Сметная документация определяет общую стоимость строительства здания и служит основанием для выделения капитальных вложений, финансирования строительства данного объекта и расчетов между подрядчиком (строительной организацией) и заказчиком за выполняемые работы.
На первой стадии разработки проекта решают следующие основные вопросы: обеспечение производства сырьем, материалами, энергией, водой и другими ресурсами; организация транспортных потоков сырья, полуфабрикатов и готовой продукции; специализация и кооперирование производства, связь с сопряженными отраслями народного хозяйства; технологические схемы производства, обеспечивающие высокую производительность труда; организация и экономика производства и применение автоматизированных систем управления; использование территории, отведенной под застройку, и выбор оптимального варианта генерального плана.
При разработке проекта сопоставляют также объемно-планировочные, архитектурные и конструктивные решения зданий и сооружений; предусматривают условия для создания научной организации труда; сопоставляют проект организации строительства, рассчитывая продолжительность его осуществления; определяют сметную стоимость строительства и его основные технико-экономические показатели.
Проект включает общую пояснительную записку с кратким изложением содержания проекта, сопоставление вариантов и данных об очередности строительства, архитектурно-строительную, технологическую, технико-экономическую части и сводный сметный расчет.
Архитектурно-строительная часть содержит: пояснительную записку, в которой приводят общую характеристику объемно-планировочного и конструктивного решения здания; схему генерального плана участка; планы этажей с указанием всех основных размеров помещений; разрезы и фасады здания; конструктивную схему здания; узлы и детали; схемы инженерных сетей и коммуникаций в здании.
В состав технологической части входят: пояснительная записка (основные технологические характеристики предприятия, необходимые обоснования и расчеты); технологические планы помещений с расстановкой технологического оборудования в производственных помещениях, оборудования и мебели в залах и т.д.
Технико-экономическая часть содержит основные технико-экономические показатели и сравнение их с аналогичными данными существующих проектов. Здесь же должны быть приведены данные об источниках снабжения проектируемого объекта водой, электроэнергией, теплом, газом и т. д.
Для определения сметной стоимости строительства составляют локальные сметы по каждой части проекта: технологической, архитектурно-строительной, санитарно-технической, электротехнической и др. Отдельно составляют локальные сметы на монтаж и приобретение технологического оборудования, монтаж технологических трубопроводов и арматуры, монтаж технологических стальных конструкций и антикоррозийные работы.
Сметная стоимость строительства должна предусматривать все необходимые затраты, в составе которых учитывают средства на проектно-изыскательские работы, включая разработку заданий на проектирование и авторский надзор.
В целях осуществления контроля за качеством проектирования и внедрением в производство новейших научно-технических достижений, повышения эффективности капитальных вложений проекты и сметы подвергают экспертизе и утверждению.
На второй стадии в соответствии с утвержденным проектом разрабатывают рабочую документацию (чертежи). В рабочих чертежах уточняют и детализируют предусмотренные проектом решения для производства строительно-монтажных работ.
Комплект рабочих чертежей включает следующие основные Документы: заглавный лист с перечнем чертежей; чертеж генерального плана; архитектурно-строительные чертежи планов этажей, фасадов, разрезов, интерьеров, фундаментов под здание и оборудование, чертежи нетиповых несущих и ограждающих конструкций, узлов, деталей изделий со спецификациями; технологические чертежи планов и разрезов с технологическим, транспортным, энергетическим и другим оборудованием; схемы технологических трубопроводов, сетей и устройств энергоснабжения и электроосвещения, автоматизации, связи и сигнализации, водопровода и канализации, отопления и вентиляции, кондиционирования воздуха, газоснабжения и др.; чертежи антикоррозионной защиты конструкций, оборудования и коммуникаций; чертежи устройств, связанных с охраной труда; спецификации для заказов оборудования, в том числе нестандартного, приборов, труб, арматуры, кабельных и других изделий; ведомость объемов строительных и монтажных работ по объектам и видам работ.
Рабочая документация (чертежи) экспертизе и утверждению не подлежит. По общим, деталировочным чертежам и спецификациям определяют объемы и стоимость строительно-монтажных работ строящегося объекта. Составленные сметы передают на рассмотрение и согласование генеральной подрядной строительно-монтажной организации. Отмеченные замечания по конструктивным решениям объекта строительства и сводному сметному расчету стоимости строительства устраняются по поручению заказчика проектной организацией.
Разработку проектно-технической документации в одну стадию — рабочий проект со сводным сметным расчетом стоимости — осуществляют для технически несложных объектов или зданий, возводимых по типовым и повторно применяемым экономичным индивидуальным проектам.Для сокращения объема проектного материала в рабочий проект входят только те чертежи и данные, которых нет в типовых и повторно применяемых проектах. Рабочий проект включает рабочие чертежи, пояснительную записку с технико-экономическими показателями, схему генерального плана предприятия, перечень типовых и повторно применяемых проектов, дополнения и изменения в связи с их привязкой и сводную смету. Разработанная проектно-сметная документация должна быть согласована с соответствующими организациями и утверждена, как и при двухстадийном проектировании.
Список рекомендуемой литературы
Аграновский Е.Д., Дмитриев Б.В. Основы проектирования и интерьер предприятий общественного питания. — М.: Экономика, 1982. — 144 с.
Арустамов З.А., Ванукевич А.С., Худайшукуров Т. Технологическое проектирование предприятий общественного питания в потребительской кооперации. — М.: Экономика, 1982. — 208 с.
Введенский А.П., Велик М.Д. Реконструкция предприятий общественного питания и торговли. — М.: Экономика, 1989. — 128 с.
Карсекин В.И., Бердичевский В.Х. Основы проектирования и интерьер предприятий общественного питания. — Киев: Вища школа. Головное изд-во, 1983. — 208с.
Каталог торгово-технологического оборудования и средств механизации для предприятий общественного питания. — М.: Центросоюз, 1992. — 143 с.
Кирпичников В.П., Леенсон Г.X. Справочник механика: Общественное питание. — М.: Экономика, 1990. — 382 с.
Липатов Н.Н., Ботов М.И., Муратов М.Ю. Тепловое оборудование предприятий общественного питания. — М.: Колос, 1994. — 431 с.
Никуленкова Т. Т., Маргелов В. Н. Проектирование предприятий общественного питания. — М.: Экономика, 1987. — 175 с.
Организация работы предприятий общественного питания. — М.: Экономика, 1990. — 254 с.
Сборник рецептур блюд и кулинарных изделий для предприятий общественного питания. — М.: Экономика, 1982. — 717с.
Справочник руководителя предприятия общественного питания. — М.: Экономика, 1986. — 461 с.
Справочник технолога общественного питания.— М.: Экономика, 1984.- 463с.
Строительные нормы и правила. СНиП 2.08.02-89. Общественные здания и сооружения. — М.: ЦИТП, 1989. — 40 с.
Технология производства продукции общественного питания/В.С. Баранов, А.И. Мглинец, Л.М. Алешина и др. — М.: Экономика, 1986. — 400 с.
Уренев В.П. Предприятия общественного питания. — М.: Стройиздат, 1986. — 176 с.
Технико-экономическое обоснование проекта
ОСНОВНЫЕ НОРМАТИВЫ РАСЧЕТА И ПРИНЦИПЫ РАЗМЕЩЕНИЯ СЕТИ ПРЕДПРИЯТИЙ ОБЩЕСТВЕННОГО ПИТАНИЯ
2.1. ТЕХНИКО-ЭКОНОМИЧЕСКОЕ ОБОСНОВАНИЕ ПРОЕКТА, ЕГО СОДЕРЖАНИЕ И ЗНАЧЕНИЕ
При проектировании предприятий общественного питания технико-экономическое обоснование ТЭО (ТЭР) в последовательном изложении включает следующие элементы.
1. Обоснование необходимости строительства предприятия в соответствии с расчетными нормативами развития сети. Проектирование общедоступных предприятий общественного питания осуществляют на основе изучения предполагаемого района строительства с определением численности проживающего в нем населения и действующей сети предприятий общественного питания в зоне проектируемого предприятия. Необходимое число мест рассчитывают на основе норматива мест на 1000 жителей для городов различной величины. При проектировании предприятий общественного питания при промышленных производствах, учреждениях, учебных заведениях приводится организационно-экономическая характеристика действующей сети предприятий общественного питания с указанием численности работающих (учащихся), режима работы по сменам и т.п. Необходимое число мест вычисляют с учетом норматива мест на 1000 работающих (учащихся).
2. Характеристика района и обоснование выбора места строительства. При обосновании выбора места строительства рекомендуется учитывать общие требования, предъявляемые к размещению предприятий общественного питания: приближение предприятий общественного питания к потребителю и размещение их на путях массовых потоков населения, обеспечение минимальных затрат времени на получение пищи, удовлетворение спроса на кулинарную продукцию и услуги общественного питания.
3. Инженерные изыскания и обоснование технической возможности строительства предприятия. Определяют возможность отведения участка под строительство при соблюдении требований охраны окружающей среды, санитарно-гигиенических и противопожарных. Указывают возможность подключения к источникам электроэнергии, воды и канализации вблизи участка застройки.
4. Обоснование выбора типа проектируемого предприятия и формы обслуживания. При обосновании выбора типа общедоступного предприятия общественного питания рекомендуется учитывать наличие действующей сети, его профиля, предполагаемый контингент потребителей и рекомендуемое примерное соотношение между основными типами предприятий в разных районах города.
5. Обоснование режима работы предприятия и коэффициентов загрузки зала (в процентах). При разработке режима работы общедоступных предприятий общественного питания рекомендуется учитывать тип, месторасположение и состав потенциального контингента потребителей. Работу предприятий общественного питания при организациях, учреждениях, учебных заведениях следует планировать таким образом, чтобы максимально способствовать полноценной работе (учебе) и отдыху потребителей, а также работе обслуживающего персонала. При обосновании коэффициентов загрузки зала (в процентах) предприятия рекомендуется изучить загрузку зала в действующих аналогичных предприятиях.
6. Обоснование норм потребления блюд. При обосновании норм потребления блюд по видам питания (завтрак, обед, ужин) рекомендуется изучить сложившиеся нормы потребления блюд в действующих аналогичных предприятиях и рекомендации в соответствии с требованиями рационального питания для каждого типа проектируемого предприятия.
7. Расчет производственной программы предприятия. На основе принятых в проекте норм потребления блюд, а также коэффициента загрузки зала (в процентах) определяют плановое количество потребителей за день и количество блюд каждой ассортиментной группы.
8. Определение источников продовольственного снабжения сырьем, полуфабрикатами и товарами, реализуемыми без переработки. Указывают наименование и адреса предприятий пищевой промышленности, заготовочных предприятий, продовольственных баз, предприятий агропромышленного комплекса, которые предполагают снабжать предприятие сырьем, полуфабрикатами и товарами, реализуемыми без переработки.
9. Определение эффективности капитальных вложений (с учетом нормативных коэффициентов).Для определения стоимости строительства в ТЭО (ТЭР) используют укрупненные показатели стоимости строительства.
При разработке ТЭО (ТЭР) учитывают достижения науки и техники, поскольку строящиеся, реконструируемые и расширяемые предприятия ко времени ввода в действие должны быть технически передовыми, иметь высокие показатели по производительности труда и качеству продукции, обеспечивать безопасность и нормальные условия труда. Только после вывода об экономической целесообразности и хозяйственной необходимости проектирования и строительства предприятия начинают разработку задания на проектирование.
Технологические расчеты
Глава 3.
ТЕХНОЛОГИЧЕСКИЕ РАСЧЕТЫ
Технологические расчеты — основа разработки проектов заготовочных предприятий и других типов предприятий общественного питания. Исходными материалами для них служат утвержденное задание на разработку проекта, основные технические направления в проектировании предприятий общественного питания, действующие нормативные документы и инструкции (СНиПы, ВНТП, нормы оснащения оборудованием), требования НОТ при проектировании, примерный ассортимент выпускаемой и реализуемой продукции для различных типов предприятий общественного питания и заготовочных предприятий по производству полуфабрикатов, кулинарных и кондитерских изделий, технические условия (ТУ) и технологические инструкции (ТИ) на полуфабрикаты и кулинарные изделия, соответствующие отраслевые стандарты (ОСТ), Сборники рецептур блюд и кулинарных изделий и др.
На основании технологических расчетов определяют производственную программу проектируемого предприятия, численность работников, виды и количество используемого технологического оборудования, площади цехов и помещений и всего предприятия в целом. Отдельные технологические расчеты могут быть выполнены на ЭВМ.
Технологический расчет и подбор оборудования
3.7. ТЕХНОЛОГИЧЕСКИЙ РАСЧЕТ И ПОДБОР ОБОРУДОВАНИЯ Технологический расчет оборудования сводится к выбору типов и определению необходимого числа единиц оборудования для выполнения тех или иных операций, времени его работы и коэффициента использования.
Номенклатуру оборудования для различных цехов предприятий общественного питания определяют на основе ассортимента изготовляемой продукции и видов оборудования, серийно выпускаемого промышленностью на данный период. Для механизации технологических процессов производства и отдельных технологических операций используют оборудование: механическое; подъемно-транспортное; холодильное; тепловое; вспомогательное.
Технологический расчет оборудования может быть проведен по количеству перерабатываемого сырья, вырабатываемых полуфабрикатов, кулинарных изделий и т.п. за расчетный период времени (основную смену, день, час).
Механическое оборудование. Механическое оборудование цехов предприятий общественного питания предназначено для проведения различных механических операций: очистки овощей, замеса теста, мойки посуды, нарезания хлеба и т. п. Оно может быть представлено отдельными машинами или поточными линиями (в специализированных цехах).
Если выпускаемое промышленностью оборудование для выполнения определенной операции имеет различную производительность, то вначале определяют требуемую производительность предполагаемой к установке машины, а затем время ее работы и коэффициент использования. В остальных случаях требуемую производительность не рассчитывают. Требуемую производительность машины находят по количеству сырья, полуфабрикатов или предметов (для посудомоечной машины), обрабатываемых в период наибольшей загрузки машины.
Требуемая производительность машины (кг/ч, шт/ч)

где G — масса сырья, полуфабрикатов, продуктов или количество изделий, обрабатываемых за определенный период времени (сутки, смену, час), кг (шт.); tу — условное время работы машины, ч;


где Т — продолжительность работы цеха, смены, ч; ?у — условный коэффициент использования машин (?у = 0,5).
На основании проведенного расчета по действующим справочникам и каталогам выбирают машину, имеющую производительность, близкую к требуемой, после чего определяют фактическую продолжительность работы машины (ч)

где Q — производительность принятой к установке машины, кг/ч (шт/ч);
и коэффициент ее использования

где Т — продолжительность работы цеха, смены, ч.
Если фактический коэффициент использования больше условного, то принимают две машины и более.
Пример. Рассчитать число овощерезательно-протирочных машин МОП-П-1 и построить график работы к универсальному приводу для нарезания 100 кг сырого очищенного сульфитированного картофеля и 50кг сырой очищенной моркови. Производительность машины 100 кг/ч, продолжительность работы основной смены 9 ч (табл. 3.30).
Таблица 3.30
Расчет числа овощерезательных машин
| Операция | Масса, кг | Оборудование | Производительность, кг/ч | Продолжительность работы, ч | Коэффициент использования | Число машин | |
| оборудования | цеха | ||||||
| Нарезание | 150 | МОП-П-1 | 100 | 1,5 | 9 | 0,2 | 1 |
| … | … | … | … | … | … | … | … |
Таблица 3.31
Вспомогательная таблица для построения графика
| Время, ч | Соотношение количеств полуфабриката, нарезаемого в день, % | Масса полуфабриката, кг | Продолжительность работы машины, ч | ||
| картофеля | моркови | для нарезки картофеля | для нарезки моркови | ||
| 8 | 30 | 30 | 15 | 0,3 | 0,15 |
| 10 | 50 | 50 | 25 | 0,5 | 0,25 |
| 13 | 20 | 20 | 10 | 0,2 | 0,1 |
| Итого | 100 | 100 | 50 | 1,0 | 0,5 |
Рис. 3.3.

где t — общее время занятости деж, ч; Т — продолжительность работы цеха, смены, ч; tп.п — продолжительность разделки и выпечки последней партии теста, ч (tп.п = 3ч).
Производительность посудомоечных машин характеризуется количеством посуды, обрабатываемой в час. Поэтому ее расчет осуществляют по количеству столовой посуды и приборов, которые необходимо вымыть за час максимальной загрузки зала. Это количество (шт.) определяют по формуле

где Nч — число потребителей в максимальный час загрузки зала; 1,3 — коэффициент, учитывающий мойку стаканов и приборов; п — число тарелок на одного потребителя в предприятии данного типа, шт.
На основании полученных данных по справочникам оборудования выбирают посудомоечную машину требуемой производительности.
Затем определяют количество столовой посуды и приборов, которое необходимо вымыть за день. Это количество находят, подставляя в формулу (3.39) значения числа потребителей за день.
Дальнейший расчет ведут по формулам, определяющим время работы и коэффициент использования механического оборудования.
Поточные линии. При индустриальном способе производства в специализированных цехах устанавливают поточные линии. Технологический расчет поточных линий заключается в определении продолжительности работы и коэффициента использования принятой к установке линии.
Продолжительность работы поточной линии рассчитывают по формуле (3.35), коэффициент использования — по формуле (3.36), чтобы установка была экономически целесообразна, коэффициент ее использования должен быть не менее 0,75.
В соответствии с нормами технического оснащения заготовочных предприятий, разработанными НИИОПом и Гипроторгом, в овощных цехах для механизации процесса очистки картофеля принята поточно-механизированная линия очистки и сульфитации картофеля. Поточная линия может быть скомплектована из отдельных видов оборудования; в этом случае коэффициент использования определяют для каждого вида оборудования отдельно.
Подъемно-транспортное оборудование. На предприятиях общественного питания для механизации погрузочно-разгрузочных работ используют подъемно-транспортное оборудование: для межэтажных связей — грузовые лифты; для доставки грузов в складские помещения, цехи — электропогрузчики, уравнительные площадки, подъемный стол; для перемещения и хранения мяса в виде туш, полутуш и четвертин — подвесные пути; для перемещения сырья и полуфабрикатов в складские помещения и по цеху между рабочими местами — конвейеры; для кратковременного хранения и перемещения функциональных емкостей — контейнеры и передвижные стеллажи; для загрузки и выгрузки кассет с перфорированными вкладышами — подъемные тележки для кассет.
Длину установленного в цехе конвейера определяют по числу работников, занятых на конвейере, по формулам:
при одностороннем обслуживании

при двухстороннем обслуживании

где L — рабочая длина конвейера, м; l — шаг конвейера, м (норма длины конвейера на одного человека равна 1,6 м); N1 — число рабочих мест на линии (соответствует численности производственных работников, занятых на конвейере).
Длину подвесных путей рассчитывают по формулам (3.20) и (3.21); число передвижных контейнеров и стеллажей — по формулам (3.16) и (3.17).
Номенклатура и рекомендуемое количество подъемно-транспортного оборудования даны в Нормах оснащения доготовочных предприятий общественного питания торгово-технологическим оборудованием и Примерных нормах технического оснащения заготовочных предприятий общественного питания, разработанных НИИОПом совместно с Гипроторгом.
Холодильное оборудование. Для кратковременного хранения скоропортящихся продуктов в производственных цехах используют холодильные камеры или холодильные шкафы.
В производственных цехах заготовочных предприятий предусматривают холодильные камеры. Площадь этих камер может быть рассчитана по формулам (3.13), (3.14), (3.18) и (3.19), а также по нормативным данным на 1 т сырья или готовой продукции в сутки, на 1 т полуфабрикатов или готовой продукции в смену, на 1 тыс.-шт.
изделий в смену по ВНТП 04—86.
Холодильные шкафы устанавливают во всех цехах и помещениях, и технологический расчет их сводится к определению полезного объема, или вместимости, шкафа (м3) по формуле

где G — масса продукта (изделия), кг; ? — объемная плотность продукта (изделия), кг/м3 (см. приложение 9); ? — коэффициент, учитывающий массу тары (? = 0,7...0,8).
Массу продукта (изделия) определяют по формуле (3.10).
При хранении скоропортящейся продукции в функциональных емкостях полезный объем холодильного шкафа вычисляют по объему функциональных емкостей

где Vф.е — объем функциональных емкостей, м3.
После определения требуемого полезного объема, или вместимости, холодильного шкафа по справочникам подбирают холодильный шкаф, объем которого близок к расчетному.
Пример. Рассчитать вместимость холодильного шкафа по данным табл. 3.33.
Таблица 3.33
Определение объема полуфабрикатов, подлежащих хранению
| Полуфабрикат | Единица измерения | Число порций | Масса одной порции, г | Масса полуфабриката, кг | Объемная плотность, кг/дм3 | Объем полуфабриката, дм3 |
| Бефстроганов | кг | — | — | 20,0 | 0,84 | 23,8 |
| Антрекот | шт. | 50 | 125 | 6,25 | 0,85 | 7,3 |
| … | … | … | … | … | … | … |
| Итого | 31,1 |
При снабжении готовой продукцией доготовочных предприятий срок ее хранения необходимо увеличить. Поэтому готовую продукцию подвергают быстрому охлаждению от 75...80 до 0...4°С в течение 2 ч. Такое охлаждение осуществляют в шкафах интенсивного охлаждения ШХ-И; оно занимает меньше времени и менее энергоемко в отличие от замораживания.
Необходимое число таких шкафов можно рассчитать по формуле

где G— масса охлаждаемой продукции, кг; Е — вместимость шкафа интенсивного охлаждения, кг; ? — оборачиваемость шкафа за основную смену.

где Т — продолжительность работы основной смены, ч; tц — продолжительность цикла охлаждения; tц = 1,5 ч.
В заготовочных цехах может быть установлен холодильный шкаф ШХ-1,4 ОК, в котором изделия хранятся на передвижных стеллажах в функциональных емкостях (два стеллажа с двадцатью функциональными емкостями Е1х65). Число таких шкафов может быть рассчитано по формуле (3.44).
Холодильные шкафы горячего цеха и горячего отделения кулинарного цеха рассчитывают исходя из условий хранения жиров для жарки, сметаны, творога, молока, яиц и других продуктов, используемых для приготовления блюд и других видов кулинарной продукции (суточный или полусуточный запас); холодильные шкафы холодного цеха — из условий хранения суточного или полусуточного запаса продуктов и полуфабрикатов, из которых готовят холодные и сладкие блюда.
На некоторых предприятиях общественного питания (в ресторанах, кафе и т.п.) кроме вышеупомянутого оборудования в холодных цехах устанавливают другие виды холодильного оборудования — низкотемпературные прилавки, льдогенераторы и т.п. В каждом отдельном случае подбор того или иного вида оборудования осуществляют по количеству или объему хранящейся продукции (низкотемпературные прилавки) или с учетом требуемой максимальной производительности (льдогенераторы).
Холодильные шкафы заготовочного и доготовочного цехов рассчитывают по массе полуфабрикатов, хранящихся в течение 1/4 или 1/2 смены. Количество продуктов, полуфабрикатов, подлежащих хранению, зависит от допустимых сроков хранения и определяется в соответствии с графиком выпуска полуфабрикатов.
Охлаждаемые емкости кондитерского цеха рассчитывают по отделениям, число которых зависит от мощности цеха, а расчет холодильного оборудования в кладовой запаса сырья осуществляют по количеству продуктов, подлежащих хранению в течение суток или в основную смену; отделения замеса, разделки и выпечки — по количеству охлаждаемого слоеного теста; отделения отделки — по количеству отделочных полуфабрикатов; камеры готовых изделий — по количеству готовых изделий с кремом.
Тепловое оборудование. Тепловое оборудование предприятий общественного питания представлено различными видами тепловых аппаратов, предназначенных для приготовления пищи, разогрева и поддержания требуемой температуры блюд и кулинарных изделий.
Технологический расчет теплового оборудования проводят по количеству кулинарной продукции, реализуемой в течение:
дня или определенного периода (2—3 ч) работы предприятия (расчет объема стационарных варочных котлов);
максимально загруженного часа работы предприятия (расчет плит, сосисковарок, кофеварок, фритюрниц, сковород и др.).
В результате технологического расчета выбирают оборудование соответствующей производительности, площади или вместимости; для тех или иных тепловых аппаратов определяют продолжительность их работы и коэффициент использования.
В основу расчета теплового оборудования положены таблицы реализации, которые составляются для всех видов продукции, изготовляемой данным предприятием: блюд, реализуемых в залах, отпускаемых на дом и в магазин кулинарии.
Пищеварочные котлы. Вместимость котлов рассчитывают из условий выполнения следующих операций: варки бульонов, супов, вторых горячих блюд, гарниров, соусов, сладких блюд, горячих напитков, а также варки продуктов для приготовления холодных блюд и кулинарных изделий, реализуемых в магазинах кулинарии. Номинальная вместимость пищеварочного котла (дм3) для варки бульонов

где Vпрод — объем, занимаемый продуктами, используемыми для варки, дм3; Vв — объем воды, дм3; Vпром — объем промежутков между продуктами, дм3.
Объем (дм3), занимаемый продуктами,

где G— масса продукта, кг; ? — объемная плотность продукта, кг/дм3 (см. приложение 9).
Масса продукта

где nс — количество порций или литров (кубических дециметров) супа; gp — норма продукта на одну порцию или 1 дм3 супа, г.
Количество литров (кубических дециметров) супа

где nс — количество порций супа; V1 — объем одной порции супа, дм3.
Если следует приготовить концентрированный бульон (костный, мясной или мясо-костный), то полученное количество бульона необходимо разделить на коэффициент 3,4, который характеризует кратность разведения бульона.
Объем воды, используемой для варки бульонов (дм3),

где nв — норма воды на 1 кг основного продукта, дм3/кг; для костного, грибного, мясного и мясо-костного бульонов nв = 1,25, для рыбного — 1,1 дм3/кг.
Основными продуктами считают кости, мясо и т.п.; овощи при расчете объема воды не учитывают из-за их незначительного содержания в общем объеме продуктов.
Объем (дм3) промежутков между продуктами

где ? — коэффициент, учитывающий промежутки между продуктами (? = 1 - ?).
Если в результате расчета объема котла для варки бульонов, супов, вторых горячих и сладких блюд получен объем менее 40 дм3, то необходимо учесть коэффициент заполнения котла (К= 0,85), т.е. полученный при расчете результат разделить на 0,85. В этом случае используют не котлы, а функциональные емкости (см. приложение 10) или наплитную посуду.
Если на предприятие общественного питания поступает концентрированный бульон и необходимо определить вместимость котла для его разведения до нормальной концентрации, то расчет может быть представлен в виде табл. 3.34.
Таблица 3.34
Расчет вместимости котла для разведения концентрированного бульона
| Бульон | Масса концентрированного бульона, кг | Кратность разведения бульона | Расчетная вместимость котла, дм3 |
| Костный концентрированный | 50,0 | 3,4 | 170 |
| Мясной концентрированный с желе | 35,0 | 2,0 | 70 |
| … | … | … | … |
Вместимость пищеварочных котлов (дм3) для варки супов

где п — количество порций супа, реализуемых за 2ч; Vc — объем одной порции супа, дм3
Вследствие относительно непродолжительного времени варки супов выкипание жидкости при расчете объема котла не учитывают. При расчете объема котлов плотность супа принимают равной единице. Объем котлов рассчитывают на 1 —2 ч реализации блюд.
Если в предприятие общественного питания поступают супы в охлажденном состоянии, то для доготовки их (разведение кипящей водой, проваривание в течение 3—5 мин и настаивание в течение 15—20 мин) рекомендуется использовать варочные устройства УЭВ-40 и УЭВ-60 с котлами, которые можно применять и для отпуска готовых супов с раздачи, так как они выполнены передвижными. Требуемую вместимость котла для доготовки супов можно рассчитать по формуле

где п — количество порций супа, реализуемых за 1 ч, Vпч — объем плотной части, дм3, VB — объем воды для разведения, дм3.
Данные для расчетов приведены в технических условиях (ТУ 287-82).
Вместимость пищеварочных котлов для варки вторых горячих блюд и гарниров находят по формулам:
при варке набухающих продуктов

при варке ненабухающих продуктов

при тушении продуктов

Объем продуктов Vпрод определяют по формуле (3.47), объем воды Vв — по формуле (3.50).
Количество воды, необходимой для варки набухающих продуктов, принимают по Сборнику рецептур блюд. Количество воды для варки ненабухающих продуктов учитывается с помощью коэффициента, равного 1,15. Отсутствие коэффициента, учитывающего объем жидкости в формуле расчета объема котла для тушения, объясняется тем, что из-за незначительного количества жидкости, требуемой для этой операции, вся жидкость распределяется в промежутках между продуктом, не занимая дополнительного объема.
Объем котлов для варки вторых горячих блюд и гарниров рассчитывают в основном на каждые 2 ч реализации. Расчет объема котлов для варки гречневой каши, тушения капусты, а также для варки продуктов, используемых в процессе приготовления холодных блюд, можно проводить сразу на весь день, расчет объема котлов для варки продукции с небольшими сроками реализации — на каждый час.
В электрических пищеварочных котлах КЭ-100, КЭ-160, КЭ-250 варку гарниров осуществляют в перфорированных вкладышах, устанавливаемых в кассеты пищеварочных котлов. Число одновременно загружаемых перфорированных вкладышей зависит от объема котла. Вкладышей может быть 2; 4 или 6 (по технической характеристике котла).
Для загрузки и выгрузки кассет с перфорированными вкладышами используют подъемные тележки. Перфорированные вкладыши устанавливают в функциональные емкости и доставляют на раздачу в передвижных стеллажах или мармитах.
Расчет котлов для варки гарниров на пару в перфорированных вкладышах начинают с определения часовой производительности котла, которая зависит от вместимости и числа перфорированных вкладышей, загружаемых одновременно, а также от продолжительности тепловой обработки. Затем находят продолжительность работы котла, коэффициент его использования и число котлов.
Вместимость котлов (дм3) для варки сладких блюд

где п — количество порций сладких блюд, реализуемых в течение дня, Vc.б — объем одной порции сладкого блюда, дм3.
Вместимость котлов (дм3) для приготовления горячих напитков

где п — количество порций, реализуемых за каждый час работы зала, VГ.Н — объем одной порции напитка, дм3
После расчета вместимости котлов для варки всех видов блюд и продуктов находят число котлов, соответствующее расчетной вместимости, которые необходимо установить в цехе с учетом их максимального использования. Чтобы правильно решить этот вопрос, строят вспомогательную таблицу для определения полного рабочего цикла котла (табл. 3.35) и график работы котлов в прямоугольной системе координат На оси абсцисс откладывают время работы котлов (ч), а по оси ординат — вместимость котлов (дм3).
<

где LCT — длина принятых стандартных производственных столов, м.
Для цехов, изготовляющих полуфабрикаты, длину столов определяют по той же формуле, но при этом следует учитывать характер выполняемой операции. В этом случае: N— число работающих, занятых одновременно на выполнении определенной операции, чел.; l — длина рабочего места для одного работающего (см. приложение 12).
По типам и размерам столы подбирают в зависимости от характера выполняемой операции.
Вместимость ванн (дм3) для хранения очищенного картофеля, размораживания рыбы и промывания продуктов определяют по формуле

где G — масса продукта, кг; ? — объемная плотность продукта, кг/дм3 (см. приложение 9); K — коэффициент заполнения ванны; K = 0,85; ? — оборачиваемость ванны; зависит от продолжительности промывания с учетом времени на загрузку, выгрузку и мойку ванны и определяется по формуле (3.61).
Вместимость ванны можно найти также по формуле (3.46). Размеры ванн выбирают в зависимости от размеров обрабатываемых продуктов и расчетной вместимости. Число ванн вычисляют по формуле

где VCT — вместимость принятой стандартной ванны, дм3.
Для хранения продуктов в складских помещениях устанавливают подтоварники, передвижные контейнеры и стеллажи. Необходимое число передвижных стеллажей и контейнеров находят по формулам (3.15)—(3.17).
Раздаточное оборудование. Раздаточное оборудование устанавливают в предприятиях общественного питания для облегчения и ускорения процесса раздачи блюд. Состав раздаточного оборудования зависит от формы обслуживания. При обслуживании официантами определяют длину фронта раздачи в горячем и холодном цехах, буфете и количество раздаточного оборудования в каждом помещении в отдельности. Длину фронта раздачи рассчитывают по формуле

где Р — число мест в зале; l — норма длины раздачи на одно место в зале, м (для горячих цехов — 0,03 м; холодных цехов — 0,015, для буфетов — 0,01 м).
Количество раздаточного оборудования определяют по формуле

где LCT — длина стандартного оборудования, м.
При обслуживании официантами раздаточное оборудование устанавливают в цехе и в производственных помещениях, поэтому площадь, занимаемую оборудованием, необходимо включать в площадь цеха.
На предприятиях общественного питания с самообслуживанием устанавливают раздаточные линии, число которых зависит от числа мест в зале или количества отпускаемых комплексных обедов и определяется по Нормам оснащения доготовочных предприятий общественного питания торгово-технологическим оборудованием. Раздаточные линии могут быть установлены как в цехе, так и в зале. Во всех случаях необходимо рассчитать площадь, которую они занимают.
Типовое и индивидуальное проектирование
Различают проекты типовые, индивидуальные, для экспериментального строительства, а также для реконструкции существующих предприятий.
Проект, предназначенный для многократного использования в строительстве одинаковых по назначению объектов (с учетом высоких требований к архитектурно-художественному уровню отдельных зданий и застройки в целом в соответствии с градостроительными задачами), называют типовым. Эти проекты обеспечивают сокращение сроков строительства путем использования наиболее экономичных и унифицированных проектных решений, узлов и деталей в соответствии с действующими Строительными нормами и Правилами.
Наиболее опытные специалисты проектных организаций разрабатывают типовые проекты для предприятий, зданий, сооружений и отдельных секций, конструкций, узлов и т.д.
Порядок разработки, согласования, экспертизы, утверждения, применения и отмены типовой проектной документации при проектировании зданий различных типов установлен соответствующей инструкцией по типовому проектированию.
Типовые проекты на стадии рабочей документации со сметами вводятся в действие приказами по проектным организациям, разрабатывающим проекты.
Некоторые типовые проекты распространяют сами организации, выпустившие их (проекты республиканского применения, проекты в системе потребительской кооперации).
При строительстве здания предприятия общественного питания по типовому проекту последний выбирают по паспортам строительного каталога (СК). В паспортах на типовые проекты приводят: область применения (климатический район), основные условия применения (сейсмика, просадочные или вечномерзлые грунты и т. п.), технико-экономические показатели и состав проекта.
Поскольку типовой проект не может учитывать в полной мере всех местных условий строительства (рельеф местности, уровень грунтовых вод, имеющуюся строительную базу, инженерные сети и т. д.), проектные организации проводят привязку типовых проектов. При привязке типовых проектов к местным условиям строительства выполняют следующие проектные работы: определяют координаты и отметки частей зданий и сооружений; уточняют глубину, размеры заложения, конструктивные решения фундаментов и подземного хозяйства с учетом гидрогеологических условий; дорабатывают конструкции цокольных и подвальных этажей, а также узлов примыкания к зданиям эстакад, тоннелей и других сооружений с учетом рельефа места строительства.
Кроме того, составляют проекты узлов примыкания отводов к сетям водоснабжения, канализации, теплофикации, энергоснабжения и связи, к транспортным устройствам и коммуникациям; уточняют толщину наружных стен или утепляющего слоя ограждающих конструкций; проверяют соответствие несущих конструкций покрытия снеговым и ветровым нагрузкам в районе строительства; определяют количество и типы приборов отопления и вентиляционных устройств, отвечающих климатическим условиям района строительства.
После окончания работ по привязке проекта к конкретной строительной площадке всю проектную документацию передают организации, осуществляющей строительство.
Индивидуальные проекты разрабатывают для одноразового строительства предприятий общественного питания в определенном районе с учетом соблюдения всех установленных требований. Одновременно в них допускаются отдельные незначительные отклонения от Строительных норм и правил, применение нестандартных строительных конструкций, нетипового оборудования, использование местных строительных материалов и т.д. Индивидуальные проекты разрабатывают для строительства крупных объектов многофункционального назначения, а также в случаях, когда невозможно или нецелесообразно использовать типовой проект (ограниченность территории участка, сложившаяся застройка, необходимость строительства с использованием рельефа местности и т.д.).
Проекты для экспериментального строительства предназначаются для проверки в реальных условиях возможности внедрения в массовое строительство новых, отвечающих высоким эксплуатационным требованиям, экономичных проектов предприятий общественного питания, новых приемов объемно-планировочных, технологических, конструктивных решений, инженерного оборудования зданий.
Проекты реконструкции разрабатывают для предприятий общественного питания, которые по своему техническому состоянию, оснащению оборудованием, применяемым технологическим процессам и формам обслуживания не соответствуют современным требованиям. В условиях индустриализации общественного питания капитальные вложения будут направляться в первую очередь на реконструкцию и техническое перевооружение действующих предприятий.
Разрабатываемая проектная документация на строительство общественных зданий (в том числе предприятий общественного питания) должна удовлетворять требованиям действующих Строительных норм и правил (СНиП 2.08.02—89 «Общественные здания и сооружения»).
Нормативным документом при проектировании (реконструкции) заготовочных предприятий служат Ведомственные нормы технологического проектирования заготовочных предприятий общественного питания по производству полуфабрикатов, кулинарных и кондитерских изделий (ВНТП 04—86). В них приведены основные типы заготовочных предприятий, состав и нормы площадей помещений, технологические требования к проектированию цехов по переработке сырья и выпуску полуфабрикатов и готовой продукции, технологические процессы в основных производственных цехах, а также требования по максимальной механизации работ с использованием функциональных емкостей и средств механизации Для их перемещения.
Проектная организация по желанию заказчика может вносить изменения при проектировании в состав и нормативы площадей объекта, что предварительно отражают в задании на проектирование.
Варианты размещения мебели в залах
Размеры и форма столов могут быть различными и определяются типом предприятия. В ресторанах, кафе и столовых применяют квадратные и прямоугольные двух-, четырех- и шестиместные столы. В зависимости от формы столов размеры их поверхности изменяются. Квадратные столы имеют сторону размером 600 — 900 мм, прямоугольные выполняют с шириной 600-900 мм и длиной 900-2200 мм. Наиболее распространены квадратные и прямоугольные столы шириной 800 — 900 мм. Банкетные столы должны иметь ширину 950 — 1000 мм, что обусловлено сложной сервировкой. На предприятиях с дополнительным обслуживанием по типу «шведский стол» в зале ставят банкетный стол длиной до 5000 мм или круглый — диаметром 1000 мм.
Для залов небольшой вместимости удобны квадратные столы размерами 600 х 600 или 650 х 650 мм. Их можно использовать как двухместные, а при необходимости сдвигать.
Высота столов 690-750 мм. В молодежных кафе часто используют столы минимальной высотой 690 х 700 мм.
В детских кафе применяют столы размерами 600 х 600 и 700 х 700 мм и высотой 540-550 мм для малышей, 570 — 590 мм — для детей дошкольного возраста.
В кафетериях, где пищу принимают стоя, предусматривают высокие столы — 1050 — 1100 мм. Форма поверхности и размеры разнообразные: круглые 750 — 1300мм, квадратные 600-900 и прямоугольные шириной 500 — 700 мм, а длиной из расчета на 4-6 человек.
Размеры сиденья стульев рекомендуется принимать равными 380 х 450 — 350 х 440 мм. Кресла для ресторанов должны обеспечивать более комфортные условия, поэтому их размеры следует принимать такими: (430-500) х (420-500) мм.
Серьезное внимание уделяют подбору и расстановке подсобных и сервировочных столиков, шкафов и столиков официантов, а также столов для подносов и приборов. Выбор их определяется стилевым соответствием с основной мебелью зала, а также методами обслуживания потребителей.
Оптимальные размеры оборудования должны соответствовать росту и пропорциям человека, обеспечивать возможность рационального размещения хранимых предметов и быть достаточно мобильными.
Рекомендуемое соотношение двух-, четырех- и шестиместных столов дано в табл. 4.6.
Таблица 4.6
Примерное соотношение столов в зале, %
| Тип предприятия |
Число столов |
||
| двухместных |
четырехместных |
шестиместных |
|
| Ресторан |
15 |
80 |
5 |
| Кафе |
50 |
50 |
— |
| Столовая |
5 |
70 |
25 |
При проектировании залов с самообслуживанием необходимо предусмотреть быструю и удобную уборку использованной посуды. Процесс ее уборки должен быть механизирован. Для этой цели на площади зала устанавливают ленточный транспортер по периметру стен от входа в зал до помещения моечной столовой посуды. Площадь зала при этом увеличивают примерно на 10 %. При установке транспортера предусматривают свободный доступ к нему. В том случае, если конфигурация зала не позволяет устанавливать транспортер, использованную посуду доставляют в моечную на передвижных тележках.
Ширина проходов и выбор размеров оборудования зависят от типа предприятия, а также от размеров зала, его конфигурации, формы и габаритов оборудования, а также от основных потоков движения потребителей и транспортировки посуды. С этой целью в зале устраивают главные проходы (шириной 1,2 — 1,5 м) и дополнительные (0,6 — 0,7 м) проходы между оборудованием и стеной (0,3 — 0,5 м); шириной 0,9 — 1,2 м — для распределения потоков потребителей.
В зависимости от объемно-пространственной композиции зала при длине главного прохода 12 м его ширину увеличивают до 2 м, а при 18 м и более — до 3 м. Ширину проходов вдоль стен увеличивают на 30 — 40 см, иначе создается эффект неравномерного использования мебелью площади. Ширина проходов определяется расстоянием между спинками стульев при линейном расположении столов; между углами столов — при диагональном расположении; между спинками стульев и углами столов — при смешанном расположении.
Буфет. В предприятиях с самообслуживанием буфет располагается на площади зала. Он предназначен для реализации потребителям покупных товаров, кондитерских изделий и т.
п. Буфеты оборудуют прилавками- витринами для демонстрации продукции, буфетной стойкой, подшкафниками для посуды и инвентаря, холодильными шкафами и стеллажами для кратковременного хранения продукции и освободившейся тары.
Эту продукцию реализуют во многих предприятиях с раздаточных линий. Поэтому вместо традиционных буфетов предусматривают прилавки-бары для реализации коктейлей, напитков и кондитерских (мучных) изделий, легких закусок.
Прилавки-бары позволяют потребителям получить напитки и легкую закуску за стойкой. В зависимости от типа предприятия, размера и конфигурации зала барная стойка может иметь различные формы: прямолинейную, изогнутую, полукруглую, П-образную, Г-образную, ломаную и криволинейную.
Варианты компоновки баров представлены на рис. 4.29. Размещают барные стойки вдоль стен, в углу, свободно стоящими в центре, примыкающими к стене торцевой частью. Место их расположения определяется близостью необходимых кладовых, моечной столовой посуды, места складирования тары, а также удобством снабжения продуктами.

Рис. 4.29. Варианты компоновки баров:
а — бар с прямолинейной формой прилавка; б — бар с зубчатой формой прилавка; 1 — передача блюд официантам; 2— стол с ящиками, предназначенный для выполнения официантами необходимых записей; 3 — контрольная касса для официантов; 4 — кофеварка; 5 — фризер для мороженого; 6 — пристенный буфет; 7 — настенные полки; 8 — разливочный аппарат для прохладительных напитков; 9 — охлаждающая установка с мойкой; 10— охлаждающая установка с охлаждающей ванной; 11 — неохлаждаемый шкаф с ящиками.
Возможны различные приемы решения стены, к которой примыкает барная стойка: декоративное панно, росписи, витраж из цветного или зазеркального стекла; панели — деревянные или обтянутые кожзаменителем; стеллажи с посудой; декоративные растения.
Экспозиция напитков и закусок предусматривается в основном в витрине, расположенной за прилавком-баром, на полках или в самом прилавке-баре. Блюда и напитки изготовляют на глазах у потребителей.
Ширина прилавка-бара 500 — 800 мм при высоте 1200 мм. Вращающиеся стулья могут закрепляться или быть приставными; размеры поверхности стульев 300 — 400 мм, высота 720— 780 мм. Прилавок-бар и стулья выполняют в едином архитектурно-художественном замысле и цветовой гамме.
Бары размещают в отдельных помещениях или в зале. Бары, расположенные в залах, позволяют эффективно использовать площади залов и оживлять атмосферу в них. Бары являются заметными функциональными элементами интерьеров.
Известны бары следующих типов: бар-буфет, витаминный, молочный, десертный, закусочный, бар-мороженое, гриль-бар, коктейль-бар, винный, пивной, кофейный, чайный и др.
Раздача в предприятиях с самообслуживанием располагается на площади зала. В норму площади на одно место в зале включена площадь, необходимая для установки раздаточных линий.
В предприятиях общественного питания для реализации блюд со свободным выбором используют немеханизированные линии раздачи обедов ЛС и механизированные линии для реализации комплексных обедов ЛККО («Поток»).
Линия ЛС имеет варианты: ЛС-А, ЛС-Б, ЛС-В и ЛС-Г. Механизированные линии раздачи состоят из комплекта оборудования для реализации кулинарной продукции с использованием функциональных емкостей, размещенного в принятом порядке (правом исполнении); различаются линии размерами оборудования и вместимостью функциональных емкостей. При установке двух или более линий в зале проводят перекомпоновку оборудования в обратном направлении.
Преимущества линии ЛС заключаются в том, что посуду, приборы и подносы загружают в тележки с выжимным устройством в моечной столовой посуды и доставляют к линии; первые блюда и гарниры поступают на линию без перегрузки в передвижных котлах, в которых осуществлялась их варка; вторые блюда и соусы загружают в передвижные мармиты в местах приготовления в функциональных емкостях, в которых они приготавливались, без перегрузки. Линии рассчитаны на обслуживание предприятий на 50 — 75 мест. Производительность линии можно увеличить путем привлечения дополнительного числа раздатчиц и изменения формы обслуживания.
Схемы размещения раздаточных линий приведены на рис. 4.30.

Рис. 4.30. Схемы размещения раздаточных линий:
1 — фронтальное размещение, 2 — угловое размещение, 3 — размещение по периметру зала
Раздаточные линии отделяют от производственной зоны перегородками, от мест в зале — барьерами-поручнями на расстоянии 0,7 — 0,8 м. Для свободного обхода потребителей в очереди и увеличения пропускной способности раздаточных линий это расстояние может быть увеличено до 1,4 — 1,6 м. Ширина рабочей зоны за линией раздачи должна быть не менее 1 м. При установке за линией раздачи подсобных столов ширина рабочей зоны увеличивается на 0,8-0,9 м.
В предприятиях, работающих днем по методу самообслуживания, а вечером — с обслуживанием официантами (столовые, кафе), раздаточную линию размещают на границе производственной зоны и зоны для потребителей в нише или отделяют от зала трансформирующейся перегородкой или декоративным экраном на расстоянии от раздаточной линии 1,7 м и высотой не менее 1,8 м.
В предприятиях самообслуживания при обслуживании непрерывного потока потребителей и организации питания по комплексному меню с предварительной оплатой устанавливают механизированную линию комплектования и отпуска комплексных обедов ЛККО-2 («Поток»). Линия включает транспортер комплектации и передвижные раздаточные емкости для холодных закусок, первых блюд, вторых соусных блюд и гарниров, сладких блюд и горячих напитков. С одной раздаточной линии отпускают только один вид комплексного обеда. Производительность линии 300, 600, 800 обедов в час в зависимости от числа раздатчиков (соответственно 3; 5; 7 человек).
При установке линий «Поток» зоны комплектации обедов занимают часть площади горячего цеха, на которой размещаются транспортер и передвижное раздаточное оборудование. Для определения размеров горячего цеха на стадии проектирования необходимо прибавить к площади горячего цеха 0,2 м2 на каждое место в зале.
Площадь зала принимают без изменений в соответствии со СНиП. В зале предусматривают зоны получения обедов и подходы к ним, пункты предварительной оплаты стоимости обедов и контрольно-пропускные устройства.
Для комплектации и отпуска обедов со свободным выбором блюд в крупных предприятиях общественного питания устанавливают автоматизированные линии комплектации и раздачи обедов. Линия состоит из цепного пластинчатого транспортера комплектации с боковым расположением цепи и передвижного раздаточного оборудования. Вместо традиционной столовой посуды на линии используют специальные подносы с закрепленными емкостями, которые хранят на подвесном толкающем конвейере. После приема заказа от потребителя, сделанного в зале с помощью электронного терминала, сигнал подается на манипулятор-укладчик, который снимает спецподнос с конвейера и устанавливает его на первую платформу транспортера комплектации. Сигнал с терминала заказа о выбранных блюдах подается на соответствующие автоматические дозаторы и сигнальные лампы на тумбах у рабочих мест раздатчиков. Заполненный спецподнос подвигается к транспортеру, попадает в зал, где снимается потребителем. Столовые приборы и хлеб находятся в специальных подставках на обеденном столе. От момента приема заказа до момента получения обеда проходит 1,5 — 2 мин.
Для разовой раздачи и кратковременного хранения (до 30 мин) комплексных обедов применяют сквозные тепловые шкафы ШТС, которые представляют собой теплоизоляционные камеры с температурой воздуха в шкафу 60—70 "С. Шкафы устанавливают вплотную торцами между горячим цехом и залом таким образом, что их двери выходят с одной стороны в горячий цех, с другой — в зал. В каждый шкаф закатывают по две тележки-стеллажа.
Магазины кулинарии. Они предназначены для реализации полуфабрикатов, кулинарных и кондитерских изделий и сопутствующих товаров (горчица, хрен, соус и т. д.). Магазины проектируют в составе предприятий общественного питания (столовых, ресторанов, зданиях иного назначения, а также в отдельно стоящих зданиях).
Состав помещений магазина кулинарии зависит от числа рабочих мест и места его размещения: в здании предприятия общественного питания, отдельно стоящем здании или в здании иного назначения.
С учетом этого предусматривают те или другие помещения: зал, отдел заказов, комплектовочную отдела заказов, подсобное помещение магазина (охлаждаемое и неохлаждаемое), приемочную продуктов, кладовую сопутствующих товаров и упаковочных материалов, моечную тары и инвентаря, административное помещение, помещение для персонала, гардероб для персонала, душевые и санузлы. Размеры площадей помещений зависят также от числа рабочих мест в магазине. Планировка магазина кулинарии на два рабочих места дана на рис. 4.31.

Рис. 4.31. Планировка магазина кулинарии на два рабочих места:
Помещения (номера позиций заключены в кружки). 1 — зал; 2— подсобное помещение.
Оборудование: 1 — охлаждаемый прилавок-витрина, 2 — холодильный шкаф; 3 — раздаточный прилавок; 4, 7 — производственные столы; 5— стеллаж, 6 — подтоварник; 8 — откидной прилавок; 9 — касса.
Форма обслуживания в магазинах — через продавцов.
Магазин кулинарии располагается на первом этаже здания с самостоятельным входом или входом из вестибюля предприятия, со стороны главного или бокового фасадов. Зал магазина должен иметь естественное освещение.
При проектировании магазина кулинарии, расположенного в здании предприятия общественного питания, предусматривают удобную связь с приемочной, если предприятие работает на полуфабрикатах высокой степени готовности, или со складскими помещениями — доготовочным, мясо-рыбным, овощным, горячим, холодным и кондитерским цехами при работе предприятия на сырье или полуфабрикатах.
При магазине кулинарии можно проектировать кафетерии с потреблением на месте горячих напитков, молока, кондитерских изделий, бутербродов и кисломолочных продуктов, а также отделы отпуска обедов на дом. В этом случае при магазине предусматривают подсобное помещение и моечную столовой посуды.
Отдел отпуска обедов на дом должен иметь удобную связь с горячим и холодным цехами, самостоятельный вход или вход из общего вестибюля предприятия. Обеды отпускают через специальное раздаточное окно. Площадь помещения отпуска обедов в составе общедоступных предприятий общественного питания должна быть не менее 20 м2.
Подсобные помещения магазина кулинарии и кафетерия могут быть объединены. Зал магазина оборудуют охлаждаемыми прилавками-витринами, раздаточными стойками, кассами, столами для упаковки товаров. Раздачу кафетерия оборудуют линией прилавков ЛСБ и включают в общую линию прилавков магазина.
Вестибюль. Входной частью предприятия служит вестибюль, который предусматривается в предприятиях круглогодичного и смешанного функционирования. В нем размещают тамбуры, холлы, гардероб для потребителей, лестничные клетки и санитарные узлы.
Вестибюль должен иметь четкую организацию потоков движения потребителей. С этой целью предусматривают свободные проходы между мебелью и отступы от стоек гардероба и зеркал. Гардероб располагают при входе в вестибюль, а далее по пути движения потребителей в зал или к лестничной клетке предусматривают санузлы.
Площадь вестибюля определяют по числу круглогодичных и сезонных мест и рассчитывают по нормам от 0,3 до 0,45 м2 на одно место. Помещение вестибюля целесообразно делать трансформирующимся для уменьшения его в летний период, чтобы иметь возможность увеличить площадь зала.
Площадь гардероба определяется из расчета 0,08 — 0,1 м2 на одно место или 0,17 м2 на одну вешалку. Число вешалок должно соответствовать числу потребителей при 100%-ной загрузке зала, включая банкетные залы, в часы пик — с 10%-ным запасом. Вдоль гардероба предусматривают свободное от основных потоков потребителей пространство шириной 1,5 — 2 м.
Для приема одежды в гардеробе устраивают окно (барьер) длиной 1 м на каждые 50 мест. Конструктивной основой барьера может служить металлический или деревянный каркас, отделанный слоистым пластиком.
Размещение гардероба может быть фронтальным, глубинным или угловым. Фронтально располагают большие гардеробы со значительной протяженностью барьера. Глубина гардероба от барьера должна быть не более 6,0 м.
Санитарные узлы запрещается располагать у наружных стен здания; их размещают внутри вестибюля одним блоком и обособляют двойными шлюзами.Шлюзами могут служить умывальные.
Умывальные в предприятиях до 100 мест устраивают открытого типа, при большем числе мест — закрытого.
При формировании интерьера вестибюля следует исходить из функциональных процессов, проходящих в нем, а также из транзитной роли этого помещения. Здесь устанавливают несколько кресел, диваны, журнальные столики, банкетки, цветочницы и стенды информации.
Объединение внутреннего пространства вестибюля с окружающей средой достигается с помощью больших остекленных наружных поверхностей и озеленения, которое способствует созданию комфортных условий и повышению художественной выразительности внутреннего пространства.
На основании приложения 6 определяем количество напитков, хлеба, кондитерских изделий и другой продукции (табл. 3.12).
Таблица 3.12 Определение необходимого количества напитков и покупных товаров
| Напитки | Единица измерения | Зал скомплектованных рационов | Диетический зал | ||
| Норма на одного человека | Общее количество на 2134 человек | Норма на одного человека | Общее количество на 610 человек | ||
| Горячие | л | 0,10 | 214,0 | 0,05 | 31,0 |
| Холодные | л | 0,05 | 126,0 | 0,05 | 30,0 |
| В том числе: | |||||
| фруктовая вода | 0,03 | 64,0 | — | — | |
| минеральная вода | 0,01 | 21,0 | 0,03 | 18,0 | |
| натуральный сок | 0,01 | 21,0 | 0,02 | 12,0 |
Таблица 3.13 Диетическое меню для завтрака
| Номер рецептуры | Наименование блюда | Выход блюда, г | Номер диеты | Содержание, г | Энергетическая ценность | Количество порций | |||
| белков | жиров | углеводов | ккал | кДж | |||||
| 54 | Рыба ледяная под маринадом | 150 | 2, 7, 8, 9, 10, 15 | 15,8 | 10,6 | 8,0 | 790 | 189 | 19 |
| 58 | Язык говяжий отварной | 50 | 1, 2, 5, 7, 9, 10, 15 | 14,2 | 10,1 | 0 | 619 | 148 | 16 |
| 4 | Салат из свежих помидоров | 100 | 1, 2, 5, 7, 8, 9, 10, 15 | 1,1 | 9,9 | 3,4 | 451 | 108 | 15 |
| 65 | Сыр швейцар-ский | 30 | 2, 5, 8, 9, 10, 15 | 7,5 | 9,5 | 0 | 483 | 118 | 14 |
| Простокваша с сахаром | 200/5 | 2, 3, 5, 7, 8, 9, 10, 15 | 6,7 | 6,7 | 28,2 | 857 | 205 | 10 | |
| Молоко кипя-ченое | 200 | 5, 6 | 6,4 | 9,4 | 116 | 475 | 116 | 10 | |
| 673 | Блинчики с творожным фаршем | 140 | 2, 7, 10, 15 | 16,1 | 15,5 | 45,6 | 1463 | 350 | 60 |
Бухгалтерия: Автоматизация - Система 1С
- Бухгалтерия
- Бухгалтерская отчетность
- Автоматизация бухгалтерии
- Расчет налогов
- Бухгалтерские расчеты
- Бухгалтерский учет
- Бухгалтерия в 1С
- 1С - конфигурации
- 1С версия 7.7
- 1С версия 8.0
- 1С 8.0 программирование